Mentor Опубліковано: 11 лютого 2008 Поділитись Опубліковано: 11 лютого 2008 Дом планируется из термоблоков. Фундамент-мелкозаглубленный, ленточный( 60*30 см) армирование по 3 струны диаметром 12 мм сверху и снизу. Средняя несущая стена тоже из термоблоков. Прошу не обращать внимания на цветовое решение помещений, это просто попытка разнообразить помещения, в Арконе еще не разобрался как например сделать цокольные панели....но не это главно ...интересует собственно мнение застройщиков по поводу планировки, размещению окон, лестница волнует: получится ли сделать аналог арконовской У-образной как на чертеже?. Хочется крышу вальмовую, чердак неотапливаемый, немного поигрался но все равно что-то не нравится, мож угол изменить. Покрытие крыши- крашеный шифер. Ну вот собсно пока все. Изгаляйтесь. Нужен свежий взгляд. В плане размер корректироваться не может( обьективные причины), а остальное.....критикуйте. Посилання на коментар Поділитися на інших сайтах More sharing options...
Mentor Опубліковано: 11 лютого 2008 Автор Поділитись Опубліковано: 11 лютого 2008 вот еще чертежи Посилання на коментар Поділитися на інших сайтах More sharing options...
Mentor Опубліковано: 11 лютого 2008 Автор Поділитись Опубліковано: 11 лютого 2008 Чойта никто коментов не оставляет? Людиииии..... Посилання на коментар Поділитися на інших сайтах More sharing options...
Katya Опубліковано: 11 лютого 2008 Поділитись Опубліковано: 11 лютого 2008 я тут кой-чего не поняла... а мжно первый этаж с длинами-ширинами указать? Посилання на коментар Поділитися на інших сайтах More sharing options...
duk Опубліковано: 11 лютого 2008 Поділитись Опубліковано: 11 лютого 2008 как по мне ходить в гостинную через кухню.... нет не для меня, хотя экономим на коридоре, это дело вкуса и санузел на втором я щитаю излишком, ибо можно сделать шире\еще одну комнату.. но еще раз менние мое..а решать вам Посилання на коментар Поділитися на інших сайтах More sharing options...
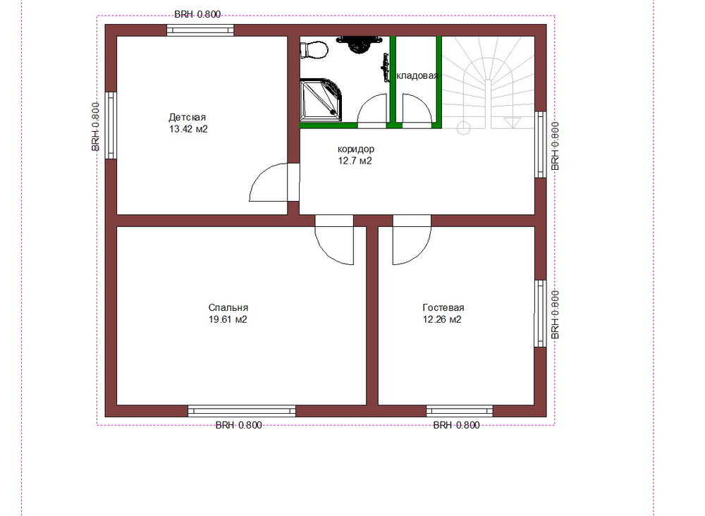
Mentor Опубліковано: 11 лютого 2008 Автор Поділитись Опубліковано: 11 лютого 2008 Н-да, размеры я ненароком обрезал, в плане дом 8.25*9.25(размер привязан к термоблокам) Завтра подправлю план первого этажа, а то и впрям вспомогательные линии не убрал а размеры забыл. для Duk: вход в гостинную через кухню обусловлен там, что в коридоре слишком много дверей получается и даже шкафа для одежды поставить будет некуда, ну а во вторых , это желание жены, а это уже резон....Согласны? Второй санузел.... собственно на втором этаже получается главный санузел, а на первом только унитаз и умывальник, так....чтоб по быстрому, ну и чтоб на случай гостей- нефиг им на второй этаж бегать. Второй этаж -территория прайвеси. . Думаю бюджетность стройки это выдержит. Посилання на коментар Поділитися на інших сайтах More sharing options...
duk Опубліковано: 11 лютого 2008 Поділитись Опубліковано: 11 лютого 2008 Н-да, размеры я ненароком обрезал, в плане дом 8.25*9.25(размер привязан к термоблокам) Завтра подправлю план первого этажа, а то и впрям вспомогательные линии не убрал а размеры забыл. для Duk: вход в гостинную через кухню обусловлен там, что в коридоре слишком много дверей получается и даже шкафа для одежды поставить будет некуда, ну а во вторых , это желание жены, а это уже резон....Согласны? Второй санузел.... собственно на втором этаже получается главный санузел, а на первом только унитаз и умывальник, так....чтоб по быстрому, ну и чтоб на случай гостей- нефиг им на второй этаж бегать. Второй этаж -территория прайвеси. . Думаю бюджетность стройки это выдержит. да слово жены... не попреш свою ели уговорил строится и план выдержать такой, ибо хочу так и все.. а вот я щитаю что вход в кухню и зал можно сделать арку и все зачем двери не понимаю... Посилання на коментар Поділитися на інших сайтах More sharing options...
Mentor Опубліковано: 11 лютого 2008 Автор Поділитись Опубліковано: 11 лютого 2008 да слово жены... не попреш свою ели уговорил строится и план выдержать такой, ибо хочу так и все.. а вот я щитаю что вход в кухню и зал можно сделать арку и все зачем двери не понимаю... да дело даже не в дверях или арке, а в месте которые они занимают. Первоначально вход в гостинную у меня был отдельный но потом , когда стал мебель расставлять вышло что в коридоре и пальта некуда будет повесить, а потому проем я замуровал, и в том месте значит шкаф-купе присобачу. Вот така история Посилання на коментар Поділитися на інших сайтах More sharing options...
duk Опубліковано: 11 лютого 2008 Поділитись Опубліковано: 11 лютого 2008 может так попробуете, мне так более Посилання на коментар Поділитися на інших сайтах More sharing options...
duk Опубліковано: 11 лютого 2008 Поділитись Опубліковано: 11 лютого 2008 может так попробуете, мне так более Посилання на коментар Поділитися на інших сайтах More sharing options...
Mentor Опубліковано: 11 лютого 2008 Автор Поділитись Опубліковано: 11 лютого 2008 Купе примыкающее к бойлерной низзя, в том месте бедет зона опирания балки перекрытия, на которой будет держаться и лестница и само перекрытия первого этажа. Возле тамбура можно,.... в общем над этим вопросом бум думать и наверно окончательно придем к соглашению когда все эти виртуальные стены хоть немного подымуться в натуре. Мож еще чего подскажете: окна, крыша, лестница......... Посилання на коментар Поділитися на інших сайтах More sharing options...
Mentor Опубліковано: 12 лютого 2008 Автор Поділитись Опубліковано: 12 лютого 2008 Человекиииии, ну зглянтесь..., ну покритикуйте, откройте глаза на недоработки. Чета форум тоже на карантин ушел. Активность низкая, или это я так не удачно тему назвал???? Заходите.... Посилання на коментар Поділитися на інших сайтах More sharing options...
Katya Опубліковано: 12 лютого 2008 Поділитись Опубліковано: 12 лютого 2008 так а размеры где? Посилання на коментар Поділитися на інших сайтах More sharing options...
Katya Опубліковано: 12 лютого 2008 Поділитись Опубліковано: 12 лютого 2008 но вот даже без размеров скажу - фасад не очень (это ведь фасад а не чёрный ход?). Посилання на коментар Поділитися на інших сайтах More sharing options...
duk Опубліковано: 12 лютого 2008 Поділитись Опубліковано: 12 лютого 2008 я уже критиковал... Посилання на коментар Поділитися на інших сайтах More sharing options...
Гість Владимир Ф. Опубліковано: 12 лютого 2008 Поділитись Опубліковано: 12 лютого 2008 Здравствуйте ! Собираюсь скоро выкладывать и свой проект, а пока рассматриваю чужие, изучаю тему. Меня интересуют эконом-проекты, аналогичные Вашему, поэтому на них обращаю особое внимание. Вопросы у меня такие: 1. Будете ли предусматривать балкон/веранду ? 2. Планируете ли строить гараж для машины и сарай для всякого барахла хозяйственного? Посилання на коментар Поділитися на інших сайтах More sharing options...
Katya Опубліковано: 12 лютого 2008 Поділитись Опубліковано: 12 лютого 2008 Здравствуйте ! Собираюсь скоро выкладывать и свой проект, а пока рассматриваю чужие, изучаю тему. Меня интересуют эконом-проекты, аналогичные Вашему, поэтому на них обращаю особое внимание. Вопросы у меня такие: 1. Будете ли предусматривать балкон/веранду ? 2. Планируете ли строить гараж для машины и сарай для всякого барахла хозяйственного? я завтра (дорисую) выложу свой бюджетный проект. у меня будет балкон из спальни и терасса 4на6 из гостинной. гараж будет примыкать к дому и иметь проход через котельную Посилання на коментар Поділитися на інших сайтах More sharing options...
Katya Опубліковано: 12 лютого 2008 Поділитись Опубліковано: 12 лютого 2008 это один из моих вариантов. может будет полезен.... Посилання на коментар Поділитися на інших сайтах More sharing options...
Mentor Опубліковано: 12 лютого 2008 Автор Поділитись Опубліковано: 12 лютого 2008 План 1-го этажа с размерами. О фасаде уже писал, в Арконе не могу да и некогда дизайнерскими изысками заниматься, тапками не бросайтесь. Буду фасад комбинированный делать штукатурка+ сайдинг. Видел такое на выставке. Описать сложно, мож фотку найду выложу. Гаража делать не буду ибо машины пока нет, появится (если) построю, а вот мастерскую слесарно-столярную, это да, хочу.... Балкон делать не буду принципиально, на то он и частный дом. что вышел на крылечко, потянулся, вздохнул полной грудью. Вот она , загородная жизнь, а балкон - анахронизм городской квартиры или архитекрурное излишество ( и финансовое главное). Тераса..... пока не думаю, накладно...., да и вид у меня не на сосновый бор или озеро... реальность. Так что в терасе пока необходимости не вижу. Конструктив покритикуйте.... фундамент, стены, перекрытие. Мож с крышей что посоветуете, да и лестница меня оч. волнует Посилання на коментар Поділитися на інших сайтах More sharing options...
Katya Опубліковано: 12 лютого 2008 Поділитись Опубліковано: 12 лютого 2008 План 1-го этажа с размерами. О фасаде уже писал, в Арконе не могу да и некогда дизайнерскими изысками заниматься, тапками не бросайтесь. Буду фасад комбинированный делать штукатурка+ сайдинг. Видел такое на выставке. Описать сложно, мож фотку найду выложу. Гаража делать не буду ибо машины пока нет, появится (если) построю, а вот мастерскую слесарно-столярную, это да, хочу.... Балкон делать не буду принципиально, на то он и частный дом. что вышел на крылечко, потянулся, вздохнул полной грудью. Вот она , загородная жизнь, а балкон - анахронизм городской квартиры или архитекрурное излишество ( и финансовое главное). Тераса..... пока не думаю, накладно...., да и вид у меня не на сосновый бор или озеро... реальность. Так что в терасе пока необходимости не вижу. Конструктив покритикуйте.... фундамент, стены, перекрытие. Мож с крышей что посоветуете, да и лестница меня оч. волнует вы очень неправильно подошли к вопросу. я просила дать размеры, а где размеры по лестнице, раз она вас так волнует. выб не мучали окружающих а нарисовали с соблюдением масштаба карандашиком да с линеечкой, а потом и за советом можно.... да, лестница, как я понимаю тоже 1.8 на 1.8? а какая высота потолка? какое отверстие под лестницу в потолке? Посилання на коментар Поділитися на інших сайтах More sharing options...
Mentor Опубліковано: 12 лютого 2008 Автор Поділитись Опубліковано: 12 лютого 2008 вы очень неправильно подошли к вопросу. я просила дать размеры, а где размеры по лестнице, раз она вас так волнует. выб не мучали окружающих а нарисовали с соблюдением масштаба карандашиком да с линеечкой, а потом и за советом можно.... да, лестница, как я понимаю тоже 1.8 на 1.8? а какая высота потолка? какое отверстие под лестницу в потолке? Вот, сразу чувствуется женский взгляд, как только в ветке появляется женщина,- разговоры об инженерии и конструктиве фтопку... Не обижайтесь право. Что значит размеры по лестнице? На чертеже написано, что в ней(лестнице) 16 ступеней, ширина проступи 24 см, подьем 18 см. Ну вот еще снимок с Аркона приложу, чтоб понятней было. Да и где вы видели, чтоб в программах чертили без масштаба. Все начерчено в масштабе 1/50. Вот уж не думал, что с карандашиком да линеечкой точней получится. Фасад у вас и впрям хорош, художник наверное....завидую....я так не умею. Все больше на компьютере... Если внимательно глянете на чертеж, то можно заметить , что в зоне расположения лестницы будет второй свет. И собственно вопрос о лестнице касался чисто практики выполнения таковой. Кто делал такую же/похожую. Какие особенности. Как крепится к стене струна (из чего ее собсна делать: дерево /метал)лестница.bmp Посилання на коментар Поділитися на інших сайтах More sharing options...
Katya Опубліковано: 12 лютого 2008 Поділитись Опубліковано: 12 лютого 2008 ага, ширина лестницы 80, проступь 24,так? а на веерной ступени как? без них не пробовали? Посилання на коментар Поділитися на інших сайтах More sharing options...
Mentor Опубліковано: 12 лютого 2008 Автор Поділитись Опубліковано: 12 лютого 2008 ага, ширина лестницы 80, проступь 24,так? а на веерной ступени как? без них не пробовали? огромный плюс такой лестницы-экономия места. Если делать лестницу с площадкой, тогда увеличивается количество ступенек, длина тетивы, а значит место в доме Посилання на коментар Поділитися на інших сайтах More sharing options...
Romka Опубліковано: 12 лютого 2008 Поділитись Опубліковано: 12 лютого 2008 Вход в гостинную через кухню - фигня редкая. ИМХО лучше в туалет через бойлерную ходить и тогда будет место для хорошего шкафа Посилання на коментар Поділитися на інших сайтах More sharing options...
gambrina Опубліковано: 12 лютого 2008 Поділитись Опубліковано: 12 лютого 2008 Абсолютно согласна с duk, что ходить в гостинную через кухню неочень!!! У родителей друга похожая планировка, они недовольны... Жена очень зря так хочет.... Ведь, когда какой-то праздник с огромным колличеством людей, то женщина устает от готовки и далеко не всегда успевает убрать на кухне, и мне бы лично неочень хотелось, чтобы гости видели немытую посуду и тп на кухне, да и вообще когда к детям или мужу прийдут гости, а жена на кухне готовит, то чтобы кто-то постоянно ходил и слюнки глотал и напрашивался подольше в гостях остаться.... ведь гостей же принимают в гостинной, а второй этаж это приватная зона и вы с этим согласны. Тоесть если жена хочет вход из кухни в гостинную, его можно оставить, но обязательно чтобы был еще и альтернативный вход! Критикуя поэкт ( исключительно из-за того, что вы попросили);) могу предложить немного поменять расположение помещений. К сожалению на работе нет прог, чтобы нарисовать, попробую обьяснить на словах, а попозже выложить картинку: вход и соответствено тамбур сделать вместо бойлерной, бойлерная вместо лестницы, а лестница там, где чейчас тамбур и часть холла. соответственно, шкаф вы сможете поставить вдоль стены за тамбуром и вход в бойлерную можно сделать с тамбура. соответственно на втором этаже переместив лестницу, вы можете увеличить санузел переместив его на место нынешней лестницы или оставить такого же размера санузел и из корридора сделать холл. На внешнем виде дома это неочень отразиться, может будет только чуть-чуть аскетичнее Посилання на коментар Поділитися на інших сайтах More sharing options...
Рекомендовані повідомлення
Створіть акаунт або увійдіть у нього для коментування
Ви маєте бути користувачем, щоб залишити коментар
Створити акаунт
Зареєструйтеся для отримання акаунта. Це просто!
Зареєструвати акаунтУвійти
Вже зареєстровані? Увійдіть тут.
Увійти зараз