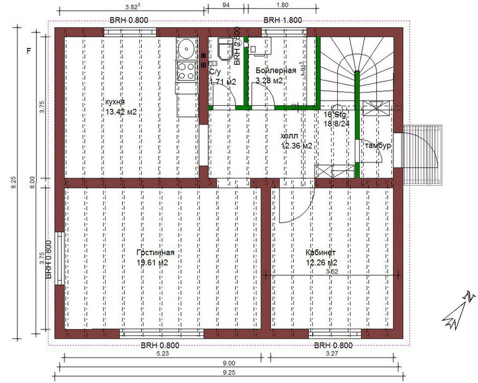
Mentor Опубліковано: 12 лютого 2008 Автор Поділитись Опубліковано: 12 лютого 2008 Н-да... наверное все-таки нада еще один вход в гостинную сделать. Поиграюсь. Насчет переноса помещений: не хотелось бы ( даже скорее не приемлемо) разносить далеко от туалета-кухни, т.к. комунникации тянуть нада, канализация..... , а у меня там стиралка, насос, всякие фильтры, котел там же .....ИМХО надо чтоб кухня/туалет/бойлерная кучки держались Посилання на коментар Поділитися на інших сайтах More sharing options...
gambrina Опубліковано: 12 лютого 2008 Поділитись Опубліковано: 12 лютого 2008 С комуникациями проблем уж точно небудет, вам же их по прямой тянуть! сами вначале боялись разносить котельную с кухней и санузлами, а на практике посмотрели, что ничего страшного в этом нет, просто еще одна труба под полом пройдет.темболее, что у вас будет санузел над бойлерной. а площадь надо рационально использовать! у нас тоже бюджетный вариант ( 10,8*7, поэтому тоже сталкивались с проблемой как бы при минимальной площади максимально комфортно все разместить. вот попыталась нарисовать все подручными методами)) посмотрите как вариант Посилання на коментар Поділитися на інших сайтах More sharing options...
AOZ1 Опубліковано: 12 лютого 2008 Поділитись Опубліковано: 12 лютого 2008 Если внимательно глянете на чертеж, то можно заметить , что в зоне расположения лестницы будет второй свет. И собственно вопрос о лестнице касался чисто практики выполнения таковой. Кто делал такую же/похожую. Какие особенности. Как крепится к стене струна (из чего ее собсна делать: дерево /метал) То что не бюждетная это точно... У меня нечто подобное металлическое со второго на мансарду. Правда, в центре второго этажа. Площадка стоит на швеллерах. Будет шкаф для белья. Верх стрелы лежит на армопоясе. Развернуть на ней скажем 3х метровый лист гипсокартона нереально. Аналогично и с мебелью. Посилання на коментар Поділитися на інших сайтах More sharing options...
Ольга В Опубліковано: 12 лютого 2008 Поділитись Опубліковано: 12 лютого 2008 Пожалуйста не обижайтесь, но такой дом нельзя строить. Возьмите с женой готовый проект какой понравится+переделайте внутр.планировку. Если вы думаете что, чем примитивнее фасады, тем дешевле строиться, то это не так. Посилання на коментар Поділитися на інших сайтах More sharing options...
Mentor Опубліковано: 13 лютого 2008 Автор Поділитись Опубліковано: 13 лютого 2008 Пожалуйста не обижайтесь, но такой дом нельзя строить. Возьмите с женой готовый проект какой понравится+переделайте внутр.планировку. Если вы думаете что, чем примитивнее фасады, тем дешевле строиться, то это не так. Да я и не обижаюсь. В принципе к таким отзывам я тоже был готов.Частенько на форуме попадаются подобные отзывы: мол, как Вы можете в таком доме жить-купите ГОТОВЫЙ проект , и...... ПОМЕНЯЙТЕ планировку,это все равно что купить Субару, а потом впихнуть в нее движок от Жигулей..... муветон, коробка, собачья конура. Вот только как миллионы наших сограждан живут в таких домах или квартирах, а то и похуже. Ума не приложу!. Видимо Вы в таких не живали, ...ну да и слава Богу! Представленный вниманию всех посетителей проек БЮДЖЕТНЫЙ, и мне кажется это должно многое обяснять. Проект составлен исходя из финансовых возможностей, и чего душой кривить,- будет долгостроем, но зато он проектировался, как подводная лодка, только необходимое и достаточное, а потому приходится жертвовать всякими архитектурными излишествами в виде балкончиков ,увитых плющем и цветами, эркерами, башенками, изломанными крышами и стеклянными верандами. Все это хорошо смотрится на дизайнерских сайтах и в особняках одуревших от денег нуворишей. Моя стройка будет вестись на зарплату, а не на денежки от проданой бабушкиной квартиры в центре Киева за сотни тыщ уев. Так что впредь всех посетивших данную ветку, прошу оставлять комментарии не о цвете обоев и "примитивном" фасаде, а о конструктиве, коммуникациях,вентиляции, технологии строительства, технических решениях, планировке помещений, конкретных технологических решениях стройки... Посилання на коментар Поділитися на інших сайтах More sharing options...
Mentor Опубліковано: 13 лютого 2008 Автор Поділитись Опубліковано: 13 лютого 2008 Для gambrina: хотелось бы посмотреть ваш проект. Особенно интересует разводка комунникаций. В предложенном Вами варианте действительно планировка мне кажеться....эргономичней что ли, но пока я остаюсь при своем мнении и разносить бойлерную с кухней и туалетом не планирую. Хотя Ваш вариант рассматриваю и прорисовую/просчитываю, пока что он мне кажется значительно затратней. Но все равно спасибо за ПРАКТИЧНЫЙ совет. Еще думаю. Убрал вход между кухней и гостинной, в тамбуре немного подвинул дверь, теперь она открывается вовнутрь, что дало возможность разместить шкаф при входе. Посилання на коментар Поділитися на інших сайтах More sharing options...
gambrina Опубліковано: 13 лютого 2008 Поділитись Опубліковано: 13 лютого 2008 Проект могу кинуть, только мы внутренюю планировку немного поменяли, совсем незначительно. прийду домой- отправлю. или через пару дней уже новую. по поводу комуникаций могу сказать, что разводка воды и канализации обошлась нам : работа - 300 уе, по материалам точно непомню, но разница у вас получится очень небольшой, уж поверьте, порядка 100-150 уе, зато в доме же вам жить постоянно, так что можно удорожить строительство на 100 уе и жить с большим комфортом. хотя насчет того, дороже будет или нет еще спорный вопрос..... Где у вас будет ввод комуникаций? вы делали привязку к местности? вполне возможно, что это никак не скажется на стоимости! Посилання на коментар Поділитися на інших сайтах More sharing options...
gambrina Опубліковано: 13 лютого 2008 Поділитись Опубліковано: 13 лютого 2008 Чтобы удешевить строительство, надо учитывать много моментов! Но не всегда надо экономить, потому, что потом поймете, что оно того не стоило, а переделывать будет намного дороже. у нас уже готова коробка, я сейчас уже вижу недостатки, когда вижу размеры помещений и понимаю их назначение, некоторые моменты мы неучли, сейчас бы уже делали с изменениями. Если интересует бюджетное строительство на зп, можете приехать и посмотреть нашу стройку. Посилання на коментар Поділитися на інших сайтах More sharing options...
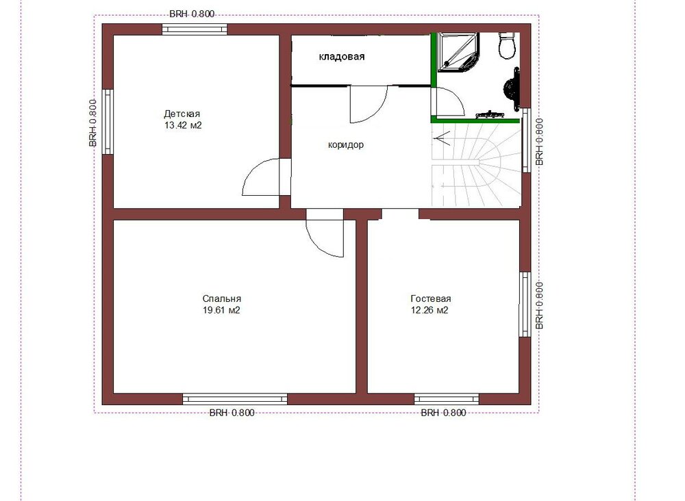
Mentor Опубліковано: 13 лютого 2008 Автор Поділитись Опубліковано: 13 лютого 2008 Чтобы удешевить строительство, надо учитывать много моментов! Но не всегда надо экономить, потому, что потом поймете, что оно того не стоило, а переделывать будет намного дороже. у нас уже готова коробка, я сейчас уже вижу недостатки, когда вижу размеры помещений и понимаю их назначение, некоторые моменты мы неучли, сейчас бы уже делали с изменениями. Если интересует бюджетное строительство на зп, можете приехать и посмотреть нашу стройку. Прежде всего спасибо за Ваши отзывы, теперь насчет удорожания: при предложенном вами варианте придется дольше вести газовую трубу(поэтому не хотел разводить кухню и бойлерную) причем как раз труба должна будет проходить через входную дверь(над ней конечно) , что само по себе как то не прельщает, или придется опоясывать трубой полдома. В данный момент рассматриваю перенос кухни на место кабинета, тогда можна будет пропустить комунникации под лестницей, но туалет...... можно бы было совместить бойлерную с туалетом....думаю пока Посилання на коментар Поділитися на інших сайтах More sharing options...
gambrina Опубліковано: 13 лютого 2008 Поділитись Опубліковано: 13 лютого 2008 Вода и канализация проходят под полом, а газ в санузле вам ненужен! только тот момент, что газовая труба будет проходить над входной дверью... но тут тоже возможны варианты! Посилання на коментар Поділитися на інших сайтах More sharing options...
Mentor Опубліковано: 13 лютого 2008 Автор Поділитись Опубліковано: 13 лютого 2008 Вода и канализация проходят под полом, а газ в санузле вам ненужен! только тот момент, что газовая труба будет проходить над входной дверью... но тут тоже возможны варианты! С водой понятно, а вот с канализацией проблемы: у меня фунд. мелкозаглубленный, пол будет по грунту с утеплением, проложить в нем канализационную трубу длиной порядка 7-9 м, при этом создав угол наклона необходимый для стока???? Не знаю право...стремно, да и газ.... Планировка изначально привязывалась к местным условиям и точкам ввода комунникаций в дом. Посилання на коментар Поділитися на інших сайтах More sharing options...
Viks Опубліковано: 13 лютого 2008 Поділитись Опубліковано: 13 лютого 2008 Если проект бюджетный и вы хотите иметь коридор с шкафами... может имеет смысл перенести лестницу в гостинную? А вход в кухню и в гостинную надо делать однозначно отдельно. Не забывайте что именно первый этаж будет жилым... Посилання на коментар Поділитися на інших сайтах More sharing options...
Ugushka Опубліковано: 13 лютого 2008 Поділитись Опубліковано: 13 лютого 2008 В последнем варианте санузлы первого и второго этажей будут требовать отдельных стояков (то есть, дополнительных затрат). Таки, наверное, стоит санузел второго этажа передвинуть... Уверены ли вы, что бойлерная может быть такого размера? Не нужна ли отдельная дверь на улицу из бойлерной? (нам наши проектировщики сказали, что это необходимо, особенно для газовых котлов). Уверены, что вам нужна гостева я спальня в 12 м2, при этом лестница в жертву? Я не сторонница готовых проектов. Но, возможно, Вам стоит среди готовых проектов подыскать еще что-то ... более подходящее и экономичное и немного переделать... Лестница и санузел - это то, чем Вы будете пользоваться ежедневно несколько раз. Они должны быть удобными, вместительными и безопасными. А гостевая или гостинная - их размерами можно жертвовать. ИМХО. Не забывайте что именно первый этаж будет жилым... Кто знает, у кого какие помещения в доме более жилые;) Посилання на коментар Поділитися на інших сайтах More sharing options...
Ольга В Опубліковано: 13 лютого 2008 Поділитись Опубліковано: 13 лютого 2008 Уважаемый Mentor, Я так поняла, в начале темы вы хотели послушать чужое мнение о вашем проекте, т.е. о планировке и фасаде. Если вы хотите перейти к теме, как построить хорошо и недорого, пожалуйста. Это много раз обсуждалась на этом и других форумах, в разных темах.Но я хочу отметить, что еще никто не жаловался на свой слишком красивый(типа, сложный) дом-мансардные окна, крыша и т.д.-обычно гордятся. Это потому, что в стоимости любого дома (неважно какой он) есть и забор, и септик, и эл-во и т.д. и т.п., поэтому строить красиво-выгодно(смотри польские проекты/прибалтийские проекты). И еще, люди попадали на: 1-не повезло с бригадой: украли/накосячили 2-слишком большой дом(это сейчас редкость) 3-коммуникации Если хотите обсудить "как построить хорошо и недорого", дайте знать. Посилання на коментар Поділитися на інших сайтах More sharing options...
Ольга В Опубліковано: 13 лютого 2008 Поділитись Опубліковано: 13 лютого 2008 2Mentor, Мне понравилось ваше сравнение дома с авто: Субару+Жигули. Но мне ближе покупка(пускай в кредит) сбалансированной машины, ну, например Ниссан, пусть даже в самой дешевой комплектации. У нас будет хороший мотор и подвеска, нержавеющий современный кузов. Потом, если захотим(когда будут деньги-а они будут!!), мы поставим литые диски 17", ксенон, сигнализацию с подогревом и парктроники, в общем, вы меня поняли. Посилання на коментар Поділитися на інших сайтах More sharing options...
Ugushka Опубліковано: 13 лютого 2008 Поділитись Опубліковано: 13 лютого 2008 Вообще, планировка дома к экономичности его строительства мало имеет отношения. Если размеры и число помещений известны, то начинку можно менять хоть тысячу раз в день. Основные расходы - это фундамент, основная кладка, утеплелние, облицовка, работа, разгрузка, транспорт... свет-газ-вода-забор Так что Ольга права - тут стоит обсудить проект - удобство и функциональность, а удешевление строительства - это уже второй этап и он от планировки не зависит Посилання на коментар Поділитися на інших сайтах More sharing options...
Mentor Опубліковано: 14 лютого 2008 Автор Поділитись Опубліковано: 14 лютого 2008 Прежде всего позвольте поздравить Вас, милые дамы с днем влюбленных и пожелать Вам бесконечной любви и счастья. Благодарю всех , не оставляющих вниманием, эту ветку, я благодарен всем за советы и критику, хотьне всегда и согласен с приводимыми доводами. Ну, вот, с праздничной частью закончил, позвольте перейти к "нашим баранам": 1."А вход в кухню и в гостинную надо делать однозначно отдельно." - внял и сделал. 2."В последнем варианте санузлы первого и второго этажей будут требовать отдельных стояков (то есть, дополнительных затрат). Таки, наверное, стоит санузел второго этажа передвинуть... Уверены ли вы, что бойлерная может быть такого размера? Не нужна ли отдельная дверь на улицу из бойлерной? (нам наши проектировщики сказали, что это необходимо, особенно для газовых котлов). Уверены, что вам нужна гостева я спальня в 12 м2, при этом лестница в жертву? Я не сторонница готовых проектов. Но, возможно, Вам стоит среди готовых проектов подыскать еще что-то ... более подходящее и экономичное и немного переделать..." - вчера взвесил и просчитал варианты: разносить бойлерную с кухней и туалетом не буду однозначно, канализационный стояк будет один; бойлерная -не котельная к ней нет особых требований, кроме того котел будет настенный турбо, двухконтурный , его хоть на кухне вешай ( что кстати большинство и делает). Не понял Вашего высказывания насчет лестницы, почему в жертву??? Насчет подыскать и переделать...... писал раньше, с тех пор точка зрения не изменилась. 3. Для Ольга В: как раз в первом посте я просил не обращать внимания на фасад ( в плане цвета, ну и "примитивизма"), насчет гордости за красивые дома , ничего не скажеш, все правильно, но увы, я не владею активами необходимыми для постройки такой гордости, что ж мне теперь , состариться в хрущевке, лелея надежду на замок? "Если хотите обсудить "как построить хорошо и недорого", дайте знать." - даю знать, хочу.... Для Ugushka: "Вообще, планировка дома к экономичности его строительства мало имеет отношения." - как строитель (правда промзданий) в корне не согласен с таким утверждением, по вашему выходит , если знаеш что у тебя должно быть 2 с/у, три спальни, гостинная и еще что-то, то их можна как в пятнашках крутить -вертеть по дому, а на стоимости всех этих манипуляций это не отобразиться??. Заблуждаетесь. Ну, кто на новенького?.... Посилання на коментар Поділитися на інших сайтах More sharing options...
Katya Опубліковано: 14 лютого 2008 Поділитись Опубліковано: 14 лютого 2008 "лестница в жертву" я думаю по-тому, что а) веерный вариант опасен для детей, б) ваша веерная ступень шириной 24 в месте, где вы собственно будете проходить, тобиш посредине, будет иметь сантиметров 10. и последнее. тут на сайте есть по этому делу спецы, проконсультируйтесь: там есть ограничения по высоте и ширине ступени, которые допускаются. все что уже-выше надо отдельное согласование-разрешение. я данных не помню, но задайте этот вопрос, наверняка кто-то знает ссылку.... Посилання на коментар Поділитися на інших сайтах More sharing options...
Ольга В Опубліковано: 14 лютого 2008 Поділитись Опубліковано: 14 лютого 2008 2Mentor У меня такое предложение, раз вы строитель, значит привычны к сметам и вам это будет сделать легко: 1-сейчас берете и обсчитываете свой "бюджетный" проект 2-выбираете какой-нибудь готовый "красивый" проект, который вам по-настоящему нравится приблизительно такой же площади и обсчитываете его 3-добавляете к каждому варианту(это обязательное условие) сумму на землю + забор+ коммуникации+ что-хотите 4-сравниваете оба варианта и делаете свой выбор Очень большая просьба проинформировать форумчан о цифрах и вашем выборе-всем будет очень полезно. Посилання на коментар Поділитися на інших сайтах More sharing options...
Ugushka Опубліковано: 14 лютого 2008 Поділитись Опубліковано: 14 лютого 2008 в корне не согласен с таким утверждением, по вашему выходит , если знаеш что у тебя должно быть 2 с/у, три спальни, гостинная и еще что-то, то их можна как в пятнашках крутить -вертеть по дому, а на стоимости всех этих манипуляций это не отобразиться??. Заблуждаетесь. Ну, кто на новенького?.... Про лестницу Вам Катя пояснила мою претензию По части внутренностей - посчитайте стоимость забора+плит перекрытия+материала основной кладки+ утеплителя+ облицовки+ затрат на фундамент+..свет, вода,газ,септик... Стоимость внутренних перегородок и канализационных стояков в этой сумме утонет и вы не заметите будет у Вас на 2 стены или двери больше или меньше Посилання на коментар Поділитися на інших сайтах More sharing options...
Mentor Опубліковано: 15 лютого 2008 Автор Поділитись Опубліковано: 15 лютого 2008 2Mentor У меня такое предложение, раз вы строитель, значит привычны к сметам и вам это будет сделать легко: 1-сейчас берете и обсчитываете свой "бюджетный" проект 2-выбираете какой-нибудь готовый "красивый" проект, который вам по-настоящему нравится приблизительно такой же площади и обсчитываете его 3-добавляете к каждому варианту(это обязательное условие) сумму на землю + забор+ коммуникации+ что-хотите 4-сравниваете оба варианта и делаете свой выбор Очень большая просьба проинформировать форумчан о цифрах и вашем выборе-всем будет очень полезно. C удовольствием все так бы и сделал , но есть как говорится, нюансы: 1. даже для себя просчитать в полном обьеме свой проект не представляется возможным, потому как: бетон и арматура у меня будут "левые" (работаю на ж\б заводе)-этим в осном и обусловлен выбор ТЕРМОДОМА 2. "красота" проекта создается применением нестандартных архитектурных форм,(коробки, крыши...) не дешевой отделкой, наличием "излишеств разных" (как-то стеклянные веранды от пола до потолка, балкончики, декоративные елементы декора...и прочее...прочее, что канешна хорошо, вери найс и бьютифул, но.... вся эта красота выливается в осложнения конструктива, увеличения трудозатрат (наем специалистов разного профиля, а я как Вы помните строить буду сам+ друзья в помощь) и соответственно увеличиваеться стоимость проекта, потому как бы мне ни нравились проекты выставляемые здесь, позволить себе такое я не могу..... Давайте на этом и остановимся , а то ветка плавно перетекла не в то русло. 4. земля мне досталась даром (в наследство), забор тоже разный бывает: от сетки рабицы до стен из закарпатского сланца....а комуникации во всех домах, что "красивых" что в "примитивных" одинаковые, хотя и тут все зависит от уровня понтов, я вот на днях видел водостоки из меди у одного "бизнесмена", предствляю что и канализационные стояки у него тоже не пластиковые... 5. исходя из всего вышесказанного, выходит что моя смета на работы получится не совсем обьективна и тем более не актуальна для большинства застройщиков. Посилання на коментар Поділитися на інших сайтах More sharing options...
Ugushka Опубліковано: 15 лютого 2008 Поділитись Опубліковано: 15 лютого 2008 выходит что моя смета на работы получится не совсем обьективна и тем более не актуальна для большинства застройщиков. А вы не для нас, а для себя просчитайте.. Выкиньте халявный материал или считайте его по низкой цене... это совсем неважно. Главное, чтобы по одинаковым ценам вы просчитали стоимость всех вариантов домов, которые удовлетворяют Вашим требованиям. Кроме того, дома, которые предложены тут - это капля в море. В инете тысячи вариантов с чертежами.. вот их покрутите и посчитайте Посилання на коментар Поділитися на інших сайтах More sharing options...
Mentor Опубліковано: 15 лютого 2008 Автор Поділитись Опубліковано: 15 лютого 2008 Про лестницу Вам Катя пояснила мою претензию По части внутренностей - посчитайте стоимость забора+плит перекрытия+материала основной кладки+ утеплителя+ облицовки+ затрат на фундамент+..свет, вода,газ,септик... Стоимость внутренних перегородок и канализационных стояков в этой сумме утонет и вы не заметите будет у Вас на 2 стены или двери больше или меньше Про забор уже писал, плит перекрытия у меня нет,(балки) утеплителя тоже (Термодом), облицовка разная бывает: от Веницианской штукатурки до "примитивного" сайдинга, тип фундамента как раз зависит от планировки и типа самого дома (материал стен+ особенности грунта).... А Вам не кажется, что в "Стоимость внутренних перегородок" тож е входит "материал основной кладки+ облицовки+..свет,......??? А роботы по установке канализационных стояков тянут за собой огромный обьем земляных работ(прокладка труб, яма под септик, фильтрационный колодец, поля орошения..., что в свою очередь может затронуть размещение на площадке скважины/колодца....и разводку воды от них. И в результате из-за 2 стен и дверей , как вы выразились, можна перелопатить весь участок..... Посилання на коментар Поділитися на інших сайтах More sharing options...
Mentor Опубліковано: 15 лютого 2008 Автор Поділитись Опубліковано: 15 лютого 2008 А вы не для нас, а для себя просчитайте.. Выкиньте халявный материал или считайте его по низкой цене... это совсем неважно. Главное, чтобы по одинаковым ценам вы просчитали стоимость всех вариантов домов, которые удовлетворяют Вашим требованиям. Кроме того, дома, которые предложены тут - это капля в море. В инете тысячи вариантов с чертежами.. вот их покрутите и посчитайте Ну, вот опять, 25.... просчитали стоимость всех вариантов домов, которые удовлетворяют Вашим требованиям. - не представляется возможным...а главное нужным. Прошу обсуждать то , что уже есть.....опять уходим в дебри флуда. Я прошу не в поиске проекта , а в обсуждении(практическом и практичном) существующего Посилання на коментар Поділитися на інших сайтах More sharing options...
Ugushka Опубліковано: 15 лютого 2008 Поділитись Опубліковано: 15 лютого 2008 А роботы по установке канализационных стояков тянут за собой огромный обьем земляных работ(прокладка труб, яма под септик, фильтрационный колодец, поля орошения..., что в свою очередь может затронуть размещение на площадке скважины/колодца....и разводку воды от них. И в результате из-за 2 стен и дверей , как вы выразились, можна перелопатить весь участок..... Копать самому - дешево Кстати, где там у вас будет яма мы пока не знаем, так что к ней экономично дом привязать не можем... PS А можно еще раз последние варианты планов обоих этажей в одном посте выложить? Спасибо! Посилання на коментар Поділитися на інших сайтах More sharing options...
Рекомендовані повідомлення
Створіть акаунт або увійдіть у нього для коментування
Ви маєте бути користувачем, щоб залишити коментар
Створити акаунт
Зареєструйтеся для отримання акаунта. Це просто!
Зареєструвати акаунтУвійти
Вже зареєстровані? Увійдіть тут.
Увійти зараз