Mentor Опубліковано: 15 лютого 2008 Автор Поділитись Опубліковано: 15 лютого 2008 Копать самому - дешево Кстати, где там у вас будет яма мы пока не знаем, так что к ней экономично дом привязать не можем... PS А можно еще раз последние варианты планов обоих этажей в одном посте выложить? Спасибо! Да, пожалста Посилання на коментар Поділитися на інших сайтах More sharing options...
Ugushka Опубліковано: 15 лютого 2008 Поділитись Опубліковано: 15 лютого 2008 1. Нарисованная вами кухня (в плане мебели) ОЧЕНЬ маленькая. Возможно, в реальности Вам захочется ее сделать угловой.. В таком случае - полезное пространство будет занимать окно. Возможно, его стоит перенести на другую стену. 2. Я бы оставила дверь из кухни в зал тоже.. или придумала бы там окошко.... 3. Как по мне - очень крохотный санузел на втором этаже... Не уверена, станет ли там ванная и рукомойник.. Лучше уж под кладовую "украсть" кусок гостевой... 4. Где будет стиралка? В кухне? Посилання на коментар Поділитися на інших сайтах More sharing options...
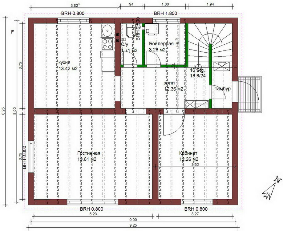
Mentor Опубліковано: 15 лютого 2008 Автор Поділитись Опубліковано: 15 лютого 2008 1. Нарисованная вами кухня (в плане мебели) ОЧЕНЬ маленькая. Возможно, в реальности Вам захочется ее сделать угловой.. В таком случае - полезное пространство будет занимать окно. Возможно, его стоит перенести на другую стену. 2. Я бы оставила дверь из кухни в зал тоже.. или придумала бы там окошко.... 3. Как по мне - очень крохотный санузел на втором этаже... Не уверена, станет ли там ванная и рукомойник.. Лучше уж под кладовую "украсть" кусок гостевой... 4. Где будет стиралка? В кухне? Вот! Конструктив пошел! 1.Мебель действительно будет угловая: вдоль окна будет находиться рабочая зона с мойкой(моеш посудку и в окно зыришь, жена в какой-то программе видела) Каюсь, мебель раставил небрежно, просто пробуя силы в Арконе. 2. Согласен. Будет что-то типа в первом варианте. Стеклянно-раздвижное. 3. Да, не разбегаешся... но...ванной там не будет, только душевая, рукомойник, унитаз....все входит. Только вот что-то на рисунке пропали они...Наверно разные версии Аркона (дома одна, на роботе другая), обьекты попропадали. Да. да, предвижу ваши возражения мол как без ванной! Но в квартире где мы долгое время жили , была ванна, из-за которой больше ничего там поставить было нельзя, поэтому я ванну убрал поставил душкабину и еще стиралку, вот уже три года так моемся , и все довольны. Расход воды не большой. Кроме того нада думать куда потом эту воду после использования девать, у меня грунты глинистые, впитывают воду плохо.. Так что все нада учитывать. 4. Стиралка будет в бойлерной Посилання на коментар Поділитися на інших сайтах More sharing options...
Ugushka Опубліковано: 15 лютого 2008 Поділитись Опубліковано: 15 лютого 2008 Да. да, предвижу ваши возражения мол как без ванной! Ванная, по большей части, нужна детям. Ну и на такой дом такая махонькая кладовка... почему вы не хотите урезать гостевую? ТАк часто у вас будут ночевать друзья или им там нужен будет огромный шкаф-купе? Как раз, если откусить кусок от нее, а кусок от коридора- будет неплохая кладовая PS Пошла к себе в ванную, в районе унитаза отвела уголок 1-40 на 1-30 - у вас столько отведено под санузел на 2 этаже... Комфортным этот закоулок не назовешь: У вас будет проблема, где развесить полотенца, поставить ершик и расзместить туалетный утенок, положить тряпочки, хранить зубные щетки, бритву, пену, шампуни, мочалки, туалетную бумагу... Прежде, чем принимать решение строить такой маленький санузел - попробуйте прорисовать его до мелочей, а не просто расставить в программе картинки с сантехникой. По-хорошему, многие люди в ванной хранят и чистые полотенца, и предметы гигиены, и лекартва, и бельевую корзину... Посилання на коментар Поділитися на інших сайтах More sharing options...
Mentor Опубліковано: 15 лютого 2008 Автор Поділитись Опубліковано: 15 лютого 2008 Ванная, по большей части, нужна детям. Ну и на такой дом такая махонькая кладовка... почему вы не хотите урезать гостевую? ТАк часто у вас будут ночевать друзья или им там нужен будет огромный шкаф-купе? Как раз, если откусить кусок от нее, а кусок от коридора- будет неплохая кладовая PS Пошла к себе в ванную, в районе унитаза отвела уголок 1-40 на 1-30 - у вас столько отведено под санузел на 2 этаже... Комфортным этот закоулок не назовешь: У вас будет проблема, где развесить полотенца, поставить ершик и расзместить туалетный утенок, положить тряпочки, хранить зубные щетки, бритву, пену, шампуни, мочалки, туалетную бумагу... Прежде, чем принимать решение строить такой маленький санузел - попробуйте прорисовать его до мелочей, а не просто расставить в программе картинки с сантехникой. По-хорошему, многие люди в ванной хранят и чистые полотенца, и предметы гигиены, и лекартва, и бельевую корзину... Почему так решили? Посилання на коментар Поділитися на інших сайтах More sharing options...
Ольга В Опубліковано: 15 лютого 2008 Поділитись Опубліковано: 15 лютого 2008 2Mentor, Можете убрать маленькое окно в гостиной и расширить большое окно в гостиной-съэкономите и мебель легче расставляется(у самой так было) Если нет наружной двери в бойлерную, объедините с/узел 1-го этажа с бойлерной-будет намного просторнее. Под лестницей(входя в нее из тамбура направо) сделайте маленькую скошенную кладовочку для банок и прочего). У вас получается темный коридор на 1 этаже(вообще без дневного света).Сделайте окна(можно глухие) над входной и тамбурной дверями. Окно в бойлерной ненужно велико. Посилання на коментар Поділитися на інших сайтах More sharing options...
Ольга В Опубліковано: 15 лютого 2008 Поділитись Опубліковано: 15 лютого 2008 Перегородка между кабинетом и гостиной слишком толстая- хватит в полкирпича со штукатуркой с обеих сторон (15-16см) Мне кажется у вас все-таки неудобная лестница- я лично знаю 2 случая когда люди летели с лестниц. Какая у вас высота потолков? Делайте 2.7м в чистоте - комфортно. Посилання на коментар Поділитися на інших сайтах More sharing options...
Mentor Опубліковано: 15 лютого 2008 Автор Поділитись Опубліковано: 15 лютого 2008 2Mentor, Можете убрать маленькое окно в гостиной и расширить большое окно в гостиной-съэкономите и мебель легче расставляется(у самой так было) Если нет наружной двери в бойлерную, объедините с/узел 1-го этажа с бойлерной-будет намного просторнее. Под лестницей(входя в нее из тамбура направо) сделайте маленькую скошенную кладовочку для банок и прочего). У вас получается темный коридор на 1 этаже(вообще без дневного света).Сделайте окна(можно глухие) над входной и тамбурной дверями. Окно в бойлерной ненужно велико. Насчет окна в гостинной - на рассмотрении. Спасибо. Бойлерную с с/у обьединять смысла не вижу. Жена пошла стиралку запускать, а мне в туалет на 2 этаж бежать? (Утрирую конечно , но все же) В тамбере, слева под лестницей будет шкаф/кладоффка, на чертеже видно.... Коридор не темный , свет попадает из гостинной(там дверей нет, только проем , и частично из кухни) кроме того теперь планируу в зоне лестницы из стеклоблоков выложить окно не окно, не знаю как назвать... попробую потом нарисовать..... окно в бойлерной скорее всего тож будет из стеклоблоков. Посилання на коментар Поділитися на інших сайтах More sharing options...
Mentor Опубліковано: 15 лютого 2008 Автор Поділитись Опубліковано: 15 лютого 2008 Перегородка между кабинетом и гостиной слишком толстая- хватит в полкирпича со штукатуркой с обеих сторон (15-16см) Мне кажется у вас все-таки неудобная лестница- я лично знаю 2 случая когда люди летели с лестниц. Какая у вас высота потолков? Делайте 2.7м в чистоте - комфортно. Так то оно так, но у меня мелкозаглубленный фундамент, и для жесткости и стойкости к деформациям, скорее всего внутренние поперечные стены тоже буду ложить из термоблоков. Да...лестница, самый больной вопрос, ибо не видел ни у кого из знакомых такой, как инженер понимаю что могу в принципе ее сделать, но..., пока в стадии разработки. Кстати по поводу лестницы буду рад любым рацпредложениям. На первом этаже планирую высоту 2.8, на втором 2.6 Посилання на коментар Поділитися на інших сайтах More sharing options...
Ольга В Опубліковано: 15 лютого 2008 Поділитись Опубліковано: 15 лютого 2008 На 2-м этаже. Окно правое в гостевой(северное) и окно левое в детской- лишние, так как опять, на такой площади будет труднее расставлять мебель. Увеличьте другие окна в этих комнатах. Я думаю, можно сузить коридор 2 этажа на 30-40см(если не будете ставить в коридор какой-нибудь книжный шкаф глубиной 40см во всю стену коридора/гостевой) и за счет этого увеличить с/узел и кладовую. Посилання на коментар Поділитися на інших сайтах More sharing options...
Mentor Опубліковано: 15 лютого 2008 Автор Поділитись Опубліковано: 15 лютого 2008 На 2-м этаже. 1.Окно правое в гостевой(северное) и окно левое в детской- лишние, так как опять, на такой площади будет труднее расставлять мебель. Увеличьте другие окна в этих комнатах. 2.Я думаю, можно сузить коридор 2 этажа на 30-40см(если не будете ставить в коридор какой-нибудь книжный шкаф глубиной 40см во всю стену коридора/гостевой) и за счет этого увеличить с/узел и кладовую. 1. На рассмотрении. Не уверен. 2. Уже сделано. Спасибо. Посилання на коментар Поділитися на інших сайтах More sharing options...
Ольга В Опубліковано: 15 лютого 2008 Поділитись Опубліковано: 15 лютого 2008 Не применяйте стеклоблоки-намного больше света дает обычное стекло. Лестницу, как улучшить без увеличения длины-ширины дома хотя-бы на 50 см или только ширины(по рисунку снизу-вверх) на 1м не знаю. Согласитесь хотя бы на это -увидите как визуально улучшится восприятие детской и с/узла на 2-м этаже и кухни с узлом 1-го этажа и бойлерной. Окна при этом можно оставить какие сейчас-у вас хватает дневного освещения. Посилання на коментар Поділитися на інших сайтах More sharing options...
Ugushka Опубліковано: 15 лютого 2008 Поділитись Опубліковано: 15 лютого 2008 На 2-м этаже. Окно правое в гостевой(северное) и окно левое в детской- лишние, так как опять, на такой площади будет труднее расставлять мебель. Увеличьте другие окна в этих комнатах. Однозначно лишние. Это же: 1. Затраты на окна, 2. Затраты на батареи, 3. дополнительная теплопотеря.. Чтобы вы долго не думали - назовите мне (и себе) плюсы этих окон А вообще - поймете все неудобство, когда сами начнете прорисовывать там мебель Санузел у вас на картинке прорисовался, вот только дома на полу это все у меня не помещается... какие у него размеры - длина и ширина? Относительно объединения бойлерной и санузла - рациональное решение. У большинства из нас санузлы объединены, в них стоит стиралка и я ни разу не слышала, что кто-то ощущает по этому поводу дискомфорт.... Кладовка на втором этаже малоемкая, основное место в ней съедает проход к стеллажам... в ней даже пылесос безболезненно не разместить и глубоко сомневаюсь ,чт отам будет удобно наклониться или присесть на корточки... Посилання на коментар Поділитися на інших сайтах More sharing options...
Mentor Опубліковано: 15 лютого 2008 Автор Поділитись Опубліковано: 15 лютого 2008 Однозначно лишние. Это же: 1. Затраты на окна, 2. Затраты на батареи, 3. дополнительная теплопотеря.. Чтобы вы долго не думали - назовите мне (и себе) плюсы этих окон А вообще - поймете все неудобство, когда сами начнете прорисовывать там мебель Санузел у вас на картинке прорисовался, вот только дома на полу это все у меня не помещается... какие у него размеры - длина и ширина? Относительно объединения бойлерной и санузла - рациональное решение. У большинства из нас санузлы объединены, в них стоит стиралка и я ни разу не слышала, что кто-то ощущает по этому поводу дискомфорт.... Кладовка на втором этаже малоемкая, основное место в ней съедает проход к стеллажам... в ней даже пылесос безболезненно не разместить и глубоко сомневаюсь ,чт отам будет удобно наклониться или присесть на корточки... Попробую обосновать: 1. Затраты на окна ниже, ( ну пускай сопоставимы) с затратами на стеновой материал+ облицовка. 2. тут согласен. 3.Окна с южной , юго-восточной, юго-западной стороны, что есть плюс. Ну и наконец мой последний аргумент: они хоть немного разнообразят фасад, по Вашему варианту у меня вообще осадная башня получится. Вот вчера подсмотрел случайно, на одном особняке два окна сведены к углу дома, ничего себе смотрится. 4. все елементы в туалете соответствуют реальным размерам, Аркон позволяет моделировать елементы мебели и сантехники. Кладовка конечно не шикарная, стелаж присобачил для примера, будет ли он там вообще не знаю, может только пылесосы-ласипеды, коньки, коробки. Последний аргумент- лучше такая, чем никакая. Посилання на коментар Поділитися на інших сайтах More sharing options...
Ugushka Опубліковано: 15 лютого 2008 Поділитись Опубліковано: 15 лютого 2008 Попробую обосновать: gо Вашему варианту у меня вообще осадная башня получится. Вот вчера подсмотрел случайно, на одном особняке два окна сведены к углу дома, ничего себе смотрится. Вот, заговорили о красоте К черту экономию отопления, лучше сэкономим на кладовке? все елементы в туалете соответствуют реальным размерам, Аркон позволяет моделировать елементы мебели и сантехники. Я бы проверила на практике. Санузел меньше, чем 2 кв метра..еще немного "съест" кафель... и там у вас есть все.. . Может, дадите мне таки размеры? а то я не усну ;) Душевая кабина пусть 90 см+дверь около 80 (опустим стеновые промежутки, пусть оно все слиплось) - это уже 1,70... на вторую стену остается около 1,10.. .а там у вас душевая около 90 см, унитаз не меньше 50 см.. еще и тумба... Для меня это - загадка Или вы напутали что-то в заданных размерах санузла .... Последний аргумент- лучше такая, чем никакая. У меня есть другой: "ЛУчше уж никак, вместо "как-нибудь"" 8-) Лучше уж кладовочный шкаф вдоль гостевой и полки в расширенном санузле... Посилання на коментар Поділитися на інших сайтах More sharing options...
Mentor Опубліковано: 15 лютого 2008 Автор Поділитись Опубліковано: 15 лютого 2008 Вот, заговорили о красоте К черту экономию отопления, лучше сэкономим на кладовке? Я бы проверила на практике. Санузел меньше, чем 2 кв метра..еще немного "съест" кафель... и там у вас есть все.. . Может, дадите мне таки размеры? а то я не усну ;) Душевая кабина пусть 90 см+дверь около 80 (опустим стеновые промежутки, пусть оно все слиплось) - это уже 1,70... на вторую стену остается около 1,10.. .а там у вас душевая около 90 см, унитаз не меньше 50 см.. еще и тумба... Для меня это - загадка Или вы напутали что-то в заданных размерах санузла .... У меня есть другой: "ЛУчше уж никак, вместо "как-нибудь"" 8-) Лучше уж кладовочный шкаф вдоль гостевой и полки в расширенном санузле... Ну ей Богу, размеры смотрите, площадь с\у на 2 этаже больше 4 м2, подозреваю, что смотрите на 1 этаж Посилання на коментар Поділитися на інших сайтах More sharing options...
Ugushka Опубліковано: 15 лютого 2008 Поділитись Опубліковано: 15 лютого 2008 Ну ей Богу, размеры смотрите, площадь с\у на 2 этаже больше 4 м2, подозреваю, что смотрите на 1 этаж www.stroimdom.com.ua/forum/attachment.php?attachmentid=3723&d=1203073620 вот тут написано 1,89 наверное, это только отчерченный кусок?))))) Посилання на коментар Поділитися на інших сайтах More sharing options...
Ольга В Опубліковано: 16 лютого 2008 Поділитись Опубліковано: 16 лютого 2008 С каких это пор двойной стеклопакет с отделкой внутренних и внешних откосов, отливом и подоконником стала дешевле глухой стены Термодома. И самое главное мебель вдоль стены с окном не поставить. И что насчет моего предложения увеличить ширину дома на 1м и сделать нормальную лестницу? Посилання на коментар Поділитися на інших сайтах More sharing options...
Инна Опубліковано: 19 лютого 2008 Поділитись Опубліковано: 19 лютого 2008 Захотелось и мне внести свою лепту. Уже въехали в свой дом. 1) лестница- красивая, удобная, если все правильно расчитать, НО очень дорого обойдется в отделке. У самой есть 3 забежные ступени. Обшивку именно этих ступенек прийдется где-то заказывать (дорого). 800мм ширина -узкая. Невозможно ничего занести. 2) Вставьте окно в районе забежных поворотных ступеней. Без окна будет слишком темно и будет постоянное ощущение тунеля. 3) Там, где вход в кухню с коридора, ставьте дверь, или все запахи будут по всему дому, особенно на втором этаже. 4) определитесь по нормам в котельной с окном. Где и какой котел будет висеть. Вы писали, что турбо. Это значит труба через стену. Мне отступали от окна порядка 50-60 см. У вас в котельной отступать некуда. С окнами вроде все окей. В кухне окно ни в коем случае не должно быть на противоположной стене от рабочей поверхности. 5) в С\у на 1-м эт. у вас влезит только унитаз. Умывальник вам прилепить негде...Уменьшайте бойлерную. Либо котел на кухню, и большой с\у. 6) Полный маразм с тамбуром. Объясните его функциональность. Я бы посоветовала вам пристроить небольшой эркерчик перед входом. Посилання на коментар Поділитися на інших сайтах More sharing options...
Ugushka Опубліковано: 19 лютого 2008 Поділитись Опубліковано: 19 лютого 2008 З В кухне окно ни в коем случае не должно быть на противоположной стене от рабочей поверхности. Почему? Посилання на коментар Поділитися на інших сайтах More sharing options...
Mentor Опубліковано: 20 лютого 2008 Автор Поділитись Опубліковано: 20 лютого 2008 Захотелось и мне внести свою лепту. Уже въехали в свой дом. 1) лестница- красивая, удобная, если все правильно расчитать, НО очень дорого обойдется в отделке. У самой есть 3 забежные ступени. Обшивку именно этих ступенек прийдется где-то заказывать (дорого). 800мм ширина -узкая. Невозможно ничего занести. 2) Вставьте окно в районе забежных поворотных ступеней. Без окна будет слишком темно и будет постоянное ощущение тунеля. 3) Там, где вход в кухню с коридора, ставьте дверь, или все запахи будут по всему дому, особенно на втором этаже. 4) определитесь по нормам в котельной с окном. Где и какой котел будет висеть. Вы писали, что турбо. Это значит труба через стену. Мне отступали от окна порядка 50-60 см. У вас в котельной отступать некуда. С окнами вроде все окей. 5) в С\у на 1-м эт. у вас влезит только унитаз. Умывальник вам прилепить негде...Уменьшайте бойлерную. Либо котел на кухню, и большой с\у. 6) Полный маразм с тамбуром. Объясните его функциональность. Я бы посоветовала вам пристроить небольшой эркерчик перед входом. 1.Лестница будет -самострой, отделка тоже( никаким там махогоном или тиком отделывать не буду, скорее всего просто ламинат) С чего взяли что 80 см? Девушкииииии, вы чертеж читать умеете?. Ширина как минимум 91 см(+- см). 2. Согласен. В этой зоне будет окошко\не окошко из стеклоблоков. 3. Ой сколько копий на эту тему поламали.... на первоначальном этапе будет проем, прямоугольный, если будет дискомфорт- дверь вставим. 4.Ни от чего отступать не буду, норм придерживаться тоже т.к. котелбудет не дымоходный( именно к нему и помещению где он находится предьявляются требования по кубатере, наличию отдельного входа, окна....) "В кухне окно ни в коем случае не должно быть на противоположной стене от рабочей поверхности. " - абсолютно непонятная логика. Наоборот при таком расположении окна создаются идеальные условия для вытяжки. ( может поэтому у вас запах из кухни идет по всей хате:D 5.Рукомойник влезет, спецом для него будет сделана ниша в сторону кухни или болерной. Завтра может выложу рисунок. 6. А это вообще, извините,...... я например считаю маразмом пристройку эркера-тамбура. Какие Ваши основания? Или Вы приверженница остекленных веранд, а-ля калифорния?на пол фасада? Посилання на коментар Поділитися на інших сайтах More sharing options...
Mentor Опубліковано: 20 лютого 2008 Автор Поділитись Опубліковано: 20 лютого 2008 Ну, вот теперь немнога доработал с/у и бойлерную на первом этаже. Посилання на коментар Поділитися на інших сайтах More sharing options...
Инна Опубліковано: 20 лютого 2008 Поділитись Опубліковано: 20 лютого 2008 Mentor, я ни в коем случае не хотела вас обидеть.... Просто все мои замечания сделаны из собственного опыта. У нас тоже очень бюджетное строительство.Все чертили и проектировали сами. Теперь как говориться пожинаем бока, которые напороли.... У нас лестница буквой Г сделана. На повороте забежные ступени. Сделали метал каркас, который не заливали бетоном (сейчас жалею). Этот каркас теперь нужно обшить деревом. В НЛ есть готовые ступени и подступенки, а вот забежных нет. Какой вы планируете каркас? Ширина нашей лестница 80 см. Ходить - места хватает. А вот занести на 2-й эт. листы ГК у нас не получилось. Я внимательно смотрела ваши чертежи. Так там место под лестницу 1.94 м. Теперь отнимите ширину перестенка, который у вас нарисован между пролетами и сантиметры на отделку стен плюс перила, или будете за стены держаться? Ну и какая у вас получается ширина? По поводу окна на кухне... если окно расположено напротив раб. поверхности, то хозяйке будет не удобно готовить, потому что свет будет падать ей в спину и отдавать тень на раб поверхность, особенно днем (подсветка лампочками днем ничего не даст ), соответственно очень плохо видно, что происходит под руками. Поэтому свет должен падать сбоку или спереди. Просто если не верите, проведите с женой эксперимент. А вот по поводу тамбура. Дело ни в наличии или отсутствии эркера. Просто у вас на плане он не продуманый. Просто наложите план второго этажа на первый и ответье: куда делся перестенок между пролетами лестницы на втором этаже. Будете тянуть его до потолка 2-го этажа или он у вас закончится посередине, тогда как он будет смотреться со второго этажа? Дальше, какую функцию у вас будет выполнять тамбур? В вашем исполнении он должен хорошо отапливаться. Не могу понять ситуацию с перестенком, отделяющим тамбур. Где он у вас заканчивается? Посилання на коментар Поділитися на інших сайтах More sharing options...
Ugushka Опубліковано: 20 лютого 2008 Поділитись Опубліковано: 20 лютого 2008 Ну, вот теперь немнога доработал с/у и бойлерную на первом этаже. А, если дверь в санузел открывать не внутрь санузла, а наружу, то можно умывальник для рук небольшой и так было поместить Посилання на коментар Поділитися на інших сайтах More sharing options...
Mentor Опубліковано: 20 лютого 2008 Автор Поділитись Опубліковано: 20 лютого 2008 Mentor, я ни в коем случае не хотела вас обидеть.... Просто все мои замечания сделаны из собственного опыта. У нас тоже очень бюджетное строительство.Все чертили и проектировали сами. Теперь как говориться пожинаем бока, которые напороли.... У нас лестница буквой Г сделана. На повороте забежные ступени. Сделали метал каркас, который не заливали бетоном (сейчас жалею). Этот каркас теперь нужно обшить деревом. В НЛ есть готовые ступени и подступенки, а вот забежных нет. Какой вы планируете каркас? Ширина нашей лестница 80 см. Ходить - места хватает. А вот занести на 2-й эт. листы ГК у нас не получилось. Я внимательно смотрела ваши чертежи. Так там место под лестницу 1.94 м. Теперь отнимите ширину перестенка, который у вас нарисован между пролетами и сантиметры на отделку стен плюс перила, или будете за стены держаться? Ну и какая у вас получается ширина? По поводу окна на кухне... если окно расположено напротив раб. поверхности, то хозяйке будет не удобно готовить, потому что свет будет падать ей в спину и отдавать тень на раб поверхность, особенно днем (подсветка лампочками днем ничего не даст ), соответственно очень плохо видно, что происходит под руками. Поэтому свет должен падать сбоку или спереди. Просто если не верите, проведите с женой эксперимент. А вот по поводу тамбура. Дело ни в наличии или отсутствии эркера. Просто у вас на плане он не продуманый. Просто наложите план второго этажа на первый и ответье: куда делся перестенок между пролетами лестницы на втором этаже. Будете тянуть его до потолка 2-го этажа или он у вас закончится посередине, тогда как он будет смотреться со второго этажа? Дальше, какую функцию у вас будет выполнять тамбур? В вашем исполнении он должен хорошо отапливаться. Не могу понять ситуацию с перестенком, отделяющим тамбур. Где он у вас заканчивается? Да...наконец ...ждал этого вопроса. Перестенок между пролетами - это просто стенка-перегородка повторяющая подьем лестницы. Когда рисовал, еще не умел стены скашивать, теперь на досуге исправлю. Насчет того как будет смотреться: а не знаю :D у меня будет второй свет. Что значит какую фунцию выполняет тамбур? Зайти, снять обувь, верхнюю одежду,( под лестницей , если заметили, будет шкаф) при этом не запустив холодный воздух в помещение. Насчет отопления не согласен, отапливать не буду, в таьбуре будет держаться средняя температура, а вот если вынести его за контур дома, тогда по Вашему как? не надо отапливать или Вы наоборот считаете пусть будет холодильник...вот в Вашем варианте как раз такая история Посилання на коментар Поділитися на інших сайтах More sharing options...
Рекомендовані повідомлення
Створіть акаунт або увійдіть у нього для коментування
Ви маєте бути користувачем, щоб залишити коментар
Створити акаунт
Зареєструйтеся для отримання акаунта. Це просто!
Зареєструвати акаунтУвійти
Вже зареєстровані? Увійдіть тут.
Увійти зараз