Инна Опубліковано: 20 лютого 2008 Поділитись Опубліковано: 20 лютого 2008 :D Начнем сначала... Перестенок между пролетами - это просто стенка-перегородка повторяющая подьем лестницы. Когда рисовал, еще не умел стены скашивать, теперь на досуге исправлю. Насчет того как будет смотреться: а не знаю :D у меня будет второй свет. Из чего будет сделана стенка-перегородка? Что вы подразумеваете под вторым светом? По планам у вас обычный лестничный проем и никакого второго света я не увидела. Второй свет- это когда, например, в гостинной потолком является потолок 2-го этажа. Что значит какую фунцию выполняет тамбур? Зайти, снять обувь, верхнюю одежду,( под лестницей , если заметили, будет шкаф) при этом не запустив холодный воздух в помещение. Шкаф я заметила. Теперь поэтапно... Шкаф, я так понимаю, будет под пролетом который подним. на 2-й этаж (примыкающий к наружной стене). Пролет, с которого начинается подъем, будет зашит перестенком? А теперь итог: 1)Потеря почти 2-х м.кв площади под этим пролетом. 2) нет проветривания и у вас там сразу же появится сырость. Насчет отопления не согласен, отапливать не буду, в таьбуре будет держаться средняя температура, а вот если вынести его за контур дома, тогда по Вашему как? не надо отапливать или Вы наоборот считаете пусть будет холодильник...вот в Вашем варианте как раз такая история Средняя температура может и будет держаться...Но, чтобы что-то говорить, нужно знать из чего будет сделан перестенок. Но думаю, что плесень станет хозяйкой тамбура. И, пожалуйста, не воспринимайте сразу мои слова категорично. Просто выложите планы и задайте этот вопрос (касательно тамбура и лестницы) в основном форуме. Там есть профи по строительству. Думаю они вам 100% помогут. Просто обидно будет, если вдруг сделаете ошибку. Посилання на коментар Поділитися на інших сайтах More sharing options...
vasso Опубліковано: 21 лютого 2008 Поділитись Опубліковано: 21 лютого 2008 Какая длина балок перекрытия? Посилання на коментар Поділитися на інших сайтах More sharing options...
Mentor Опубліковано: 22 лютого 2008 Автор Поділитись Опубліковано: 22 лютого 2008 Какая длина балок перекрытия? 4.15 m (Балка 50*200)- планируется, не знаю какую удасца дастать, когда дело ближе подойдет , разведаю номенклатуру и подберу по таблицам расчета балки Посилання на коментар Поділитися на інших сайтах More sharing options...
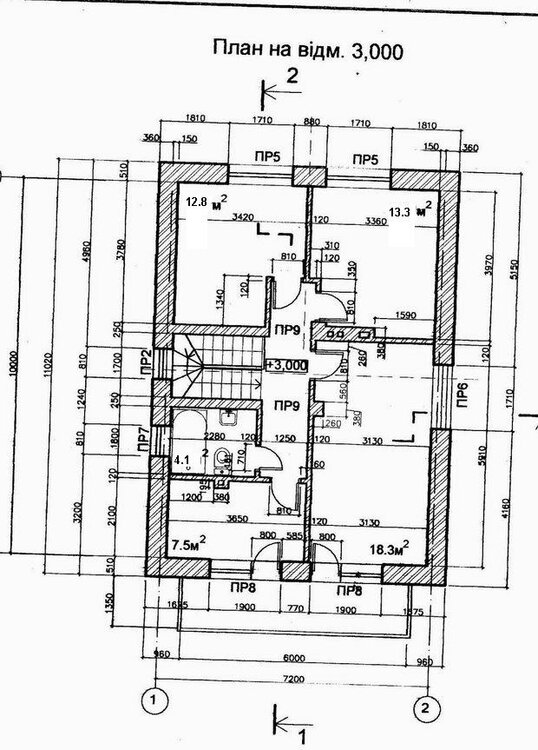
gambrina Опубліковано: 22 лютого 2008 Поділитись Опубліковано: 22 лютого 2008 Вот наконец-то отсканила поэтажные планы дома. Извиняюсь, что так долго не выкладывала. при строительстве мы немного изменили план второго этажа, посредине сделали несущую стену в 20 см и немножко ее сместили,буквально на 10-15 см, теперь правая детская спальня правильной формы. Посилання на коментар Поділитися на інших сайтах More sharing options...
Рекомендовані повідомлення
Створіть акаунт або увійдіть у нього для коментування
Ви маєте бути користувачем, щоб залишити коментар
Створити акаунт
Зареєструйтеся для отримання акаунта. Це просто!
Зареєструвати акаунтУвійти
Вже зареєстровані? Увійдіть тут.
Увійти зараз