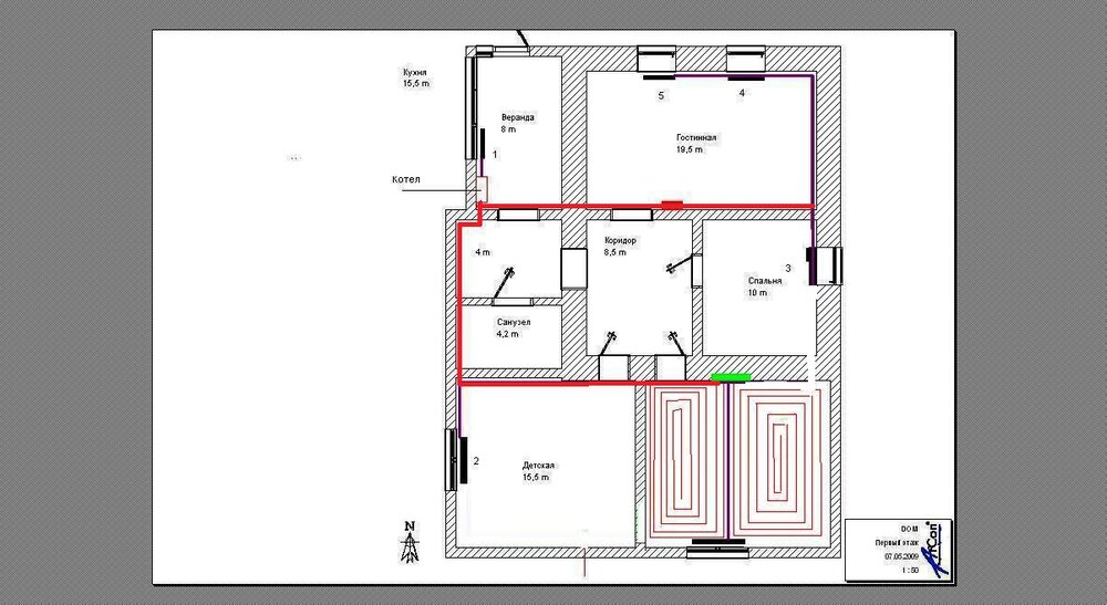
invalder Опубліковано: 4 жовтня 2010 Поділитись Опубліковано: 4 жовтня 2010 Будет ли разница в работе схем отопления? В кухне теплый пол 2 контура ~50м. Магистраль ППР 25. И попутный вопрос - стоит ли прятать ППР "Розма" в бетон(пол)? Как она по качеству? Посилання на коментар Поділитися на інших сайтах More sharing options...
Interso Опубліковано: 4 жовтня 2010 Поділитись Опубліковано: 4 жовтня 2010 Будет ли разница в работе схем отопления? В кухне теплый пол 2 контура ~50м. Магистраль ППР 25. И попутный вопрос - стоит ли прятать ППР "Розма" в бетон(пол)? Как она по качеству? Два по 50 будет лучше чем один на 100. Прячте только утеплитель оденьте. По качеству неплохая. Чем будете регулировать температуру теплоносителя в ТП?? Посилання на коментар Поділитися на інших сайтах More sharing options...
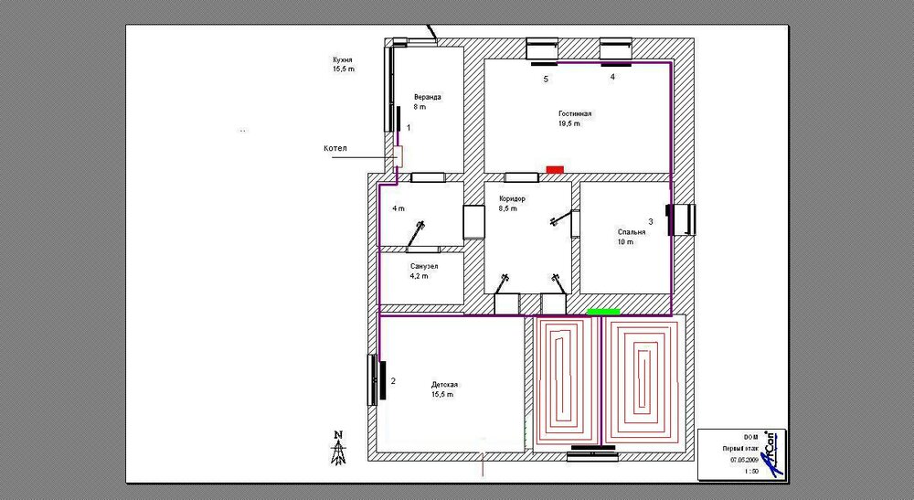
invalder Опубліковано: 4 жовтня 2010 Автор Поділитись Опубліковано: 4 жовтня 2010 А разница между схемами разводки есть? в первом варианте магистраль идет вдоль наружной стены, а во втором варианте вдоль внутренней(фиолетовая линия) Посилання на коментар Поділитися на інших сайтах More sharing options...
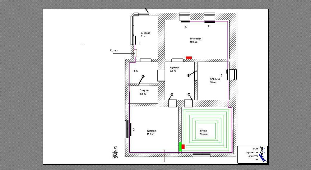
Interso Опубліковано: 4 жовтня 2010 Поділитись Опубліковано: 4 жовтня 2010 Будет ли разница в работе схем отопления? В кухне теплый пол 2 контура ~50м. Магистраль ППР 25. И попутный вопрос - стоит ли прятать ППР "Розма" в бетон(пол)? Как она по качеству? А разница между схемами разводки есть? в первом варианте магистраль идет вдоль наружной стены, а во втором варианте вдоль внутренней(фиолетовая линия) Без разницы,ваша магистраль будет под утеплителем. В любом случае второй вариант лучше, но я бы пустил трубу вот так. Посилання на коментар Поділитися на інших сайтах More sharing options...
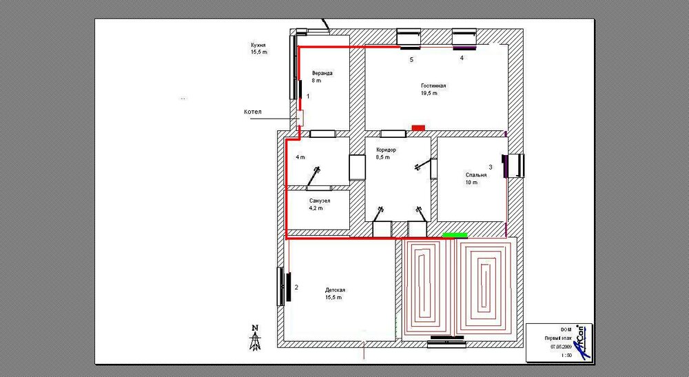
B.S.V. Опубліковано: 4 жовтня 2010 Поділитись Опубліковано: 4 жовтня 2010 Будет ли разница в работе схем отопления? В кухне теплый пол 2 контура ~50м. Магистраль ППР 25. 2 схема предпочтительней, но я бы делал так. Посилання на коментар Поділитися на інших сайтах More sharing options...
invalder Опубліковано: 4 жовтня 2010 Автор Поділитись Опубліковано: 4 жовтня 2010 Спасибо за варианты, но переделка отопления затеяна для подключения деской и кухни с ТП ,они достроены в прошлом году. Под отопление оставлял штробы когда заливал полы. В остальных комнатах уже есть деревянные полы. Посилання на коментар Поділитися на інших сайтах More sharing options...
Рекомендовані повідомлення
Створіть акаунт або увійдіть у нього для коментування
Ви маєте бути користувачем, щоб залишити коментар
Створити акаунт
Зареєструйтеся для отримання акаунта. Це просто!
Зареєструвати акаунтУвійти
Вже зареєстровані? Увійдіть тут.
Увійти зараз