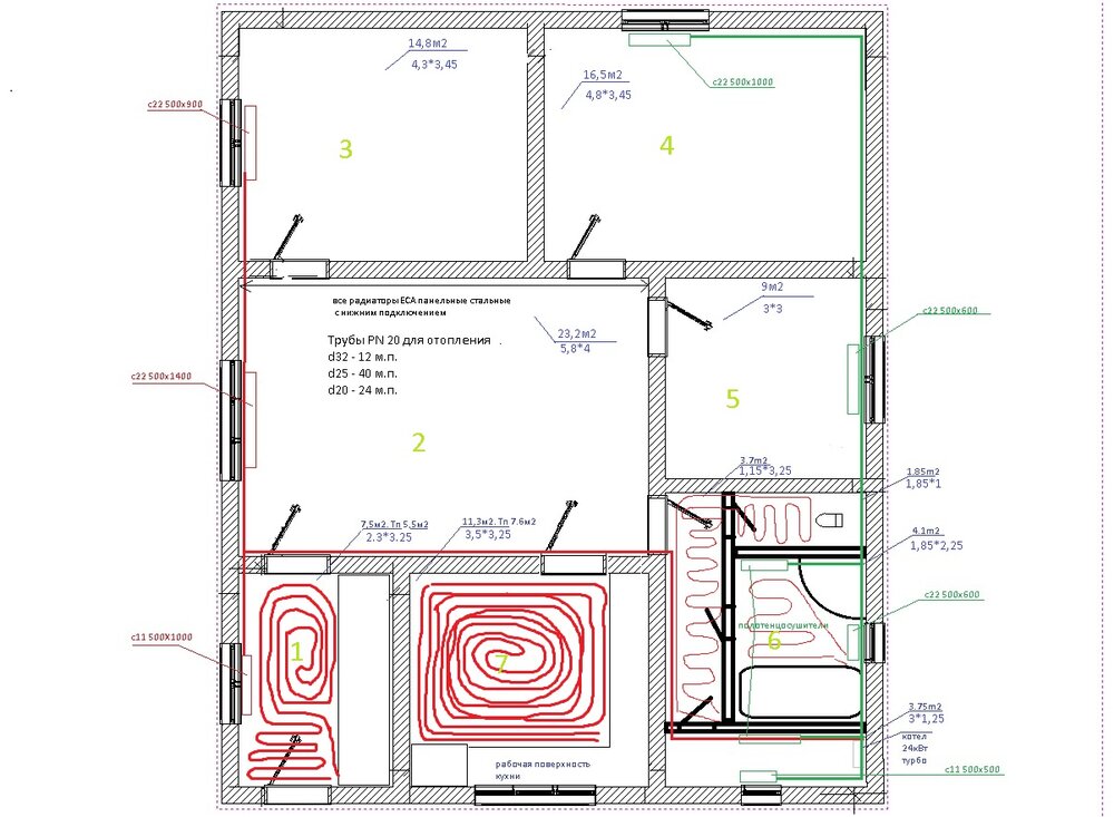
HOMEKOT Опубліковано: 18 жовтня 2010 Поділитись Опубліковано: 18 жовтня 2010 Вводная. Термодом 10 на 12. Окна м.п с двойными стеклопакетами. Составляю схемку отполения - радаторы + ТП. Укажите на неточности и ляпы. Сам в этой среде не специалист, но хотелось бы разобраться Сразу же вопросы о том, что меня волнует. 1. В комнате 7 (кухня) нету места для радиатора, только ТП. Хватит ли его мощности для комфорта ? 2. Правильна ли схема коллектора ? 3. Правильно ли я уложил ТП ? 4. Стоит ли полотенцесушитель в котельной повесить на "красную" ветку отопления. (Сейчас оба на "зеленой") 5. Подскажите диаметры труб на отрезках З.Ы. Какова примерная стоимось всей работы ? Пока планирую делать сам , для экономии финансов. Есть с этим сложности ? Или все таки искать спецов ? Что-то мне подсказывает что это обойдется в кругленькую сумму Заранее благодарен. Посилання на коментар Поділитися на інших сайтах More sharing options...
Теплотехник Опубліковано: 18 жовтня 2010 Поділитись Опубліковано: 18 жовтня 2010 Вводная. Термодом 10 на 12. Окна м.п с двойными стеклопакетами. Составляю схемку отполения - радаторы + ТП. Укажите на неточности и ляпы. Сам в этой среде не специалист, но хотелось бы разобраться Сразу же вопросы о том, что меня волнует. 1. В комнате 7 (кухня) нету места для радиатора, только ТП. Хватит ли его мощности для комфорта ? 2. Правильна ли схема коллектора ? 3. Правильно ли я уложил ТП ? 4. Стоит ли полотенцесушитель в котельной повесить на "красную" ветку отопления. (Сейчас оба на "зеленой") 5. Подскажите диаметры труб на отрезках З.Ы. Какова примерная стоимось всей работы ? Пока планирую делать сам , для экономии финансов. Есть с этим сложности ? Или все таки искать спецов ? Что-то мне подсказывает что это обойдется в кругленькую сумму Заранее благодарен. 1. С тёплого пола можно снять максимум 200-300 Вт/кв. м. Если дверь в помещение 2 будет открыта, то думаю будет нормально... 2. Вам там коллектор без надобности. Можно тройниками развязаться (будет дешевле), а на тёплый пол поставьте коллектор с насосной группой. Кстати где стоит коллектор тёплого пола? 3.В туалете как то не нравиться мне. 4. А зачем Вам полотенцесушитель в топочной? Радиатор в топочной тоже можно на красную ветку вешать... 5.Подводы к радиаторам 20 мм. Под котлом делайте 32-й трубой, а дальше перейдёте на 25-ю, последние радиаторы в ветке можно тоже 20-й трубой подключать... Посилання на коментар Поділитися на інших сайтах More sharing options...
HOMEKOT Опубліковано: 18 жовтня 2010 Автор Поділитись Опубліковано: 18 жовтня 2010 1. С тёплого пола можно снять максимум 200-300 Вт/кв. м. Если дверь в помещение 2 будет открыта, то думаю будет нормально... 2. Вам там коллектор без надобности. Можно тройниками развязаться (будет дешевле), а на тёплый пол поставьте коллектор с насосной группой. Кстати где стоит коллектор тёплого пола? 3.В туалете как то не нравиться мне. 4. А зачем Вам полотенцесушитель в топочной? Радиатор в топочной тоже можно на красную ветку вешать... 5.Подводы к радиаторам 20 мм. Под котлом делайте 32-й трубой, а дальше перейдёте на 25-ю, последние радиаторы в ветке можно тоже 20-й трубой подключать... отправил ЛС. Посилання на коментар Поділитися на інших сайтах More sharing options...
ts3 Опубліковано: 18 жовтня 2010 Поділитись Опубліковано: 18 жовтня 2010 3. Правильно ли я уложил ТП ? З.Ы. Что-то мне подсказывает что это обойдется в кругленькую сумму в каридоре почему бы Вам не пустить трубы с расчитанным шагом в длину коридора, что б не делать столько изгибов? Стоить будет, как работа квалифицированных специалистов Посилання на коментар Поділитися на інших сайтах More sharing options...
HOMEKOT Опубліковано: 18 жовтня 2010 Автор Поділитись Опубліковано: 18 жовтня 2010 в каридоре почему бы Вам не пустить трубы с расчитанным шагом в длину коридора, что б не делать столько изгибов? Стоить будет, как работа квалифицированных специалистов За коридор спс учту. Ну я пока в раздумях про спецов Если сговориться по цене то почему бы и нет ? Посилання на коментар Поділитися на інших сайтах More sharing options...
Korni Опубліковано: 18 жовтня 2010 Поділитись Опубліковано: 18 жовтня 2010 1. С тёплого пола можно снять максимум 200-300 Вт/кв. м. ....... Может, подредактируешь? ;) Посилання на коментар Поділитися на інших сайтах More sharing options...
B.S.V. Опубліковано: 18 жовтня 2010 Поділитись Опубліковано: 18 жовтня 2010 1. С тёплого пола можно снять максимум 200-300 Вт/кв. м. Многовато будет, если конечно не жарить яичницу. Посилання на коментар Поділитися на інших сайтах More sharing options...
Теплотехник Опубліковано: 18 жовтня 2010 Поділитись Опубліковано: 18 жовтня 2010 1. С тёплого пола можно снять максимум 200-300 Вт/кв. м. Ой ой ой... Что то я психанул... до 80-100 Вт Посилання на коментар Поділитися на інших сайтах More sharing options...
Рекомендовані повідомлення
Створіть акаунт або увійдіть у нього для коментування
Ви маєте бути користувачем, щоб залишити коментар
Створити акаунт
Зареєструйтеся для отримання акаунта. Це просто!
Зареєструвати акаунтУвійти
Вже зареєстровані? Увійдіть тут.
Увійти зараз