kleo_k Опубліковано: 28 липня 2012 Поділитись Опубліковано: 28 липня 2012 Как понял при высоте 2.35-2.40 дверного проема в гараж - влезет 95% автомобилей. Также необходимо заложить размер перемычки от дверного проема до потолка 0.21 - 0.31. Посилання на коментар Поділитися на інших сайтах More sharing options...
Bugor_75 Опубліковано: 28 липня 2012 Поділитись Опубліковано: 28 липня 2012 Также необходимо заложить размер перемычки от дверного проема до потолка 0.21 - 0.31. Мне продавцы ворот говорили оптимально заложить расстояние 0,35 - 0,4 м Посилання на коментар Поділитися на інших сайтах More sharing options...
kleo_k Опубліковано: 28 липня 2012 Поділитись Опубліковано: 28 липня 2012 Мне продавцы ворот говорили оптимально заложить расстояние 0,35 - 0,4 м Это, навоное, для широких ворот на 2 машины рекомендовали. Для промышленных минимальный размер рекомендуется 0.31. Вроде так. Посилання на коментар Поділитися на інших сайтах More sharing options...
AlexDn Опубліковано: 29 липня 2012 Поділитись Опубліковано: 29 липня 2012 Видел гараж со стелажами и окнами! Очень неплохо. Посилання на коментар Поділитися на інших сайтах More sharing options...
Taras 1771 Опубліковано: 22 квітня 2013 Поділитись Опубліковано: 22 квітня 2013 Недавно рассчитывал разницу в цене двух вариантов (гараж на два авто): 1. Два проема шириной 2500 мм. 2. Один проем 5000 мм. Разница около 500 Евро (Одни большие ворота дешевле). Это можно учесть при проектировании гаража. Добавлено через 14 минут Какую посоветуете высоту дверного проема и высоту потолка гаража, если планируется гараж на 2 автомобиля с двумя воротами, чтобы на перспективу хватило? Дверной проем обычно 1000х2100 мм. Высота потолка гаража расчитывается просто: Высота проема ворот (если не планируется джип с фонарями, багажником, антеннами или пулеметами на крыше) 2250 мм. От конца проема по высоте до потолка от 210 мм. Соответственно - 2250+210=2460 мм. (Это самый минимум). Многие делают внутри потолки повыше (у разных людей разное мировосприятие). В таком случае нужно позаботиться о креплении ворот к потолку. Вариант 1: ворота с высокими направляющими (удорожание конструкции). Вариант 2: Предусмотреть закладные внутри гаража для крепления кроншейнов ворот (тоже удорожание конструкции). Посилання на коментар Поділитися на інших сайтах More sharing options...
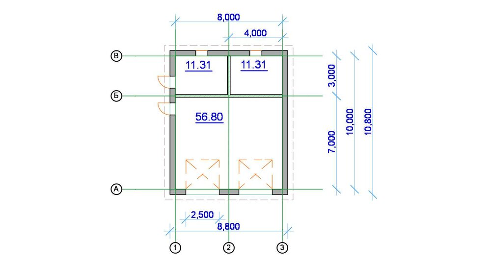
Taras 1771 Опубліковано: 22 квітня 2013 Поділитись Опубліковано: 22 квітня 2013 Например, так: Посилання на коментар Поділитися на інших сайтах More sharing options...
Leon Опубліковано: 30 квітня 2013 Поділитись Опубліковано: 30 квітня 2013 Читав-читав.. думав-думав.. Вирішив накидати гараж на два авто + 2 госп. приміщення з розмірами. Підкажіть, що збільшити/зменшити, щоб гараж був комфортним. Дякую! Посилання на коментар Поділитися на інших сайтах More sharing options...
kleo_k Опубліковано: 30 квітня 2013 Поділитись Опубліковано: 30 квітня 2013 Leon, немного бы ворота увеличить, чтобы меньше маневров в гараже делать или сделать 2 проема. В идеале лучше избегать маневров в гараже. 3 Посилання на коментар Поділитися на інших сайтах More sharing options...
Leon Опубліковано: 30 квітня 2013 Поділитись Опубліковано: 30 квітня 2013 Leon, немного бы ворота увеличить, чтобы меньше маневров в гараже делать или сделать 2 проема. В идеале лучше избегать маневров в гараже. Над воротами я думаю.. більше схиляюсь до двох по 2,5 метри. А щодо внутрішніх розмірів? достатньо комфортно буде відчиняти двері і обходити автомобілі? Посилання на коментар Поділитися на інших сайтах More sharing options...
kleo_k Опубліковано: 30 квітня 2013 Поділитись Опубліковано: 30 квітня 2013 Над воротами я думаю.. більше схиляюсь до двох по 2,5 метри. А щодо внутрішніх розмірів? достатньо комфортно буде відчиняти двері і обходити автомобілі? Прикиньте габариты автомобилей на перспективу. При ширине 2.5 метра придется в дверной проем целяться. Я бы немного шире сделал ворота и сделал бы поменьше между ними расстояние, чтобы больше места было по сторонам (для полок и т.п.) Посилання на коментар Поділитися на інших сайтах More sharing options...
Taras 1771 Опубліковано: 30 квітня 2013 Поділитись Опубліковано: 30 квітня 2013 Читав-читав.. думав-думав.. Вирішив накидати гараж на два авто + 2 госп. приміщення з розмірами. Підкажіть, що збільшити/зменшити, щоб гараж був комфортним. Дякую! Я б теж збільшив ширину воріт до 5000 мм. Вартість одних воріт 5000 мм с автоматикою менша приблизно на 500 Євро від двох воріт 2500 мм. 1 Посилання на коментар Поділитися на інших сайтах More sharing options...
Leon Опубліковано: 30 квітня 2013 Поділитись Опубліковано: 30 квітня 2013 Я б теж збільшив ширину воріт до 5000 мм. Вартість одних воріт 5000 мм с автоматикою менша приблизно на 500 Євро від двох воріт 2500 мм. Зробив 5-метрові ворота. Якщо до внутрішніх розмірів гаража претензій немає, то буду зупинятись на цьому варіанті і думати над тим, як робити перекриття при 8 метрах.. які тут поради? двутавр кинути? Посилання на коментар Поділитися на інших сайтах More sharing options...
Taras 1771 Опубліковано: 30 квітня 2013 Поділитись Опубліковано: 30 квітня 2013 Якщо до внутрішніх розмірів гаража претензій немає, залишилися невідомі розміри - висота перемички, висота воріт. Добавлено через 4 минуты Якщо до внутрішніх розмірів гаража претензій немає, то буду зупинятись на цьому варіанті і думати над тим, як робити перекриття при 8 метрах.. які тут поради? двутавр кинути? Це питання більш до професійних будівельників. Ще буде не зайвим знати конфігурацію стелі. Там потрібно буде розмістити закладні для кріплення горизонтальних направляючих та автоматики. Посилання на коментар Поділитися на інших сайтах More sharing options...
Leon Опубліковано: 30 квітня 2013 Поділитись Опубліковано: 30 квітня 2013 залишився один невідомий розмір - висота перемички. Мається на увазі перемичка над воротами? Ну судячи з порад, що були раніше - від верхньої точки воріт, до стелі буде сантиметрів 40. Вистачить? Посилання на коментар Поділитися на інших сайтах More sharing options...
Taras 1771 Опубліковано: 30 квітня 2013 Поділитись Опубліковано: 30 квітня 2013 Мається на увазі перемичка над воротами? Ну судячи з порад, що були раніше - від верхньої точки воріт, до стелі буде сантиметрів 40. Вистачить? Так. Чудово Добавлено через 2 минуты Ще потрібно буде встановити розетку у місці монтажу автоматики. А ще, якщо забажаєте керувати воротами окрім пульта клавішним вимикачем на стіні - протягнути кабель від місця монтажу приводу до місця монтажу кнопки (ПВС 2х0,75). Посилання на коментар Поділитися на інших сайтах More sharing options...
Leon Опубліковано: 30 квітня 2013 Поділитись Опубліковано: 30 квітня 2013 Taras 1771, дякую за діалог! Тепер буду звертатись до конструктора. Посилання на коментар Поділитися на інших сайтах More sharing options...
Taras 1771 Опубліковано: 30 квітня 2013 Поділитись Опубліковано: 30 квітня 2013 Taras 1771, дякую за діалог! Тепер буду звертатись до конструктора. Не ма за що. Питайте якщо виникне потреба. Посилання на коментар Поділитися на інших сайтах More sharing options...
crazyvz Опубліковано: 10 травня 2013 Поділитись Опубліковано: 10 травня 2013 у меня гараж пристроен к дому, размеры 11х3.5м (планировалось 11х4.5м, шире не позволил участок, пришлось 1м от границы отступить), 2 машины гуськом встают норм. Посилання на коментар Поділитися на інших сайтах More sharing options...
vbb Опубліковано: 19 червня 2013 Поділитись Опубліковано: 19 червня 2013 Зробив 5-метрові ворота. Якщо до внутрішніх розмірів гаража претензій немає, то буду зупинятись на цьому варіанті і думати над тим, як робити перекриття при 8 метрах.. які тут поради? двутавр кинути? Я построил примерно такой же гараж, но с двумя воротами 3*2.30, это практичнее. по поводу перекрытия - с родственником -строителем, придумали "know-how": сварная ферма. Внутренний размер самого гаража 7.80*7.40, все строение по наруже 8*12 1 Посилання на коментар Поділитися на інших сайтах More sharing options...
Taras 1771 Опубліковано: 19 червня 2013 Поділитись Опубліковано: 19 червня 2013 Когда будете штукатурить стены в гараже - не забудьте запаковать ворота в пленку. Иначе можно привести в негодность. 1 Посилання на коментар Поділитися на інших сайтах More sharing options...
vbb Опубліковано: 19 червня 2013 Поділитись Опубліковано: 19 червня 2013 Та уже все поштукатурено и покрашено, 2 года - полет нормальный ))) вот только пол неделю назад залили, на всякий случай, заложил трубы "теплого пола", собираюсь покрасить "жидким пластиком" от Fiedal Посилання на коментар Поділитися на інших сайтах More sharing options...
sa1uk Опубліковано: 22 вересня 2015 Поділитись Опубліковано: 22 вересня 2015 У меня 5,5 м. на 3,4 м.как думаете на машину среднего класса не очень стеснительно?Изменить уже нельзя,залил фундамент,но если у кого есть опыт по использованию таких размеров гаража,буду признателен за ответ. Посилання на коментар Поділитися на інших сайтах More sharing options...
Lider26 Опубліковано: 25 листопада 2019 Поділитись Опубліковано: 25 листопада 2019 Доброго времени суток! Долго собирался построить гараж, но постоянно были проблемы с финансами. Тогда купил убитый контейнер по цене – ниже металлолома и сделал компактный гараж из него. Интересно узнать мнение профессионалов, а так же может комуто это пригодится. Вот видео : Посилання на коментар Поділитися на інших сайтах More sharing options...
DimaF Опубліковано: 27 листопада 2019 Поділитись Опубліковано: 27 листопада 2019 У меня 5,5 м. на 3,4 м.как думаете на машину среднего класса не очень стеснительно?Изменить уже нельзя,залил фундамент,но если у кого есть опыт по использованию таких размеров гаража,буду признателен за ответ. Бгг) У меня залит фундамент 6.8 на 3.6 (внутри) и смотрю что мало)) Думаю доливать хотя бы по пол метра) Посилання на коментар Поділитися на інших сайтах More sharing options...
andreo Опубліковано: 20 квітня 2020 Поділитись Опубліковано: 20 квітня 2020 Сейчас планирую гараж, и выхожу на минимум 7,5*10. две машины (одна из них 5,2 метра в длину) и место для стеллажа плюс велики и т.д. тоже думаю будет вопрос с перекрытием. где посмотреть стандартные размеры ворот, машина шириной в 2,02 м это ворота минимум 3 м, вторые для обычной легковушки Посилання на коментар Поділитися на інших сайтах More sharing options...
Рекомендовані повідомлення
Створіть акаунт або увійдіть у нього для коментування
Ви маєте бути користувачем, щоб залишити коментар
Створити акаунт
Зареєструйтеся для отримання акаунта. Це просто!
Зареєструвати акаунтУвійти
Вже зареєстровані? Увійдіть тут.
Увійти зараз