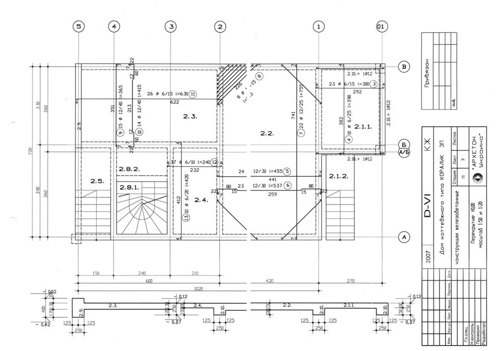
nazar_ko Опубліковано: 19 жовтня 2010 Поділитись Опубліковано: 19 жовтня 2010 Допоможіть розібратися зі схемою армування перекриття. Питання наразі не стоїть як армувати і особисто я не питаю такої поради, а лише пояснення наявної схеми. Дякую за розуміння. У атачменті два малюнки: на першому власне схема цілого поверху та на другому вирізаний кусочок що мене цікавить. Хочу наперед сказати що на малюнках є вертикальний розрив - це результат неякісного сканування. На другому малюнку бачимо дві арматури під номерами 5 та 6. З арматурою 5 майже все ясно - нитка арматури лежить у нижньому шарі бетону і працює на розтяг, кінці загнуті. Тут перше питання - кінці повинні бути загнуті у вертикальній чи горизонтальній площині? З арматурою 6 ніби здогадуюсь, та хочеться бути впевненим на всі 100%. Отже мої здогади: середня частина арматурної нитки 6 (259 см) лежить у тій же площині що і арматура 5 і зв'язана з нею поздовжньою арматурою і також працює на розтяг. Далі частина арматури (15 см) гнеться, питання - під прямим кутом чи під кутом 45 градусів як на малюнку? Далі частина арматури (80 см) іде у верхньому шарі бетонної плити. Тут треба подумати - якщо у центрі плита хоче прогнутися донизу і розламатися у нижній площині, то у місці опирання плити на стіну вона намагається вигнутися в інший бік і розламатися у верхній площині. Отже ті 80 см тут також працюють на розтяг і саме для цього там запроектовані. Чи правильно я мислю? Поправте якщо не так. Далі кусочок арматури 22 см загнутий донизу і призначений щоб під час провисання плити арматура залишалася на місці і за рахунок роботи її на розтяг утримує плиту від провисання. Та мене не покидає думка що це все я сам придумав і можливо арматура вся лежить в одній площині і гнеться лише горизонтально. Та чомусь тоді я не бачу змісту у цих згинах. Якщо хтось може підтвердити чи спростувати мої здогади прошу допомогти. Посилання на коментар Поділитися на інших сайтах More sharing options...
Мирт Опубліковано: 19 жовтня 2010 Поділитись Опубліковано: 19 жовтня 2010 На другому малюнку бачимо дві арматури під номерами 5 та 6. З арматурою 5 майже все ясно - нитка арматури лежить у нижньому шарі бетону і працює на розтяг, кінці загнуті. Тут перше питання - кінці повинні бути загнуті у вертикальній чи горизонтальній площині? З арматурою 6 ніби здогадуюсь, та хочеться бути впевненим на всі 100%. Отже мої здогади: середня частина арматурної нитки 6 (259 см) лежить у тій же площині що і арматура 5 і зв'язана з нею поздовжньою арматурою і також працює на розтяг. Далі частина арматури (15 см) гнеться, питання - під прямим кутом чи під кутом 45 градусів як на малюнку? Далі частина арматури (80 см) іде у верхньому шарі бетонної плити. У вас по проекту арматура А240С? такие петли делают только для гладкой арматуры. Концы в верх загибайте в нижней арматуре. По поводу арматуры номер 6 вы верно догадались -средняя часть вверху, изгиб 45 градусов. Только ещё нужно её чередовать с нижней так чтобы общий шаг получился между ними 150мм. По чертежу они каждая с шагом 300мм показаны, логично будет если вы их будете чередовать. У вас перекрытие вместе с поясом заливается одновременно, поэтому хвостики 6 арматуры заходят в него. Я бы заменил А240С на А400С или А500С. В рифлёной арматуре загиб на 180 градусов делать нельзя, только лапки под углом 90градусов. Почему в штампе нет подписей? Кто отвечать будет? 1 Посилання на коментар Поділитися на інших сайтах More sharing options...
nazar_ko Опубліковано: 20 жовтня 2010 Автор Поділитись Опубліковано: 20 жовтня 2010 У вас по проекту арматура А240С? такие петли делают только для гладкой арматуры. Концы в верх загибайте в нижней арматуре. В проекті я не знайшов яка то має бути сталь. Згадується лише то, що арматура до 7 мм гладка, а від 8 до 12 мм ребриста. На базі металу де збираюсь купувати арматуру у прайсі написано "Арматура А400-А800". Швидше за все її і буду брати. По поводу арматуры номер 6 вы верно догадались -средняя часть вверху, изгиб 45 градусов. Только ещё нужно её чередовать с нижней так чтобы общий шаг получился между ними 150мм. По чертежу они каждая с шагом 300мм показаны, логично будет если вы их будете чередовать. У вас перекрытие вместе с поясом заливается одновременно, поэтому хвостики 6 арматуры заходят в него. може ви мали на увазі "средняя часть внизу"? далі зі всім написаним погоджуюся. Я бы заменил А240С на А400С или А500С. Так і буде мінімум А400 В рифлёной арматуре загиб на 180 градусов делать нельзя, только лапки под углом 90градусов. За це дякую, та я й смутно собі уявляю як гнути арматуру 12-у в польових умовах. Почему в штампе нет подписей? Кто отвечать будет? Ніхто нічого не заповнював. Як є так і будуюся власними силами. Посилання на коментар Поділитися на інших сайтах More sharing options...
Мирт Опубліковано: 20 жовтня 2010 Поділитись Опубліковано: 20 жовтня 2010 може ви мали на увазі "средняя часть внизу"? далі зі всім написаним погоджуюся. Так і буде мінімум А400 Cорри, да имел ввиду что средняя часть внизу. 12 арматуру с помощью трубы можно гнуть. 1 Посилання на коментар Поділитися на інших сайтах More sharing options...
nazar_ko Опубліковано: 20 жовтня 2010 Автор Поділитись Опубліковано: 20 жовтня 2010 12 арматуру с помощью трубы можно гнуть. справді просто, вроді навіть знав колись та забув. дякую що підказали. Посилання на коментар Поділитися на інших сайтах More sharing options...
Mlyki Опубліковано: 28 червня 2016 Поділитись Опубліковано: 28 червня 2016 Розміром підвальному кімнати 2.2*3.3м. чи достатньо 1 сітки з арматури 10мм. і кроком 15см. щоб залити перекриття монолітне, на ньому буде розміщуватись комірчина. Товщига бетон 10см. Посилання на коментар Поділитися на інших сайтах More sharing options...
Технология Строительства Опубліковано: 28 червня 2016 Поділитись Опубліковано: 28 червня 2016 Розміром підвальному кімнати 2.2*3.3м. чи достатньо 1 сітки з арматури 10мм. і кроком 15см. щоб залити перекриття монолітне, на ньому буде розміщуватись комірчина. Товщига бетон 10см. Я бы сделал ф12 А400С шаг 15х15 см. Лучше толщиной 15 см! Посилання на коментар Поділитися на інших сайтах More sharing options...
Mlyki Опубліковано: 28 червня 2016 Поділитись Опубліковано: 28 червня 2016 Чим краще більша товщина? Посилання на коментар Поділитися на інших сайтах More sharing options...
Технология Строительства Опубліковано: 29 червня 2016 Поділитись Опубліковано: 29 червня 2016 Чим краще більша товщина? ТРЕЩИНОУСТОЙЧИВОСТЬ! + меньше деформаций - оно связанно и так понятно. 1 Посилання на коментар Поділитися на інших сайтах More sharing options...
Mlyki Опубліковано: 29 червня 2016 Поділитись Опубліковано: 29 червня 2016 В мене може вийти макс. 12см. товщина, повяжу сітку, а посередині дам усилення типу ригеля. Посилання на коментар Поділитися на інших сайтах More sharing options...
Рекомендовані повідомлення
Створіть акаунт або увійдіть у нього для коментування
Ви маєте бути користувачем, щоб залишити коментар
Створити акаунт
Зареєструйтеся для отримання акаунта. Це просто!
Зареєструвати акаунтУвійти
Вже зареєстровані? Увійдіть тут.
Увійти зараз