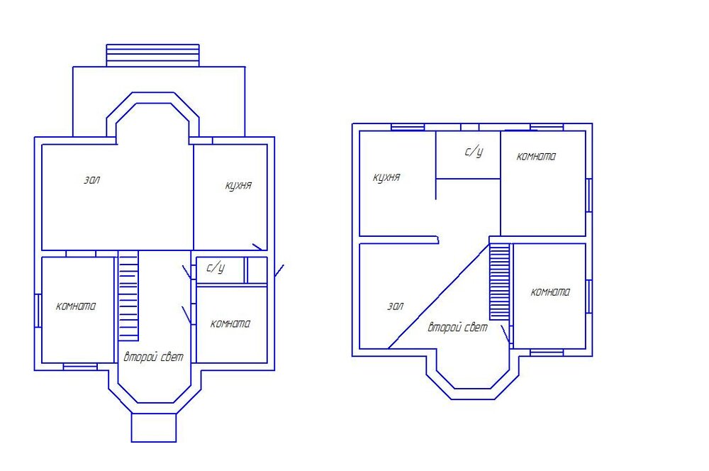
Максон Опубліковано: 22 жовтня 2010 Поділитись Опубліковано: 22 жовтня 2010 Здравствуйте. Начали строить второй дом. И вот, что у меня получилось с планировкой. Интересно ваше мнение. Спасибо. Посилання на коментар Поділитися на інших сайтах More sharing options...
Archist Опубліковано: 22 жовтня 2010 Поділитись Опубліковано: 22 жовтня 2010 Здравствуйте. Начали строить второй дом. И вот, что у меня получилось с планировкой. Интересно ваше мнение. Спасибо. а справа - это фасад или почтовый конверт? как построитесь - выложите фотку, пожалста! ;) Посилання на коментар Поділитися на інших сайтах More sharing options...
Максон Опубліковано: 22 жовтня 2010 Автор Поділитись Опубліковано: 22 жовтня 2010 это фасад в форме конверта. заказ был такой от почтальона. хорошо, только мы строим коробки - без крыши. как сделаем - скину. а вы покритикуйте Посилання на коментар Поділитися на інших сайтах More sharing options...
СТРОИМ ВСЕ Опубліковано: 22 жовтня 2010 Поділитись Опубліковано: 22 жовтня 2010 Ну так сразу и не скажеш, нужны размеры, а не площадь..... Посилання на коментар Поділитися на інших сайтах More sharing options...
Дашин папа Опубліковано: 22 жовтня 2010 Поділитись Опубліковано: 22 жовтня 2010 Здравствуйте. Начали строить второй дом. И вот, что у меня получилось с планировкой. Интересно ваше мнение. Спасибо. Привет! Я бы гостинную отгородил вот такой перегородкой, чтобы обе комнаты были изолированы. Посилання на коментар Поділитися на інших сайтах More sharing options...
Максон Опубліковано: 23 жовтня 2010 Автор Поділитись Опубліковано: 23 жовтня 2010 Привет. Вариант мне нравится. Спасибо большое. Значит особых ошибок нет. Это хорошо. По-тихоньку натренировываюсь. А размеров пока точных нет, ага, но нарисовано примерно масштабе. Посилання на коментар Поділитися на інших сайтах More sharing options...
vickov Опубліковано: 23 жовтня 2010 Поділитись Опубліковано: 23 жовтня 2010 Мне разнос канализации не нравится. И зачем такой ширины холл? Посилання на коментар Поділитися на інших сайтах More sharing options...
Максон Опубліковано: 23 жовтня 2010 Автор Поділитись Опубліковано: 23 жовтня 2010 Да, это минус. Широкий холл - ну это же хорошо. А что ты предлагаешь? Кухню увеличить? А вот комнату с кухней, конечно же можно поменять местами я думаю. Посилання на коментар Поділитися на інших сайтах More sharing options...
vickov Опубліковано: 23 жовтня 2010 Поділитись Опубліковано: 23 жовтня 2010 Да, это минус. Широкий холл - ну это же хорошо. А что ты предлагаешь? Кухню увеличить? А вот комнату с кухней, конечно же можно поменять местами я думаю. Я бы поменял комнату с кухней, в этом случае разводка воды и канализации будет компктнее, и сделал комнату шире за счет холла. Посилання на коментар Поділитися на інших сайтах More sharing options...
Дашин папа Опубліковано: 23 жовтня 2010 Поділитись Опубліковано: 23 жовтня 2010 Я бы поменял комнату с кухней, в этом случае разводка воды и канализации будет компктнее, и сделал комнату шире за счет холла. Всем привет! По мне так я кухню оставил бы на месте. судя по чертежу её окна выходят на улицу. так удобней наблюдать за происходящим, во вторых в гостинной уличных шумов меньше будет слышно, в третьих, с купленными продуктами по возвращении домой на кухню путь короче. потом посетители какие-нибудь как правило общаются с хозяином на кухне, не всем обязательно идти через весь дом. Что касается комуникаций, то это временные разовые затраты и я считаю. что лучше сделать не как проще. а как в дальнейшем будет удобней. А холл пусть будет большой, жена стены цветочками засадит и будет уютно.И компания вдруг завалит большая не будут задницами толкаться пока рассредоточатся. Так думаю. Посилання на коментар Поділитися на інших сайтах More sharing options...
Максон Опубліковано: 23 жовтня 2010 Автор Поділитись Опубліковано: 23 жовтня 2010 Дашин папа, поддерживаю! Да, убедил полностью! Посилання на коментар Поділитися на інших сайтах More sharing options...
Дашин папа Опубліковано: 23 жовтня 2010 Поділитись Опубліковано: 23 жовтня 2010 Удачи! Всё получится! Посилання на коментар Поділитися на інших сайтах More sharing options...
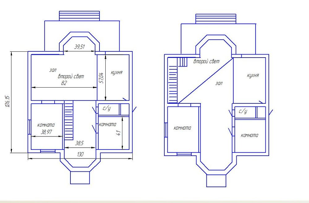
dobrobud1 Опубліковано: 25 жовтня 2010 Поділитись Опубліковано: 25 жовтня 2010 Здравствуйте. Начали строить второй дом. И вот, что у меня получилось с планировкой. Интересно ваше мнение. Спасибо. 1)Лестницу Вы нарисовали "не в масштабе" 2)Зачем вам там окно, которое будет пересекать лесничный марш? 2) Она у Вас там не поместится, если будет так как нарисованно. Считаем стена у вас, вдоль которой проходит и примыкает лестница 5,7м Высота от пола 1-го до пола 2-го этажа минимум 2,9м. Ступень 0,16м высота и 0,30м-глубина. Итого 2,9/0,16*0,3=5,4м На площадку у Вас остается 5,7м(стена)-5,4м(длинна лестницы)+0,3м Да и каждый раз, что-бы поднятся на второй этаж, гонять в дальний угол зала? Как-то по спортивному что ли. По-поводу разводки канализации не беспокойтесь. Здесь проблемы нет. Ну пойдет у вас трубы больше. Это первый этаж и уклон можна дать хороший. Если на втором этаже- то там бы да- влияло на толщину перекрытии. Посилання на коментар Поділитися на інших сайтах More sharing options...
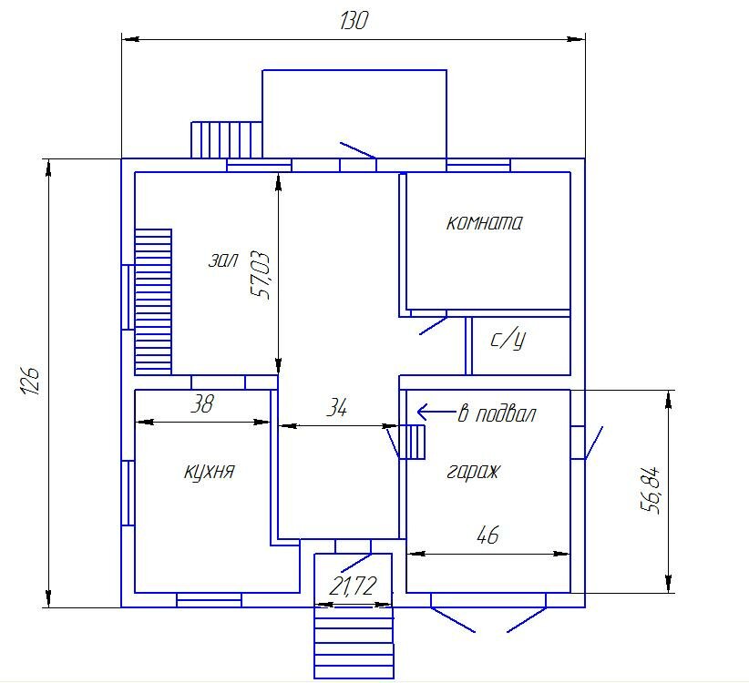
Lompier Опубліковано: 29 жовтня 2010 Поділитись Опубліковано: 29 жовтня 2010 Из чего строить будете? Посилання на коментар Поділитися на інших сайтах More sharing options...
Katya Опубліковано: 29 жовтня 2010 Поділитись Опубліковано: 29 жовтня 2010 ступеньки внутри гаража (если я правильно поняла) забирают его эксплуатируемую площадь (ИМХО) Посилання на коментар Поділитися на інших сайтах More sharing options...
Archist Опубліковано: 29 жовтня 2010 Поділитись Опубліковано: 29 жовтня 2010 вопрос на засыпку: вы мебель в зале расставлять не пробовали? Посилання на коментар Поділитися на інших сайтах More sharing options...
Максон Опубліковано: 1 листопада 2010 Автор Поділитись Опубліковано: 1 листопада 2010 Мебель не расставлял. Строить будем из пеноблока. Окно где лестница идёт только до лестницы, т.е. скошено. Лестницу планируем сделать круче. А как иначе её разместить? Посилання на коментар Поділитися на інших сайтах More sharing options...
Дашин папа Опубліковано: 1 листопада 2010 Поділитись Опубліковано: 1 листопада 2010 Лестницу планируем сделать круче. А как иначе её разместить? Привет! А есть ли острая необходимость делать меньшую комнату жилой? Может устроить из неё кладовую для продуктов или сушилку, гладилку, складилку какую? Вам жена не говорила. что ей просто необходима кладовка для пылесоса. швабры и т.д. С учётом этого можно пересмотреть расположение лестницы и может наоборот сделать её более пологой с переходной площадкой для отдышаться для пожилого человека Посилання на коментар Поділитися на інших сайтах More sharing options...
Максон Опубліковано: 6 листопада 2010 Автор Поділитись Опубліковано: 6 листопада 2010 да нет. одна комната на первом этаже - этого явно мало. а жены у меня не ещё. Маленький я. 23 скоро Посилання на коментар Поділитися на інших сайтах More sharing options...
Дашин папа Опубліковано: 8 листопада 2010 Поділитись Опубліковано: 8 листопада 2010 Привет! С окончательным вариантом определился видимо? Посилання на коментар Поділитися на інших сайтах More sharing options...
Максон Опубліковано: 13 листопада 2010 Автор Поділитись Опубліковано: 13 листопада 2010 Привет. Да! Всё будет также, как и изначально. Посилання на коментар Поділитися на інших сайтах More sharing options...
Максон Опубліковано: 14 листопада 2010 Автор Поділитись Опубліковано: 14 листопада 2010 Но вот есть ещё кое какие задумки. Интересно мне ние по расположению комнат и удобству Посилання на коментар Поділитися на інших сайтах More sharing options...
Рекомендовані повідомлення
Створіть акаунт або увійдіть у нього для коментування
Ви маєте бути користувачем, щоб залишити коментар
Створити акаунт
Зареєструйтеся для отримання акаунта. Це просто!
Зареєструвати акаунтУвійти
Вже зареєстровані? Увійдіть тут.
Увійти зараз