Zurbagan Опубліковано: 3 березня 2014 Поділитись Опубліковано: 3 березня 2014 свежий воздух - это нормальная вентиляция. А рекуператор - это энергосберегающее оборудование(в ущерб свежому воздуху из за смешивания, на пример, идр). А ПВУ - это удобство и контроль(в ущерб карману). Ерунду говорите. Если по Вашему нормальная вентиляция - это инфильтрация, то разочарую. Посчитайте инфильтрацию современных металлопластиковых окон и сравните с действующими нормами. Или представьте себе открытую форточку/окно при -20*С за бортом. Дальше. Что это за рекуператор, в котором воздух смешивается? Первый раз о таком слышу, если же конечно речь не идет о рециркуляции. Но тогда Вы оранжевое с прямоугольным спутали. А ПВУ можно сделать очень даже бюджетную. Ну и еще небольшой довесок. Почему небольшой? Потому что летом дельта меньше и результативность по рекуперации так же уменьшается, но тем не менее рекуператор так же снижает потребляемую мощность кондиционера при работе на охлаждение, или же, если новое помещение без оборудования, то в расчетах учитывается рекуператор и мощность кондиционера подбирается соответствующая (как правило на 18-20% меньше). Посилання на коментар Поділитися на інших сайтах More sharing options...
brag Опубліковано: 3 березня 2014 Поділитись Опубліковано: 3 березня 2014 Ерунду говорите. Если по Вашему нормальная вентиляция - это инфильтрация этого я не писал. инф. никак вентиляцией не назовешь. + инфильтрация разрушает строительные конструкции. Что это за рекуператор, в котором воздух смешивается? ну на пример, вентс вуе2-250-п. других не пробовал, но кострукция похожая - те тоже могут быть подтечки. снижает потребляемую мощность кондиционера при работе на охлаждение на сколько? ;) с учетом еще срока службы рекуператоров(износ вентиляторов). скорее даже дает обратный экономический эффект, те убыток Посилання на коментар Поділитися на інших сайтах More sharing options...
Zurbagan Опубліковано: 4 березня 2014 Поділитись Опубліковано: 4 березня 2014 инф. никак вентиляцией не назовешь. + инфильтрация разрушает строительные конструкции. Инфильтрация воды - согласен. Воздух будет разрушать строительные конструкции раз в десять дольше, чем Вы сможете прожить. При инфильтрации воздуха в помещении происходит вентиляция, верите ли Вы это или нет. Вопрос только в количестве замененного воздуха. ну на пример, вентс вуе2-250-п. других не пробовал, но кострукция похожая - те тоже могут быть подтечки. Не понял о каких "подтечках" идет речь? Уж не о конденсате ли? Посмотрел данную модель - где там воздух перемешивается? на сколько? с учетом еще срока службы рекуператоров(износ вентиляторов). скорее даже дает обратный экономический эффект, те убыток Скажите пожалуйста, эта информация, которую Вы несете в массы - откуда она? Вы специалист в ОВК или просто общеэрудированный человек? Посилання на коментар Поділитися на інших сайтах More sharing options...
REYDER Опубліковано: 4 березня 2014 Поділитись Опубліковано: 4 березня 2014 Окупаемость этого ПВУ с нагревателем считали относительно самого нагревателя и вентилятора? в обычном доме/квартире... Давайте посчитаем ))) сравним аналогичную стоимость просто прямоточной вентиляции с аналогичными характеристиками и ПВУ с рекуператором. Давайте ваши расчеты, раз вы говорите, что все так плохо. Посилання на коментар Поділитися на інших сайтах More sharing options...
brag Опубліковано: 7 березня 2014 Поділитись Опубліковано: 7 березня 2014 Воздух будет разрушать строительные конструкции не воздух, а вода, которая там выпадает(в щелях) и замерзает. а по моим наблюдениям (ссылка устарела) этой зимой,- выпадает там ее много, сразу в виде снега/льда Не понял о каких "подтечках" идет речь? Уж не о конденсате ли? Посмотрел данную модель - где там воздух перемешивается? Посмотрели в живую? Могу чуть позже фотки сделать, показать кудой воздух смешивается. там куча щелей внутри, на пальцах не обьясню, если не видели конструкции внутри... Скажите пожалуйста, эта информация, которую Вы несете в массы - откуда она? Вы специалист в ОВК или просто общеэрудированный человек? я пользователь пву, все исключительно из личного опыта - расчетные показатели соответствуют фактическим. Даже в моем доме срок окупаемости этой дешевой вентс - 7 лет (а проживет ли она столько?). А всех энергосберегающих технологий в сумме(туда входит и вентс) - 4года. Давайте посчитаем ))) сравним аналогичную стоимость просто прямоточной вентиляции с аналогичными характеристиками и ПВУ с рекуператором. Давайте ваши расчеты, раз вы говорите, что все так плохо. Напишите регион и требуемое количество воздуха - подсчитаю без проблем. Посилання на коментар Поділитися на інших сайтах More sharing options...
REYDER Опубліковано: 7 березня 2014 Поділитись Опубліковано: 7 березня 2014 Напишите регион и требуемое количество воздуха - подсчитаю без проблем. Киев для примера Посилання на коментар Поділитися на інших сайтах More sharing options...
Zurbagan Опубліковано: 7 березня 2014 Поділитись Опубліковано: 7 березня 2014 не воздух, а вода, которая там выпадает(в щелях) и замерзает. а по моим наблюдениям (ссылка устарела) этой зимой,- выпадает там ее много, сразу в виде снега/льда Зачем примешивать нарушение технологии строительства к вентиляции? Посмотрели в живую? Могу чуть позже фотки сделать, показать кудой воздух смешивается. там куча щелей внутри, на пальцах не обьясню, если не видели конструкции внутри... Если Вас не затруднит. Не думал, что ПВВУ с рекуператорами делают с перемешиванием воздуха... я пользователь пву, все исключительно из личного опыта - расчетные показатели соответствуют фактическим. Даже в моем доме срок окупаемости этой дешевой вентс - 7 лет (а проживет ли она столько?). Как Вы замеряли фактические? Кроме термометрии замеряли скорость протока? 7 лет рентабельности для энергосберегающего оборудования во всех цивилизованных странах считается нормальным. Больше скажу - даже для коммерческого предприятия. В быту эта цифра больше раза в полтора-два. А ломаться в таких ПВВУ нечему. Там самое ценное - это рекуператор (должен быть, по идее). А всех энергосберегающих технологий в сумме(туда входит и вентс) - 4года. Можно эту фразу расшифровать? Ну подробнее опишите, что имелось в виду? УПД: Специально получил консультацию по вентс вуе2-250-п. Там два пластинчатых целлюлозных рекуператора. Воздух нигде не перемешивается, как я и предполагал. Посилання на коментар Поділитися на інших сайтах More sharing options...
brag Опубліковано: 9 березня 2014 Поділитись Опубліковано: 9 березня 2014 Киев для примера Обьем воздуха укажите и модель предполагаемой установки. Зачем примешивать нарушение технологии строительства к вентиляции? к инфильтрации, вернее. не во всех технологиях инфильтрация допускается. Если Вас не затруднит. Не думал, что ПВВУ с рекуператорами делают с перемешиванием воздуха... там перемешивание - результат некачественной сборки и плохо продуманной конструкции, а не задумка автора Фотки сделаю на днях Как Вы замеряли фактические? Кроме термометрии замеряли скорость протока? да. 7 лет рентабельности для энергосберегающего оборудования во всех цивилизованных странах считается нормальным. Больше скажу - даже для коммерческого предприятия. В быту эта цифра больше раза в полтора-два. Согласен, что это норма. Только многих Украинцев такая цифра не удоволетворяет. Я пошел на это тк другие варианты дороже, те фактически, в моем случаи теплоизоляция и ПВУ отбили себя сразу же после монтажа А ломаться в таких ПВВУ нечему. Китайские вентиляторы ломаются еще как, даже BLDC. Там самое ценное - это рекуператор (должен быть, по идее). Там самое ценное - идея и аппетит производителя Можно эту фразу расшифровать? Ну подробнее опишите, что имелось в виду? Кину калькуляцию, сегодня,если успею. думаю все понятно будет. Воздух нигде не перемешивается, как я и предполагал. Это они так думают. А баллончик дезика и вскрытие говорят обратное ;) 1 Посилання на коментар Поділитися на інших сайтах More sharing options...
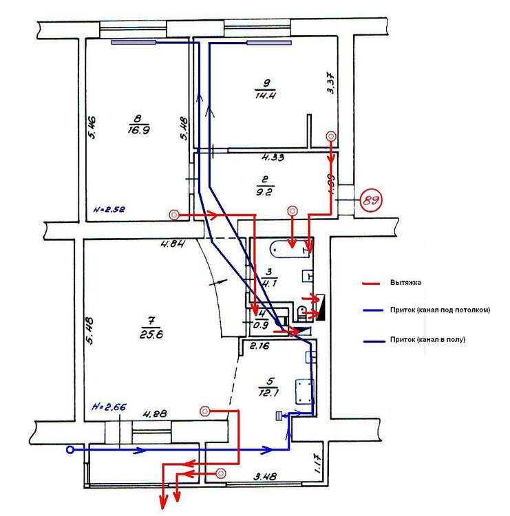
vv.. Опубліковано: 14 березня 2014 Поділитись Опубліковано: 14 березня 2014 будет ли правильным оборудовать забор воздуха ПВУ с рекуперацией в коридоре или на кухне (переток воздуха в дверных проемах естественно будет) ? Посилання на коментар Поділитися на інших сайтах More sharing options...
SON Опубліковано: 14 березня 2014 Поділитись Опубліковано: 14 березня 2014 будет ли правильным оборудовать забор воздуха ПВУ с рекуперацией 1. Приток и выхлоп практически в одном месте не есть хорошо. 2. Вы действительно хотите поставить ПВУ с рекуператором на квартиру? 3. Про ванную и туалет забыли. Можно получить ароматы по всей квартире. 4. Воздуховоды под потолком требуют жертвовать высотой помещений. 5. Все это дело должно постоянно/периодически создавать шум. :D 6. Это моя ИМХА, посему как догму воспринимать не следует. Посилання на коментар Поділитися на інших сайтах More sharing options...
Zurbagan Опубліковано: 15 березня 2014 Поділитись Опубліковано: 15 березня 2014 1. Приток и выхлоп практически в одном месте не есть хорошо. Согласен полностью - хотя бы на метр-полтора разнесите. 2. Вы действительно хотите поставить ПВУ с рекуператором на квартиру? Почему всех так это смущает? Почему продавцы автомобилей не отговаривают от покупки хорошего автомобиля, в пользу родного автопрома, например? 3. Про ванную и туалет забыли. Можно получить ароматы по всей квартире. Истинная правда. Желательно из таких зон делать отельные вытяжки (не объединять). 4. Воздуховоды под потолком требуют жертвовать высотой помещений. Есть вариант, когда короб пускают по периметру. Требует дизайнерского подхода. 5. Все это дело должно постоянно/периодически создавать шум, если неправильно рассчитать воздуховоды и решетки, а так же если не использовать шумоглушение для установки. Кстати говоря, в современных установках этот вопрос уже, как правило, решен производителем. Остаются только воздуховоды и решетки. А это моя ИМХА Так же не претендую на истину в первой инстанции. 1 Посилання на коментар Поділитися на інших сайтах More sharing options...
vv.. Опубліковано: 15 березня 2014 Поділитись Опубліковано: 15 березня 2014 Где именно приток и выхлоп в одном месте ? Если имеется в виду вход-выход на улице , то там все будет разнесено. В санузле (сейчас уже объединен) и на кухне в вентканалах установлены обратные клапана, оттуда не потянет. Кухонная вытяжка выведена на улицу. Интересует только вопрос места забора воздуха в квартире. Хотелось бы над кухонной дверью в коридоре или в самой кухне. Посилання на коментар Поділитися на інших сайтах More sharing options...
REYDER Опубліковано: 15 березня 2014 Поділитись Опубліковано: 15 березня 2014 Обьем воздуха укажите и модель предполагаемой установки. не отвлекайтесь и не уходите, это не имеет роли. Зачем так много бла... бла... бла... аргументируйте и все. Посилання на коментар Поділитися на інших сайтах More sharing options...
gemba Опубліковано: 16 березня 2014 Поділитись Опубліковано: 16 березня 2014 будет ли правильным оборудовать забор воздуха ПВУ с рекуперацией в коридоре или на кухне (переток воздуха в дверных проемах естественно будет) ? У меня в квартире такая же схема приточной вентиляции и запланирована такая же вытяжка. Есть небольшие доработки по санузлам. Я сделал гравитационную вытяжку из спален, но через санузлы. В санузлах установлены гравитационные обратные клапаны и герметичные двери. Ничего не шумит, за исключением вентилятора на кухне. И то, это результат неопытности, я его монтировал слишком близко к стене. Если отступить от стены и поставить глушитель и виброгасители, то будет полная тишина. Холодильник NoFrost на кухне всё равно работает громче вентиляции. Добавлено через 3 минуты Интересует только вопрос места забора воздуха в квартире. Хотелось бы над кухонной дверью в коридоре или в самой кухне. Самый экономный подход - выход притока под радиатором отопления, а забор вытяжки в противоположном углу под потолком. Если кухня газифицирована, то нужны очень хорошие фильтры, чтобы продукты сгорания не попали в рекуператор. Добавлено через 2 минуты Я бы вытягивал подальше от двери, чтобы запахи от плиты не перетекали в жилую зону. 1 Посилання на коментар Поділитися на інших сайтах More sharing options...
vv.. Опубліковано: 16 березня 2014 Поділитись Опубліковано: 16 березня 2014 Есть небольшие доработки по санузлам. Я сделал гравитационную вытяжку из спален, но через санузлы. В санузлах установлены гравитационные обратные клапаны и герметичные двери. В смысле приток в спальню , а вытяжка из спальни через санузел в вентканал ? Посилання на коментар Поділитися на інших сайтах More sharing options...
Zurbagan Опубліковано: 17 березня 2014 Поділитись Опубліковано: 17 березня 2014 В смысле приток в спальню , а вытяжка из спальни через санузел в вентканал ? Скорее всего имеется в виду переток воздуха через щель под дверью. Посилання на коментар Поділитися на інших сайтах More sharing options...
gemba Опубліковано: 21 березня 2014 Поділитись Опубліковано: 21 березня 2014 (змінено) Скорее всего имеется в виду переток воздуха через щель под дверью. Нет, нет. Именно вентканал. Я решил запитать дымоходы газовых отопительных приборов притоком из спален. Поставил обратные клапаны в вентакалы для безопасности и всё отлично работает. Дело в том, что двери санузлов выходят прямо в студию, а любые щели под дверью - это звуки и запахи. Двери в санузлы закрываются герметично, никаких звуков, никаких запахов. Поскольку помещения санузлов герметичны, а в спальнях приток, то я получил в санузлах приличный перепад давления для нормального функционирования и дымоходов и вытяжки. Ну и в спальнях получилась гравитационная вытяжка под потолком. Добавлено через 3 минуты С удовольствием выслушаю критику такой схемы вентиляции. Уже 6 лет всё это чудо нормально работает. Змінено 21 березня 2014 користувачем gemba Посилання на коментар Поділитися на інших сайтах More sharing options...
Zurbagan Опубліковано: 21 березня 2014 Поділитись Опубліковано: 21 березня 2014 Я решил запитать дымоходы газовых отопительных приборов притоком из спален. Идея очень плохая. Советую переделать. Как Вы согласовали это с пожарными непонятно. Посилання на коментар Поділитися на інших сайтах More sharing options...
gemba Опубліковано: 21 березня 2014 Поділитись Опубліковано: 21 березня 2014 Идея очень плохая. Советую переделать. Как Вы согласовали это с пожарными непонятно. А я это никак не согласовывал. Мне бы "плохую идею" по полочкам разложить. Чтобы я понял чего опасаться. Посилання на коментар Поділитися на інших сайтах More sharing options...
Zurbagan Опубліковано: 22 березня 2014 Поділитись Опубліковано: 22 березня 2014 А я это никак не согласовывал. Мне бы "плохую идею" по полочкам разложить. Чтобы я понял чего опасаться. Долго раскладывать. Вкратце - нельзя объединять топочную с другими помещениями, тем более спальной. Не хочу Вас пугать, но моим клиентам пожарные неоднократно выносили мозги, относительно огнезадерживающих клапанов и чуть ли не полной перепланировкой систем вентиляции. Посилання на коментар Поділитися на інших сайтах More sharing options...
gemba Опубліковано: 22 березня 2014 Поділитись Опубліковано: 22 березня 2014 И как же (по мнению пожарных) воздух должен поступать в топочную? Посилання на коментар Поділитися на інших сайтах More sharing options...
Zurbagan Опубліковано: 22 березня 2014 Поділитись Опубліковано: 22 березня 2014 Всегда должен быть независимый приток, это очевидно. Но относительно его размещения и параметров лучше было бы спросить у пожарных. Еще лучше у тех, которые будут принимать работу. Опять же случай из практики. Был построен дом с котельной, по чертежу проектной организации. Вроде все по нормам. Но в дальнейшем пожарные заставили переделать в котельной полностью все. Начиная от входных дверей, заканчивая фрамугой. Изначально не сошлись эммм... во взглядах, вот спецы и "вспомнили" все нормы. Это номенклатурный пример. А есть еще здравый смысл, почему помещение котельных изолируют от жилых. И не повторяйтесь про клапана - звучит как "свисток от акул". Посилання на коментар Поділитися на інших сайтах More sharing options...
gemba Опубліковано: 24 березня 2014 Поділитись Опубліковано: 24 березня 2014 А есть еще здравый смысл, почему помещение котельных изолируют от жилых. И не повторяйтесь про клапана - звучит как "свисток от акул". Да нет. Клапаны здесь не причём. В городах полно многоэтажных домов с газовыми колонками. Там не предусмотрено отдельное помещение для газового отопительного прибора. Мало того, строительные нормативы 50-60-х годов позволяли ставить колонку в санузле без окон. Сейчас, при каждом удобном случае газовщики заставляют переставлять колонки в кухню. В Харькове даже есть дома, в которых за муниципальные деньги заменили все колонки на харьковскую турбированную "Росс" с изолированной камерой сгорания. Под это дело, конечно установили счётчики газа, а потребление колонок Росс - это отдельная история. Так вот, повторю вопрос: каким образом в квартире подать воздух котлу/колонке? У меня по воздуховодам. Учитывая постоянный приток из жилых комнат, мне и обратный клапан не нужен. Он служит скорее индикацией наличия принудительного притока и мощности мышц пресса. В ответе на вопрос меня меньше всего волнуют нормативы, а больше всего здравый смысл. Если есть опасность, я хочу знать какая? Посилання на коментар Поділитися на інших сайтах More sharing options...
Royo Опубліковано: 9 квітня 2014 Поділитись Опубліковано: 9 квітня 2014 Приветствую! Осилил я все страницы этой темы, понятно что все устройства работают, КПД присутствует везде))) уровень шума разный. Знатоки, посоветуйте какого типа устройство применить в моем случае. А потом поговорим о шумности/бесшумности, которая для меня почти на первом месте. 10 этаж, в спальне на прямую нет стены на улицу, только в лоджии возможна установка, на фото видно как она выглядит. 1 Посилання на коментар Поділитися на інших сайтах More sharing options...
REYDER Опубліковано: 10 квітня 2014 Поділитись Опубліковано: 10 квітня 2014 Всегда должен быть независимый приток, это очевидно. Севыч, это быт )) не будь так категоричен. Атмосферная газколонка (гвс) ставится в помещении кухни которая может спокойно сообщаться с остальными помещениями )) просто есть мелкие тонкости которые ОБЯЗАТЕЛЬНО надо соблюсти. "А в виду последних событий газа скоро не будет))" 1 Посилання на коментар Поділитися на інших сайтах More sharing options...
Рекомендовані повідомлення
Створіть акаунт або увійдіть у нього для коментування
Ви маєте бути користувачем, щоб залишити коментар
Створити акаунт
Зареєструйтеся для отримання акаунта. Це просто!
Зареєструвати акаунтУвійти
Вже зареєстровані? Увійдіть тут.
Увійти зараз