Gamburger Опубліковано: 28 грудня 2010 Поділитись Опубліковано: 28 грудня 2010 товарищи, буду благодарен за комментарии и критику. есть время что-то изменить, пока не поздно. Посилання на коментар Поділитися на інших сайтах More sharing options...
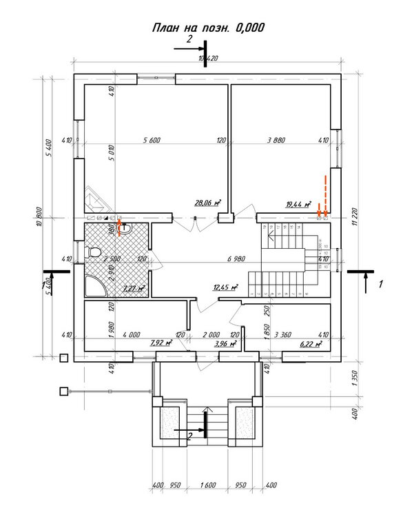
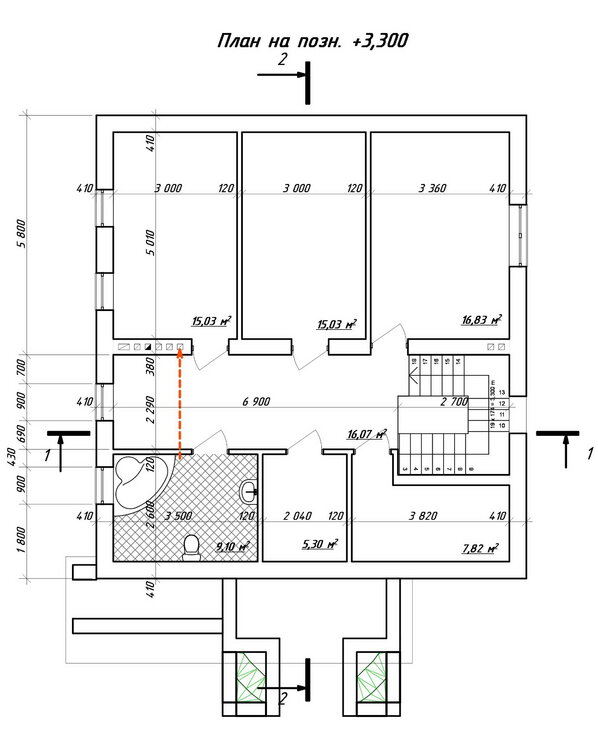
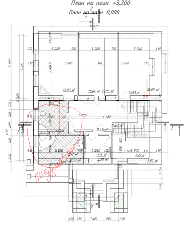
DVIJOK Опубліковано: 28 грудня 2010 Поділитись Опубліковано: 28 грудня 2010 Не хватает экспликации помещений. Что за длинное помещение на втором этаже без окон? На первом - унитаз к окну, это находка (радиатор где ставить будете, или у вас воздушка?) Посилання на коментар Поділитися на інших сайтах More sharing options...
Hover Опубліковано: 28 грудня 2010 Поділитись Опубліковано: 28 грудня 2010 Санузлы разнесены вы хорошо подумали с инстилляцией канализации, и проблем не возникнет, хорошенько подумайте. 1 Посилання на коментар Поділитися на інших сайтах More sharing options...
AНДРЮША Опубліковано: 29 грудня 2010 Поділитись Опубліковано: 29 грудня 2010 Из личного опыта всем рекомендую дверь из кухни на террасу, соответственно последнюю предусмотреть со стороны кухни. Посилання на коментар Поділитися на інших сайтах More sharing options...
OlegArh Опубліковано: 29 грудня 2010 Поділитись Опубліковано: 29 грудня 2010 Не хватет комнаты (спальни или кабинета) не 1-м этаже. ИМХО Посилання на коментар Поділитися на інших сайтах More sharing options...
Gamburger Опубліковано: 29 грудня 2010 Автор Поділитись Опубліковано: 29 грудня 2010 Не хватает экспликации помещений. Что за длинное помещение на втором этаже без окон? На первом - унитаз к окну, это находка (радиатор где ставить будете, или у вас воздушка?) длинное помещение рядом с лестницей на стороне санузла на втором этаже - это кладовка - гардероб. думаю там окно и не нужно. между санузлом и гардеробной будет прачечная - там сделаем мансардное окно наверное. унитаз возле окна ) это да - это для илюстрации наверное того, что это санузел. детали по размещению всей сантехники и мебели будут позже предлагаться. но замечание обязательно учтём. хотя с другой стороны )) - естественная дегазация помещения ) над местом выхода газов. Посилання на коментар Поділитися на інших сайтах More sharing options...
Gamburger Опубліковано: 29 грудня 2010 Автор Поділитись Опубліковано: 29 грудня 2010 Санузлы разнесены вы хорошо подумали с инстилляцией канализации, и проблем не возникнет, хорошенько подумайте. я тут особо не подумаю. задам вопрос архитектору - пущай он подумает. если вы наверняка знаете что проблемы будут - скажите прямо по ходу дела санузел первого этажа над топочной в подвальном этаже. санузел в мансарде и прачечная в мансарде немного смещены относительно санузла и топочной на первом этаже. но вроде не большое расстояние. учту, спасибо. Посилання на коментар Поділитися на інших сайтах More sharing options...
Gamburger Опубліковано: 29 грудня 2010 Автор Поділитись Опубліковано: 29 грудня 2010 Из личного опыта всем рекомендую дверь из кухни на террасу, соответственно последнюю предусмотреть со стороны кухни. это да. я уже попросил предусмотреть дверь, правда из гостинной. почему думаете что из кухни лучше? Посилання на коментар Поділитися на інших сайтах More sharing options...
Gamburger Опубліковано: 29 грудня 2010 Автор Поділитись Опубліковано: 29 грудня 2010 Не хватет комнаты (спальни или кабинета) не 1-м этаже. ИМХО согласен - с такой комнаткой было бы лучше, но место ограничено и бюджет. и так почти 300 метров общей площади получается. уменьшать помещения внутри дома не хочется. заменять уже предусмотренные помещения первого этажа не можем из-за особенностей нашего участка. у нас со стороны центрального входа в 20 метрах от дома проходит линия 10кВ. поэтому я решил сделать своего рода буфер в виде нежилых помещений, которые будут в на себя брать негативные электромагнитные волны ... если они конечно есть ... такая вот логика. пущай и антинаучная ... типа на всякий случай. Посилання на коментар Поділитися на інших сайтах More sharing options...
Ingener-ua Опубліковано: 30 грудня 2010 Поділитись Опубліковано: 30 грудня 2010 унитаз возле окна ) это да - это для илюстрации наверное того, что это санузел. детали по размещению всей сантехники и мебели будут позже предлагаться. но замечание обязательно учтём. хотя с другой стороны )) - естественная дегазация помещения ) над местом выхода газов. Нужно унитаз развернуть на 180 градусов- занятный аттракцион получится!:D Посилання на коментар Поділитися на інших сайтах More sharing options...
Рекомендовані повідомлення
Створіть акаунт або увійдіть у нього для коментування
Ви маєте бути користувачем, щоб залишити коментар
Створити акаунт
Зареєструйтеся для отримання акаунта. Це просто!
Зареєструвати акаунтУвійти
Вже зареєстровані? Увійдіть тут.
Увійти зараз