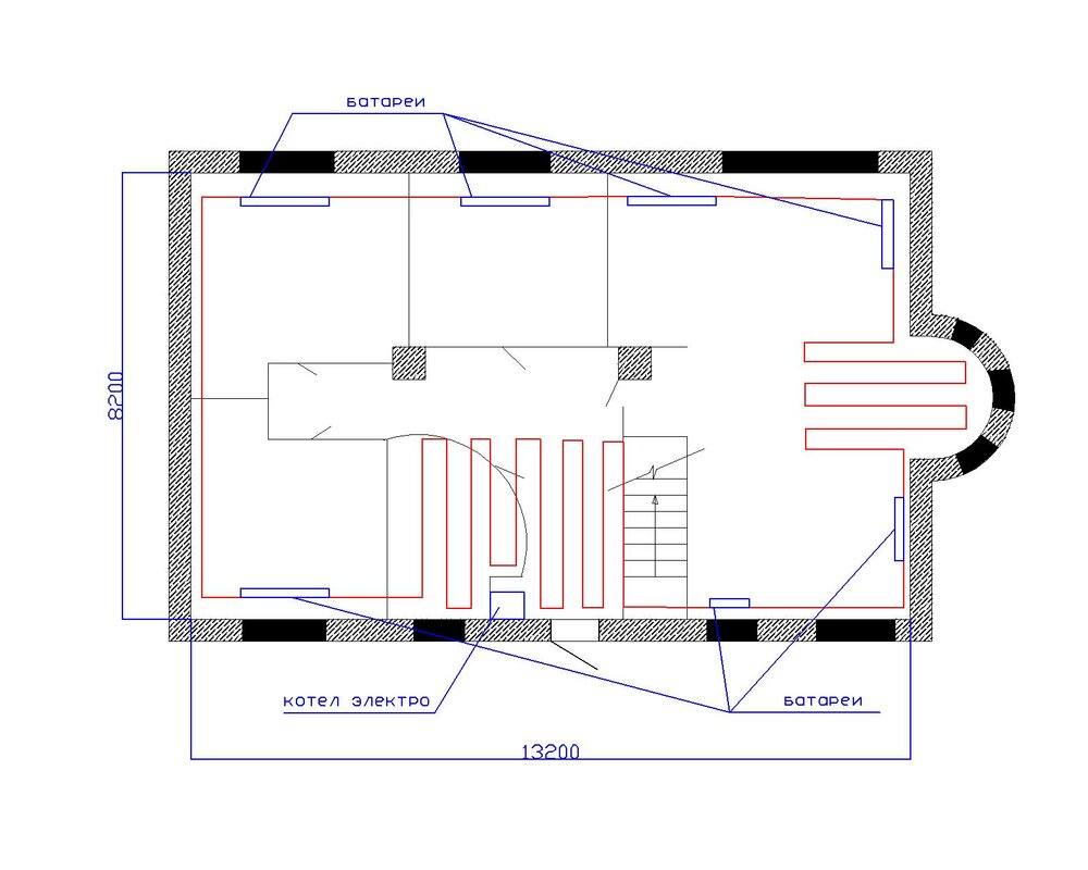
Likvid@tor Опубліковано: 1 лютого 2011 Поділитись Опубліковано: 1 лютого 2011 необходимо выполнить отопление в доме с.Дударкове,меня интерисует стоимость вопроса.план ниже...батареи и котел есть нужны только трубы и муфты....8-) Посилання на коментар Поділитися на інших сайтах More sharing options...
vovova Опубліковано: 1 лютого 2011 Поділитись Опубліковано: 1 лютого 2011 А вас не беспокоит, то что ваша схема может быть нерабочей? Посилання на коментар Поділитися на інших сайтах More sharing options...
Korni Опубліковано: 1 лютого 2011 Поділитись Опубліковано: 1 лютого 2011 А вас не беспокоит.... Клиент всегда прав. 1 Посилання на коментар Поділитися на інших сайтах More sharing options...
SamR01 Опубліковано: 1 лютого 2011 Поділитись Опубліковано: 1 лютого 2011 А что Вы в итоге хотите получить? Уровень какого качества ожидаете на выходе? Какие радиаторы имеются? Посилання на коментар Поділитися на інших сайтах More sharing options...
B.S.V. Опубліковано: 2 лютого 2011 Поділитись Опубліковано: 2 лютого 2011 А вас не беспокоит, то что ваша схема может быть нерабочей? Почему может ?. Процентов на 80 нерабочая. Посилання на коментар Поділитися на інших сайтах More sharing options...
murava Опубліковано: 2 лютого 2011 Поділитись Опубліковано: 2 лютого 2011 Да полноте,может очень рабочая схема. Может там труба как минимум ДН75 Посилання на коментар Поділитися на інших сайтах More sharing options...
B.S.V. Опубліковано: 2 лютого 2011 Поділитись Опубліковано: 2 лютого 2011 Да полноте,может очень рабочая схема. Может там труба как минимум ДН75 И пол 32-й ? Посилання на коментар Поділитися на інших сайтах More sharing options...
murava Опубліковано: 2 лютого 2011 Поділитись Опубліковано: 2 лютого 2011 Ну зачем так мелко? Можно 40ппр на уголках пропаять Посилання на коментар Поділитися на інших сайтах More sharing options...
Likvid@tor Опубліковано: 2 лютого 2011 Автор Поділитись Опубліковано: 2 лютого 2011 скажите,пожалуйста,а в чём неработоспасобность системы заключается Посилання на коментар Поділитися на інших сайтах More sharing options...
Котельщик Опубліковано: 2 лютого 2011 Поділитись Опубліковано: 2 лютого 2011 ...быстро прилетают птички-пересмешники... Ув. ТС схемка действительно нерабочая, по принципу "смешались люди, кони". Экономия конечно нужная штука, но тут уже можно заплатить дважды. По схеме у вас и радиаторное отопление и теплые полы сидят на одной ветке...ну или поясните свою идею Посилання на коментар Поділитися на інших сайтах More sharing options...
murava Опубліковано: 2 лютого 2011 Поділитись Опубліковано: 2 лютого 2011 гипсовая штукатурка машинным нанесением, стена будет готова под покраску или обои, это Вам даст возможность с экономить на материалах и на разных видах отделочных работ. 093-213-19-82 Александр 097-083-85-30 Куплю рояль. Посилання на коментар Поділитися на інших сайтах More sharing options...
Котельщик Опубліковано: 2 лютого 2011 Поділитись Опубліковано: 2 лютого 2011 гипсовая штукатурка машинным нанесением, стена будет готова под покраску или обои, это Вам даст возможность с экономить на материалах и на разных видах отделочных работ. 093-213-19-82 Александр 097-083-85-30 ээээ.....я понимаю что есть понятия "реклама"...но так жестко и без плавного перехода к "блохам у рыбы" Посилання на коментар Поділитися на інших сайтах More sharing options...
Likvid@tor Опубліковано: 2 лютого 2011 Автор Поділитись Опубліковано: 2 лютого 2011 да уж,я даже подумал что не туда зашёл Посилання на коментар Поділитися на інших сайтах More sharing options...
Vikos Energo Опубліковано: 2 лютого 2011 Поділитись Опубліковано: 2 лютого 2011 Ответил в личку) 1 Посилання на коментар Поділитися на інших сайтах More sharing options...
Likvid@tor Опубліковано: 2 лютого 2011 Автор Поділитись Опубліковано: 2 лютого 2011 спасибо огромное всем откликнувшимся,корректировку учту,ну а пока осановлюсь на одном из предложений...ещё раз спасибо Посилання на коментар Поділитися на інших сайтах More sharing options...
vovova Опубліковано: 2 лютого 2011 Поділитись Опубліковано: 2 лютого 2011 Куплю рояль. У моих сосседей растроенное пианино. Когда соседи будут на работе отдам бесплатно. Посилання на коментар Поділитися на інших сайтах More sharing options...
Котельщик Опубліковано: 2 лютого 2011 Поділитись Опубліковано: 2 лютого 2011 У моих сосседей растроенное пианино. Когда соседи будут на работе отдам бесплатно. Тока один вопрос..кого именно потом будут бить расстроенные соседи?? Посилання на коментар Поділитися на інших сайтах More sharing options...
vovova Опубліковано: 3 лютого 2011 Поділитись Опубліковано: 3 лютого 2011 Тока один вопрос..кого именно потом будут бить расстроенные соседи?? Глубоко в душЕ они мечтают от него избавится, только боятся признаться в этом. Посилання на коментар Поділитися на інших сайтах More sharing options...
Гість aziat Опубліковано: 5 лютого 2011 Поділитись Опубліковано: 5 лютого 2011 0668288493 Иван Посилання на коментар Поділитися на інших сайтах More sharing options...
Рекомендовані повідомлення
Створіть акаунт або увійдіть у нього для коментування
Ви маєте бути користувачем, щоб залишити коментар
Створити акаунт
Зареєструйтеся для отримання акаунта. Це просто!
Зареєструвати акаунтУвійти
Вже зареєстровані? Увійдіть тут.
Увійти зараз