positive life Опубліковано: 22 лютого 2011 Поділитись Опубліковано: 22 лютого 2011 Здравствуйте, возникла проблемма во время ремонта. Иммется ванна стены выложены кирпичной кладкой в полл кирпича, во время выполнения в них штроб под проводку образовались трещины в местах прохождения штроб. трещины не широкие около 1 мм, прошу посоветовать как отремонтировать кладку и на сколько эти трещины могут быть серьезными, может можно просто сверху заштукатурить...или нужно разбирать кладку и менять кирпичи, или может просто расшить трещины и забетонировать их хорошим раствором(может сетку свурхунакинуть...) вобщем посоветуйте как лучшее ..заранее спасибо. или может будет достаточно уложить в штробы провода и забетонировать штроб с одной стороны...хотя конечно это как то хреновенько помойму получиться... Посилання на коментар Поділитися на інших сайтах More sharing options...
Технолог Опубліковано: 22 лютого 2011 Поділитись Опубліковано: 22 лютого 2011 Фото и степень разрушения? Посилання на коментар Поділитися на інших сайтах More sharing options...
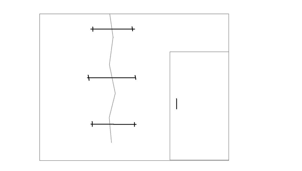
positive life Опубліковано: 22 лютого 2011 Автор Поділитись Опубліковано: 22 лютого 2011 Фото и степень разрушения? фото к сожалению нету, а степень разрушения представляет собой вертикальную трещину длинной около 2м т.е. от потолка до отверстия под подразетники и потом от подрозетника вниз недоходя пола примерно 500мм. ширина раскрытия трещины около 1мм, но этого хватило чтоб перестала закрываться дверь. трещина идет паралельно коробке в 150мм от нее. Посилання на коментар Поділитися на інших сайтах More sharing options...
Технолог Опубліковано: 23 лютого 2011 Поділитись Опубліковано: 23 лютого 2011 если для надежности и самоуспокоения лучше переделать! Посилання на коментар Поділитися на інших сайтах More sharing options...
Propeller Опубліковано: 23 лютого 2011 Поділитись Опубліковано: 23 лютого 2011 Попробуйте трещину просто сшить и зафиксировать её теперешнее положение. Шпильки продаются в Эпицентре. Длинна шпильки не менее 600 мм. Посилання на коментар Поділитися на інших сайтах More sharing options...
Рекомендовані повідомлення
Створіть акаунт або увійдіть у нього для коментування
Ви маєте бути користувачем, щоб залишити коментар
Створити акаунт
Зареєструйтеся для отримання акаунта. Це просто!
Зареєструвати акаунтУвійти
Вже зареєстровані? Увійдіть тут.
Увійти зараз