volodya1970 Опубліковано: 2 квітня 2011 Поділитись Опубліковано: 2 квітня 2011 Доброе время суток! Господа форумчане. Может кто сможет помочь. Какова должна быть конструкция стропильной системы четырёх скатной крыши (квадрат 12 х 12 м. без конька)? Угол не большой 20-25 градусов. Спасибо всем кто откликнется. Посилання на коментар Поділитися на інших сайтах More sharing options...
VillaDeLux (ex Акро) Опубліковано: 3 квітня 2011 Поділитись Опубліковано: 3 квітня 2011 мало исходной информации для совета нужны: план стен назначение кровли (чердак, мансарда) кровельный материал регион застройки Посилання на коментар Поділитися на інших сайтах More sharing options...
OlegArh Опубліковано: 3 квітня 2011 Поділитись Опубліковано: 3 квітня 2011 Доброе время суток! Господа форумчане. Может кто сможет помочь. Какова должна быть конструкция стропильной системы четырёх скатной крыши (квадрат 12 х 12 м. без конька)? Угол не большой 20-25 градусов. Спасибо всем кто откликнется.Такой общий вид при 25-ти градусах, а детали (конструкция) после того, что написал "Акро" 1 Посилання на коментар Поділитися на інших сайтах More sharing options...
volodya1970 Опубліковано: 4 квітня 2011 Автор Поділитись Опубліковано: 4 квітня 2011 1. план стен выкладываю 2. предназначение кровли - чердак 3. кровельный материал - думаю полимерно-песчаная черепица 4. регион Киевская обл. P.S. подскажите пожалуйста хороший бренд данного продукта (полимерно-песчаная черепица) С Уважением Посилання на коментар Поділитися на інших сайтах More sharing options...
VillaDeLux (ex Акро) Опубліковано: 5 квітня 2011 Поділитись Опубліковано: 5 квітня 2011 1. план стен выкладываю Стены все несущие? подскажите пожалуйста хороший бренд данного продукта (полимерно-песчаная черепица) Читайте форум Посилання на коментар Поділитися на інших сайтах More sharing options...
volodya1970 Опубліковано: 5 квітня 2011 Автор Поділитись Опубліковано: 5 квітня 2011 Стены несущие только по периметру 38см Все остальные перегородки из кирпича 12 см Посилання на коментар Поділитися на інших сайтах More sharing options...
VillaDeLux (ex Акро) Опубліковано: 5 квітня 2011 Поділитись Опубліковано: 5 квітня 2011 Как то прикыдывали стропилку на подобную крышу: В работу не пошла но конструкцию признали жизнеспособной. П.С.: на последнем рисунке красные элементы лишние. 2 Посилання на коментар Поділитися на інших сайтах More sharing options...
VillaDeLux (ex Акро) Опубліковано: 5 квітня 2011 Поділитись Опубліковано: 5 квітня 2011 Потом ещё вот такя идея была: Посилання на коментар Поділитися на інших сайтах More sharing options...
OlegArh Опубліковано: 5 квітня 2011 Поділитись Опубліковано: 5 квітня 2011 Вам эту конструкцию нужно посчитать и начертить? Или хватит рисунков "Акро"? Посилання на коментар Поділитися на інших сайтах More sharing options...
volodya1970 Опубліковано: 5 квітня 2011 Автор Поділитись Опубліковано: 5 квітня 2011 Спасибо за предложение, уважаемый Акро. Конструкция диагональных ферм при моих размерах дома 12 на 12 (почти 8,5 м) при существующем сортаменте пиломатериалов, а это 4,5 – 6м, такую конструкцию придётся сращивать что уже не есть хорошо. К тому же сама стропильная система как на мой взгляд очень необычная (сложная) и врядли получится легко найти, тех кто это сделает. У нас привыкли делать стандартное и привычное. А эта стропильная система, можно так выразится «эксклюзивная». И если я найду спецов, которые возьмутся за эту конструкцию, то они мне такую цену заломят!... Да и эта конструкция Вы сами сказали «идея» - эксперимент. А на себе это делать, как то не хочется. Посилання на коментар Поділитися на інших сайтах More sharing options...
volodya1970 Опубліковано: 5 квітня 2011 Автор Поділитись Опубліковано: 5 квітня 2011 Уважаемый OlegArh Вообще я так и представлял себе конструкцию стропилки для моей крыши. Но у меня не понимание вопроса, как и на чём эта конструкция должна стоять (я имею ввиду подстропильные ноги, стойки, схватки и т.д.) с учётом моих размеров и пергородок пусть и не несущих, как эту стропилку опустить на мой дом. Если возможно получить такую конструкцию, которую вы нарисовали с подробностями и в цифрах (хотя бы приблизительно) это было бы просто замечательно. Посилання на коментар Поділитися на інших сайтах More sharing options...
VillaDeLux (ex Акро) Опубліковано: 6 квітня 2011 Поділитись Опубліковано: 6 квітня 2011 Конструкция диагональных ферм при моих размерах дома 12 на 12 (почти 8,5 м) при существующем сортаменте пиломатериалов, а это 4,5 – 6м, такую конструкцию придётся сращивать что уже не есть хорошо. Да и эта конструкция Вы сами сказали «идея» - эксперимент. А на себе это делать, как то не хочется. Мои наброски далеко не эксперимент. Мы готовы были на их основе начинать работу но не начали т.к. передумал заказчик. Можно и 8 и 10 метровые фермы выполнить спокойно, как например тут А насчёт исполнителей, эта проблема повсеместна. Посилання на коментар Поділитися на інших сайтах More sharing options...
volodya1970 Опубліковано: 6 квітня 2011 Автор Поділитись Опубліковано: 6 квітня 2011 Создание такой фермы большой расход по материалам, а соответственно цена. И поэтому я смотрю в сторону более простого решения Посилання на коментар Поділитися на інших сайтах More sharing options...
OlegArh Опубліковано: 6 квітня 2011 Поділитись Опубліковано: 6 квітня 2011 (змінено) Уважаемый OlegArh Вообще я так и представлял себе конструкцию стропилки для моей крыши. Но у меня не понимание вопроса, как и на чём эта конструкция должна стоять (я имею ввиду подстропильные ноги, стойки, схватки и т.д.) с учётом моих размеров и пергородок пусть и не несущих, как эту стропилку опустить на мой дом. Если возможно получить такую конструкцию, которую вы нарисовали с подробностями и в цифрах (хотя бы приблизительно) это было бы просто замечательно. Можно. И не только в цифрах, но даже в похожих картинках...Но цифры, конечно же, нужно считать... P.S. ППЧ по цене ~ от 80 грн/м2. ЦПЧ BRAAS - по цене от 90 грн/м2. КЕРАМИЧЕСКАЯ черепица - от 120 грн/м2. Стоит-ли эксперементировать на своей крыше за такую разницу в цене??? !!!Черепицей НЕ ТОРГУЮ!!! P.P.S. У Вас будет несколько другая конструкция, чем на фото - намного проще. Змінено 6 квітня 2011 користувачем OlegArh Посилання на коментар Поділитися на інших сайтах More sharing options...
Васян Опубліковано: 6 квітня 2011 Поділитись Опубліковано: 6 квітня 2011 Создание такой фермы большой расход по материалам, а соответственно цена. И поэтому я смотрю в сторону более простого решения добавьте несущие стены:D Посилання на коментар Поділитися на інших сайтах More sharing options...
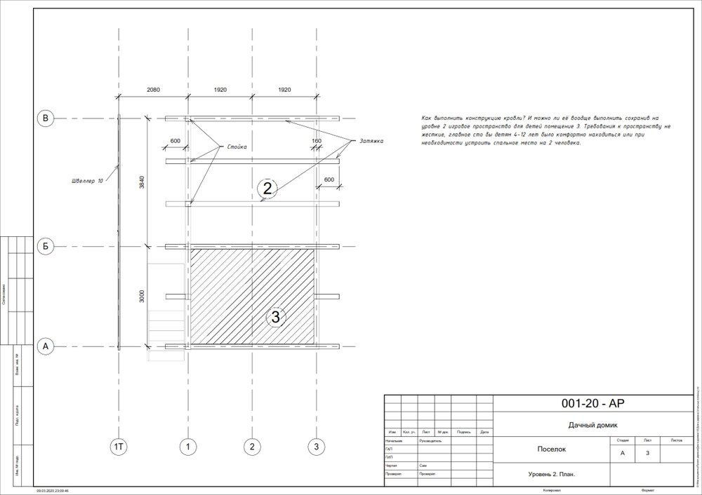
SwanL Опубліковано: 11 березня 2020 Поділитись Опубліковано: 11 березня 2020 Добрый день форумчане. Прошу помощи определиться с конструкцией стропильной системы под кровлю из битумной черепицы. На данный момент домик перекрыт временно с опиранием стропил на затяжки, которые выступают за габарит стен дома на 600 мм. В весенне-летний период хочется перекрыть домик основательно, но выполнив кровлю единой над домом и верандой. По оси 1T (смотри лист 2 и 3)выполняется установка стоек из трубы НКТ 73х5,5мм и сверху перекрыты швеллером 10 на уровне 2. Можно ли выполнить опирание стропил на брус который уложиться по оси 1Т и установив стойку под стропило по оси 1? Посилання на коментар Поділитися на інших сайтах More sharing options...
wertexan Опубліковано: 11 березня 2020 Поділитись Опубліковано: 11 березня 2020 Система распорная, балки как зятяжки. Вы делаете податливой 1 опору вводя стойки. Следует обеспечить жесткость стоек на выворачивание в сторону оси 1Т под действием распора. Для чего добавить подкосы от выступающих концов балок + опоры стоек на растяжение. Или, что гораздо лучше, если позволяют балки ввести коньковые стойки. В идеале и то и другое. ХЗ регион и этажность района. Битумные кровли легкие а у вас ещё и навес. Обеспечьте хорошее крепление кровли к нижележащим конструкциям от срыва шквальным ветром. 1 Посилання на коментар Поділитися на інших сайтах More sharing options...
SwanL Опубліковано: 12 березня 2020 Поділитись Опубліковано: 12 березня 2020 ХЗ регион и этажность района. Битумные кровли легкие а у вас ещё и навес. Обеспечьте хорошее крепление кровли к нижележащим конструкциям от срыва шквальным ветром. Спасибо за ответ. Регион: Беларусь, Гомель. От стоек по коньку хотелось бы не применять такое решение, как и писал ранее, для организации общего пространства. Но если никак, то придется ставить. Посилання на коментар Поділитися на інших сайтах More sharing options...
Рекомендовані повідомлення
Створіть акаунт або увійдіть у нього для коментування
Ви маєте бути користувачем, щоб залишити коментар
Створити акаунт
Зареєструйтеся для отримання акаунта. Це просто!
Зареєструвати акаунтУвійти
Вже зареєстровані? Увійдіть тут.
Увійти зараз