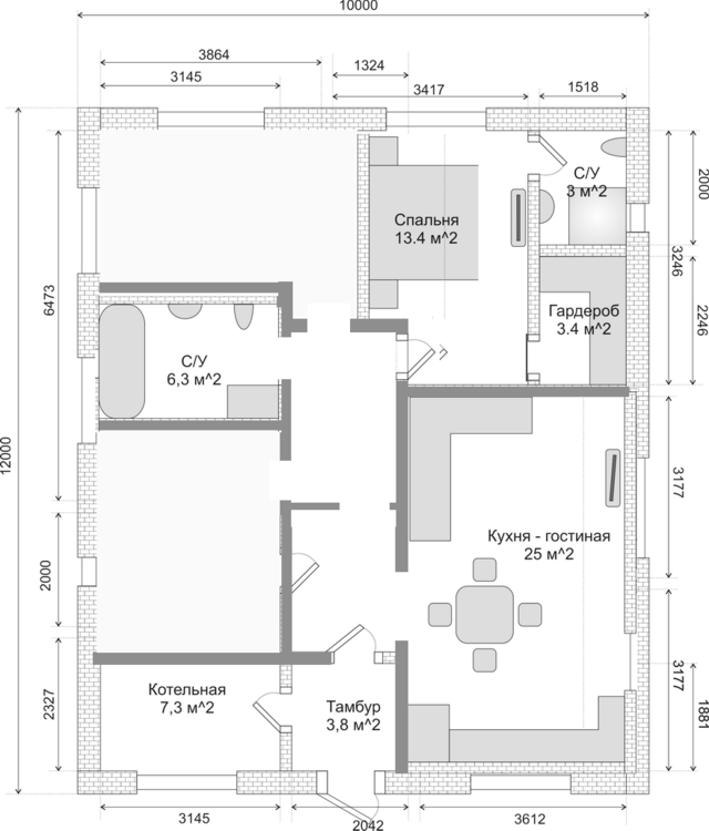
KentornoS Опубліковано: 5 травня 2011 Поділитись Опубліковано: 5 травня 2011 Как-то поднимал такую тему, но, как оказалось, в тот раз я не учел очень многое Итак, за основу взят вот такой вот проект: Было решено строить одноэтажный дом 10*12. Вот что получилось: Насчет размеров комнат: я сейчас живу в общаге, в комнате 4*4 м, разделенной на 4*2,5 (спальня) и 4*1,5 (прихожая) метров, так что гигантоманией не страдаю по этому поводу. Обеденный стол - в гостиной, посему могу сделать вывод, что площади кухни достаточно. С/У (тот, что имеет вход со спальни) - умывальник, унитаз, душ. С/У (общий) - ванна, унитаз, умывальник. Отопление планируется ТТ+электрокотел (м.б. газ когда-нибудь - далеко тянуть). Материал стен - термоблок. Фундамент - лента (грунт ~ 80 см - чернозём, далее - суглинок. Впрочем, после геологии буду знать точнее). Перекрытие - чердачное, по деревянным балкам. Крыша - вальмовая (ондулин или проф. настил - не решил еще). Просьба покидать камнями, где накосячил Заранее благодарствую. Посилання на коментар Поділитися на інших сайтах More sharing options...
lavilong Опубліковано: 6 травня 2011 Поділитись Опубліковано: 6 травня 2011 гардероб метр шириной.. это только чтобы пройти.. практически дверной проем.. очень мало если уж хотите гардероб - то так 2 Посилання на коментар Поділитися на інших сайтах More sharing options...
Катерина Ш Опубліковано: 6 травня 2011 Поділитись Опубліковано: 6 травня 2011 Гостинная маловата.... 18 кв.м нужно делать как минимум... ИМХО 1 Посилання на коментар Поділитися на інших сайтах More sharing options...
KentornoS Опубліковано: 6 травня 2011 Автор Поділитись Опубліковано: 6 травня 2011 (змінено) За совет насчет гардероба - спасибо: действительно, так лучше будет. Насчет площади гостиной - трудно сказать... Сейчас у меня комната 4*4, так она мне не кажется маленькой... Думаю, все дело в особенностях восприятия каждого человека. В любом случае, за совет - спасибо Жду еще конструктивной критики Кстати, заодно может кто подскажет, как правильно разместить дом на участке? Примерное расположение уже придумал, но хотелось бы узнать мнение опытных людей Участок - голое поле. Как, впрочем, и участки вокруг него. Сторона 33 метра - строго на север (смежный участок по этой стороне - тоже мой - 0.126 га, но там пока строить ничего не планирую). С востока - участок соседа (пустой). Юг - центральная улица села. Запад - переулок. Площадь - 0.141 га. Змінено 6 травня 2011 користувачем KentornoS Посилання на коментар Поділитися на інших сайтах More sharing options...
Федорович Опубліковано: 7 травня 2011 Поділитись Опубліковано: 7 травня 2011 Здравствуйте,а чем вызвано увеличение площади котельной? Первоначально по нормам вроде хватало (требуют кубатуру).Теряете в кухне. Посилання на коментар Поділитися на інших сайтах More sharing options...
KentornoS Опубліковано: 7 травня 2011 Автор Поділитись Опубліковано: 7 травня 2011 Доброго времени. Увеличение площади кот. вызвано необходимостью установки там же стиральной машины и сушилки для белья. Потеря в кухне, думаю, не критична - там ведь не будет обеденного стола. 1 Посилання на коментар Поділитися на інших сайтах More sharing options...
Oleksandr Protsev Опубліковано: 8 травня 2011 Поділитись Опубліковано: 8 травня 2011 При столь маленьких размерах в доме, я бы Вам рекомендовал убрать три двери в сегменте гостиная-кухня. Оставить дверь в гостиную, а стенку между кухней и гостиной убрать. У Вас появится место для холодильника и на место стены просится стол. На крышу, рекомендую старый добрый шифер. ;) 1 Посилання на коментар Поділитися на інших сайтах More sharing options...
Шакира Опубліковано: 8 травня 2011 Поділитись Опубліковано: 8 травня 2011 Увеличение площади кот. вызвано необходимостью установки там же стиральной машины и сушилки для белья. Потеря в кухне, думаю, не критична - там ведь не будет обеденного стола. при ТТ котле,не представляю как будете стирать,а пыль с угля?или поленья занести? Посилання на коментар Поділитися на інших сайтах More sharing options...
KentornoS Опубліковано: 8 травня 2011 Автор Поділитись Опубліковано: 8 травня 2011 Oleksandr Protsev, Вы имели ввиду так? Шакира, не совсем понял - пыль мешает стиральной машине стирать, или мешает поставить сушилку для сушки? Насколько я понимаю, одежда/белье сушится в течении 12-24 часов, так что за это время не должно осесть сколько-нибудь значимое количество пыли. Посилання на коментар Поділитися на інших сайтах More sharing options...
Катерина Ш Опубліковано: 8 травня 2011 Поділитись Опубліковано: 8 травня 2011 И я свои пять.... Мне кажется с функциональными предпочтениями хозпомещения под названием"топочная" можно будет разобраться уже потом на практике, а в общем для ткого помещения нормаьная площадь. Вот как по мне, то спальни маловаты.... Ну, мне бы было маловато 11,7 кв.м, хотя бы 14-15.... 1 Посилання на коментар Поділитися на інших сайтах More sharing options...
Oleksandr Protsev Опубліковано: 8 травня 2011 Поділитись Опубліковано: 8 травня 2011 Да, что-то подобное. Расставьте мебель, потом определите где делать дверь. 1 Посилання на коментар Поділитися на інших сайтах More sharing options...
arca Опубліковано: 9 травня 2011 Поділитись Опубліковано: 9 травня 2011 Сделайте вход в постирочную из ванной, это будет логичнее. В гостиной ставила бы мебель так. И добавила бы площади из коридора в спальню. В спальне и детской гардеробные очень не рационально решены - слишком маленькие площади не удобно пользоваться будет. Советовала бы сделать просто встроенные шкафы. 2 Посилання на коментар Поділитися на інших сайтах More sharing options...
arca Опубліковано: 9 травня 2011 Поділитись Опубліковано: 9 травня 2011 Вот что-то таким образом. 2 Посилання на коментар Поділитися на інших сайтах More sharing options...
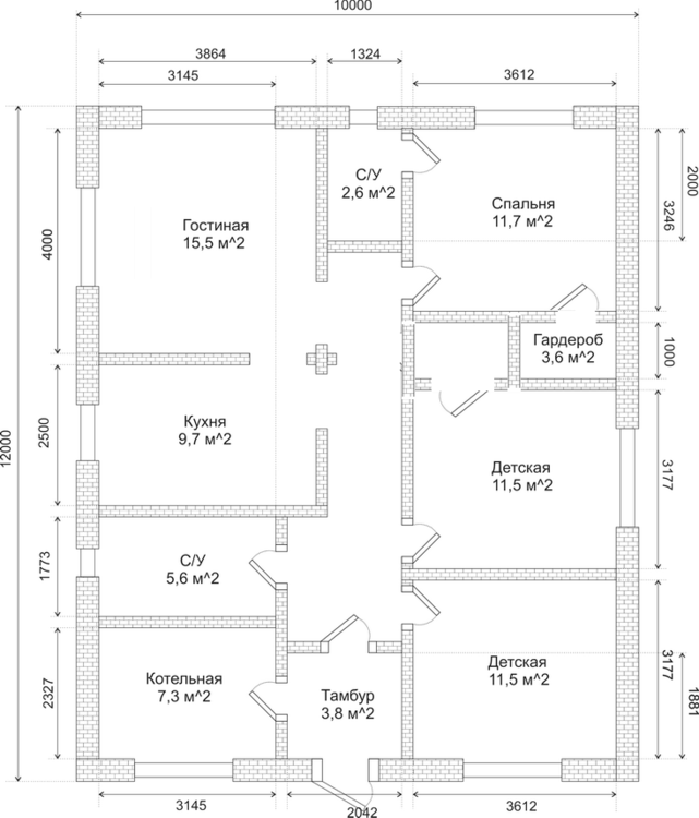
KentornoS Опубліковано: 9 травня 2011 Автор Поділитись Опубліковано: 9 травня 2011 Итак, постаравшись принять все замечания, нарисовал вот что: Т.к. две маленькие гардеробные хуже, чем одна большая, было решено их передвинуть и объеденить. Так же был перенесен спальный санузел к восточной стене; появилась возможность сделать спальню бОльшей площади. Потуги обустроить постирочную в котельной были отброшены ввиду возможности установки стиралки в общем санузле (стоят ведь в квартирах ванных комнатах). Вроде все учел - жду критики Посилання на коментар Поділитися на інших сайтах More sharing options...
Катерина Ш Опубліковано: 9 травня 2011 Поділитись Опубліковано: 9 травня 2011 Итак, постаравшись принять все замечания, нарисовал вот что: Т.к. две маленькие гардеробные хуже, чем одна большая, было решено их передвинуть и объеденить. Так же был перенесен спальный санузел к восточной стене; появилась возможность сделать спальню бОльшей площади. Потуги обустроить постирочную в котельной были отброшены ввиду возможности установки стиралки в общем санузле (стоят ведь в квартирах ванных комнатах). Вроде все учел - жду критики Как по мне, то очень даже симпатично и удобно все!!!!! 1 Посилання на коментар Поділитися на інших сайтах More sharing options...
Kostja Опубліковано: 9 травня 2011 Поділитись Опубліковано: 9 травня 2011 С Праздником! Стало лучше, но есть над чем поработать. 1. Детская которая у входа. Стремает расположение кровати. Ногами к двери... Лучше б повернуть кровать на четверть оборота против часовой (на плане). 2. Вторая детская. Дверь надо передвинуть ближе к центру стены, чтобы справа от входа появилось место для шкафа. 3. Хозяйский санузел. Дверь лучше "перевесить", чтобы она открывалась в спальню - с/у и так маленький. Рукомойник и унитаз надо поменять местами, в таком положении как сейчас вы не сможете пользоваться рукомойником. Этот апендикс коридора у спальни... Зато кровать при входе не бросается в глаза. Других плюсов у него нет. Как и в случае с детской у тамбура, чуствую, что не правильно, но чего предложить, пока не придумал. П.С. Не ориентируйтесь на общагу. Общага это временное жильё. Вы же не собираетесь ставить палатку - Вы же строите ДОМ. 1 Посилання на коментар Поділитися на інших сайтах More sharing options...
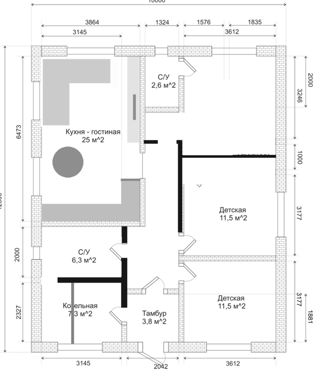
arca Опубліковано: 9 травня 2011 Поділитись Опубліковано: 9 травня 2011 Вот поняла, что смущает- попробуйте поменять местами детские и гостиную-столовую. 1 Посилання на коментар Поділитися на інших сайтах More sharing options...
Катерина Ш Опубліковано: 9 травня 2011 Поділитись Опубліковано: 9 травня 2011 Вот поняла, что смущает- попробуйте поменять местами детские и гостиную-столовую. Очень дельное предложение!!!! 1 Посилання на коментар Поділитися на інших сайтах More sharing options...
arca Опубліковано: 9 травня 2011 Поділитись Опубліковано: 9 травня 2011 Я не знаю, что там у вас по сторонам света, но логичнее бы было спальную зону отделить от гостевой. 1 Посилання на коментар Поділитися на інших сайтах More sharing options...
KentornoS Опубліковано: 10 травня 2011 Автор Поділитись Опубліковано: 10 травня 2011 Kostja, насчет расположения кроватей - согласен, переделаю. Насчет умывальника: в С/У планируется трап (слив в полу), а не поддон/кабина. В таком случае будет мешать? arca, отличная идея, со сменой комнат. Сегодня попробую перерисовать. Только вот, имхо, С/У лучше не между детскими делать, а сразу за котельной - таким образом получится полное отделение гостевой зоны от спальной. Поправьте, плиз, если я не прав. По поводу сторон света - если брать рисунок за ориентир, то верх - север, справа - восток, низ - юг, и слева - запад. Слышал так же, что не рекомендуется выводить окна спален на север/запад (летом жарко, зимой холодно). Так ли это? Всем спасибо за ответы Посилання на коментар Поділитися на інших сайтах More sharing options...
Kostja Опубліковано: 10 травня 2011 Поділитись Опубліковано: 10 травня 2011 Насчет умывальника: в С/У планируется трап (слив в полу), а не поддон/кабина. Такое делают обычно в двух вариантах: или негде или жаба. Пользовался я такой "порнографией" как трап с душем сверху: в своё время приходилось останавливаться в дешевых гостиницах и очень бюджетно переделанных санаториях. Мыться приходилось в тапках. А как "приятно" когда принимая тёпло-горячий душ, к тебе липнет мокрая и холодная занавеска... А она не может не липнуть, т.к. благодаря естественной тяге, снизу заходит холодный а вверху выходит горячий воздух и её просто засасывает в центр этого закутка, а там ты И если занавеску делать длинной, ползущей по полу, то очень скоро она внизу так загрязняется, что проще её поменять. Кстати, если уж делать сие, то надо много внимания уделять _качеству_ гидроизоляции _всей_ комнаты. Что не так важно при душевом боксе. ...В таком случае будет мешать? В таком случае, чтобы помыть руки, Вам прийдётся заходить в "душ" (а если там Ваша половинка?). Если поменяете местами, то зонально приборы не будут пересекаться и можно ставить полноценный душевой бокс. Но, если Вы так любите трудности, что изначально закладываете "для себя любимого" неудобства в своих удобствах ... то Ваше право Посилання на коментар Поділитися на інших сайтах More sharing options...
lavilong Опубліковано: 10 травня 2011 Поділитись Опубліковано: 10 травня 2011 за счет котельной увеличивается тамбур с полезной площалью под кладовую (гардероб), холл квадратов 10 нарисовался.. спальня имеет полноценный прямоугольник.. Посилання на коментар Поділитися на інших сайтах More sharing options...
KentornoS Опубліковано: 10 травня 2011 Автор Поділитись Опубліковано: 10 травня 2011 Kostja, поразмыслил я тут насчет трапа... Вполне вероятно, что поддон будет удобнее - нету проблемы "холодного" пола (даже если отапливаемый пол - то летом как?), гидроизоляция проще, симпатичнее, в конце-концов... Ну, видимо, быть-таки поддону Ну и двери распашные к нему - жуть как не люблю разного рода клеенки (норовят прилипнуть при первой возможности). В общем, перенесем унитаз и умывальник. lavilong, тут такое дело... Не хотелось бы котельную уменьшать - мало ли, вдруг газ протянут по улице - котел поставлю (или мало что еще). Морально не готов отдать под холл драгоценные метры из котельной (тем более, что в холле люди будут находиться очень немного времени по сравнению с гостиной, например). По поводу шкафоф в детских - отличная мысль. Надо теперь обыграть это все с переносом детских на место гостиной, чем я сейчас и займусь Посилання на коментар Поділитися на інших сайтах More sharing options...
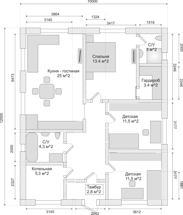
KentornoS Опубліковано: 11 травня 2011 Автор Поділитись Опубліковано: 11 травня 2011 Итак, пока что вот такой вариант: Вроде все учел. Какие мысли будут? Посилання на коментар Поділитися на інших сайтах More sharing options...
ХХХХ Опубліковано: 11 травня 2011 Поділитись Опубліковано: 11 травня 2011 планировку вылизали до оптимальной. теперь задумайтесь - как её реализовать конструктивно. какие у вас будут перекрытия? несущая стена? опирание? проёмы в несущей стене, их глубина? например, одно дело дверь в стене в пол кирпича - совсем другое - в толстой несущей (куда открываться, чем отделать откос.) p/s/ поменяйте местами с/у и гардероб - чтоб с/у был через стенку от кухни - труб меньше будет. 1 Посилання на коментар Поділитися на інших сайтах More sharing options...
Рекомендовані повідомлення
Створіть акаунт або увійдіть у нього для коментування
Ви маєте бути користувачем, щоб залишити коментар
Створити акаунт
Зареєструйтеся для отримання акаунта. Це просто!
Зареєструвати акаунтУвійти
Вже зареєстровані? Увійдіть тут.
Увійти зараз