Катерина Ш Опубліковано: 11 травня 2011 Поділитись Опубліковано: 11 травня 2011 Очень даже неплохо получилось))))) Присоединяюсь к замечанию ХХХХ... 1 Посилання на коментар Поділитися на інших сайтах More sharing options...
arca Опубліковано: 11 травня 2011 Поділитись Опубліковано: 11 травня 2011 По-моему совсем хорошо получается немножко подправила проемы дверные. В детских тогда можно будет кровати поменять со шкафами и шкафы сделать на всю стену. В тамбуре две стенки можно использовать под шкафы и диванчики. Ну и кухня просится угловая. 1 Посилання на коментар Поділитися на інших сайтах More sharing options...
arca Опубліковано: 11 травня 2011 Поділитись Опубліковано: 11 травня 2011 Как всегда забыла вложения присоединить:D Посилання на коментар Поділитися на інших сайтах More sharing options...
Катерина Ш Опубліковано: 11 травня 2011 Поділитись Опубліковано: 11 травня 2011 А Вы све-таки не захотели прислушаться к совету поменять с\у и гардеробную в спальне, чтоб коммуникации с\у привязать поближе к кухне??? 1 Посилання на коментар Поділитися на інших сайтах More sharing options...
arca Опубліковано: 11 травня 2011 Поділитись Опубліковано: 11 травня 2011 Катерина Ш Я считаю, что это естественно правильная идея ХХХХ, я только добавила немножко по проемам.;) переносом не занималась. Посилання на коментар Поділитися на інших сайтах More sharing options...
Катерина Ш Опубліковано: 11 травня 2011 Поділитись Опубліковано: 11 травня 2011 Мне кажется, что этот проект уже готов к реализации!!!! Получилось отлично!!! Давайте, уже начинайте строиться.... и мы за Вами начнем!!!!! Посилання на коментар Поділитися на інших сайтах More sharing options...
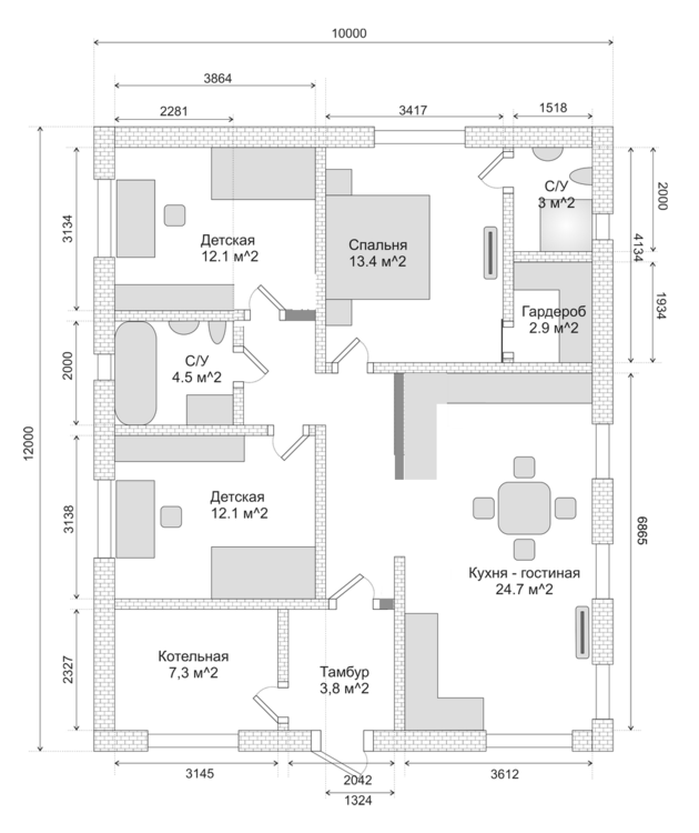
KentornoS Опубліковано: 11 травня 2011 Автор Поділитись Опубліковано: 11 травня 2011 XXXX, по поводу гардероба и сан. узла - спасибо, исправил. Перекрытия планирую по деревянным балкам, стена - термоблок, фундамент - лента. Опорные стены буду делать в кирпич, перегородки - полкирпича. Думаю, можно использовать некоторые из этих стен: arca, переставил шкафы в детских - вроде хорошо получается, спасибо Так же дорисовал в тамбуре шкаф и скамейку. Катерина Ш, сейчас занимаюсь оформлением документов на землю. Как закончу - сразу в бой Теперь прошу рекомендаций по опорным стенам Посилання на коментар Поділитися на інших сайтах More sharing options...
Катерина Ш Опубліковано: 11 травня 2011 Поділитись Опубліковано: 11 травня 2011 XXXX, по поводу гардероба и сан. узла - спасибо, исправил. Перекрытия планирую по деревянным балкам, стена - термоблок, фундамент - лента. Опорные стены буду делать в кирпич, перегородки - полкирпича. Думаю, можно использовать некоторые из этих стен: arca, переставил шкафы в детских - вроде хорошо получается, спасибо Так же дорисовал в тамбуре шкаф и скамейку. Катерина Ш, сейчас занимаюсь оформлением документов на землю. Как закончу - сразу в бой Теперь прошу рекомендаций по опорным стенам А на какой стадии у ВАс оформление документов на землю? И что именно Вас интересует по опорнім стенам??? Посилання на коментар Поділитися на інших сайтах More sharing options...
SlavikDonetsk Опубліковано: 11 травня 2011 Поділитись Опубліковано: 11 травня 2011 (змінено) XXXX, а если тамбур увеличить на 0,5 метр (для большого шкафа) за счет топочной? Змінено 11 травня 2011 користувачем SlavikDonetsk Посилання на коментар Поділитися на інших сайтах More sharing options...
lavilong Опубліковано: 11 травня 2011 Поділитись Опубліковано: 11 травня 2011 XXXX, по поводу гардероба и сан. узла - спасибо, исправил. Перекрытия планирую по деревянным балкам, стена - термоблок, фундамент - лента. Опорные стены буду делать в кирпич, перегородки - полкирпича. Думаю, можно использовать некоторые из этих стен: arca, переставил шкафы в детских - вроде хорошо получается, спасибо Так же дорисовал в тамбуре шкаф и скамейку. Катерина Ш, сейчас занимаюсь оформлением документов на землю. Как закончу - сразу в бой Теперь прошу рекомендаций по опорным стенам плита должна лежать на 2-х точках опоры.. первая - это внешняя стена.. так что внутри должна быть только одна опорная стена.. и откройте двери в детские в другую сторону.. в коридоре пространство неиспользуемое.. так удобнее будет.. эх, почему с моим поектом так не панькались?)) Посилання на коментар Поділитися на інших сайтах More sharing options...
Kostja Опубліковано: 12 травня 2011 Поділитись Опубліковано: 12 травня 2011 Kostja, поразмыслил я тут насчет трапа... Вполне вероятно, что поддон будет удобнее - нету проблемы "холодного" пола (даже если отапливаемый пол - то летом как?), гидроизоляция проще, симпатичнее, в конце-концов... Ну, видимо, быть-таки поддону Ну и двери распашные к нему - жуть как не люблю разного рода клеенки (норовят прилипнуть при первой возможности). В общем, перенесем унитаз и умывальник.) "гидроизоляция проще" - неа, не совсем уж и проще... Гидроизолировать необходимо и стены и пол и потолок, т.к. будет периодический контакт с водой. "двери распашные" к поддону - _куда_ их распахивать?! места и так мал-мала-меньше. Сдвижные - уже более реально. Вот уже помывочная и эволюционировала до душевой кабинки. Если сделать ещё один виток в эволюции, то получаем душевой бокс - он по сути коробочка для мытья, закрытая со всех сторон - её хоть в спальне ставь фактически, требования к гидроизоляции помещения никакие. Но это кому как. Посмотрел на новый план. Гораздо лучше! Но, возвращаясь к санузлу, биться об умывальник не будете? Там ширины 1м брутто, минус ширина умывальника (от 40см)... Поставьте унитаз в другой угол, а умывальник на место унитаза. Да, подключать его проблемнее но реально. К тому же, в плане гигиены, советую унитаз ставить подальше от умывальника. Вот так и получается разместить с нормальным доступом нормальный душевой бокс, унитаз и шикарнейший умывальник в 1м шириной + такое же добротное зеркало Слева от умывальника можно повесить полотенцесушитель. П.С. И помните! В с/у не всегда ходят "в трезвом уме и добром здравии", посему, чем больше простора и меньше мест об что можно задеть/удариться тем лучше. Посилання на коментар Поділитися на інших сайтах More sharing options...
Oleksandr Protsev Опубліковано: 12 травня 2011 Поділитись Опубліковано: 12 травня 2011 Так, гораздо лучше. Я бы еще подумал над тем, чтобы уменьшить количество окон в студии. Расставьте мебель, в масштабе, с размерами, с учетом стульев проходов. Нужно учесть куда (и как) открывается дверца холодильника и как далеко от батареи он будет стоять. Над столом, можно будет вывести люстру, для этого нужно знать размеры стола (желательно несимметрично) будет красиво. Окна, неплохо обыгрывать с учетом фасада. Точно также смотрите размеры в ванной. Тяжело все впихнуть, с учетом стиральной машины. Подумайте, что и куда развернуть, как открываются двери и т.д. Удачи. Посилання на коментар Поділитися на інших сайтах More sharing options...
Катерина Ш Опубліковано: 12 травня 2011 Поділитись Опубліковано: 12 травня 2011 Так, гораздо лучше. Я бы еще подумал над тем, чтобы уменьшить количество окон в студии. Расставьте мебель, в масштабе, с размерами, с учетом стульев проходов. Нужно учесть куда (и как) открывается дверца холодильника и как далеко от батареи он будет стоять. Над столом, можно будет вывести люстру, для этого нужно знать размеры стола (желательно несимметрично) будет красиво. Окна, неплохо обыгрывать с учетом фасада. Точно также смотрите размеры в ванной. Тяжело все впихнуть, с учетом стиральной машины. Подумайте, что и куда развернуть, как открываются двери и т.д. Удачи. Рационально пишете. Но я бы остекление не уменьшала - для студии это большой эстетический плюс!!!! Посилання на коментар Поділитися на інших сайтах More sharing options...
Kostja Опубліковано: 12 травня 2011 Поділитись Опубліковано: 12 травня 2011 Посмотрел на новый план. Упс. Пока писал сообщение новый план ещё раз изменился А заметил только сейчас. Тем не менее многое из моего сообщения всё ещё актуально. Под "новым" я тогда имел в виду этот. funkyimg.com/viewer.php?img=/2/485/898/house.png Посилання на коментар Поділитися на інших сайтах More sharing options...
Oleksandr Protsev Опубліковано: 12 травня 2011 Поділитись Опубліковано: 12 травня 2011 Рационально пишете. Но я бы остекление не уменьшала - для студии это большой эстетический плюс!!!! Эстетика-это хорошо, Но у меня не получилось открыть холодильник полностью (в представленном варианте), а если установить туда батарею. Размеры небольшие, поэтому нужно быть максимально точным. Нужно знать предполагаемую модель "холодильника-мечты", чтобы представлять на сколько нужно отодвинуть холодильник от стены, чтобы просто дверца полностью открылась. И так во всем. Пусть семь раз отмерят Посилання на коментар Поділитися на інших сайтах More sharing options...
KentornoS Опубліковано: 15 травня 2011 Автор Поділитись Опубліковано: 15 травня 2011 Всем спасибо за ответы Катерина Ш, землю получал по заявлению в сельскую раду (по участку - на себя и на супругу). Документы на стадии подписания в ДержКомЗем-е (осталась экология, и буду ждать получения гос. акта) lavilong, т.е. чтобы двери открывались к сан. узлу? По поводу опорных стен - там не плиты, а деревянные балки (хотя сути это не меняет). Мне видится проблема в том, что нету стены по центру дома. Или опорной может быть и не центральная стена? Тогда большой вес крыши придется на провисающую часть балок над коридором (я так думаю) Kostja, согласен, что бокс - это хорошее решение, но нормальный бокс будет стоить около $1500 (если я не ошибся с порядком цен), что есть многовато для меня. Переставил унитаз и умывальник. Вы так имели ввиду? Oleksandr Protsev, насчет окон - планируются окна "от пола", т.е., 2 метра высотой, а на месте окна (того, которое возле холодильника) - дверь. Отопление - подогреваемые полы, т.е. батарея мешать не будет А холодильнику нужно около 100 мм пространства справа, чтобы открыть полностью. Насчет стиралки еще подумаю, как рациональнее разместить. Посилання на коментар Поділитися на інших сайтах More sharing options...
lavilong Опубліковано: 15 травня 2011 Поділитись Опубліковано: 15 травня 2011 как раз очень меняет.. максимальная длина балки - 6 метров.. в любом случае нужна опроная стена.. но я бы на вашем месте смотрел в сторогу плит.. просчитано.. бетонные перекрытия выходят дешевле деревянных и долговечнее.. Посилання на коментар Поділитися на інших сайтах More sharing options...
arca Опубліковано: 15 травня 2011 Поділитись Опубліковано: 15 травня 2011 как раз очень меняет.. максимальная длина балки - 6 метров.. в любом случае нужна опроная стена.. но я бы на вашем месте смотрел в сторогу плит.. просчитано.. бетонные перекрытия выходят дешевле деревянных и долговечнее.. Да ну Вы что :D А доставка, а установка краном? Дешевле деревянных балок ничего нет на сегодня. Посилання на коментар Поділитися на інших сайтах More sharing options...
Катерина Ш Опубліковано: 15 травня 2011 Поділитись Опубліковано: 15 травня 2011 Да ну Вы что :D А доставка, а установка краном? Дешевле деревянных балок ничего нет на сегодня. Поддерживаю... я за деревянные балки! Просто ради справедливости нужно сказать, что есть случаи, когда деревянные балки нельзя применит... Посилання на коментар Поділитися на інших сайтах More sharing options...
Oleksandr Protsev Опубліковано: 15 травня 2011 Поділитись Опубліковано: 15 травня 2011 Всем спасибо за ответы Oleksandr Protsev, насчет окон - планируются окна "от пола", т.е., 2 метра высотой, а на месте окна (того, которое возле холодильника) - дверь. Отопление - подогреваемые полы, т.е. батарея мешать не будет А холодильнику нужно около 100 мм пространства справа, чтобы открыть полностью. Насчет стиралки еще подумаю, как рациональнее разместить. Боюсь, что одного теплого пола может не хватить (видел, люди перед большими окнами монтируют в пол, что-то типа конвекторов) лучше проконсультируйтесь в профильной теме. У разных холодильников может быть разная толщина и количество дверей. Определитесь с женой будут ли в этом месте шторы, какой карниз и куда это все будет сдвигаться. Не забывайте, что этот холодильник, скорее всего придется менять раньше чем дом (а лучше вместе с домом, Вам есть куда расти) и современные холодильники мало походят на те что были много лет назад. У Вас достаточно несущих стен. Сделайте их в кирпич, армируйте проемы. Просто дерево нужно будет подобрать, по участкам, соответствующей длины. Посилання на коментар Поділитися на інших сайтах More sharing options...
Катерина Ш Опубліковано: 15 травня 2011 Поділитись Опубліковано: 15 травня 2011 Боюсь, что одного теплого пола может не хватить (видел, люди перед большими окнами монтируют в пол, что-то типа конвекторов) лучше проконсультируйтесь в профильной теме. У разных холодильников может быть разная толщина и количество дверей. Определитесь с женой будут ли в этом месте шторы, какой карниз и куда это все будет сдвигаться. Не забывайте, что этот холодильник, скорее всего придется менять раньше чем дом (а лучше вместе с домом, Вам есть куда расти) и современные холодильники мало походят на те что были много лет назад. У Вас достаточно несущих стен. Сделайте их в кирпич, армируйте проемы. Просто дерево нужно будет подобрать, по участкам, соответствующей длины. Поддерживаю на счет теплых полов. Ими можно только дополнять классическую систему отопления. "Теплый пол" штука сложнаяи очень мало специалистов, которые ее делают на долгие-долгие годы, зачастую теплые полы выходят из строя через определенное время. Так что лучше подстра***тесь и сделайте их в дополнение... Посилання на коментар Поділитися на інших сайтах More sharing options...
lavilong Опубліковано: 16 травня 2011 Поділитись Опубліковано: 16 травня 2011 Да ну Вы что :D А доставка, а установка краном? Дешевле деревянных балок ничего нет на сегодня. а утепление вы считали?.. а доска пола по 80 грн квадрат минимум? а монтаж самих балок? а обработка древесины? а потолок снизу? по материалам врое кажется что дешевле.. а конечный результат? Посилання на коментар Поділитися на інших сайтах More sharing options...
Kostja Опубліковано: 16 травня 2011 Поділитись Опубліковано: 16 травня 2011 Kostja, согласен, что бокс - это хорошее решение, но нормальный бокс будет стоить около $1500 (если я не ошибся с порядком цен), что есть многовато для меня. $1500 ... %) Ну, я купил за 1800_грн_ в эпике, пользую с июля 2009го и не жужжу Размер 90х90см позволил при ширине комнаты 150см установить ещё и унитаз. Ни радио, ни телефона... но мне это и не надо - всё равно шум воды забивает звуки, а и лишний шанс получить "входящий сигнал" на тело... Зато есть всё, чтобы принять душ и не забрызгать весь санузел. Но да, пришлось повозиться, чтобы найти оптимальное взаимное расположение деталей - китяй-с. Да и соединял я пластиковые детали не саморезами из к-та, а болтами(М6) с широкими шайбами, гайками и гроверами. Из-за ремонта пересобирал его уже 3 раза (надо было выносить-заносить, а в проём целиком не лезла ). Кстати, режим "тропический дождь" то что надо, для того чтобы освежиться "гидромассажные" форсунки - то такэ ... прикольно но не более. Посилання на коментар Поділитися на інших сайтах More sharing options...
Катерина Ш Опубліковано: 16 травня 2011 Поділитись Опубліковано: 16 травня 2011 а утепление вы считали?.. а доска пола по 80 грн квадрат минимум? а монтаж самих балок? а обработка древесины? а потолок снизу? по материалам врое кажется что дешевле.. а конечный результат? А что при монолитном перекрытии у Вас потолка снизу не будет??? Так плюс еще и лишний ж/б в доме... подумайте насколько выигрывает дерево по экологии..... Я не говорю, что только деревянные перекрытия должны быть - и все. Но в любом случае они получаются недороже, чем плиты...Да, есть варианты, когда деревянное перекрытие обходилось в те же деньги, что и Ж\Б... Посилання на коментар Поділитися на інших сайтах More sharing options...
lavilong Опубліковано: 16 травня 2011 Поділитись Опубліковано: 16 травня 2011 А что при монолитном перекрытии у Вас потолка снизу не будет??? Так плюс еще и лишний ж/б в доме... подумайте насколько выигрывает дерево по экологии..... Я не говорю, что только деревянные перекрытия должны быть - и все. Но в любом случае они получаются недороже, чем плиты...Да, есть варианты, когда деревянное перекрытие обходилось в те же деньги, что и Ж\Б... вы походу путаете монолитное прекрытие и панельное.. после укладки плит достаточно потянуть штукатурку.. можно сразу клеить ГК.. если тянуть электрику по дереву - там совсем другие снипы.. а цена на провод ой-ой-ой..не забывайте что деревянные лаги надо подшить доской, устроить доп. утепление.. я знаю что дерево проигрывает 1000000 в сепени по долговечности.. Посилання на коментар Поділитися на інших сайтах More sharing options...
Рекомендовані повідомлення
Створіть акаунт або увійдіть у нього для коментування
Ви маєте бути користувачем, щоб залишити коментар
Створити акаунт
Зареєструйтеся для отримання акаунта. Це просто!
Зареєструвати акаунтУвійти
Вже зареєстровані? Увійдіть тут.
Увійти зараз