akor Опубліковано: 16 травня 2011 Автор Поділитись Опубліковано: 16 травня 2011 Это еще проще! Опытному строителю предложите на сэкономленные деньги купить дочке шубу 8-) И тестя убедите и жене приятно! Вот только речь о шубах - женщина тут-как-тут! :D Посилання на коментар Поділитися на інших сайтах More sharing options...
akor Опубліковано: 16 травня 2011 Автор Поділитись Опубліковано: 16 травня 2011 А вот и обещанные ранее фото: Посилання на коментар Поділитися на інших сайтах More sharing options...
akor Опубліковано: 16 травня 2011 Автор Поділитись Опубліковано: 16 травня 2011 А это мауэрлат на центральной стене, на "теремке" и часть мауэрата на эркере: Посилання на коментар Поділитися на інших сайтах More sharing options...
akor Опубліковано: 16 травня 2011 Автор Поділитись Опубліковано: 16 травня 2011 подготовлено под заливку место где соединяется 3 стены (в одной из них рядом окно) и на которых будут лежать 2 куска мауэрлата: Посилання на коментар Поділитися на інших сайтах More sharing options...
akor Опубліковано: 16 травня 2011 Автор Поділитись Опубліковано: 16 травня 2011 по моим подсчетам стоимость 1 кв. метра стены из гипсокартона и газоблока: 1. газоблок 15 см шириной: - 1 куб газоблока Стоунлайт стоит 520 грн. - 60 шт * 0,2 м *0,15 * 0,6 м. = 1,08 куба - 1,08м3 * 520 грн / 60 шт = 9,36 грн/шт - из 10 блоков получаем стену 1,2 м. кв. (0,2м*0,6м*10шт) - 9,36 грн * 10 шт / 1,2м кв. = 78 грн. добавим еще 5% на клей = 82 грн/м. кв 2. Гипсокартон - лист гипсокартона 1,2м*2,5м = 3 м. кв. стоит 50 грн. следовательно 50 грн / 3 м.кв. * 2 стороны = 33,34 грн. - плюс профиль приблизительно 5 м.п. * 6 грн = 30 грн. - плюс минеральная вата (www.stroymag.kiev.ua/index.php?productID=339) 0,61 * 1,25 = 0,7625 м. кв. т.е. 11 грн / 0,7625 м. кв = 14,42 грн = 77,76 грн. и это без учета парообарьеров для ГК стены, саморезо, и прочей атрибутики. а также без учета звукоизоляционных свойств ГК-стены. для меня все убедительно - буду пробовать уговорить родственников. Посилання на коментар Поділитися на інших сайтах More sharing options...
akor Опубліковано: 17 травня 2011 Автор Поділитись Опубліковано: 17 травня 2011 В ходе периодического семейного совета на протяжении последних 2х дней возник ряд вопросов: 1. Если на втором этаже делать газобетонные перегородки между комнатами (перекрытие деревянное, перегородки второго этажа на 80-90% повторяют перегородки первого этажа) то: а) как происходит примыкание перегородки и перекрытия? б) если перегородка проходит насквозь через 2 этажа - получается что между 2мя перегородками 1на балка перекрытия и на ней должно лежать перекрытие лестничного холла - как его сделать? в) в той части где под перегородками 2го этажа нет перегородок 1го - класть газобнтон прямо на деревянное перекрытие? делать перегородку из гипсокартона? третий вариант? 2. какой гидробарьер выбрать под ЦПЧ (2й этаж - мансарда)? Мастер-дах предлагает "Супердифузионную мембрану АкваТек 120". Вцелом, возражений нет - за исключением стоимости - 300 у.е. насколько целесообразно ставить именно такого уровня изоляцию? или достаточно простого гидробарьера по 200 грн /50 м кв.? 3. устройство примыканий крыши к дымоходу и стене: - тот же Мастер-дах предлагает "Лента примыканий, алюминий и Прижимная планка примыканий, алюминий". в целом все подходит, но есть 2 нюанса: - не нравится эстетический вид пленки переходящий с крыши на дымоход; - дороговато - почти 500 у.е. за обустройство +/- 9 м. примыканий. какие еще есть варианты обустройства примыканий? наверняка многие форумчане уже решали для себя эти вопросы - помогите советом, будь-ласка. Посилання на коментар Поділитися на інших сайтах More sharing options...
akor Опубліковано: 19 травня 2011 Автор Поділитись Опубліковано: 19 травня 2011 Попытался изобразить схематично какие именно узлы меня интересуют. Ну очень хочеться газобетонные перегородки на втором этаже - точнее очень не хочется гипсокартон. Посилання на коментар Поділитися на інших сайтах More sharing options...
akor Опубліковано: 23 травня 2011 Автор Поділитись Опубліковано: 23 травня 2011 На этой неделе выложили еще одно окно на втором этаже и выложили 1 из 3х фронтонов. На выходных начали устанавливать стропильную систему. Для фронтонов был закуплен дополнительно газоблок. Поскольку ни Стоунлайт ни его броварские диллеры не смогли отгрузить 5 кубов газобетона - пришлось купить в броварском Анжио - газоблок UDK.... и были розочарованы: очень много сколов (около 50-60%) и при том крупных: (ссылка на изображение устарела) С учетом того что: блок UDK дороже + наценка Анжио было переплачено около 300-350 грн на 5 кубах. - не много, но как-то обидно... Посилання на коментар Поділитися на інших сайтах More sharing options...
akor Опубліковано: 23 травня 2011 Автор Поділитись Опубліковано: 23 травня 2011 Смирившись с разочарованием от некачественных блоков - приступили к устройству стропильной системы: Первая пара стропил (ссылка на изображение устарела) (ссылка на изображение устарела) (ссылка на изображение устарела) (ссылка на изображение устарела) Посилання на коментар Поділитися на інших сайтах More sharing options...
akor Опубліковано: 23 травня 2011 Автор Поділитись Опубліковано: 23 травня 2011 А это будующий "летний" пейзаж и окон гостиной-столовой: (ссылка на изображение устарела) Ну за исключением кучи песка и газобетона На их месте планируется мини-бассейн - для охлаждения телесов в жаркую погоду. Посилання на коментар Поділитися на інших сайтах More sharing options...
Janeva Опубліковано: 23 травня 2011 Поділитись Опубліковано: 23 травня 2011 Мы также закупали броварской газоблок, не пакетированный - сколов тьма-тьмущая. Правда, цена интересная - 520 грн с доставкой и выгрузкой (ручной). Красивый вид из окна. У нас-то поле голое, пока деревца повырастают - времени куча пройдет. Посилання на коментар Поділитися на інших сайтах More sharing options...
akor Опубліковано: 23 травня 2011 Автор Поділитись Опубліковано: 23 травня 2011 В воскресение ближе к вечеру поднялся сильный ветер и на горизонте маячило грозовое облако - поэтому работы по установке стропил ьыли свернуты. До этого момента 3 мазохиста-экстримала под палящим солнцем (температура была явно выше +30 - на термометр по смотреть никто не рискнул) и на высоте 7 метров над землей установили 7мь пар стропил. Технология была следующая: - один человек, стоя на помосте, принимает один край стропил; - подающий снизу - устанавливает их на мауэрлат - третий - прибивает стропила гвозьдями 200кой. дальше: - первый держит верхний край стропилины - двое подают ему край другой стропилины, устанавливают ее на мауэрлат и прибивают. - двое держат стропила, а третий их сбивает. Для упрощения процесса установки: по крайним стропилам дома (их устанавливали первыми) - было натянуто 4 капроновых шнура - которые выполняли роль уровней. На последней паре стропил решили так же перед прибиванием к мауэрлату - засверливать стропила, поскольку забить гвоздь 200ку и не согнуть ее 5-6 раз - оказалось очень тяжело. В конечном итоге на установку последней пары стропил у нас ушло около 15 минут (против 40 минут на певые пары). В итоге - навчере воскресения имеем: (ссылка на изображение устарела) (ссылка на изображение устарела) (ссылка на изображение устарела) (ссылка на изображение устарела) (ссылка на изображение устарела) (ссылка на изображение устарела) (ссылка на изображение устарела) (ссылка на изображение устарела) (ссылка на изображение устарела) (ссылка на изображение устарела) Посилання на коментар Поділитися на інших сайтах More sharing options...
akor Опубліковано: 23 травня 2011 Автор Поділитись Опубліковано: 23 травня 2011 Страпила устанавливаются с шагом 58 см. Такая ширина была обусловлена самой распространенной шириной утеплителя (60 см.) и опытом нашего Главного прораба (он же "Главный по крышам", он же Тесть ), что стропила не бывают абсолютно ровными, а поэтому лучше местами подрезать утеплитель по краям, чем оставлять зазоры между стропилами и утеплителем. Там где на 6ом фото большое расстояние между стропилами - там будет первое мансардное окно. Поскольку стропила пока держаться ТОЛЬКО на 2х гвоздях (по одному у основания каждой ноги и к мауэрлату) - к ним была прибита рейка, которая одним краем также прибита к мауэрлату - такми образом они практически не качаются. Посилання на коментар Поділитися на інших сайтах More sharing options...
akor Опубліковано: 23 травня 2011 Автор Поділитись Опубліковано: 23 травня 2011 Мы также закупали броварской газоблок, не пакетированный - сколов тьма-тьмущая. Правда, цена интересная - 520 грн с доставкой и выгрузкой (ручной). У стоунлайта - тоже было не мало сколов (причем в партии купленной в апреле %% сколов был выше чем в партии купленной в феврале - торопятся наверное ребята, что и сказывается на качестве). Но их было меньше, и они быль значительно меньше по размерам. В блоках ЮДК - размер некоторыз сколов около 1/4 блока. Причем - лежит блок - вродебы целый. когда ты его поднял - от него остается лежать большой кусок. Да и разгружа ли мы ЮДКашные блоки сами и следовательно старались не побить. Красивый вид из окна. У нас-то поле голое, пока деревца повырастают - времени куча пройдет. Спасибо! Посилання на коментар Поділитися на інших сайтах More sharing options...
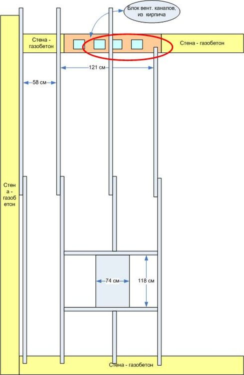
akor Опубліковано: 23 травня 2011 Автор Поділитись Опубліковано: 23 травня 2011 При установке стропил возникла новая задачка. Дело в том, что когда закладывали блок вентиляционных и дымоходных каналов - мансардных окон не планировалось. В последствии, было запланировано 2 окна - одно из которых находится прямо напротив блока вен. каналов. Вопрос в следующем - как обустроить узел крепления страпил в месте вент. каналов (на схемке обведено красным). Привожу фото - места где это будет нужно сделать. Посилання на коментар Поділитися на інших сайтах More sharing options...
andrewfil Опубліковано: 25 травня 2011 Поділитись Опубліковано: 25 травня 2011 Добрый день, тоже начал строительство домика (5х6) из газобетона, правда остановились на Аероке. Хотел сначала сделать тоже деревянные перекрытия, но смутил вопрос насекомых в брусе и необходимости периодической обработки их. Переметнулся в сторону сборно-монолитных перекрытий. Ну это частности. Теперь обдумываю стропильную систему. Будьте добры подскажите какое сечение бруса Вы брали для мауэрлата и для стропил? Вы лес в сушильной камере сушили или естественным путем? Посилання на коментар Поділитися на інших сайтах More sharing options...
akor Опубліковано: 25 травня 2011 Автор Поділитись Опубліковано: 25 травня 2011 Добрый день, тоже начал строительство домика (5х6) из газобетона, правда остановились на Аероке. Хотел сначала сделать тоже деревянные перекрытия, но смутил вопрос насекомых в брусе и необходимости периодической обработки их. Переметнулся в сторону сборно-монолитных перекрытий. Ну это частности. Теперь обдумываю стропильную систему. Будьте добры подскажите какое сечение бруса Вы брали для мауэрлата и для стропил? Вы лес в сушильной камере сушили или естественным путем? Для мауэрлат брали брус 100х100. Для стропил - 200х40. еще брали брус 150х100 для мауэрлата, но когда его брали - планировалось что у него буд опирание по 1 м с каждой стороны и висеть он будет на 4х метрах. и соответственно планировали ставить его на ребро, но поскольку проект походу строительства поменяли - то актуальность такого запаса прочности отпала.... 1 Посилання на коментар Поділитися на інших сайтах More sharing options...
andrewfil Опубліковано: 25 травня 2011 Поділитись Опубліковано: 25 травня 2011 ... а сушили как дерево? и еще нескромный вопрос: у вас стена мансарды под маурлатом 1200? Посилання на коментар Поділитися на інших сайтах More sharing options...
akor Опубліковано: 25 травня 2011 Автор Поділитись Опубліковано: 25 травня 2011 ... а сушили как дерево? и еще нескромный вопрос: у вас стена мансарды под маурлатом 1200? сушили естественным способом (ссылка на изображение устарела) а про 1200 - не понял не множко? у нас мауэрлат лежит на: - внешней стене (11,5 м длинной), - средней стене (несущая. 11,5 м длинной) но там он с разрывом над вентканалами (как будем делать пока до конца не ясно), - на внешней стене 4,5 м, - на 4х участках эркера. Посилання на коментар Поділитися на інших сайтах More sharing options...
andrewfil Опубліковано: 25 травня 2011 Поділитись Опубліковано: 25 травня 2011 а про 1200 - не понял не множко? у нас мауэрлат лежит на: - внешней стене (11,5 м длинной), - средней стене (несущая. 11,5 м длинной) но там он с разрывом над вентканалами (как будем делать пока до конца не ясно), - на внешней стене 4,5 м, - на 4х участках эркера. я имел ввиду стенку мансарды под мауэрлатом... какая у неё высота до стропильной доски. а про сушку естественным путем... не переживаете что шашель со временем начнет "чавкать"? Посилання на коментар Поділитися на інших сайтах More sharing options...
andrewfil Опубліковано: 25 травня 2011 Поділитись Опубліковано: 25 травня 2011 ... и еще вы под стропила что-то еще монтировать будете? коньковый прогон там или доп. балки? Или только обрешеткой все свяжите? Посилання на коментар Поділитися на інших сайтах More sharing options...
akor Опубліковано: 25 травня 2011 Автор Поділитись Опубліковано: 25 травня 2011 я имел ввиду стенку мансарды под мауэрлатом... какая у неё высота до стропильной доски. у нас деревяные перекрытия (по балкам) - от балок до мауэрлат - 6 рядов газоблока. т.е. высота где-то 1,615 м. высота стены от фундамента до мауэрлата 24 ряда, т.е. +/- 4,85 м. а про сушку естественным путем... не переживаете что шашель со временем начнет "чавкать"? нет, не перживаем - уже поздновато что-то менять, да и лень... а вобще - у нас все дерево обработано огнебиозащитой (какой именно - не скажу, покупали на Юности по 35 грн пачка. ушло где-то 16-18 пачек). На предмет огнезащиты - проверяли: обрезок обработанной доски ложили в костер и пока он там лежит - потехонечку горит, как только достали - сразу потух. т.е. само по себе дерево горит но процесс горения не поддерживает. Нам этого достаточно. Впринципе - эта смесь на основе купоросов и каких-то солей. Поэтому я думаю что врядле шашель захочет его жрать... во всяком случае мы на это коллективно надеемся Посилання на коментар Поділитися на інших сайтах More sharing options...
andrewfil Опубліковано: 25 травня 2011 Поділитись Опубліковано: 25 травня 2011 (змінено) Спасибо... желаю что бы все было как запланировали...а еще лучше - ЛУЧШЕ ЧЕМ ЗАПЛАНИРОВАЛИ... Успехов...буду следить за вашей стройкой;) Змінено 25 травня 2011 користувачем andrewfil 1 Посилання на коментар Поділитися на інших сайтах More sharing options...
akor Опубліковано: 25 травня 2011 Автор Поділитись Опубліковано: 25 травня 2011 ... и еще вы под стропила что-то еще монтировать будете? коньковый прогон там или доп. балки? Или только обрешеткой все свяжите? конечно будем! если все сложится (т.т.т.) то у нас будет ЦПЧ - а боднее стропилка должна быть достаточно крепкой. Даи не хотелось бы что бы потом фронтоны потрескались из-за подвижек крыши. у нас впереди еще - затяжки на каждую пару стропил. которые будут являтся потолком мансарды; - коньковый брус - тоже планируем (хотя я мог здесь что-то не допонять); Посилання на коментар Поділитися на інших сайтах More sharing options...
andrewfil Опубліковано: 25 травня 2011 Поділитись Опубліковано: 25 травня 2011 конечно будем! если все сложится (т.т.т.) то у нас будет ЦПЧ - а боднее стропилка должна быть достаточно крепкой. Даи не хотелось бы что бы потом фронтоны потрескались из-за подвижек крыши. у нас впереди еще - затяжки на каждую пару стропил. которые будут являтся потолком мансарды; - коньковый брус - тоже планируем (хотя я мог здесь что-то не допонять); ... а что такое ЦПЧ? Посилання на коментар Поділитися на інших сайтах More sharing options...
Рекомендовані повідомлення
Створіть акаунт або увійдіть у нього для коментування
Ви маєте бути користувачем, щоб залишити коментар
Створити акаунт
Зареєструйтеся для отримання акаунта. Це просто!
Зареєструвати акаунтУвійти
Вже зареєстровані? Увійдіть тут.
Увійти зараз