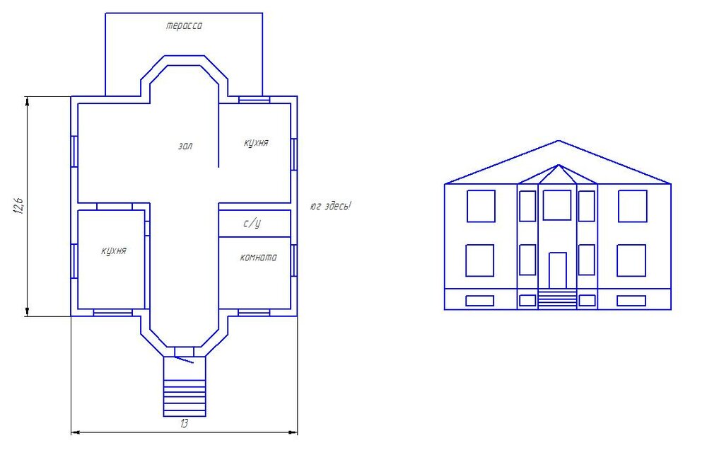
Максон Опубліковано: 28 травня 2011 Поділитись Опубліковано: 28 травня 2011 Привет. Дом для себя. вариантов множество с расположением комнат и лестницы. В зале предполагается второй свет. Лестницу можно в зале. Можно в прихожей. С зала есть выход на терассу, которая смотрит в лес. Ещё нужно сделать спуск в цокольный этаж, который будет скорее всего под лестницей на второй этаж. Также интересует вопрос. Зал лучше сделать с северной стороны (как на чертеже). Или с зеркальным отражением всего дома - и тогда зал будет с южной стороны? Кухню тоже можно расположить и в задней части дома возле зала и в фасадной части дома - тоже напротив зала. Скажите пожалуйста как лучше сделать и как бы сделали вы? Или это уже всё такие мелочи, которые выбирать придётся только самому? Благодарю. Посилання на коментар Поділитися на інших сайтах More sharing options...
ievgen.p Опубліковано: 29 травня 2011 Поділитись Опубліковано: 29 травня 2011 Привет. Дом для себя. вариантов множество с расположением комнат и лестницы. В зале предполагается второй свет. Лестницу можно в зале. Можно в прихожей. С зала есть выход на терассу, которая смотрит в лес. Ещё нужно сделать спуск в цокольный этаж, который будет скорее всего под лестницей на второй этаж. Также интересует вопрос. Зал лучше сделать с северной стороны (как на чертеже). Или с зеркальным отражением всего дома - и тогда зал будет с южной стороны? Кухню тоже можно расположить и в задней части дома возле зала и в фасадной части дома - тоже напротив зала. Скажите пожалуйста как лучше сделать и как бы сделали вы? Или это уже всё такие мелочи, которые выбирать придётся только самому? Благодарю. Основное правило - проект дома зависит от участка, он есть? если да - нужен план Посилання на коментар Поділитися на інших сайтах More sharing options...
Максон Опубліковано: 30 травня 2011 Автор Поділитись Опубліковано: 30 травня 2011 Есть Посилання на коментар Поділитися на інших сайтах More sharing options...
wironna Опубліковано: 1 червня 2011 Поділитись Опубліковано: 1 червня 2011 Есть Красиво у Вас! А такой домик не нравится? www.forumhouse.ru/forum104/thread38196.html Посилання на коментар Поділитися на інших сайтах More sharing options...
Artyomovets Опубліковано: 2 червня 2011 Поділитись Опубліковано: 2 червня 2011 а 2 кухни - чем обосновано? цокольный этаж - сомнительное удовольствие. денег вытягивает очень много. я бы расположил кухню на север, а зал - на юг. Посилання на коментар Поділитися на інших сайтах More sharing options...
АлександрAlfli Опубліковано: 2 червня 2011 Поділитись Опубліковано: 2 червня 2011 Как Вам такой вариант? Посилання на коментар Поділитися на інших сайтах More sharing options...
Artyomovets Опубліковано: 2 червня 2011 Поділитись Опубліковано: 2 червня 2011 Как Вам такой вариант? зеркальте. имхо с/у и топочная на юг. точно так хотите? Посилання на коментар Поділитися на інших сайтах More sharing options...
Oleksandr Protsev Опубліковано: 2 червня 2011 Поділитись Опубліковано: 2 червня 2011 Привет. Дом для себя. вариантов множество с расположением комнат и лестницы. В зале предполагается второй свет. Лестницу можно в зале. Можно в прихожей. С зала есть выход на терассу, которая смотрит в лес. Ещё нужно сделать спуск в цокольный этаж, который будет скорее всего под лестницей на второй этаж. Также интересует вопрос. Зал лучше сделать с северной стороны (как на чертеже). Или с зеркальным отражением всего дома - и тогда зал будет с южной стороны? Кухню тоже можно расположить и в задней части дома возле зала и в фасадной части дома - тоже напротив зала. Скажите пожалуйста как лучше сделать и как бы сделали вы? Или это уже всё такие мелочи, которые выбирать придётся только самому? Благодарю. Возьмите любой индивидуальный проект и Вы получите ответ как сделали мы? Есть вариант, как многие из нас вносили изменения в проекты? А Вы что хотите? Посилання на коментар Поділитися на інших сайтах More sharing options...
MAX666 Опубліковано: 2 червня 2011 Поділитись Опубліковано: 2 червня 2011 Как Вам такой вариант? только гараж убрать Посилання на коментар Поділитися на інших сайтах More sharing options...
АлександрAlfli Опубліковано: 3 червня 2011 Поділитись Опубліковано: 3 червня 2011 зеркальте. имхо с/у и топочная на юг. точно так хотите? Резонно ..)) свет в атриум будет попадать почаще.. Посилання на коментар Поділитися на інших сайтах More sharing options...
Ukrtaty Опубліковано: 4 червня 2011 Поділитись Опубліковано: 4 червня 2011 Красиво у Вас! А такой домик не нравится? www.forumhouse.ru/forum104/thread38196.html домик - предел мечтаний! крыша только, наверное, затратная, хотя это кому как Посилання на коментар Поділитися на інших сайтах More sharing options...
ievgen.p Опубліковано: 6 червня 2011 Поділитись Опубліковано: 6 червня 2011 Есть Я бы расположил большую часть окон на соседку (шутка) На самом деле, к Вашему плану необходимо подыскать готовый проект с наличием входа с улицы, большим кол-вом окон на восход (спальня) на юг и запад (гостинная и зал) при этом отличный вид на лес. На северной стороне лучше расположить гараж. При этом не забывайте про сад и огородик, т.е наличие солнца, многие деревья любят рости под северным забором, т.е будут закрыты с севера от холодных ветров. Добавьте прихожую (тамбур) для наших широт это желательно 2 Посилання на коментар Поділитися на інших сайтах More sharing options...
Максон Опубліковано: 19 червня 2011 Автор Поділитись Опубліковано: 19 червня 2011 Крутой дом на фотках, а картинка планировок тоже, но там сложно строить, проще когда прямоугольнийк и всё. Посилання на коментар Поділитися на інших сайтах More sharing options...
Максон Опубліковано: 19 червня 2011 Автор Поділитись Опубліковано: 19 червня 2011 нет, кухни не две. я просто спрашиваю, где лучше её сделать Посилання на коментар Поділитися на інших сайтах More sharing options...
Максон Опубліковано: 19 червня 2011 Автор Поділитись Опубліковано: 19 червня 2011 в общем зеркалить. я тоже так думаю. а где расположить лучше лестницу - в зале или прихожей? какую бы высоту дома вы сделали? у нас получается 1,2 за счёт цоколя, это мне кажется много. а цоколь всётаки удобно. там и баню можно и котельную и ванную и постирочную. Посилання на коментар Поділитися на інших сайтах More sharing options...
АлександрAlfli Опубліковано: 24 червня 2011 Поділитись Опубліковано: 24 червня 2011 как бы строить 2а квадрата не намного сложнее чем один высота.. этаж метра три ,перекрытие по 200 - 300 мм крыша метра 2-2,5 цоколь ... -= метров 10 так и есть обычно цоколь делают 0,6 примерно.. Посилання на коментар Поділитися на інших сайтах More sharing options...
N_L Опубліковано: 24 червня 2011 Поділитись Опубліковано: 24 червня 2011 Когда-то давно с подобными домиками дело имела. Только без цокольного этажа. Посилання на коментар Поділитися на інших сайтах More sharing options...
Рекомендовані повідомлення
Створіть акаунт або увійдіть у нього для коментування
Ви маєте бути користувачем, щоб залишити коментар
Створити акаунт
Зареєструйтеся для отримання акаунта. Це просто!
Зареєструвати акаунтУвійти
Вже зареєстровані? Увійдіть тут.
Увійти зараз