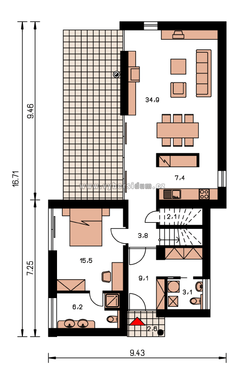
Ray Опубліковано: 3 червня 2011 Поділитись Опубліковано: 3 червня 2011 изначально целились вот на этого симпатягу: но когда дошло до дела, обнаружили у него набор минусов: *разнесенные по дому с/у и кухню; *невозможность поставить камин, который грел бы одновременно несколько помещений... в общем, все это несколько охладило мой пыл. в поисках более бюджетного и практичного проекта остановились на Z41 от компании Z500, вот таком: z500.com.ua/uk/project/Z41 (%D1%81%D1%81%D1%8B%D0%BB%D0%BA%D0%B0%20%D0%BD%D0%B0%20%D0%B8%D0%B7%D0%BE%D0%B1%D1%80%D0%B0%D0%B6%D0%B5%D0%BD%D0%B8%D0%B5%20%D1%83%D1%81%D1%82%D0%B0%D1%80%D0%B5%D0%BB%D0%B0) в участок, если отзеркалить, вписывается очень неплохо. планирую небольшие изменения в виде подъема крыши и обустройства под ней детской антресоли с видом на гостиную (над самой гостиной получится небольшой второй свет). лестница на антресоль -- на месте хозпомещения или из самой гостиной. буду очень благодарна, если укажете на очевидные минусы данного проекта. Посилання на коментар Поділитися на інших сайтах More sharing options...
AndyAntonov Опубліковано: 3 червня 2011 Поділитись Опубліковано: 3 червня 2011 …но когда дошло до дела, обнаружили у него набор минусов: *разнесенные по дому с/у и кухню; *невозможность поставить камин, который грел бы одновременно несколько помещений... (ссылка на изображение устарела) Именно эти минусы присутствуют и в этом доме. Если под «хоз. пом.» зашифрована топочная, то надо ещё выяснить, возможно ли согласование такой топочной — без единого окна — с пожарными и газовщиками. А то ведь могут отказать в подключении котла. ЗЫ Снег с крыши валится прямо на вход. Это не для нас, тут izba прав. ЗЗЫ У z500 ещё очень много других проектов. 1 Посилання на коментар Поділитися на інших сайтах More sharing options...
Ray Опубліковано: 3 червня 2011 Автор Поділитись Опубліковано: 3 червня 2011 AndyAntonov, чуть не поняла, где минусы. *камин греет зал/комнату/антресоль; *гостевой с/у контачит с кухней. санузел для хозяев кагбэ априори хотелось бы подальше от кухни и гостевого, так что селяви. лестницу на место хозпомещения предлагает ставить сам разработчик. к тому же: 1. разработчик предлагает полноценную лестницу, а мы планируем антресольную, в игровую зону; 2. газового котла у меня не будет. по поводу других проектов -- пересмотрела у Z500 (да и не только у Z500) практически все с общей площадью до 150-160 квадратов. альтернативы не вижу. у большинства еще более запутанная в плане коммуникаций планировка Посилання на коментар Поділитися на інших сайтах More sharing options...
архітектор Опубліковано: 3 червня 2011 Поділитись Опубліковано: 3 червня 2011 AndyAntonov, чуть не поняла, где минусы. *камин греет зал/комнату/антресоль; *гостевой с/у контачит с кухней. санузел для хозяев кагбэ априори хотелось бы подальше от кухни и гостевого, так что селяви. лестницу на место хозпомещения предлагает ставить сам разработчик. к тому же: 1. разработчик предлагает полноценную лестницу, а мы планируем антресольную, в игровую зону; 2. газового котла у меня не будет. по поводу других проектов -- пересмотрела у Z500 (да и не только у Z500) практически все с общей площадью до 150-160 квадратов. альтернативы не вижу. у большинства еще более запутанная в плане коммуникаций планировка Ваш выбор абсолютно вслепую. Как Вам удается оценить этот проект - для меня загадка. Ведь проект - это не только план первого этажа да пару красивых картинок. По имеющейся информации Вы выбрали проект коробки от дома, но не самого загороднего дома как целостного и комплесного организма. Уверен, Вы не представляете сколько реально стоит такой результат как на картинке. А "среднестатистический строитель" готов сделать на раз-два "козью морду" из этого проекта, пользуясь неосведомленностью застройщика. Готовы также а этом погреть руки и коррупционеры-согласователи, ибо регламент и нормы распространяются не только на котельную, но при желании и на стеновые материалы и даже способ проставления размеров и вычерчивания штампа на каждом листе включая подписи в нем. Посилання на коментар Поділитися на інших сайтах More sharing options...
вторик Опубліковано: 3 червня 2011 Поділитись Опубліковано: 3 червня 2011 Вам надо итди в кантору, продающую проекты. менеджер, если нормальный, подберет проект. будет хорошо. подобрать типовой иногда сложнее чем набросать концепцию нового, но под новый нужна РД а она дорогая. Посилання на коментар Поділитися на інших сайтах More sharing options...
Oleksandr Protsev Опубліковано: 3 червня 2011 Поділитись Опубліковано: 3 червня 2011 Нарисовано красиво, НО... Расставьте мебель, даже в том виде как есть. Только не по картинке, а с реальными размерами. Длина стены такая-то, кровать такого-то размера, тумбочка такая, проход остается ...Телевизор и камин рядом, возьмите размер телевизора, камина и стены. Под каждым окном батарея, поставьте там кровати, куда ложится головой, к батареи? Камин греет, только в том случае, если он сделан профессионалами. А это хорошая цена. Декоративный камин практически не греет. Это касается всех проектов, не только этого. 1 Посилання на коментар Поділитися на інших сайтах More sharing options...
архітектор Опубліковано: 3 червня 2011 Поділитись Опубліковано: 3 червня 2011 Вам надо итди в кантору, продающую проекты. менеджер, если нормальный, подберет проект. будет хорошо. подобрать типовой иногда сложнее чем набросать концепцию нового, но под новый нужна РД а она дорогая. Вот незадача. Я считаю- таким сложным вопросом, как подбор проектов должны заниматься профессионалы. А то получается что кто-то где-то в Польше разработал типовой проект для Польши и польских норм, польских специалистов и польских материалов. Менеджер по продажам проектов в Украине может иметь какое угодно образование. Но даю 100 процентов - не архитектурное и не строительное! Не пойдет специалист на ту зарплату, что платят менеджеру с продажи. Вы хотите, чтобы в выборе такого сложного мероприятия Вам помог человек с дипломом менеджера, учителя? Не нужно себя обманывать. Например в аптеке, в нормальной аптеке - должен работать фармацевт или провизор. Причем сильнодействующие препараты раньше вообще по рецепту продавали. Строго. Чтобы не наделали себе беды по незнанию. Я бы не рискнул подойти к продавцу в аптеке и спросить чего-то более серьезного, чем аспирин, не зная даже четко своего диагноза. Как люди не боятся "в темную" дом выбирать - для меня загадка. Полнейшая. Часто менеджер даже пенобетон от газобетона не отличает, перекрытие с перемычкой путает.... Да что тут говорить. 1 Посилання на коментар Поділитися на інших сайтах More sharing options...
Max_designer Опубліковано: 3 червня 2011 Поділитись Опубліковано: 3 червня 2011 в поисках более бюджетного и практичного проекта остановились на Z41 от компании Z500, вот таком: That is the key ) "Наш человек так устроен, что сказать нет денег ему очень трудно, лучше сказать что некрасиво". Почерпнуто из этого форума. Вам сюда, это харьковчане. www.drozdov-partners.com/ Посилання на коментар Поділитися на інших сайтах More sharing options...
Max_designer Опубліковано: 3 червня 2011 Поділитись Опубліковано: 3 червня 2011 P.S. Эта архитектура не удел массового строительства. Если короедовые дела-коробочки еще как то смотрятся унифицированно на троечку на любом участке, то такая архитектура исключительно идивидуального кроя. И не важно чей проект - польский наш и ли еще какой. А так, эти адовы чернобривцы на фоне такого дома смотрятся как будто базарный классический костюм за 500 гривен. Посилання на коментар Поділитися на інших сайтах More sharing options...
Ray Опубліковано: 3 червня 2011 Автор Поділитись Опубліковано: 3 червня 2011 уважаемые архитекторы, я рада, что своим скромным вопросом вызвала такую глобальную дискуссию по сабжу: 1. о том, что типовые проекты -- г..но, расскажите, пожалуйста, тем 30% (или около того) форумчан, которые счастливо строят по типовому проекту или вовсе без оного. я очень рада за заказчика господина архитектор, чью стройку ведет спец, и не менее рада за ту же Judi, которая построила свой прекрасный дом по картинке из интернета. Кто из них более удовлетворен ходом стройки и объектом, полученным на выходе, -- тот еще вопрос. 2. эти ДВА проекта выставлены сюда по единственной причине: первый "лег на душу" (я в нем уже, можно сказать, жизнь прожила ), второй привлек планировкой, которая показалась наиболее функциональной и незамыленной из всех просмотренных типовых. ни один архитектор не нарисует мне дом, в котором я захочу жить, если я просто перечислю ему набор необходимых помещений. я, как заказчик, хочу чувствовать свое будущее жилище, а не слепо доверять словам архитектора про "так правильно, а так нет". (в соседней ветке вообще дискуссия разгорелась о том, что дом менее 300 квадратов -- некомфортен и нефункционален . и ведь заявляют это спецы, которые собаку съели на стройке и дизайне и уверены в своей правоте). сюда я выложила планировку, по которой и хотела бы получить дельные комментарии. а из каких материалов будет строиться дом, подходят ли нам польские проекты, насколько профессиональны менеджеры, их продающие, -- это тема для совершенно другой ветки. ПСы. заинтересованным сообщаю, что проект будет индивидуальным, и с архитектором я плюс-минус определилась. ПСы1. дом будет стоять на садовом участке, что, надеюсь, облегчит мою участь в плане получения разрешительных документов. Посилання на коментар Поділитися на інших сайтах More sharing options...
архітектор Опубліковано: 3 червня 2011 Поділитись Опубліковано: 3 червня 2011 я очень рада за заказчика господина архитектор, чью стройку ведет спец, 2. эти ДВА проекта выставлены сюда по единственной причине: первый "лег на душу" (я в нем уже, можно сказать, жизнь прожила ), второй привлек планировкой, которая показалась наиболее функциональной и незамыленной из всех просмотренных типовых. ни один архитектор не нарисует мне дом, в котором я захочу жить, если я просто перечислю ему набор необходимых помещений. я, как заказчик, хочу чувствовать свое будущее жилище, а не слепо доверять словам архитектора про "так правильно, а так нет". Таки да, это все разговоры. По первому- у меня нанятые люди стройку не ведут. Опять 25. То, что Вы называете обсуждением проекта или выкладыванием проекта - это не про тот проект идет речь. Это все равно, что я бы обсуждал планировку картиры с Авизо. (ссылка на изображение устарела) Вы просили ткнуть носом? Я ткнул - Вы обсуждаете эскиз плана на уровне БТИ-шного обмерочного плана. Ни больше, ни меньше. Уровень обсуждения - неглубокий, на уровне общих разговоров между прочим. Но ничего, стройка все расставит на свои места. Посилання на коментар Поділитися на інших сайтах More sharing options...
Ray Опубліковано: 3 червня 2011 Автор Поділитись Опубліковано: 3 червня 2011 Вы просили ткнуть носом? Я ткнул - Вы обсуждаете эскиз плана на уровне БТИ-шного обмерочного плана. Ни больше, ни меньше. Уровень обсуждения - неглубокий, на уровне общих разговоров между прочим. простите, в подразделе "Обсуждаем проекты домов" все происходит по-другому? наверное, люди обсуждают уже готовые рабочие чертежи? может, вот здесь идет глубокое обсуждение: www.stroimdom.com.ua/forum/showthread.php?t=38243 ? или вот здесь: www.stroimdom.com.ua/forum/showthread.php?t=60897 ? цель у этого подраздела, как я понимаю, несколько другая -- чтобы будущий застройщик на этапе предварительного выбора проекта получил понимание, что конкретно ему нужно и что недопустимо. нужна ли ему гостиная 40+ квадратов. и нужны ли ему три с/у, разбросанных по дому. и не будет ли ему валиться снег на голову при конкретной конфигурации крыши (спасибо AndyAntonov, кстать). и во что ему выльется открытая терраса на плоской крыше первого этажа. я хочу иметь представление об этих нюансах (а именно им, своим представлением, здесь делятся те, кто УЖЕ выбрал проект, кто УЖЕ строится, кто УЖЕ живет в домах, построенных по конкретным чертежам), чтобы аргументированно отстаивать свое мнение в разговоре с архитектором. и чтобы не получилось вот так: Проект безусловно нужен. Для человека далекого от строительства - это своего рода путеводитель в мир стройки. Но в моем случае проект не оправдал все возложенные на него функции... Оказалось, что архитектор не мечту мою воплощал, а свои наработанные шаблоны туда втюхивал... если у вас другое мнение о назначении подраздела "Обсуждаем проекты домов" -- изложите его, пожалуйста. 1 Посилання на коментар Поділитися на інших сайтах More sharing options...
архітектор Опубліковано: 3 червня 2011 Поділитись Опубліковано: 3 червня 2011 простите, в подразделе "Обсуждаем проекты домов" все происходит по-другому? наверное, люди обсуждают уже готовые рабочие чертежи? может, вот здесь идет глубокое обсуждение: www.stroimdom.com.ua/forum/showthread.php?t=38243 ? или вот здесь: www.stroimdom.com.ua/forum/showthread.php?t=60897 ? . Зачем равняться на все подряд? Это как выбирать себе костюм пользуясь общественным да еще и анонимным мнением. цель у этого подраздела, как я понимаю, несколько другая -- чтобы будущий застройщик на этапе предварительного выбора проекта получил понимание, что конкретно ему нужно и что недопустимо. нужна ли ему гостиная 40+ квадратов. и нужны ли ему три с/у, разбросанных по дому. . Вот скажите, зачем мне у Вас спрашивать какая мне нужна гостинная? Я же не для Вас дом строю? Какой Вам смысл советовать мне, какая у меня должна быть гостинная? Я этого в корне не понимаю? Зачем Вам тратить время, за которое Вы можете что-то заработать или отдохнуть, на то, чтобы мне что-то посоветовать? Может Вы советуете мне исходя из того, чтобы у моя гостинная была не больше или не меньше Вашего? Но откуда Вы знаете мой образ жизни? Мебель, которая мне нравится? Честно, я не догоняю мотивов? Что Вами движет? Почему Вы тратите время на советы мне??? Какая мне польза от советов анонимного и скорее всего непрофессионального в области архитектуры человека? и не будет ли ему валиться снег на голову при конкретной конфигурации крыши (спасибо AndyAntonov, кстать). и во что ему выльется открытая терраса на плоской крыше первого этажа.. Обсуждать такие вопросы по дилетантски - это еще больше себя запутывать, потому что ни одного объективного или профессионального аргумента не будет. я хочу иметь представление об этих нюансах (а именно им, своим представлением, здесь делятся те, кто УЖЕ выбрал проект, кто УЖЕ строится, кто УЖЕ живет в домах, построенных по конкретным чертежам), чтобы аргументированно отстаивать свое мнение в разговоре с архитектором. и чтобы не получилось вот так:. Много ли людей есть, которые построили свои дома качественно, без своих и чужих ошибок, которые объективно отрефлексировали произошедшее, расчитались со всеми долгами и нашли время подать Вам стуктурированную информацию? Думаю - еденицы. А вот поговорить о банальных вещах, без аргументов, анонимно и как правило без любой ответственности - это запросто. если у вас другое мнение о назначении подраздела "Обсуждаем проекты домов" -- изложите его, пожалуйста. Думаю качество будущего дома предопределяется еще задолго до его проектирования. И зависит оно от постановки вопроса самим заказчиком. Быть заказчиком - это невероятно сложно. И если здесь слегкомыслиничать, пойти по линии наименьшего сопротивления - то все остальное будит лишь следствием а не причиной. Естественно - потом будут тысячи виноватых. Посилання на коментар Поділитися на інших сайтах More sharing options...
Max_designer Опубліковано: 3 червня 2011 Поділитись Опубліковано: 3 червня 2011 Кстати, для ознакомления. (ссылка устарела) www.newsland.ru/news/detail/id/708207/cat/51/ Плодим форумное аматорство дальше? 1 Посилання на коментар Поділитися на інших сайтах More sharing options...
Ray Опубліковано: 3 червня 2011 Автор Поділитись Опубліковано: 3 червня 2011 Вот скажите, зачем мне у Вас спрашивать какая мне нужна гостинная? Я же не для Вас дом строю? Какой Вам смысл советовать мне, какая у меня должна быть гостинная? Честно, я не догоняю мотивов? Что Вами движет? пример по гостиной. я люблю большие открытые пространства. дай мне волю, зафигачила бы гостиную квадратов на 50 с остеклением во всю стену -- учитывая тот факт, что в существующей гостиной на 22 квадрата мне тесно. но вот нашлись дилетантские мнения*, которые удержали меня от этого шага: "вам он нужен, этот камерный зал? найдите похожее помещение, походите по нему -- почувствуете себя как в музее, неуютно" "ого, это ж во сколько выльется обогрев такого помещения?!" "а убирать его кто будет? предполагаете домработницу?" (*всё вычитано в "Обсуждаем проекты домов") для вас, как для профессионала, эти мысли очевидны. для меня, как дилетанта в строительстве, они стали откровением. нашла знакомых с подобным залом. напросилась в гости. приехала. восхитилась. пришла в ужас. всё, вопрос о размерах гостиной лично для меня закрыт: 30-35 квадратов максимум. а теперь расскажите, что напроектирует мне среднестатистический архитектор, буде я приду к нему и скажу: "Обожаю ощущение свободы, сделайте мне гостиную побольше, побольше!" он будет задавать мне наводящие вопросы типа "а вы готовы эту площадь убирать, подумайте?" или "а вы не будете себя чувствовать в такой гостиной, как в гостиничном холле?"? ой что-то я сомневаюсь. скорее, забацает квадратов 70, чтоб наверняка свободненько, а потом скажет: "Ну вы же сами этого хотели" Быть заказчиком - это невероятно сложно. И если здесь слегкомыслиничать, пойти по линии наименьшего сопротивления - то все остальное будит лишь следствием а не причиной. Естественно - потом будут тысячи виноватых. вот тут совершенно согласна. проведу аналогию только что делала скважину на участке выела весь мозг буровикам. десятку буровиков. больше информации, чем форумчанин Igor_M, мне не дал НИ ОДИН. при этом практически все позиционировали себя как высококлассных специалистов, работающих на этом рынке по 10-15 лет. решения по методу бурения, по трубе, по фильтру и насосу я принимала самостоятельно, на основе полученной информации. если я допустила ошибку и моя скважина загнется через 2-3 года существования -- я буду винить в этом только себя. имхо это лучше, чем согласиться на условия первых же буровиков, а затем (не дай вдруг что) ныть, как злобно меня кинули непрофессионалы. Посилання на коментар Поділитися на інших сайтах More sharing options...
архітектор Опубліковано: 3 червня 2011 Поділитись Опубліковано: 3 червня 2011 всё, вопрос о размерах гостиной лично для меня закрыт: 30-35 квадратов максимум. а теперь расскажите, что напроектирует мне среднестатистический архитектор, буде я приду к нему и скажу: "Обожаю ощущение свободы, сделайте мне гостиную побольше, побольше!" он будет задавать мне наводящие вопросы типа "а вы готовы эту площадь убирать, подумайте?" или "а вы не будете себя чувствовать в такой гостиной, как в гостиничном холле?"? ой что-то я сомневаюсь. скорее, забацает квадратов 70, чтоб наверняка свободненько, а потом скажет: "Ну вы же сами этого хотели" . Ну я нимагу. Вы общаетесь с живым архитектором, у которого гостинная с очень большими окнами, и площадью чуть больше 35 м2 (правда туда же входит кухня и столовая)) Зачем писать ерунду - а если я пойду, а если мне напроектируют.... А если а если. Тема мотивов советчиков-самостройщиков не раскрыта. вот тут совершенно согласна. проведу аналогию только что делала скважину на участке имхо это лучше, чем согласиться на условия первых же буровиков, а затем (не дай вдруг что) ныть, как злобно меня кинули непрофессионалы. Вы где-то видели буровиков, которые подробно и детально пишут о своей работе??? Может на форуме есть?? Посилання на коментар Поділитися на інших сайтах More sharing options...
Alexander Pryakha Опубліковано: 3 червня 2011 Поділитись Опубліковано: 3 червня 2011 Этот проект обсуждался уже на этом форуме. Кажись, его построить yurii33 собирался. Поищите. 1 Посилання на коментар Поділитися на інших сайтах More sharing options...
Ray Опубліковано: 4 червня 2011 Автор Поділитись Опубліковано: 4 червня 2011 Ну я нимагу. Вы общаетесь с живым архитектором, у которого гостинная с очень большими окнами, и площадью чуть больше 35 м2 (правда туда же входит кухня и столовая)) эмм... я что, где-то писала "гостиная+кухня+столовая" -- 30-35 квадратов? вроде четко было написано: >>вопрос о размерах гостиной лично для меня закрыт: 30-35 квадратов максимум. больше -- камерный зал. если вы меня, потенциального заказчика, в этой мелочи НЕ ПОНИМАЕТЕ (то ли гостиная+кухня+столовая -- 30 квадратов, то ли только гостиная), то о каком понимании может идти речь на более сложном этапе проектирования? :D Зачем писать ерунду - а если я пойду, а если мне напроектируют.... А если а если. уважаемый, надеюсь, мои страхи "а если..." останутся всего лишь страхами, а не обернутся разочарованием от работы "проффесионала", как это случилось у Hopira. всё, ваша точка зрения понятна, спасибо. Вы где-то видели буровиков, которые подробно и детально пишут о своей работе??? Может на форуме есть?? ааа, вы прекрасны ) разжую. с буровиками общалась лично. долго. "выела им мозг". общее впечатление: человек видит только тот метод и те способы бурения, к которым привык за последние 10-15 лет работы. подстраиваться под меня (например, везти с собой водовозку) согласился аж ОДИН остальные гордо заявляли, что они спецы, у них заказы и вода для промывки моя проблема. не будь дилетанта Igor_М с его дилетантскими советами на данном дилетантском форуме, я бы согласилась на первое же предложение, которое сделал мне "спец". и лишь потом бы выяснила -- да и то не факт! -- что спец немножко подгулял. так что, уж извините, я для начала предпочитаю посоветоваться с "дилетантами". чтоб потом очень сильно не обжечься на "проффесионале". 1 Посилання на коментар Поділитися на інших сайтах More sharing options...
Oleksandr Protsev Опубліковано: 4 червня 2011 Поділитись Опубліковано: 4 червня 2011 Какие проблемы, пройдитесь по базару. Вы платите деньги, поэтому можете заказывать музыку. Я, тоже, делал скважину и никто мне не говорил про мою проблему с обеспечением водой. С кем Вы связывались? А по поводу проекта. Я давал Вам реальное предложение, сопоставьте реальные размеры комнат с мебелью. В Вашем коридорчике сосредоточено 7 СЕМЬ дверей, какие у них размеры, как они будут открываться? Детские развернуты на 180 градусов, а это значит что свет будет только в одной. Про топочную Вам уже сказали. Архитектор, Вам (на мой взгляд) пытается объяснить, что для разговора о ПРОЕКТЕ, нужны исходные данные. Наличие коммуникаций, их качество, стоимость, бюджет дома. А говорить о размере гостиной и о бюджетности домика Вы, пока, говорите о планах Вашего домика. Он, на проблему смотрит глобально. Архитектор, по меньшей мере построил себе дом и уже живет в нем, я бы прислушался к его советам, даже если они не нравятся. Но, в любом случае, решать Вам. 1 Посилання на коментар Поділитися на інших сайтах More sharing options...
Ray Опубліковано: 17 червня 2011 Автор Поділитись Опубліковано: 17 червня 2011 Архитектор, по меньшей мере построил себе дом и уже живет в нем, я бы прислушался к его советам, даже если они не нравятся. подниму тему, бо наткнулась в другой ветке на еще одну цитату -- фактически копию приведенной выше цитаты форумчанина Hopira. вот отзыв о работе еще одного профессионального архитектора: На что был получен ответ, что дело не только в конструктиве. Дело в том, что за свои деньги он (речь о заказчике проекта. -- Я) получил то, что ему НЕ НРАВИТСЯ. Я ему предложил за остаток суммы доделать проект. В итоге получился абсолютно другой дом. Дело не в "правильности" о которой Вы так любите говорить (кроме нее, собственно, ничего в Ваших постах я не нашел. Абсолютно.) Дело в чем-то другом. вывод: обсуждать проект на предварительном этапе все-таки выгоднее и логичнее с "дилетантами", а не с архитектором -- тем более тем, который любит давить авторитетом. и уже затем, на основе полученной инфо и чужого печального опыта, жестко строить архитектора, не позволяя ему своими шаблонами испоганить ТВОЮ мечту. сори за лирику. Посилання на коментар Поділитися на інших сайтах More sharing options...
архітектор Опубліковано: 17 червня 2011 Поділитись Опубліковано: 17 червня 2011 (змінено) подниму тему, бо наткнулась в другой ветке на еще одну цитату -- фактически копию приведенной выше цитаты форумчанина Hopira. вот отзыв о работе еще одного профессионального архитектора: вывод: обсуждать проект на предварительном этапе все-таки выгоднее и логичнее с "дилетантами", а не с архитектором -- тем более тем, который любит давить авторитетом. и уже затем, на основе полученной инфо и чужого печального опыта, жестко строить архитектора, не позволяя ему своими шаблонами испоганить ТВОЮ мечту. сори за лирику. отзыв прораба, любяшего демагогию и рассуждения о том как космические корабли бороздят просторы вселенной. В Вашем случае лучше заказать проект в трех фирмах: - прямо на форуме, чтобы люди насоветовали, потом со знакомыми, родственниками, друзьями, ну и в довершение - окончательно утвердить этот проект у прораба. А потом найти поддатливого архитектора, без принцыпов и шаблонов, без авторитета, с купленым дипломом - он сделает что угодно за Ваши деньги. Даже это: "передвинет вправо... левое..." Змінено 17 червня 2011 користувачем архитектор Посилання на коментар Поділитися на інших сайтах More sharing options...
Ray Опубліковано: 17 червня 2011 Автор Поділитись Опубліковано: 17 червня 2011 А потом найти поддатливого архитектора, без принцыпов и шаблонов, без авторитета, с купленым дипломом - он сделает что угодно за Ваши деньги. Даже это: "передвинет вправо... левое..." а что есть гарантия, что архитектор свой диплом не купил? не отзывы ли его клиентов -- благодарных или разочарованных? ;) по поводу, с кем обсуждать проект дома, вы меня вообще умилили. да, разумеется, я буду обсуждать его с родственниками -- им, родственникам, в этом доме жить. и да, разумеется, я буду благодарна замечаниям и советам тех, кто дом уже построил и в нем живет, -- т.е. форумчан. в чем моя ошибка? в том, что я достаточно взрослый человек и не готова верить на слово неподатливым "проффесионалам"? 2 Посилання на коментар Поділитися на інших сайтах More sharing options...
plus Опубліковано: 17 червня 2011 Поділитись Опубліковано: 17 червня 2011 а что есть гарантия, что архитектор свой диплом не купил? не отзывы ли его клиентов -- благодарных или разочарованных? ;) по поводу, с кем обсуждать проект дома, вы меня вообще умилили. да, разумеется, я буду обсуждать его с родственниками -- им, родственникам, в этом доме жить. и да, разумеется, я буду благодарна замечаниям и советам тех, кто дом уже построил и в нем живет, -- т.е. форумчан. в чем моя ошибка? в том, что я достаточно взрослый человек и не готова верить на слово неподатливым "проффесионалам"? Молодца! Можно было бы еще контрольный, но и так нормально Посилання на коментар Поділитися на інших сайтах More sharing options...
Ray Опубліковано: 17 червня 2011 Автор Поділитись Опубліковано: 17 червня 2011 архитектор, поймите меня правильно я не привыкла верить на слово даже специалистам. потому что "специалист" в наших реалиях -- понятие ой как растяжимое. где-то пробегал на форуме пример того, как заслуженный арх и профессор стройинститута наваял дом в полтора раза больше, чем хотел заказчик: "мы ему доверились, у него же опыт и авторитет, слово спеца казалось нам законом, спорить с ним боялись -- мы ж непрофессионалы в стройке... Помогите теперь, как нам уменьшить готовый проект?" вот как к этому относиться? имхо напиши автор той темы ЧУТЬ раньше на этом же форуме: "архитектор нарисовал слишком большой для нас дом и настаивает, что размеры должны быть именно такими. что делать: принимать работу или нет?", думаю, он сэкономил бы и нервы, и деньги. Посилання на коментар Поділитися на інших сайтах More sharing options...
архітектор Опубліковано: 17 червня 2011 Поділитись Опубліковано: 17 червня 2011 я достаточно взрослый человек Это хорошо. Наверно вы тоже работаете. Наверно ваша работа тоже подразумевает профессионализм? Или я не прав? А теперь представьте, приходит к вам клиент и начинает играть по своим правилам. Вопрос - вы будете браться за такую работу? Как вы считаете, куда в этом случае вы примените ваш предыдущий опыт? Как это отразится на вашей профессиональной организации труда? Долго ли вы протяните с десятком таких клиентов? Даст ли такая работа приятные эмоции или профессинальный рост? Допустим вы работаете в турбизнесе, я к вам пришел и объясняю - мне эти шаблонные туры нафиг не нужны. Я насоветовался, начитался - хочу эксклюзивный уникальный тур, как только мне что-то у вас не понравится, я тут же пишу о вас негативный отзыв и забираю деньги. Думаю профессионал может предложить два варианта - либо очень дорого (с возможной страховкой от капризов и непредвиденных непонравившихся результатов), либо посоветовать обратиться к другому специалисту. Допустим вы врач, пластический хирург. Я прихожу к вам, начитавшись отзывов о фатальных случаях, я точно знаю, чего хочу. Но вы, как профессионал, понимаете, что так быть не может. Что органы не будут из-за этого нормально функционировать, что потом вам это может обернуться судебными исками, что это в конце - концов неэстетитчно, и что вы сделали десятки операций и знаете, что будет с пациентом через год и через пять. Вы дорожите своей профессией, так как именно благодаря ей вы зарабатываете не только на кусок хлеба. Вы согласитесь вполнять некорретные, с вашей точки зрения, требования пациента? Вы будете ему гарантировать неухудшение здоровья? Вы не боитесь проблем в будущем? А ведь если что-то случается, уже не спрашивают мнения зала, а собирают профессионалов и проводят экспертизу ваших действий. С архитекторами ситуация аналогичная. 1 Посилання на коментар Поділитися на інших сайтах More sharing options...
Рекомендовані повідомлення
Створіть акаунт або увійдіть у нього для коментування
Ви маєте бути користувачем, щоб залишити коментар
Створити акаунт
Зареєструйтеся для отримання акаунта. Це просто!
Зареєструвати акаунтУвійти
Вже зареєстровані? Увійдіть тут.
Увійти зараз