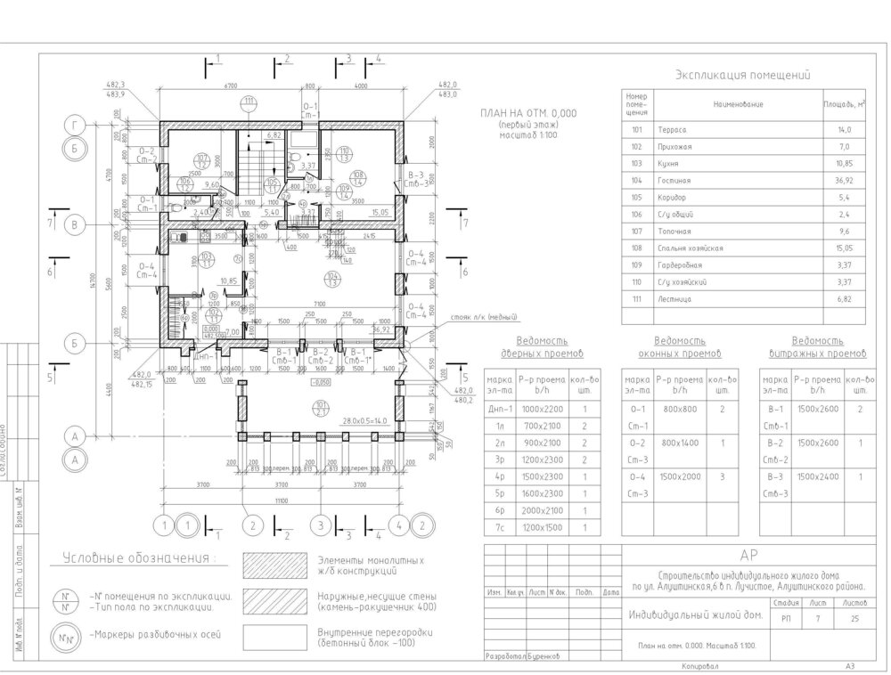
Maxi Опубліковано: 5 червня 2011 Поділитись Опубліковано: 5 червня 2011 Первого июня 2011г на участок на очень крутом склоне, но с очень красивым видом приехал экскаватор, чтобы немного его подравнять.... Вот проект дома и фото участка в первозданном виде. 5 Посилання на коментар Поділитися на інших сайтах More sharing options...
babyboom Опубліковано: 5 червня 2011 Поділитись Опубліковано: 5 червня 2011 Поздравляю, у Нас тоже на склоне, но не таком крутом!!! Посилання на коментар Поділитися на інших сайтах More sharing options...
VillaDeLux (ex Акро) Опубліковано: 5 червня 2011 Поділитись Опубліковано: 5 червня 2011 Ухты! Красота! Это в Лучистом? Черепицу ещё не выбирали? Посилання на коментар Поділитися на інших сайтах More sharing options...
Maxi Опубліковано: 6 червня 2011 Автор Поділитись Опубліковано: 6 червня 2011 Ухты! Красота! Это в Лучистом? Черепицу ещё не выбирали? Спасибо, но уже выбрал и заказал! Посилання на коментар Поділитися на інших сайтах More sharing options...
VillaDeLux (ex Акро) Опубліковано: 6 червня 2011 Поділитись Опубліковано: 6 червня 2011 Спасибо, но уже выбрал и заказал! А какую, если не секрет. Тут не столько коммерческий интерес сколько моя страсть с средиземноморскому стилю. Посилання на коментар Поділитися на інших сайтах More sharing options...
Koskos Опубліковано: 6 червня 2011 Поділитись Опубліковано: 6 червня 2011 Обалдеть...панорама впечатляет) Строить на таком склоне будет нелегко, конечно...а как вы планирует "укреплять" дом на склоне? Сваи забивать? Схема фундамента уже есть? Посилання на коментар Поділитися на інших сайтах More sharing options...
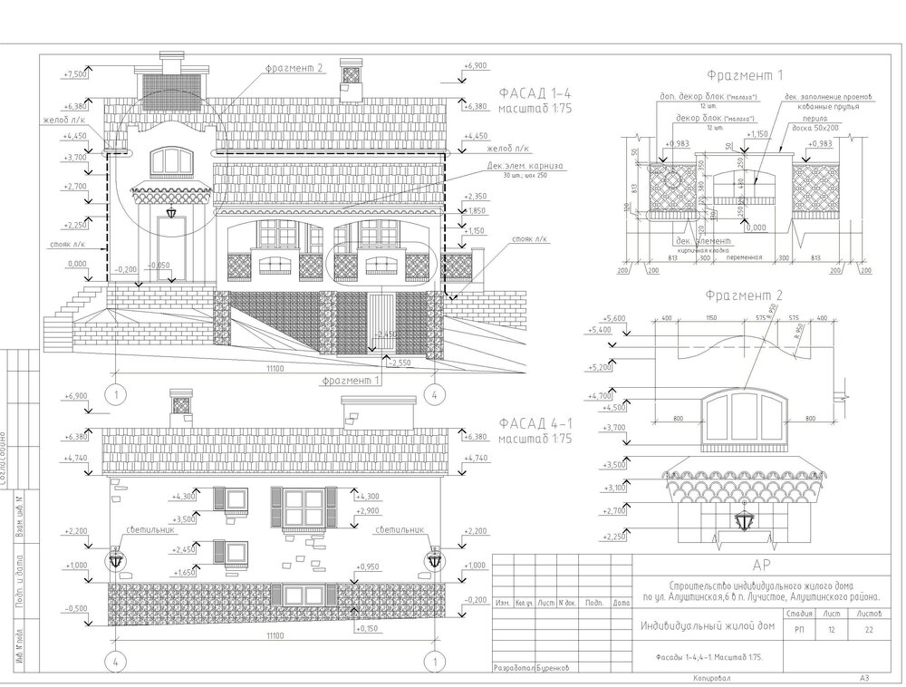
Maxi Опубліковано: 6 червня 2011 Автор Поділитись Опубліковано: 6 червня 2011 А какую, если не секрет. Тут не столько коммерческий интерес сколько моя страсть с средиземноморскому стилю. La Escandella "Lucentum".... думаю будет красиво! Посилання на коментар Поділитися на інших сайтах More sharing options...
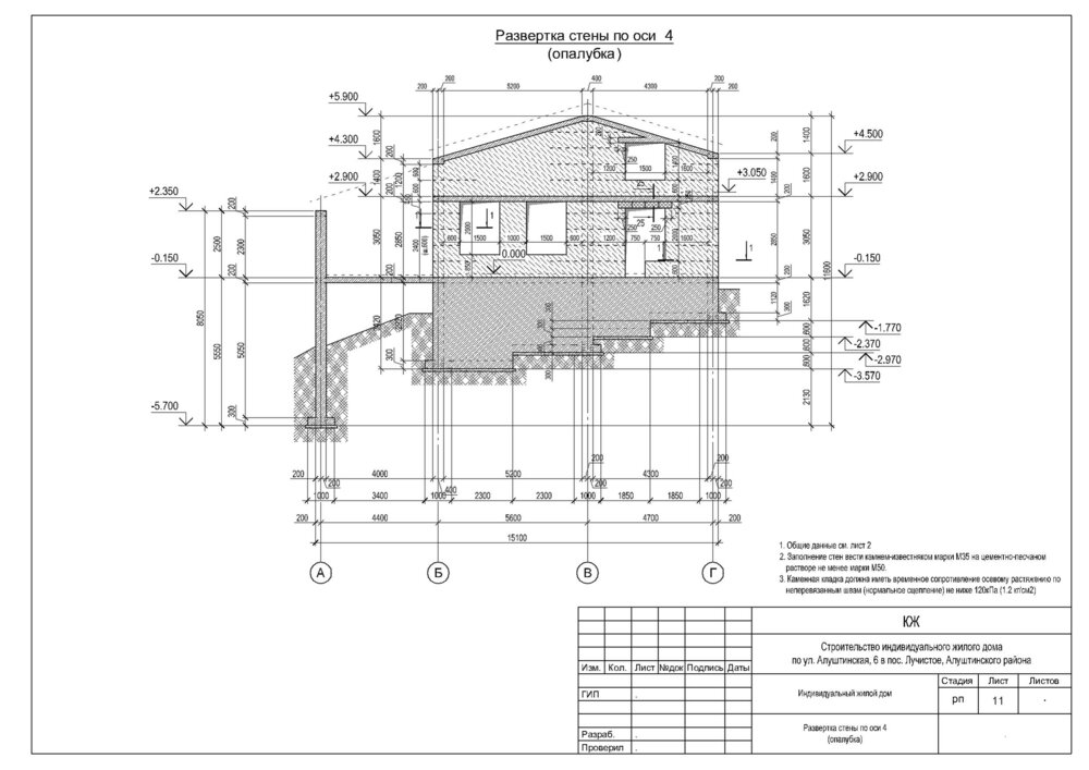
Maxi Опубліковано: 6 червня 2011 Автор Поділитись Опубліковано: 6 червня 2011 Обалдеть...панорама впечатляет) Строить на таком склоне будет нелегко, конечно...а как вы планирует "укреплять" дом на склоне? Сваи забивать? Схема фундамента уже есть? Нет свай не будет, грунт выберается уступами.... весь проект готов. А вчера еще сюрпризм добавили погребок для вина без особых изменений конструктива. На фундамент тут не смотрите, это чертеж архитектора (не конструктора) 1 Посилання на коментар Поділитися на інших сайтах More sharing options...
Maxi Опубліковано: 6 червня 2011 Автор Поділитись Опубліковано: 6 червня 2011 Вот и схема подвальчика нарисовалась ! 1 Посилання на коментар Поділитися на інших сайтах More sharing options...
badgy Опубліковано: 7 червня 2011 Поділитись Опубліковано: 7 червня 2011 А можно глянуть, как планируете делать фундамент. Посилання на коментар Поділитися на інших сайтах More sharing options...
Maxi Опубліковано: 7 червня 2011 Автор Поділитись Опубліковано: 7 червня 2011 А можно глянуть, как планируете делать фундамент. Да пожалуйста: 2 Посилання на коментар Поділитися на інших сайтах More sharing options...
VillaDeLux (ex Акро) Опубліковано: 7 червня 2011 Поділитись Опубліковано: 7 червня 2011 La Escandella "Lucentum".... думаю будет красиво! Красивая, зараза. Правда, мне кажется что такая раскраска "под лишай" уместна больше в лесных массивах. Это с точки зрения логичности. Я бы порекомендовал что то в более пёстрых и контрастных расцветках. Хотя, хозяин - барин. В любом случае, за керамику респект, за средиземноморку дважды респект. С трассы будет видно дом? Посилання на коментар Поділитися на інших сайтах More sharing options...
BrotherSam Опубліковано: 7 червня 2011 Поділитись Опубліковано: 7 червня 2011 Вот ... фото участка в первозданном виде. Вах, какая красота. Удачи в реализации! Посилання на коментар Поділитися на інших сайтах More sharing options...
Maxi Опубліковано: 7 червня 2011 Автор Поділитись Опубліковано: 7 червня 2011 Земляные работы и катлован: Посилання на коментар Поділитися на інших сайтах More sharing options...
Maxi Опубліковано: 7 червня 2011 Автор Поділитись Опубліковано: 7 червня 2011 Про черепицу немного соврал! Просто долго выбирали между Lucentum и Athenas, что я и сам запутался ))) Вобщем, выбрал я на самом деле Athenas, она светлее... Посилання на коментар Поділитися на інших сайтах More sharing options...
Maxi Опубліковано: 12 червня 2011 Автор Поділитись Опубліковано: 12 червня 2011 Земляные работы почти закончены. Начали завоз материалов для заливки фундамента. 2 Посилання на коментар Поділитися на інших сайтах More sharing options...
Maxi Опубліковано: 23 червня 2011 Автор Поділитись Опубліковано: 23 червня 2011 Дело потихоньку продвигается. На первом снимке геодезисты выносят оси на местность, на третем уже залита подбитонка и начало каркаса. Вывод №1: Если хотите, чтобы дом был ровный и стоял там где надо, приглошайте геодезистов для выноса осей. 1 Посилання на коментар Поділитися на інших сайтах More sharing options...
Koskos Опубліковано: 23 червня 2011 Поділитись Опубліковано: 23 червня 2011 Дело потихоньку продвигается. На первом снимке геодезисты выносят оси на местность, на третем уже залита подбитонка и начало каркаса. Вывод №1: Если хотите, чтобы дом был ровный и стоял там где надо, приглошайте геодезистов для выноса осей. Земляные работы впечатляют своим масштабом и сложностью... А там електричество рядом есть с участком? не вижу на фото столбов. За газ даже не спрашиваю - думаю его там нет. В Крыму из ракушняка все строятся? В кирпиче нет смысла, да? Посилання на коментар Поділитися на інших сайтах More sharing options...
Maxi Опубліковано: 23 червня 2011 Автор Поділитись Опубліковано: 23 червня 2011 Электричество в 20 метрах на верхнем участке (там же и газ) Столб поставят наверно через неделю-другую. Сложней было с водой, но думаю будет все нормально. Вода даже родниковая!!!! Стены конечно из ракушки...это просто еще один подарок крымчанам, глупо от него отказываться. Посилання на коментар Поділитися на інших сайтах More sharing options...
Maxi Опубліковано: 29 червня 2011 Автор Поділитись Опубліковано: 29 червня 2011 Двигаемся дальше! Залито основание фундамента и вяжется каркас. Посилання на коментар Поділитися на інших сайтах More sharing options...
Maxi Опубліковано: 10 липня 2011 Автор Поділитись Опубліковано: 10 липня 2011 Установили часть опалубки. Опалубку (половину) взял в аренду пластиковую, очень удобная в установке да и выгодно, так как леса бы ушло очень много а потом его только выкинуть. Там, где вверху заканчивается опалубка - это ноль дома. Только сейчас начинаю понимать как будет высоко дом! 3 Посилання на коментар Поділитися на інших сайтах More sharing options...
Koskos Опубліковано: 10 липня 2011 Поділитись Опубліковано: 10 липня 2011 Боже, какая красота у вас из окон будет...Это море на горизонте справа видно? Посилання на коментар Поділитися на інших сайтах More sharing options...
VillaDeLux (ex Акро) Опубліковано: 10 липня 2011 Поділитись Опубліковано: 10 липня 2011 Боже, какая красота у вас из окон будет...Это море на горизонте справа видно? Да. Алушта. Посилання на коментар Поділитися на інших сайтах More sharing options...
Koskos Опубліковано: 10 липня 2011 Поділитись Опубліковано: 10 липня 2011 Да. Алушта. Радом есть свободные участки?) Напишите цены в личку) Посилання на коментар Поділитися на інших сайтах More sharing options...
Иван Иванов Опубліковано: 10 липня 2011 Поділитись Опубліковано: 10 липня 2011 Красивенный проект, место тоже класс. Ждем дальнейших рассказов! Посилання на коментар Поділитися на інших сайтах More sharing options...
Рекомендовані повідомлення
Створіть акаунт або увійдіть у нього для коментування
Ви маєте бути користувачем, щоб залишити коментар
Створити акаунт
Зареєструйтеся для отримання акаунта. Це просто!
Зареєструвати акаунтУвійти
Вже зареєстровані? Увійдіть тут.
Увійти зараз