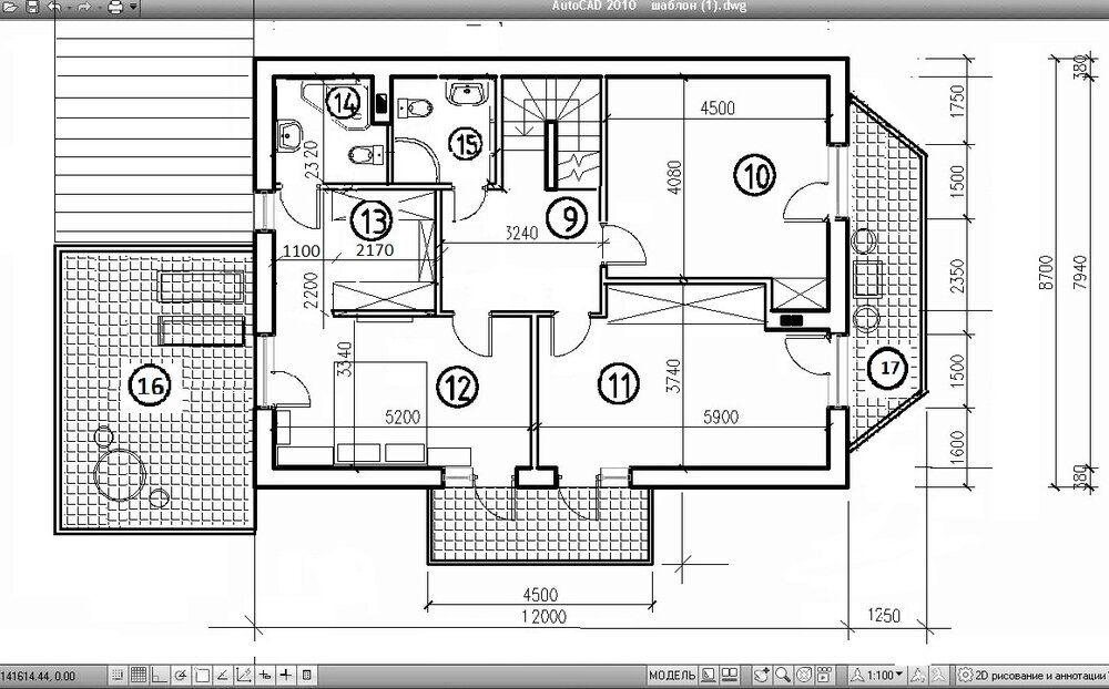
Victorianets Опубліковано: 13 червня 2011 Поділитись Опубліковано: 13 червня 2011 (змінено) Здравствуйте, друзья! Вот уже неделю с удовольствием читаю этот форум. Хороший, интересный и очень живой ресурс. Вы все, просто все вы - большие молодцы! Учите друг друга, учитесь сами...это греет и радует Хочу показать вам предварительный проект, в котором пытался учесть многое из того, что почерпнул из прочитанного, подслушанного, увиденного здесь на форуме. За основу был взят проект Архона "дом в бархатцах 4", который и подвергся серьезной переработке. www.archon.com.ua/proekt_doma/AKSAMITKI_4/m47872cc68eec4 Опыта проживания в доме у меня нет, но как мог, попытался промоделировать эту ситуацию и вот что родилось у меня в итоге. Забегая наперед скажу, что подобный домик у меня уже строится, но в более упрощенном варианте (с гаражом в доме, на мансардном этаже один санузел и нет терассы). Я же, имея теперь возможность созерцать всю геометрию вживую изнутри здания, ведомый периодическими озарениями , решил дошлифовать планировку уже на бумаге: либо на будущее пригодится, либо кому-то это тоже понравится, так пусть берут на здоровье, не жалко. Исходя из моего небогатого опыта, у меня замечаний по планам теперь особых нет, но буду рад их услышать от вас. Дом кирпичный, перекрытия жбк, соотношение сторон 1200 на 8700. Что изменилось по-крупному: 1-ый этаж Холл (на плане 1) Убран санузел. Теперь это полноценный холл с местом для обуви, шкафа купе, широкий, функциональный. При прочих равных я "за" просторный холл, особенно если это центр пересечения многочисленных траекторий, как у меня. Гараж. (7) Под влиянием нередких советов, гараж из дома я убрал. Теперь он ушел в пристройку. На его месте комната (5), а дальше увеличенный хозблок с котельней (6). Нормальный обмен. Пристроенный гараж выехал чуть дальше за дом, а место прямо перед ним это парковка под навесом (8), образованным терассой. То есть две машины вдоль при необходимости уже станет – одна в гараж, другая перед ним под навес. Гаражом в отличии от дома можно близко придвинуться к краям участка. Это позволяет по максимуму использовать территорию. Лестница. По сравнению с оригиналом Архона самое фундаментальное изменение это перенос лестницы из холла в гостиную (3). Не вполне понимаю почему, но часто слышу, что многим не нравится, когда при входе в дом взгляд сразу упирается в лестницу. Тут этот мнимый недостаток убран, лестница начинается интереснее и раньше, что (немаловажно) позволяет сохранить комфортный марш по ней при добавлении высоты потолка. Теперь она изюминка комнаты. Особо не переживаю, что она отнимает полезное пространство комнаты (эта часть стены гостинной все равно не была бы особо функционально нагружена, к тому же комната визуально хорошо увеличена эркером). Под лестницу теперь интересно задвигается угловой диван, можно поставить торшер и получается интимный изолированный уголок, в который можно забиться. И во всех фильмах меня всегда забавляло вот это "папа,мама, доброе утро!", бодро раздающееся с лестницы рядом. Вообщем, то как она встала, мне показалось интересным. Теперь это фишка комнаты. Санузел. Теперь скажу о пространственном бонусе, который поимели благодаря переносу лестницы. Ванная (2). Ванная забралась теперь под лестницу. Мы не потеряли это пространство, а взяли от него по максимуму - на первом этаже, таким образом, образовался полноценный санузел. Кроме того, санузел граничит с топочной. Камин (К) Переехал. Теперь он угловой. Стал на примыкании гостиной к кухне. Стал, наверное, неидеально, но неплохо. Далековато от дивана, но близко к столовой зоне. Вообщем, приемлемое компромиссное решение. Вместе с перегородкой между гостинной и кухней он образует проем, который при желании можно закрыть раздвижными дверьми, полностью изолировав кухню. Со стороны кухни задний пристенок камина образует приятный уголок у окна, куда помещаются стулья-столик. Уютно. Резюме. Я попытался сбалансировать пространства, добиться универсальности, избежав тесноты, неудачных закутков, каморок, во всем сохраняя пропорции комфортных средних размеров. По моим ощущениям теперь ничего не давит, все органично, удобно, мебель везде расставляется, и в тоже время планировка интересная, нескучная. Гостинная как бы не огромная (иначе не выдержать баланс), но лестница, эркер, камин, выход на террасу сильно оживляют ее. Кухня полноценная и может быть как изолирована так и открыта по желанию. Постирочная полноценная есть, отдельная комната на первом этаже есть. Хороший санузел первого этажа с ванной. Много окон, много света. Ну, для кого-то это далеко не плюс, но для меня дом должен быть обязательно красивым внешне и светлым внутри. Что еще можно пожелать по первому этажу, какие будут замечания, друзья? Змінено 13 червня 2011 користувачем Victorianets Посилання на коментар Поділитися на інших сайтах More sharing options...
Victorianets Опубліковано: 13 червня 2011 Автор Поділитись Опубліковано: 13 червня 2011 2-ой этаж Холл (9) Он увеличен. Просто выдвинут вперед. Площадь его будет в районе 8-9 метров. Не так много, но уже не так грустно как в оригинале, где совсем уж негде было развернуться. Двери в комнаты, что прямо по ходу, максимально раздвинуты, чтобы повесить между ними в холле, скажем, зеркало и разгрузить одновременно угол изнутри хозяйской спальни (12) Хозяйская спальня (12) Тут опять-таки, все концептуально стало иначе. Я рискнул расставить приоритеты следующим образом: спальня хозяев должна быть только на втором этаже. На первом этаже она никак не получается полноценной в моем понимании этого слова. А вот на втором - вполне. Я взвесил и решил, что спальня это место, где человек проводит львиную долю времени, поэтому она должна быть навроде отдельной квартиры. Перенос лестницы и здесь аукнулся плюсом, позволив начертить, то, что теперь можно увидеть на схеме. Спальня перетекает в оригинальный открытый гардероб. В него попадает естественный свет из второго окна, а рядом с окном на стене зеркало, т.е. как раз напротив - стой в гардеробе да примеряйся. Далее дверь в отдельный санузел (14) при спальне. Приятнейшая вещь, если однажды попробовать каково это. Да, невелик санузел (не более 4,5 м кв., точнее пока не вымерял), но, ребята, он свой персональный. Дополнительный изюм хозяйской спальни - выход на террасу (16). Я никак не мог понять, почему не используется пространство на крыше пристроенных к дому гаражей, в итоге нарисовал себе сам, а потом нашел-таки и подобные проекты (вложение, но там без навеса). Я ограничил террасу той площадью, которая создается крытым навесом над машиной, а дальше, когда навес перетекает в гараж, пойдет уже обычная крыша. Террасу можно продлевать и дальше вправо по крыше гаража, но я посчитал, что в этом нет необходимости. В конце концов, и шезлонги, и столик и кадки с кипарисами по периметру - все это умещается. Была еще мысль сделать с террасы возможность спуска по лестнице прямо во двор. Т.е. как бы отдельный выход из дома со второго этажа через террасу. Но так и не смог понять, не станет ли это минусом, уничтожившим интим данной территории. Засим, пока отбросил. Санузел Теперь их два (14 и 15). Они невелики, метра по 4,5 каждый, но их два. При моих стараниях добиться максимальной универсальности планировки дома это меньшее зло, наверное, чем один, но большой. Судите сами. Семья из 4-х человек. На втором этаже хозяйская спальня и две детские комнаты. Один санузел? Это мало, это не жизнь, ну представьте себе эти очереди. Я решил, пусть лучше два, но не большие. В них можно сделать мансардные окна а перегородку между санузлами в верхней ее части остеклить, чтобы мансардное окно каждого из них добавляла света соседнему санузлу. Не забываем так же, что относительно просторный санузел уже есть внизу прямо мод лестницей, и не забываем также о том, что в доме теперь три санузла и все они расположены рядом и один под другим (это раз) и все они рядом с топочной (это два). Э? Балкон Балкон над эркером я прибавил (17). Мне опять не понравилось, что над эркером пропадает пространство. Я сделал там балкон и продлил его на две комнаты. Опять-таки, сначала он придумался, а потом я и увидел его. Ну, идея-то лежит на поверхности, так что ничего удивительного. www.archon.com.ua/proekt_doma/%D0%B4%D0%BE%D0%BC_%D0%B2_%D0%B1%D0%B0%D1%80%D1%85%D0%B0%D1%82%D1%86%D0%B0%D1%85_2/m42662fb33ec11 Если планировать на втором этаже эти две комнаты (10 и 11) как две детские, то мне такой коммуникативный мостик в виде балкона показался тем более очень приятным. К тому же балкон отнюдь не декоративный, а довольно просторный. Там становится мини столик и стулья. Остальные две комнаты на этаже это полноценные просторные комнаты, а не коморки по остаточному принципу. Резюме. Мне кажется, пространства и здесь удалось выдержать в балансе. Ничто не выпирает и не крадет одно у другого критическим образом. Холл увеличил как мог, все комнаты хороших размеров, две из них имеют по два света даже без мансардных окон. Спокойно расставляется мебель. Одна комната имеет выход на большой балкон, вторая на два балкона, третья на балкон и террасу. Вряд ли, конечно, нужны балконы в таком количестве, но так уж вышло. Новообразованный балкон над эркером я однозначно оставляю, а вот с фасада я бы балкон убрал, возможно выехав бы лучше вперед на его площадь стенками второго этажа, но если не суметь этот выезд хорошо обыграть то фасад может смотреться по-хуже, тяжеловесно. Вообще такие будки делают, проекты видел. proekty.muratordom.com.ua/projekt_tsieliestin,2141,1,0.htm?frm_search=1&id_grupy=1&powierzchnia_od=160&powierzchnia_do=200&typ_budynku=3&kat_nach_od=&kat_nach_do=&wysokosc_w_kalenicy_od=&wysokosc_w_kalenicy_do=&szer_dzia_od=&szer_dzia_do=&gleb_dzia_od=&gleb_dzia_do=&wym_el_front_od=&wym_el_front_do=&wym_el_bocznej_od=&wym_el_bocznej_do=&pokoje_bez_salonu_input=&author_id=&nr=8 С точки зрения дополнительного комфорта внутри комнат, это решение удачное: там может образоваться рабочий уголок, например, или стать дамский столик. Площади я не указываю, т.к. совершенно точных обмеров пока не делалось, но размеры по возможности везде присутствуют (с небольшими погрешностями), так что можно сразу перемножить. Надеюсь, было интересно следить за мыслью и очень рассчитываю на ваши ценные замечания, а также комментарии профессионалов. Посилання на коментар Поділитися на інших сайтах More sharing options...
glirus Опубліковано: 13 червня 2011 Поділитись Опубліковано: 13 червня 2011 а как насчет розмещения на участке с привязками по сторонам горизонта? Проект не плохох в принципе но не законченный Посилання на коментар Поділитися на інших сайтах More sharing options...
vickov Опубліковано: 14 червня 2011 Поділитись Опубліковано: 14 червня 2011 Мне кажется, что некомфортно будет находиться в ванной и наблюдать нависший лестничный марш над головой. ИМХО. Посилання на коментар Поділитися на інших сайтах More sharing options...
Victorianets Опубліковано: 14 червня 2011 Автор Поділитись Опубліковано: 14 червня 2011 Мне кажется, что некомфортно будет находиться в ванной и наблюдать нависший лестничный марш над головой. ИМХО. Ну, в этом месте он уже выходит довольно высоко и потом потолок тут подшивается, лестницу снизу созерцать не нужно конечно. Посилання на коментар Поділитися на інших сайтах More sharing options...
Victorianets Опубліковано: 14 червня 2011 Автор Поділитись Опубліковано: 14 червня 2011 а как насчет розмещения на участке с привязками по сторонам горизонта? Проект не плохох в принципе но не законченный Хорошо, а в чем незаконченность? Посилання на коментар Поділитися на інших сайтах More sharing options...
Victorianets Опубліковано: 16 червня 2011 Автор Поділитись Опубліковано: 16 червня 2011 Судя по отсутствию критических замечаний, с планировкой все комильфо. Сам себе архитектор, стало быть :D Посилання на коментар Поділитися на інших сайтах More sharing options...
voglya Опубліковано: 16 червня 2011 Поділитись Опубліковано: 16 червня 2011 А мне не нравится лестница в гостиной. Думаю, ей место в коридоре. Кто-то в гостиной проводит весело время, а кто-то в пижаме спустился вниз за стаканом кефира... У себя старалась, чтобы кухня из гостиной не просматривалась. Не знаю как у вас, а у меня то компотик варится, то бульончик, то духовка пыхтит... Для меня кухня - рабочий цех... Впрочем, я и тамбур себе хочу... и выход на террасу - со столовой, а не из зала... Посилання на коментар Поділитися на інших сайтах More sharing options...
Victorianets Опубліковано: 17 червня 2011 Автор Поділитись Опубліковано: 17 червня 2011 А почему хотите выход на террасу из кухни? Это удобнее, считаете? Я просто тоже думал об этом, но не пришел к определенному выводу. Разве что вход-выход во двор, песок и пыль, а на кухне плитка, т.е. практичнее, такие соображения. Посилання на коментар Поділитися на інших сайтах More sharing options...
lusa Опубліковано: 17 червня 2011 Поділитись Опубліковано: 17 червня 2011 Однозначно из кухни! Хозяйки меня поймут, кто на терассе стол накрывал))) Побегать с тарелками, вилками, ложками - еще то удовольствие. И подруга, которая этот момент пропустила, очень жалела потом. Посилання на коментар Поділитися на інших сайтах More sharing options...
Victorianets Опубліковано: 17 червня 2011 Автор Поділитись Опубліковано: 17 червня 2011 Тогда, наверное, идеально когда два выхода на террасу (один из кухни, второй из гостинной) или это уже черезчур? Посилання на коментар Поділитися на інших сайтах More sharing options...
voglya Опубліковано: 17 червня 2011 Поділитись Опубліковано: 17 червня 2011 ... и выход на террасу - со столовой, а не из зала... Выход на террасу - со столовой. Я себе предполагаю конфигурацию зал-столовая-кухня буквой Г. Т.е. из кухни не виден зал, на пересечении их осей - столовая. А из столовой - выход на террасу. Песка и пыли не предполагала!!!! Посилання на коментар Поділитися на інших сайтах More sharing options...
Рекомендовані повідомлення
Створіть акаунт або увійдіть у нього для коментування
Ви маєте бути користувачем, щоб залишити коментар
Створити акаунт
Зареєструйтеся для отримання акаунта. Це просто!
Зареєструвати акаунтУвійти
Вже зареєстровані? Увійдіть тут.
Увійти зараз