olga32 Опубліковано: 20 червня 2011 Поділитись Опубліковано: 20 червня 2011 Ну вот, пришло время и мне начать свою темку...:roll: Критика и советы приветствуются Стройка идет второй месяц... Но, начну сначала. Участок искали полгода. Нашли то, что хотели : 10 сот., в городе, в том районе, где живем. Участок прямоугольный 25х40. 1 Посилання на коментар Поділитися на інших сайтах More sharing options...
wironna Опубліковано: 20 червня 2011 Поділитись Опубліковано: 20 червня 2011 Поздравляю! Удачной стройки! 2 Посилання на коментар Поділитися на інших сайтах More sharing options...
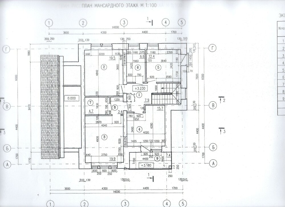
olga32 Опубліковано: 20 червня 2011 Автор Поділитись Опубліковано: 20 червня 2011 Проект купили типовой в питерской фирме.Это была первая ошибка - переделать проект под "украинский флаг" стоило не меньше, чем заказать эскизный проект у этого же архитектора. Но, что сделано, то сделано. Вот наш проект с внесенными изменениями. Посилання на коментар Поділитися на інших сайтах More sharing options...
olga32 Опубліковано: 20 червня 2011 Автор Поділитись Опубліковано: 20 червня 2011 Экскаватор на участок загнали 12 мая. С этого дня и считаем начало стройки. Экскаватор и, собственно, результат работы. Посилання на коментар Поділитися на інших сайтах More sharing options...
olga32 Опубліковано: 20 червня 2011 Автор Поділитись Опубліковано: 20 червня 2011 Проект меняется по ходу работы. Участок с уклоном, досыпать придется около 50-60 см. В связи с этим и возникло желание сделать цокольный этаж, чтобы не зарывать в землю кубы бетона. Правда для удешевления эти кубы были заменены на ФБС. Посилання на коментар Поділитися на інших сайтах More sharing options...
olga32 Опубліковано: 20 червня 2011 Автор Поділитись Опубліковано: 20 червня 2011 Застройщицы 1 Посилання на коментар Поділитися на інших сайтах More sharing options...
olga32 Опубліковано: 20 червня 2011 Автор Поділитись Опубліковано: 20 червня 2011 Гидроизоляцию делали сами. Остановились на "Abizol P". В Мариуполе вообще не нашли ничего подобного. В "Эпицентре" выбор был невелик, так что выбирали недолго... Посилання на коментар Поділитися на інших сайтах More sharing options...
olga32 Опубліковано: 20 червня 2011 Автор Поділитись Опубліковано: 20 червня 2011 Пирог стены : ракушка (380 мм) + базальтовая вата (60 мм)+ воздушный зазор (40 мм) + клинкерный кирпич (120 мм). Кирпич с долгими и мучительными поисками был выбран. И завезен на участок. Керамейя Клинкерам, цвет магма диабаз. 1 Посилання на коментар Поділитися на інших сайтах More sharing options...
olga32 Опубліковано: 20 червня 2011 Автор Поділитись Опубліковано: 20 червня 2011 За ракушкой поехали сами. В сакском районе, честно говоря, нашли только выработанные карьеры. В конце концов добрались мы до Первомайского района, с. Открытое. Карьеров много. Желтого ракушняка почти нет, в основном белый (серый). Не знаю в чем разница, но желтый ракушечник был более пористый, поэтому выбрали его. Ехали за маркой М25. В карьере сказали, что этой марки уже лет 5 нет. Максимум М20. Странно, а дилеры продают М 25...:-x Первая фура ракушки приехала. Доехал камень такой же , какой был в карьере. Битых было не больше десятка: два из них расколоты пополам, остальные с отбитыми уголками. Но, не страшно, на бой дали лишних 40 камней. В общем качеством ракушки довольны, на следующей неделе закажем еще две машины. 1 Посилання на коментар Поділитися на інших сайтах More sharing options...
olga32 Опубліковано: 20 червня 2011 Автор Поділитись Опубліковано: 20 червня 2011 На данный момент имеем : накрытый плитами цоколь. Завезенный материал на стены. Выбираем базальтовую вату. Как вариант - PANELROCK (Rockwool) или ТЕРМОЛАЙФ. Термолайф дешевле и есть в Мариуполе. Есть у кого-то опыт работы с этим утеплителем? Может кто-то посоветует другой утеплитель? Еще интересуют базальтовые гибкие связи. Завтра позвоню в Киевскую фирму, будем автолюксом везти. Может у кого есть в Донецке координаты фирм, которые занимаются продажей этой арматуры? Посилання на коментар Поділитися на інших сайтах More sharing options...
Koskos Опубліковано: 20 червня 2011 Поділитись Опубліковано: 20 червня 2011 Молодцы! С началом! Я никогда в наших широтах не сталкивался с ракушняком как стеновым материалом. У него на фото не идеальная геометрия блоков - как его правильно ложить? Какая толщина шва? 1 Посилання на коментар Поділитися на інших сайтах More sharing options...
olga32 Опубліковано: 20 червня 2011 Автор Поділитись Опубліковано: 20 червня 2011 Спасибо! Геометрия гуляет по длине до 3 см, по ширине - до 1 см. Кладется как шлакоблок, толщина шва неодинаковая, за счет шва выравниваются отклонения в геометрии. Посилання на коментар Поділитися на інших сайтах More sharing options...
zyf Опубліковано: 20 червня 2011 Поділитись Опубліковано: 20 червня 2011 Мы с вами как-то параллельно идем:D. Мы сейчас тоже собираемся покупать такие же гибкие связи. Правда, муж хочет сам в Киев ехать покупать - хочет посмотреть, как выглядят. Посилання на коментар Поділитися на інших сайтах More sharing options...
olga32 Опубліковано: 20 червня 2011 Автор Поділитись Опубліковано: 20 червня 2011 Нам предложили выслать несколько штук, чтобы мы посмотрели. Но нет времени, в среду если в Донецке не купим, закажем в Киеве. Ехать в Киев нам далековато Посилання на коментар Поділитися на інших сайтах More sharing options...
Koskos Опубліковано: 20 червня 2011 Поділитись Опубліковано: 20 червня 2011 На данный момент имеем : накрытый плитами цоколь. Завезенный материал на стены. Выбираем базальтовую вату. Как вариант - PANELROCK (Rockwool) или ТЕРМОЛАЙФ. Термолайф дешевле и есть в Мариуполе. Есть у кого-то опыт работы с этим утеплителем? Может кто-то посоветует другой утеплитель? Еще интересуют базальтовые гибкие связи. Завтра позвоню в Киевскую фирму, будем автолюксом везти. Может у кого есть в Донецке координаты фирм, которые занимаются продажей этой арматуры? У меня похожий на ваш пирог стен - керамоблок+минвата+воздух+клинкер, и я также столкнулся с выбором минваты и гибких связей. К сожалению сэкономить не удалось. Роквул уже не тот покачеству, термолайф даже не рассматривал (подшить гипсокартонный потолок им еще можно - на стены дома побоялся бы из-за качества). Остановился на Parock - реально даже на ощупь лучше роквула. Гибкие связи - одно расстройство. Мой прораб и архитектор отговорили от них - после укладки сохраняется слишком большое внутреннее напряжение в стержнях. Это приводит к плавному смещению швов клинкера и разрыва минваты. Пришлось использовать не дешевую оцинкованную ленту. Посилання на коментар Поділитися на інших сайтах More sharing options...
olga32 Опубліковано: 20 червня 2011 Автор Поділитись Опубліковано: 20 червня 2011 А "в Ваших широтах" - это где? Мы тоже хотели поротерм, но все-таки вернулись к ракушке. Парок тоже рассматриваем, со стеклохолстом, чтобы ветрозащиту не использовать, но в Мариуполе его не нашли, в Донецке поищем, а из Киева дорого везти. Наши прорабы нам советуют оцинкованную сетку использовать, но мы почему-то решили, что базальтопластиковые связи лучше. С ними крепеж понятен - надо зонтики надеть, а к сетке как вы крепите? Посилання на коментар Поділитися на інших сайтах More sharing options...
Koskos Опубліковано: 20 червня 2011 Поділитись Опубліковано: 20 червня 2011 А "в Ваших широтах" - это где? Мы тоже хотели поротерм, но все-таки вернулись к ракушке. Парок тоже рассматриваем, со стеклохолстом, чтобы ветрозащиту не использовать, но в Мариуполе его не нашли, в Донецке поищем, а из Киева дорого везти. Наши прорабы нам советуют оцинкованную сетку использовать, но мы почему-то решили, что базальтопластиковые связи лучше. С ними крепеж понятен - надо зонтики надеть, а к сетке как вы крепите? я в Киеве. вы не поняли - это не оцинкованная сетка. Это классическая перфорированная оцинкованная лента которую обычно используют в гипсокартонных системах, как хомут на трубах и т.д. базальтовые связи просто дешевле. Посилання на коментар Поділитися на інших сайтах More sharing options...
olga32 Опубліковано: 20 червня 2011 Автор Поділитись Опубліковано: 20 червня 2011 я в Киеве. вы не поняли - это не оцинкованная сетка. Это классическая перфорированная оцинкованная лента которую обычно используют в гипсокартонных системах, как хомут на трубах и т.д. базальтовые связи просто дешевле. А как крепить вату? И сколько стоит погонный метр базальтовых связей? Оцинкованная лента 18 мм стоит 2грн. погонный метр. Посилання на коментар Поділитися на інших сайтах More sharing options...
Koskos Опубліковано: 20 червня 2011 Поділитись Опубліковано: 20 червня 2011 А как крепить вату? И сколько стоит погонный метр базальтовых связей? Оцинкованная лента 18 мм стоит 2грн. погонный метр. вата крепится одновременно на клей и на пластиковые "зонтики". в моем случае клей еще выполняет функции шпатлевки при заделывании вертикальных швов в блоках поротерм. стоимость базальт связей не помню - помню что значительно дешевле. Посилання на коментар Поділитися на інших сайтах More sharing options...
olga32 Опубліковано: 20 червня 2011 Автор Поділитись Опубліковано: 20 червня 2011 Базальтопластиковые еще сама не прозванивала, а стеклопластиковые - 3 грн пог.метр. Завтра поговорю со своими прорабами. Такую ленту не проблема и у нас купить. Спасибо за совет. Посилання на коментар Поділитися на інших сайтах More sharing options...
aleks.recluse Опубліковано: 21 червня 2011 Поділитись Опубліковано: 21 червня 2011 Проект меняется по ходу работы. Участок с уклоном, досыпать придется около 50-60 см. В связи с этим и возникло желание сделать цокольный этаж, чтобы не зарывать в землю кубы бетона. Правда для удешевления эти кубы были заменены на ФБС. Поздравляю с началом!!! Удачи в дальнейшем! Какой ширины ФБС брали? 1 Посилання на коментар Поділитися на інших сайтах More sharing options...
Koskos Опубліковано: 21 червня 2011 Поділитись Опубліковано: 21 червня 2011 Вот такая примерно лента. Толщина от 0,5 до 1 мм. Гнется как угодно, минимально "травмирует" утеплитель. Посилання на коментар Поділитися на інших сайтах More sharing options...
olga32 Опубліковано: 21 червня 2011 Автор Поділитись Опубліковано: 21 червня 2011 Поздравляю с началом!!! Удачи в дальнейшем! Какой ширины ФБС брали? Наружные 600мм Под несущую стенку 400мм Посилання на коментар Поділитися на інших сайтах More sharing options...
olga32 Опубліковано: 21 червня 2011 Автор Поділитись Опубліковано: 21 червня 2011 [ATTACH]117660[/ATTACH] Вот такая примерно лента. Толщина от 0,5 до 1 мм. Гнется как угодно, минимально "травмирует" утеплитель. Переговорили со строителями, будем брать базальтовые связи. Посилання на коментар Поділитися на інших сайтах More sharing options...
C.R.A.Z.Y Опубліковано: 21 червня 2011 Поділитись Опубліковано: 21 червня 2011 У Вас вся вода будет ити с крыши на балкон? Посилання на коментар Поділитися на інших сайтах More sharing options...
Рекомендовані повідомлення
Створіть акаунт або увійдіть у нього для коментування
Ви маєте бути користувачем, щоб залишити коментар
Створити акаунт
Зареєструйтеся для отримання акаунта. Це просто!
Зареєструвати акаунтУвійти
Вже зареєстровані? Увійдіть тут.
Увійти зараз