rshelegeda Опубліковано: 20 липня 2011 Поділитись Опубліковано: 20 липня 2011 Начну в этой теме выкладывать фотографии процесса строительства частного дома с гаражом на два автомобиля Jaspis-3. Проект польский. Перед началом строительства были оформлены все необходимые документы, разработан проект, получен стройпаспорт. В конце мая было зарегистрировано уведомление о начале строительных работ в ГАСКЕ. Наша фирма - подрядчик. Фотографии начиная с 06.06.2011 Фундамент: - подготовка М100; - подушка М250, армированная; - стенка фундамента - блоки ФБС; - армопояс - М250, армирован; - утепление ЭППС; - гидроизоляция Технониколь. Стены: - кирпич красный М125; - перекрытия монолитные М300, армированные; - колонны М300, армированные; - перемычки устраиваемые на месте, монолитные. Посилання на коментар Поділитися на інших сайтах More sharing options...
rshelegeda Опубліковано: 20 липня 2011 Автор Поділитись Опубліковано: 20 липня 2011 Был размечен участок. Вырыта траншея. Залита подготовка. Связаны каркасы под подушку. Залита подушка. Сделана гидроизоляция подушки. Смонтированы ФБС. Следующий этап - армопояс, утепление фундамента, гидроизоляция. Посилання на коментар Поділитися на інших сайтах More sharing options...
Иван Иванов Опубліковано: 20 липня 2011 Поділитись Опубліковано: 20 липня 2011 А фото проекта поделитесь? Интересен какой ожидаемы результат. Спасибо Посилання на коментар Поділитися на інших сайтах More sharing options...
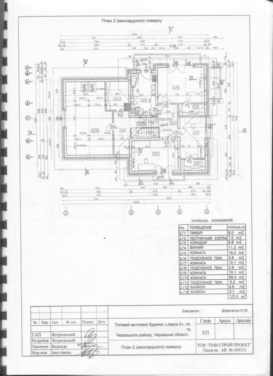
rshelegeda Опубліковано: 20 липня 2011 Автор Поділитись Опубліковано: 20 липня 2011 Внешний вид. Планировка. Посилання на коментар Поділитися на інших сайтах More sharing options...
Петрик Опубліковано: 20 липня 2011 Поділитись Опубліковано: 20 липня 2011 В Геронимовке строитесь? Посилання на коментар Поділитися на інших сайтах More sharing options...
rshelegeda Опубліковано: 20 липня 2011 Автор Поділитись Опубліковано: 20 липня 2011 Строим в Свидивке. Посилання на коментар Поділитися на інших сайтах More sharing options...
Larisa_t Опубліковано: 21 липня 2011 Поділитись Опубліковано: 21 липня 2011 Удачной стройки Вам !У нас участок тоже в Свидивке ,мы сделали геологию,и проэкт почти уже готов .В этом году наверно только фундамент сделаем .Грунты у нас не очень хорошие. А вы геологию делали? Посилання на коментар Поділитися на інших сайтах More sharing options...
YuV Опубліковано: 22 грудня 2011 Поділитись Опубліковано: 22 грудня 2011 Следующий этап - армопояс, утепление фундамента, гидроизоляция. А что было дальше? На каком этапе сегодня? Посилання на коментар Поділитися на інших сайтах More sharing options...
rshelegeda Опубліковано: 26 грудня 2011 Автор Поділитись Опубліковано: 26 грудня 2011 Дальше была кладка стен. Монолитное перекрытие. Балконы. Сейчас последние работы по армопоясу. Сроки затянулись. Перекрытие сложное. Балки, перемычки, колонны. Но, уже это пройденный этап. Заканчиваем. Посилання на коментар Поділитися на інших сайтах More sharing options...
AНДРЮША Опубліковано: 26 грудня 2011 Поділитись Опубліковано: 26 грудня 2011 Сроки затянулись. Перекрытие сложное. Вы как подрядчик оплатите издержки заказчика за затягивание сроков? Посилання на коментар Поділитися на інших сайтах More sharing options...
rshelegeda Опубліковано: 26 грудня 2011 Автор Поділитись Опубліковано: 26 грудня 2011 Да, по договоренности. Некоторые - на меня, некоторые на заказчика. Посилання на коментар Поділитися на інших сайтах More sharing options...
AНДРЮША Опубліковано: 26 грудня 2011 Поділитись Опубліковано: 26 грудня 2011 Угловое окно интересное. Его нельзя было сделать вообще без подпорки? Посилання на коментар Поділитися на інших сайтах More sharing options...
rshelegeda Опубліковано: 26 грудня 2011 Автор Поділитись Опубліковано: 26 грудня 2011 В проекте она есть. Посилання на коментар Поділитися на інших сайтах More sharing options...
rshelegeda Опубліковано: 4 січня 2012 Автор Поділитись Опубліковано: 4 січня 2012 Небольшие продвижения вперед. Посилання на коментар Поділитися на інших сайтах More sharing options...
YuV Опубліковано: 5 січня 2012 Поділитись Опубліковано: 5 січня 2012 Был размечен участок. Вырыта траншея. Залита подготовка. Связаны каркасы под подушку. Залита подушка. Сделана гидроизоляция подушки. Смонтированы ФБС. Следующий этап - армопояс, утепление фундамента, гидроизоляция. Какой высоты подушка? Сколько рядов блоков? Блоки "тройка"? А почему все таки остановились на кирпиче? Чем будете утеплять? Посилання на коментар Поділитися на інших сайтах More sharing options...
Serg_Nikol Опубліковано: 6 січня 2012 Поділитись Опубліковано: 6 січня 2012 (змінено) Дальше была кладка стен. Монолитное перекрытие. Балконы. Сейчас последние работы по армопоясу. Сроки затянулись. Перекрытие сложное. Балки, перемычки, колонны. Но, уже это пройденный этап. Заканчиваем. Да... Знакомая история. У нас тоже ТМВшный польский проект, тоже угловое окно, и те же перемычки, балки и колонны. И тоже вся эта монолитная система отняла больше времени, чем предполагали. Но если все рассчитали верно, и все элементы и размеры сошлись, то оно того стоит! Думаю, заказчику следует оценить Вашу работу, и финансово здорово не наказывать! Удачи Вам! Следующий "интересный" момент, который Вас ждет - комбинированные фасады Змінено 6 січня 2012 користувачем Serg_Nikol 1 Посилання на коментар Поділитися на інших сайтах More sharing options...
rshelegeda Опубліковано: 6 січня 2012 Автор Поділитись Опубліковано: 6 січня 2012 (змінено) Спасибо за понимание. Мы, когда брались, не ожидали таких сложностей и трудозатрат на все мелкие монолитные элементы. Интересно, что в проекте бетон М250 запроектирован. Хотя перекрытия чаще льют из М300, а то и выше. Зато арматуры в перекрытиях очень много. Наверное, поляки за счет арматуры компенсируют слабоватую марку бетона. Задержки, в основном, из-за нестандартных размеров. Колонны - всю опалубки нужно было изготовить индивидуально. Перекрытия - листы финской фанеры тоже не подходят точно, много участков приходится набирать из доски. Балки, пересекаются друг с другом и льются одновременно с плитой, которая в разных комнатах находится на разных отметках. Балконы - отдельный разговор, а их много. Специалистов для выполнения подобных бетонных работ мало, а если и есть, то не хотят лить по 300 грн. за куб. На сейчас осталось немного работ по армопоясу - метров 12 погонных и 3 балки, "весящих в воздухе" и пересекающихся. Так что, стараемся закончить до 14 января, благо, погода позволяет. Ну, а заказчик поймет или нет не знаю. Частично поймет, надеюсь. Хотя, мы тоже - видели за что беремся. Блоки - внешняя стена - 4, внутренние - 3. В некоторых местах - в один блок+армопояс и монолитные участки, в большинстве случаев - два блока+армопояс. Подушка - 400 мм. Арматурные каркасы - очень насыщены прутами. Змінено 6 січня 2012 користувачем rshelegeda 1 Посилання на коментар Поділитися на інших сайтах More sharing options...
rshelegeda Опубліковано: 14 січня 2012 Автор Поділитись Опубліковано: 14 січня 2012 Закончили коробку 14.01.2012. Пару фотографий. 1 Посилання на коментар Поділитися на інших сайтах More sharing options...
sergbon Опубліковано: 24 лютого 2012 Поділитись Опубліковано: 24 лютого 2012 Никак не вставлю ссылку в личку - просьба прокомментировать пост о вас: www.stroimdom.com.ua/forum/showpost.php?p=1437681&postcount=78 Посилання на коментар Поділитися на інших сайтах More sharing options...
Рекомендовані повідомлення
Створіть акаунт або увійдіть у нього для коментування
Ви маєте бути користувачем, щоб залишити коментар
Створити акаунт
Зареєструйтеся для отримання акаунта. Це просто!
Зареєструвати акаунтУвійти
Вже зареєстровані? Увійдіть тут.
Увійти зараз