tort Опубліковано: 4 листопада 2011 Поділитись Опубліковано: 4 листопада 2011 какой бетон? конструкция кровли проста. Полностью деревянный каркас с поперечными дому деревянными балками. и тот простенок, что между двумя кровлями будет выполнен из легких материалов (каркас, ОСБ, штукатурка) Всем привет!) привет, чего-то на плане стены толстые для каркасника вот и предположил ракушняк с ж.б. архитектор проекта? Посилання на коментар Поділитися на інших сайтах More sharing options...
smartarch Опубліковано: 4 листопада 2011 Поділитись Опубліковано: 4 листопада 2011 сам дом из ракушняка. балка у нас планируется только над гаражом, под стеной детской. Конструкция должна быть очень простой, так было решено с самого начала. единственная сложность будет разносить поуровнево фундамент. Посилання на коментар Поділитися на інших сайтах More sharing options...
ZRoma Опубліковано: 4 листопада 2011 Автор Поділитись Опубліковано: 4 листопада 2011 о....вот и архитектор объявился Я, честно говоря, но вполне понимаю проблему не несущей стены. Можно подробнее? На нее, скорее всего, не будет ничего опираться. Мы этот вопрос еще не решили окончательно, но есть мысль, положить там 2 плиты 6300 поперек дома, на которых будет стоять простенок между детскими и балконом. Тогда не несущая стена, к которой прилегает камин будет совсем не нагружена. Посилання на коментар Поділитися на інших сайтах More sharing options...
smartarch Опубліковано: 4 листопада 2011 Поділитись Опубліковано: 4 листопада 2011 Если стена не несущая, то она не несущая (железная логика) чего над ней чахнуть? )) Посилання на коментар Поділитися на інших сайтах More sharing options...
tort Опубліковано: 4 листопада 2011 Поділитись Опубліковано: 4 листопада 2011 Если стена не несущая, то она не несущая (железная логика) чего над ней чахнуть? )) И в самом деле зачем тут что-то обсуждать? Посилання на коментар Поділитися на інших сайтах More sharing options...
ionico Опубліковано: 4 листопада 2011 Поділитись Опубліковано: 4 листопада 2011 Если бы проекту моего авторства также обмывали кости в реальном времени, я бы тоже негодовал Посилання на коментар Поділитися на інших сайтах More sharing options...
ZRoma Опубліковано: 4 листопада 2011 Автор Поділитись Опубліковано: 4 листопада 2011 никто никому кости не обмывает. Все в приличных рамках. Я по прежнему не могу понять проблемы с этой стеной. ну, вроде бы, все складывается, Без всяких бетонов и железа. Или я чего-то не знаю/не понимаю. Посилання на коментар Поділитися на інших сайтах More sharing options...
tort Опубліковано: 4 листопада 2011 Поділитись Опубліковано: 4 листопада 2011 никто никому кости не обмывает. Все в приличных рамках. Я по прежнему не могу понять проблемы с этой стеной. ну, вроде бы, все складывается, Без всяких бетонов и железа. Или я чего-то не знаю/не понимаю. ААААА да нет тут проблем. Есть проблемы в нехватке информации или ее понимании - не у вас. Мы же не всё знаем про ваш проект. По существу. - У меня было подозрение что возможно тягу при таком расположении крыш будет задувать (при ветре со стороны более высокой кровли), все-таки это не классический вариант с коньком. Еще раз повторюсь - инженеру ОВ-ешнику вопрос задать стОит. - со стеной вопрос отпал. пс/ интересный проект. 1 Посилання на коментар Поділитися на інших сайтах More sharing options...
ZRoma Опубліковано: 4 листопада 2011 Автор Поділитись Опубліковано: 4 листопада 2011 отлично. про дымоход: согласен, надо посоветоваться с каминных дел мастером. Посилання на коментар Поділитися на інших сайтах More sharing options...
smartarch Опубліковано: 4 листопада 2011 Поділитись Опубліковано: 4 листопада 2011 меня не поняли, я не негодую) спасибо за внимание к нашему проекту. сегодня постараюсь доработать чертежи, а на днях сделаю интерьер гостиной зоны - самой интересной части этого дома) Посилання на коментар Поділитися на інших сайтах More sharing options...
martin_al Опубліковано: 4 листопада 2011 Поділитись Опубліковано: 4 листопада 2011 Окон добавить бы. Пергола спорит с крышей гаража - возможно их стоило бы в одной плоскости. 100% поддерживаю! Окон определенно не хватает, и пергола с крышей над гаражом аццки конфликтуют. Как вариант, пергола продолжение крыши, уклон которой должен быть минимальным. Насколько я понял из изображений, дом сидит поперёк рельефа - длинной стороной по уклону, что не верно. Здание нужно вписывать в рельеф. Не вижу проблем в принципе. И то и другое решение посадки здания на участке имеет право на существование. 1 Посилання на коментар Поділитися на інших сайтах More sharing options...
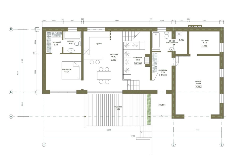
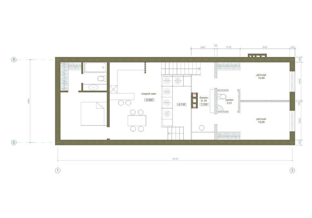
smartarch Опубліковано: 5 листопада 2011 Поділитись Опубліковано: 5 листопада 2011 Вот доработанные планировки. Количество окон, думаю, так не кажется маленьким. Посилання на коментар Поділитися на інших сайтах More sharing options...
ZRoma Опубліковано: 5 листопада 2011 Автор Поділитись Опубліковано: 5 листопада 2011 отлично. вы тут порешайте все, а я только наблюдать буду. Еще бы кто-нибудь это все построил. И денег заработал, а я понаблюдаю. Главное вовремя спохватится, что-бы этот кто-то там жить не начал :D в гараже окна явно лишние. и двери там надо будет переставить. Посилання на коментар Поділитися на інших сайтах More sharing options...
ПЛАСТИК Опубліковано: 5 листопада 2011 Поділитись Опубліковано: 5 листопада 2011 А две двери в с/у между детскими в использовании удобно будет? А в целом хорошая работа получилась. Посилання на коментар Поділитися на інших сайтах More sharing options...
smartarch Опубліковано: 5 листопада 2011 Поділитись Опубліковано: 5 листопада 2011 две двери, конечно, немного надуманно выглядит. но я думаю удобство в этом случае - дело привычки. не хотелось выводить дверь из с.у. на балкон. Посилання на коментар Поділитися на інших сайтах More sharing options...
tort Опубліковано: 5 листопада 2011 Поділитись Опубліковано: 5 листопада 2011 две двери, конечно, немного надуманно выглядит. но я думаю удобство в этом случае - дело привычки. не хотелось выводить дверь из с.у. на балкон. Вот может так оно будет лучше. На балкон. А то две двери закрывать придется, потом дети получают классный полигон мокрых дел на своей территории. С/у на первом смущают расположением приборов - унитазы рядом с ванной и еще напротив двери. Посилання на коментар Поділитися на інших сайтах More sharing options...
ZRoma Опубліковано: 6 листопада 2011 Автор Поділитись Опубліковано: 6 листопада 2011 много я всяких веселых тем про унитазы читал. Кроме ржача, никакого смысла, на мой взгляд. Предлагаю тему закрыть унитаз ничем не отличается от раковины и может стаять где угодно. про су на втором этаже: закрывать прийдется только одну дверь, ту, которая в соседнюю комнату, потому-что из твоей никто не зайдет На счет полигона - хз. мне бы не хотелось заранее думать, что дети у меня будут уродами. Гонять их в туалет на первый этаж - я не могу. Дверь на балкон - пожалуй сейчас мне уже тоже не нравится эта идея. ну, так вот, без причины, не хочу:D ведь это аргумент? Посилання на коментар Поділитися на інших сайтах More sharing options...
ionico Опубліковано: 6 листопада 2011 Поділитись Опубліковано: 6 листопада 2011 Вот вы смеётесь, а архитекторов учат правильно расставлять унитазы и рассчитывать их количество. Если они не правильно расставлены, то могут прийти суровые инженеры ВК и так объяснить, что на всю жизнь можно запомнить, как правильно их расставлять. Так что унитазы - это очень серьёзно, я вас уверяю :D P. S.: простите за сложившейся оффтоп. Посилання на коментар Поділитися на інших сайтах More sharing options...
smartarch Опубліковано: 6 листопада 2011 Поділитись Опубліковано: 6 листопада 2011 ой! и че, теперь тема офф?? Посилання на коментар Поділитися на інших сайтах More sharing options...
ZRoma Опубліковано: 6 листопада 2011 Автор Поділитись Опубліковано: 6 листопада 2011 так если есть нормы - будьте добры озвучить. а предрассудки о грязных унитазах и раздельных санузлах - зачем? Посилання на коментар Поділитися на інших сайтах More sharing options...
ПЛАСТИК Опубліковано: 6 листопада 2011 Поділитись Опубліковано: 6 листопада 2011 ой! и че, теперь тема офф?? Ну в принципе да. Проект большинством голосов одобрен Мелкие корректировки на подальших сталиях. Будут еще работы, присылайте. Щасти Посилання на коментар Поділитися на інших сайтах More sharing options...
smartarch Опубліковано: 6 листопада 2011 Поділитись Опубліковано: 6 листопада 2011 Так ведь нормы на эту тему были времен массового строительства второй половины 20 в. Чаще всего имели ограничивающий характер, например, не допускалось превышать площадь того же с.у. Сейчас можно и площадь и планировку выбирать на свое усмотрение. Мы имели с самого начала целью получить интересное внутреннее пространство (второй свет, мини партер перед камином), удобную связь с садом (выход на террасу), простоту и экономность (в разумных пределах) реализации задуманного. Так и появилась форма сарая с перголой, большая гостиная, небольшие спальные и простые ванные комнаты. Тоже не вижу никаких проблем в размещении унитаза перед входом в ванную. Что же тогда говорить о 100% туалетов в квартирах с раздельными с.у. там унитаз стоит один напротив двери и от его страшного вида не отвлекает ни ванна ни умывальник. А что еще хуже - все они расположены рядом в кухней - вот это уже проблема, на мой взгляд. Спасибо за обсуждение!) Посилання на коментар Поділитися на інших сайтах More sharing options...
tort Опубліковано: 6 листопада 2011 Поділитись Опубліковано: 6 листопада 2011 так если есть нормы - будьте добры озвучить. а предрассудки о грязных унитазах и раздельных санузлах - зачем? Вы можете руководствоваться принципом "хозяин-барин" раз у всей вашей семьи нет предрассудков по грязным унитазам и раздельным сан. узлам. Нормы в частном домостроении соблюдаются лишь по отношению к себе - вам жить в этом доме. При расположении унитаза рядом с ванной доступ к сифону ванны усложняется. Ну и выход из ванны уменьшается. Простая логика. пс/ по нормам, к примеру, запрещается вести трубопроводы воды по межкомнатным стенам смежным с жилыми помещениями, но опять же - особо никто на это внимание не обращает, и обязательность ее соблюдения никто не проверяет. Норма очевидно что рассчитана на повышение гидроизоляции жилых комнат. Посилання на коментар Поділитися на інших сайтах More sharing options...
Рекомендовані повідомлення
Створіть акаунт або увійдіть у нього для коментування
Ви маєте бути користувачем, щоб залишити коментар
Створити акаунт
Зареєструйтеся для отримання акаунта. Це просто!
Зареєструвати акаунтУвійти
Вже зареєстровані? Увійдіть тут.
Увійти зараз