anatoliys Опубліковано: 19 листопада 2011 Автор Поділитись Опубліковано: 19 листопада 2011 А как с этим бороться? [Необходимо подчеркнуть, что при выборе данной системы отопления нужно следить, чтобы циркуляционные кольца были одинаковыми. В системе Тихельмана все радиаторы работают как один. И если существуют помещения с различными тепловыми нагрузками, то нужно обратить на это внимание, и возможно выбрать другую систему отопления, например коллекторную. Я собирался держать разную температуру в разных комнатах Посилання на коментар Поділитися на інших сайтах More sharing options...
troll_9000 Опубліковано: 19 листопада 2011 Поділитись Опубліковано: 19 листопада 2011 А как с этим бороться? Не парьтесь, делайте тройниковую двумя ветками, на радиаторы термоголовки, и будет Вам счастье Диаметры правильно подобрать под нагрузки, и все. Проектировцики бают, что попутное движение теплоносителя - это тогда использовалось, когда проблематично отбалансировать радиаторы было. Да еще Упонор с панелями отопления/охлажлдения рядом с попуткой стоят. А на 10 радиаторов - можно не заморачиваться 1 Посилання на коментар Поділитися на інших сайтах More sharing options...
anatoliys Опубліковано: 19 листопада 2011 Автор Поділитись Опубліковано: 19 листопада 2011 Не парьтесь, делайте тройниковую двумя ветками, на радиаторы термоголовки, и будет Вам счастье Диаметры правильно подобрать под нагрузки, и все. Проектировцики бают, что попутное движение теплоносителя - это тогда использовалось, когда проблематично отбалансировать радиаторы было. Да еще Упонор с панелями отопления/охлажлдения рядом с попуткой стоят. А на 10 радиаторов - можно не заморачиваться Т.е делать как на рис в моем первом посте без петель Тихельмана? Посилання на коментар Поділитися на інших сайтах More sharing options...
troll_9000 Опубліковано: 19 листопада 2011 Поділитись Опубліковано: 19 листопада 2011 Т.е делать как на рис в моем первом посте без петель Тихельмана? Ага И трубой, которая дуракоустойчивая (ТЕСЕ, Рехау) Посилання на коментар Поділитися на інших сайтах More sharing options...
anatoliys Опубліковано: 19 листопада 2011 Автор Поділитись Опубліковано: 19 листопада 2011 Ага И трубой, которая дуракоустойчивая (ТЕСЕ, Рехау) А за что тогда платить почти 10 тыс грн за монтаж? Посилання на коментар Поділитися на інших сайтах More sharing options...
troll_9000 Опубліковано: 19 листопада 2011 Поділитись Опубліковано: 19 листопада 2011 А за что тогда платить почти 10 тыс грн за монтаж? Вот так и становятся сантехниками А я знаю? Может, Вам медью предлагали, и Вы согласились Хотя, 10 радиаторов+ТП+вода+циркуляция+штрабы+топочная, похоже на справедливую цену на работы. Даже недооценено. (ИМХО) Посилання на коментар Поділитися на інших сайтах More sharing options...
naupv Опубліковано: 19 листопада 2011 Поділитись Опубліковано: 19 листопада 2011 ТП всего 10 м.кв. Штрабить нигде ничего не нужно. На пол укладывается 10 см ПСБ-35, и вот потом приходят сантехники и делают свою работу, после все заливается стяжкой. Вот расчет по лучевой разводке Вообще не корректно на всеобщее обозрение такое выкладывать.Но у Вас и ТП в этой смете есть.Вот только у Мейбаса UNIBOX RTL-ов ни когда не видел. Посилання на коментар Поділитися на інших сайтах More sharing options...
anatoliys Опубліковано: 20 листопада 2011 Автор Поділитись Опубліковано: 20 листопада 2011 Вообще не корректно на всеобщее обозрение такое выкладывать.Но у Вас и ТП в этой смете есть.Вот только у Мейбаса UNIBOX RTL-ов ни когда не видел. Прошу прощения, я не думал что это может вызвать такую реакцию. Просто до этого я очень часто видел как выкладывают на этом форуме такие сметы, для того чтобы знающие форумчане могли оценить и подсказать. И по материалам и по ценам. Тем более я удалил название фирмы инсталлятора. Если Вы все равно считаете, что это не корректно, подскажите как удалить. А насчет Мейбаса. Смету то не я составлял, а фирма. Теперь благодаря Вам я вижу что меня немного обманули. Посилання на коментар Поділитися на інших сайтах More sharing options...
troll_9000 Опубліковано: 20 листопада 2011 Поділитись Опубліковано: 20 листопада 2011 Да выкладывайте, главное, чтобы сметоподаватель был уведомлен о выкладывании и не имел претензий к Вам ИМХО 1 Посилання на коментар Поділитися на інших сайтах More sharing options...
anatoliys Опубліковано: 20 листопада 2011 Автор Поділитись Опубліковано: 20 листопада 2011 Да выкладывайте, главное, чтобы сметоподаватель был уведомлен о выкладывании и не имел претензий к Вам ИМХО Если можно прокомментируйте. Что так или не так. Что оставить , а что заменить. Буду благодарен за любую критику. Посилання на коментар Поділитися на інших сайтах More sharing options...
Korni Опубліковано: 20 листопада 2011 Поділитись Опубліковано: 20 листопада 2011 Прошу прощения....Тем более я удалил название фирмы инсталлятора...... Вам не за что извиняться - Вы сделали всё правильно. Это обычная практика и, в конце-концов, Ваше право. .....А насчет Мейбаса. Смету то не я составлял, а фирма. Теперь благодаря Вам я вижу что меня немного обманули. Обманула Вас не фирма. И благодарность, как и извинения, тоже излишня. 1 Посилання на коментар Поділитися на інших сайтах More sharing options...
anatoliys Опубліковано: 20 листопада 2011 Автор Поділитись Опубліковано: 20 листопада 2011 Вам не за что извиняться - Вы сделали всё правильно. Это обычная практика и, в конце-концов, Ваше право. Обманула Вас не фирма. И благодарность, как и извинения, тоже излишня. Спасибо за поддержку. А фирма получается просто Комбибокс назвала Унибоксом. Кстати на англоязычном сайте Мейбеса я не нашел комбибокс. Хотел глянуть как он называется в оригинале. Посилання на коментар Поділитися на інших сайтах More sharing options...
anatoliys Опубліковано: 20 листопада 2011 Автор Поділитись Опубліковано: 20 листопада 2011 Натяжная гильза Пайка (металл) Пресс (металл) Я хотел у Вас уточнить. В случае использования трубы типа PE-X, PE-RT, PE-RT/Al/PE-RT для соединений использовать натяжную гильзу (мне предлагали делать методом опрессовки). Посилання на коментар Поділитися на інших сайтах More sharing options...
naupv Опубліковано: 20 листопада 2011 Поділитись Опубліковано: 20 листопада 2011 А насчет Мейбаса. Смету то не я составлял, а фирма. Теперь благодаря Вам я вижу что меня немного обманули. Я прошу прощения, если я лично Унибоксов у Мейбаса не видел, это не значит, что их нет в природе. Товарищ в водных лыжах раскопал и показал, что они есть. Так, что Вас не обманули. Материалы у Вас подобраны не плохие. Что касается гильз, то и натяжные и пресс хорошие системы. Посилання на коментар Поділитися на інших сайтах More sharing options...
Сергей_84 Опубліковано: 20 листопада 2011 Поділитись Опубліковано: 20 листопада 2011 Если можно прокомментируйте. Что так или не так. Что оставить , а что заменить. Буду благодарен за любую критику. Мне понравилась....материалы достойные, цены неплохие, конечно как и в любой другой смете есть позиции которые я бы заменил, но это вопрос лично моих предпочтений ...цену за работы у нас не принято комментировать, но как по мне она вполне адекватная.. Если использовать КАН, то я бы использовал натяжную гильзу.. ПС по Юнибоксу...мне кажется составитель сметы написал название, которое извесно всем (кака у Овентропа, Хаймаера), а у Мейбаса оно какое-то не общепринятое.. Да и вобще, о чем мы говорим..это же смета, а не накладная, по факту у Мейбаса может и не оказаться Юнибоксов и прийжется покупать Хаймайер (к примеру) 1 Посилання на коментар Поділитися на інших сайтах More sharing options...
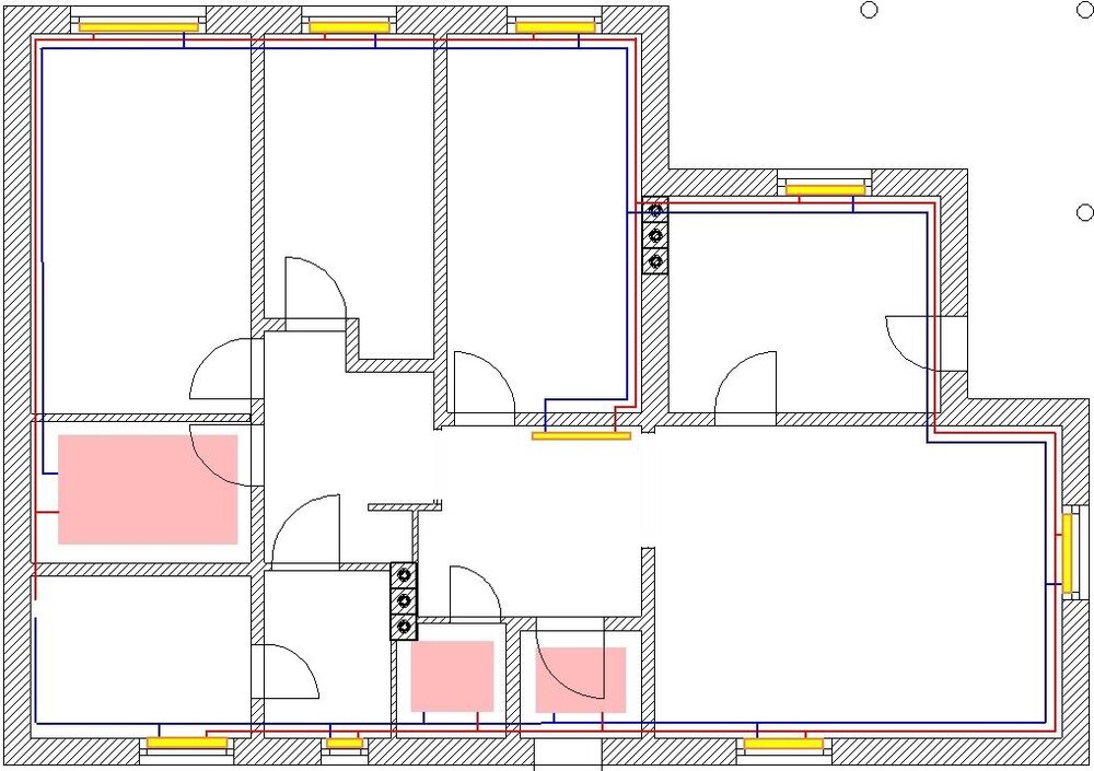
anatoliys Опубліковано: 20 листопада 2011 Автор Поділитись Опубліковано: 20 листопада 2011 Приняв к сведению совет сделать петлю Тихельмана, получилось следующая картинка. Полотенцесушители предположительно через рециркуляцию ГВС, все остальное на рис. Покритикуйте плз Посилання на коментар Поділитися на інших сайтах More sharing options...
Сергей_84 Опубліковано: 20 листопада 2011 Поділитись Опубліковано: 20 листопада 2011 Приняв к сведению совет сделать петлю Тихельмана, получилось следующая картинка. Полотенцесушители предположительно через рециркуляцию ГВС, все остальное на рис. Покритикуйте плз при все моем уважении к naupv я бы сделал стандартную двухтрубку.. 1 Посилання на коментар Поділитися на інших сайтах More sharing options...
naupv Опубліковано: 20 листопада 2011 Поділитись Опубліковано: 20 листопада 2011 при все моем уважении к naupv я бы сделал стандартную двухтрубку.. Так Тихельман тоже двухтрубка, только гидравлическое сопротивление меньше. Но при таком объеме радиаторов, здесь работать будет и классика. 1 Посилання на коментар Поділитися на інших сайтах More sharing options...
Korni Опубліковано: 20 листопада 2011 Поділитись Опубліковано: 20 листопада 2011 .....Кстати на англоязычном сайте Мейбеса я не нашел комбибокс. .... Тем не менее, ложное впечатление об обмане от фирмы у Вас было удачно сформировано. По смете - присоединяюсь к мнению Сергея84. И соединение на натяжной гильзе считаются более надёжными. Объём для стандартной двухтрубки. Посилання на коментар Поділитися на інших сайтах More sharing options...
Сергей_84 Опубліковано: 20 листопада 2011 Поділитись Опубліковано: 20 листопада 2011 Так Тихельман тоже двухтрубка, только гидравлическое сопротивление меньше. Но при таком объеме радиаторов, здесь работать будет и классика. ИМХО....... Посилання на коментар Поділитися на інших сайтах More sharing options...
anatoliys Опубліковано: 20 листопада 2011 Автор Поділитись Опубліковано: 20 листопада 2011 (змінено) при все моем уважении к naupv я бы сделал стандартную двухтрубку.. Чем в моем случае стандартная будет лучше, чем с петлей Тихельмана. Делать одой веткой или двумя? Змінено 20 листопада 2011 користувачем anatoliys Посилання на коментар Поділитися на інших сайтах More sharing options...
naupv Опубліковано: 20 листопада 2011 Поділитись Опубліковано: 20 листопада 2011 (змінено) И соединение на натяжной гильзе считаются более надёжными. Кем интересно? Сотрудниками РЕХАУ,ТЕСЕ, ГОЛАН,и пр? Змінено 20 листопада 2011 користувачем naupv Посилання на коментар Поділитися на інших сайтах More sharing options...
Korni Опубліковано: 20 листопада 2011 Поділитись Опубліковано: 20 листопада 2011 И соединение на натяжной гильзе считаются более надёжными. Кем интересно? Сотрудниками РЕХПАУ,ТЕСЕ, ГОЛАН,и пр? Научитесь корректно цитировать. Чтобы не плодить дискуссию, напишу ИМХО. Посилання на коментар Поділитися на інших сайтах More sharing options...
anatoliys Опубліковано: 20 листопада 2011 Автор Поділитись Опубліковано: 20 листопада 2011 Тем не менее, ложное впечатление об обмане от фирмы у Вас было удачно сформировано. Доверие уже восстановлено По смете - присоединяюсь к мнению Сергея84. И соединение на натяжной гильзе считаются более надёжными. Принимаю к вниманию. Я понял почему уже две фирмы предложили именно опрессовку. В случае чего можно и разобрать Объём для стандартной двухтрубки. Так там же вроде как коллекторная просчитана Посилання на коментар Поділитися на інших сайтах More sharing options...
Сергей_84 Опубліковано: 20 листопада 2011 Поділитись Опубліковано: 20 листопада 2011 Чем в моем случае стандартная будет лечше чем с петлей Тихельмана. Делать одой веткой или двумя? Я написал ИМХО..у каждого есть свои предпочтения...в вашем случа так как работать будет и та и та, то играют роль предпочтения Посилання на коментар Поділитися на інших сайтах More sharing options...
Рекомендовані повідомлення
Створіть акаунт або увійдіть у нього для коментування
Ви маєте бути користувачем, щоб залишити коментар
Створити акаунт
Зареєструйтеся для отримання акаунта. Це просто!
Зареєструвати акаунтУвійти
Вже зареєстровані? Увійдіть тут.
Увійти зараз