Alisa3 Опубліковано: 26 квітня 2012 Поділитись Опубліковано: 26 квітня 2012 Лестница мне не нравится. Терраску урезали. Ванна необычной формы... А нельзя вернуть то что было? Посилання на коментар Поділитися на інших сайтах More sharing options...
ionico Опубліковано: 26 квітня 2012 Поділитись Опубліковано: 26 квітня 2012 планировка другая вышла. Как она вам Я считаю, что весьма не плохо, но: С/у на 2 этаже действительно странный. Даже если вы будете ставить 3-угольную тумбу возле джакузи, то надо подразумевать в проекте конкретную модель джакузи и закладывать именно её размеры в плане этажа. С учётом внутренней отделки. Чтобы она чётко стала на место и чтобы выбрать правильное положение перегородок. Балкон на 2 этаже соединяет спальную комнату и детскую. Я думаю, что это будет не комфортно. Можно попробовать разделить балкон декоративной стеной. Например, поставить сетку и её завьёт вьющееся растение. Лестница действительно может быть не удобна. 1 Посилання на коментар Поділитися на інших сайтах More sharing options...
Julla Опубліковано: 27 квітня 2012 Поділитись Опубліковано: 27 квітня 2012 Мне больше понравился первый вариант. А что мешает просто "подвинуть" "нижнюю" стенку вверх и "правую" влево? :D до нужных размеров по внешнему периметру дома. У Вас большие холлы-прихожие, гостиная, топочная... Если чуть-чуть урезать, на комфортности помещений существенно не скажется. И лестница остаётся более комфорной ИМХО 1 Посилання на коментар Поділитися на інших сайтах More sharing options...
SwetOK Опубліковано: 27 квітня 2012 Автор Поділитись Опубліковано: 27 квітня 2012 (змінено) Итак, работа над проектом продолжается. После продолжительных дебатов - ничья между первым и вторым вариантами. В связи с этим архитектору было предложено както скомбинировать два предыдущих варианта и выдать микс лучших решений. Получилось очень даже ничего, как по мне, тоесть компомисный вариант. Но вот думаем внести не большие коректировки: 1. Стену с камином сдвинуть на 15-20 см влево, и расширить гостинную. Камин уже под вопросом, нужен ли он. 2. В санузле на 1-м этаже душевую кабину углубить в топочную. 3. В сан узле на 2-м этаже сделать окошко (люк) в стене мансарды, которая планируется высотой 1,6м. Можно ли так? 4. Окно с востока в витальне сдвинуть ближе к кухне, дабы добавить света в холл и избежать выблескивания телевизора. Вот и вроде все замечания. И как всегда интерестно мнение уважаемых форумчан! Змінено 27 квітня 2012 користувачем SwetOK Посилання на коментар Поділитися на інших сайтах More sharing options...
Мечты сбываются Опубліковано: 27 квітня 2012 Поділитись Опубліковано: 27 квітня 2012 Эх...ребята, наблюдаю за Вами с момента создания темы...и уже весь извёлся в ожидание, когда ЭТО случится ))) уже реально охота на реализацию ВЫБРАНОГО проекта посмотреть...надеюсь она будет в этом году? ;):D:o ПыСы: а по итогам этой темы можно создать новый каталог "...99 проектов от "SwetOK и KO " со входом с ЮГа и не только ;) Посилання на коментар Поділитися на інших сайтах More sharing options...
Archist Опубліковано: 27 квітня 2012 Поділитись Опубліковано: 27 квітня 2012 Итак, работа над проектом продолжается. ....И как всегда интерестно мнение уважаемых форумчан! Так мне больше нравится. Но вентиляции топочной и гардеробной так и не увидел... Посилання на коментар Поділитися на інших сайтах More sharing options...
Alisa3 Опубліковано: 27 квітня 2012 Поділитись Опубліковано: 27 квітня 2012 И мне так больше нравится. Я бы только не отказывалась от двухсторонней веранды. И не торопите человека: в высокосный год никто не начинает стройку))) Посилання на коментар Поділитися на інших сайтах More sharing options...
SwetOK Опубліковано: 7 травня 2012 Автор Поділитись Опубліковано: 7 травня 2012 Итак, дубль №4 планировки и фасад дома! Что скажете, где надо еще доработать? Или это уже "саме то"! Спасибо! Посилання на коментар Поділитися на інших сайтах More sharing options...
Alisa3 Опубліковано: 7 травня 2012 Поділитись Опубліковано: 7 травня 2012 Можете начинать стройку ;) Посилання на коментар Поділитися на інших сайтах More sharing options...
Мечты сбываются Опубліковано: 7 травня 2012 Поділитись Опубліковано: 7 травня 2012 Можете начинать стройку ;) Кто-то...что-то про Высокосный год говорил :D Посилання на коментар Поділитися на інших сайтах More sharing options...
Alisa3 Опубліковано: 7 травня 2012 Поділитись Опубліковано: 7 травня 2012 Кто-то...что-то про Высокосный год говорил :D О, Боже!!! За мной следят!!! Мне хороший человек рассказал, то если ты успел зарыть в предыдущем году на участке парочку кирпичей - то это считается началом стройки и высокосный год уже не так страшен Посилання на коментар Поділитися на інших сайтах More sharing options...
SwetOK Опубліковано: 7 травня 2012 Автор Поділитись Опубліковано: 7 травня 2012 Вы конечно не поверете, мы с мужем 30 декабря 2011 года специально поехали на участок и сделали разметку дома 10х10, забили 4 колышка и натянули шпагат. Тоесть официально начали стойку. Посилання на коментар Поділитися на інших сайтах More sharing options...
Мечты сбываются Опубліковано: 7 травня 2012 Поділитись Опубліковано: 7 травня 2012 Вы конечно не поверете, мы с мужем 30 декабря 2011 года специально поехали на участок и сделали разметку дома 10х10, забили 4 колышка и натянули шпагат. Тоесть официально начали стойку. Ну тогда....На Старт!!! Мну ужо в четверг Газобетон притарабанят )) Посилання на коментар Поділитися на інших сайтах More sharing options...
Alisa3 Опубліковано: 7 травня 2012 Поділитись Опубліковано: 7 травня 2012 Очень даже верю Не одни Вы тут такие. К сожалению, я не про себя и мне придётся ждать следущего года. А вот терраску я бы всё же сделала буквой "Г", возможно перенеся выход на неё на место окна и увеличив тем самым рабочую поверхность кухни))) Посилання на коментар Поділитися на інших сайтах More sharing options...
sergo77 Опубліковано: 8 травня 2012 Поділитись Опубліковано: 8 травня 2012 (змінено) Итак, дубль №4 планировки и фасад дома! Что скажете, где надо еще доработать? Или это уже "саме то"! Спасибо! Есть предложение немного перекомпоновать котельную и с/у на первом этаже. Во первых дымоход в котельной совместится с кухонным, во вторых, по феншую с/у не прямиком на против входа в дом... А так проектик вырисовался даже очень хороший, может и себе что-то перейму... У меня тоже вход практически с юга (слегка западнее) и террасу себе планирую на всю южную и восточную стены.., соответственно выход из кухни на террасу на восток... Змінено 8 травня 2012 користувачем sergo77 Добавка информации 1 Посилання на коментар Поділитися на інших сайтах More sharing options...
SwetOK Опубліковано: 8 травня 2012 Автор Поділитись Опубліковано: 8 травня 2012 Сегодня наш архитектор предоставил 3d версию дома. Целый день по нему ходили, на ночь не решились остаться. Что обнаружено было: 1. Размер окон на 1 этаже 1,5х1,8, как объяснил архитектор, это убословлено тем, что в проекте на всех окнах перемычками будет армопояс (0,3м). Это нормально, можно так, целесообразно? или настаивать на перемычке и получить окна например -1,4х1,6м. 2. Окно на кухне (север) вообще 0,9х1,8, плюс выходит на террасу, может сделать его как все? 3. Вентиляцю в топочной как лучше сделать? Через отдельный вентканал или пустить трубу над санузлом в общий блок? 4. С санузле на 2-м этаже нет окна. Какие могут быть варианты кроме мансардного при высоте мансарды 1,6м? Помогайте! Посилання на коментар Поділитися на інших сайтах More sharing options...
tk39 Опубліковано: 8 травня 2012 Поділитись Опубліковано: 8 травня 2012 4. Окошко в с/у можно сделать горизонтальным и узким. Правда такой вариант обычно в польских проектах в кухнях используют. 1. У меня тоже окна 1,5х1,8. 3. Отдельную вентиляцию - это отдельный дымоход надо городить. А мы уже начали, на днях заливаем фундамент. Посилання на коментар Поділитися на інших сайтах More sharing options...
SwetOK Опубліковано: 9 травня 2012 Автор Поділитись Опубліковано: 9 травня 2012 (змінено) А как вам решение с крышой террасы и окошком в с/у на 2-этаже?. Гляньте еще на фасады. Что скажете? Змінено 9 травня 2012 користувачем SwetOK Посилання на коментар Поділитися на інших сайтах More sharing options...
tk39 Опубліковано: 9 травня 2012 Поділитись Опубліковано: 9 травня 2012 Я бы крылечко изменила параллельно крыше, тоже домиком. Посилання на коментар Поділитися на інших сайтах More sharing options...
SwetOK Опубліковано: 11 травня 2012 Автор Поділитись Опубліковано: 11 травня 2012 Я бы крылечко изменила параллельно крыше, тоже домиком. Вопрос по крылечку остался актуален. По крыше вроде так тоже не плохо, а вот входная дверь если будет по центру дома и крыльца, то тамбур практически будет не функуилнальным. Может лучше пожертвувать симетрией и сместить дверь левее, чтобы в тамбуре справа можно было шкафчика орнанизовать. Посилання на коментар Поділитися на інших сайтах More sharing options...
Alisa3 Опубліковано: 11 травня 2012 Поділитись Опубліковано: 11 травня 2012 Сдвинуть конечно. Куда ж Вы будете курточки вешать и обувь ставить? Посилання на коментар Поділитися на інших сайтах More sharing options...
stee Опубліковано: 14 травня 2012 Поділитись Опубліковано: 14 травня 2012 так на какой все таки версии плана Вы остановились? Посилання на коментар Поділитися на інших сайтах More sharing options...
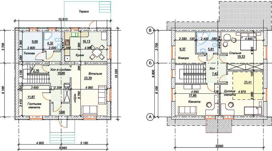
SwetOK Опубліковано: 14 травня 2012 Автор Поділитись Опубліковано: 14 травня 2012 Итак самое свежее, прямо из под карандаша, как говориться. Мы пока называем данную планировку полу-финал. Еще думаем, над мелочами. Предлагаю вашему вниманию даную версию планировок и разрез. Свежие, креативные идеи еще принимаются. P.S. Прошу обратить внимание на вентиляцию топочной. Под нее планируется один канал и через гофру под потолком санузла выводится туда вентиляция. Правильное ли это решение, или пока еще не поздно сделать отдельный комин. Посилання на коментар Поділитися на інших сайтах More sharing options...
SwetOK Опубліковано: 15 травня 2012 Автор Поділитись Опубліковано: 15 травня 2012 Не пишут значит можно переходить к финалу. Посилання на коментар Поділитися на інших сайтах More sharing options...
sergo77 Опубліковано: 15 травня 2012 Поділитись Опубліковано: 15 травня 2012 Не пишут значит можно переходить к финалу. Таки да... А на счет вентиляции котельной все таки поинтересуйтесь у специалистов, мне кажется что дополнительной вентиляции не надо, достаточно тяги через котел..., хотя может и ошибаюсь А выхлоп котла у Вас будет просто через стенку и на улицу? Труба по стене вверх будет подниматься? Если нет, то думаю что при наличии вытяжки(в дымоход) возможна обратная тяга, что недопустимо!!! В общем как-то этот узел меня смущает... Посилання на коментар Поділитися на інших сайтах More sharing options...
Рекомендовані повідомлення
Створіть акаунт або увійдіть у нього для коментування
Ви маєте бути користувачем, щоб залишити коментар
Створити акаунт
Зареєструйтеся для отримання акаунта. Це просто!
Зареєструвати акаунтУвійти
Вже зареєстровані? Увійдіть тут.
Увійти зараз