Zak Опубліковано: 7 січня 2012 Поділитись Опубліковано: 7 січня 2012 Добрый день. Потихоньку изучаю проект дома, добрался до дымоходов. Рядом с каждым из дымоходов (на камин и котел) архитектор запроектировал по два вентканала, один доходит до пола, второй до потолка. Терзают сомнения прав-ли архитектор? Тот вентканал, что доходит до пола, я так понимаю работает на приток, да и то решение довольно-таки спорное. Второй соответственно работает как вытяжка, а нужен-ли он вообще? Что-то мне кажется этот узел как-то по другому должен выглядеть. Котел и камин дровяные. Спасибо. Посилання на коментар Поділитися на інших сайтах More sharing options...
КАВсервис Опубліковано: 10 січня 2012 Поділитись Опубліковано: 10 січня 2012 Камин будет когда топиться,то через вент. каналы будет заходить дым+запах обратной тягой,если это все сделать на кровле под одним козырьком как у нас привыкли это делать. Посилання на коментар Поділитися на інших сайтах More sharing options...
Zak Опубліковано: 11 січня 2012 Автор Поділитись Опубліковано: 11 січня 2012 Камин будет когда топиться,то через вент. каналы будет заходить дым+запах обратной тягой,если это все сделать на кровле под одним козырьком как у нас привыкли это делать. Это понятно, речь о том, нужны-ли они вообще. Ведь если делать через них подачу воздуха, то в морозы это будет выхолаживать стену. Думаю подачу провести под полом, а вытяжку оставить только в топочной, зачем нужна вытяжка в гостинной с закрытым камином не представляю. Посилання на коментар Поділитися на інших сайтах More sharing options...
SON Опубліковано: 11 січня 2012 Поділитись Опубліковано: 11 січня 2012 Ведь если делать через них подачу воздуха, то в морозы это будет выхолаживать стену. Правильно. Думаю подачу провести под полом, а вытяжку оставить только в топочной, Тож правильно А как шахта Кр1 будет выглядеть выше кровли? 1 Посилання на коментар Поділитися на інших сайтах More sharing options...
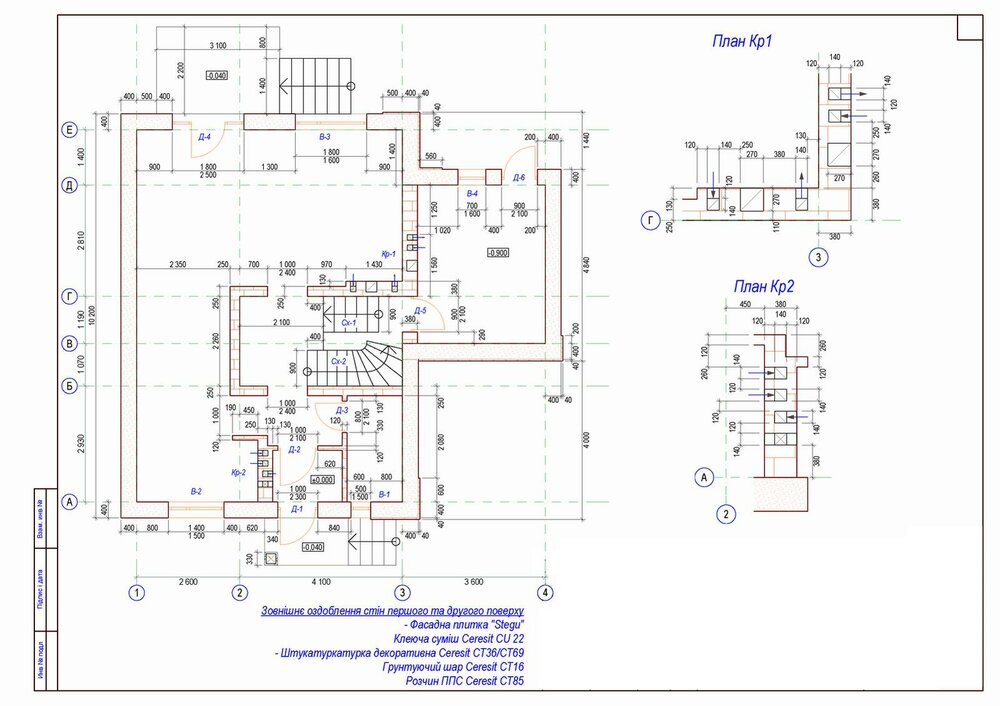
Zak Опубліковано: 11 січня 2012 Автор Поділитись Опубліковано: 11 січня 2012 А как шахта Кр1 будет выглядеть выше кровли? Спасибо за комментарий, вид сверху (визуализация от архитектора) прилагаю. Я думаю оба дымохода и вытяжку из топочной проложить в стене между гостинной и топочной. При этом дымоходы протяну через козырек, чтобы дым в вытяжку не мог попасть. Посилання на коментар Поділитися на інших сайтах More sharing options...
SON Опубліковано: 11 січня 2012 Поділитись Опубліковано: 11 січня 2012 Крыша классная, но есть два неприятных момента.:D Первый (на вложении красным) - остекление примыкает к стене и шахте, соотв. зимой снег на стекле будет таять и мочить стену и дымоход, продумайте это место. Второй - отвод атмосферных осадков с плоской крыши (ливневки, разуклонка и т.д.) 1 Посилання на коментар Поділитися на інших сайтах More sharing options...
SON Опубліковано: 11 січня 2012 Поділитись Опубліковано: 11 січня 2012 Крыша классная, но есть два неприятных момента.:D Первый (на вложении красным) - остекление примыкает к стене и шахте, соотв. зимой снег на стекле будет таять и мочить стену и дымоход, продумайте это место. Второй - отвод атмосферных осадков с плоской крыши (ливневки, разуклонка и т.д.) 1 Посилання на коментар Поділитися на інших сайтах More sharing options...
Zak Опубліковано: 11 січня 2012 Автор Поділитись Опубліковано: 11 січня 2012 Крыша классная, но есть два неприятных момента.:D Первый (на вложении красным) - остекление примыкает к стене и шахте, соотв. зимой снег на стекле будет таять и мочить стену и дымоход, продумайте это место. Второй - отвод атмосферных осадков с плоской крыши (ливневки, разуклонка и т.д.) Вы прям с ходу попали в самую точку! Я себе уже все мозги переломал, обдумывая этот узел. Ничего лучшего, кроме как перенести дымоход и избавится от трех!!! лишних вентканалов я не придумал. Таким образом нет шахты -- нет проблемы Получится примерно как на картинке. Ну а примыкание к стене гораздо проще, вода там лужей стоять не будет, думаю обработать стену Гипердесмо или чем-то другим, по совету Пропеллера. Ливневки и разуклонки есть на чертежах, да и слава Богу ничего сложного там нет, некоторые форумчане уже прошли этот путь, в случае чего подскажут. Посилання на коментар Поділитися на інших сайтах More sharing options...
SON Опубліковано: 11 січня 2012 Поділитись Опубліковано: 11 січня 2012 Ну а примыкание к стене гораздо проще, вода там лужей стоять не будет, думаю обработать стену Гипердесмо или чем-то другим, по совету Пропеллера. Обработать конечно нужно, а проще отступить остеклением см. на 20-25 от стенки, шоб не иметь в дальнейшем головной боли. Тем более, что все пока на стадии проекта, еще много косяков и подводных камней по ходу вылезет. 1 Посилання на коментар Поділитися на інших сайтах More sharing options...
Рекомендовані повідомлення
Створіть акаунт або увійдіть у нього для коментування
Ви маєте бути користувачем, щоб залишити коментар
Створити акаунт
Зареєструйтеся для отримання акаунта. Це просто!
Зареєструвати акаунтУвійти
Вже зареєстровані? Увійдіть тут.
Увійти зараз