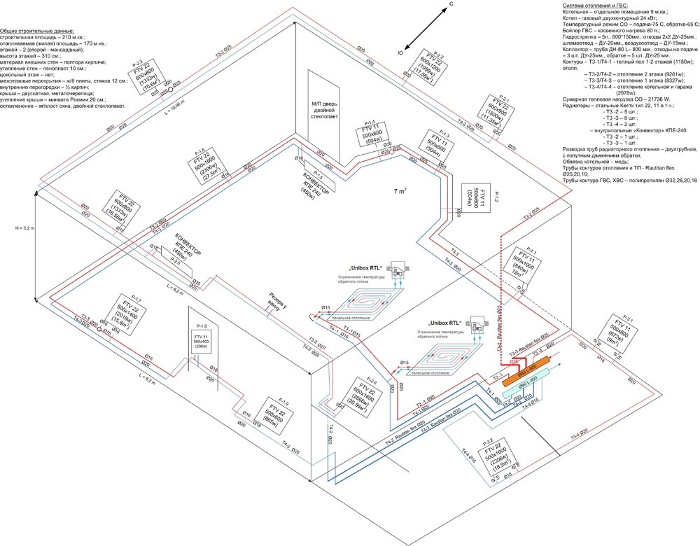
Phaeton1 Опубліковано: 18 січня 2012 Поділитись Опубліковано: 18 січня 2012 Прошу помощи практиков. Есть проект-схема системы отопления двухэтажного дома (170 м.кв.), составленная по принципу "хочу вот так" и подкрепленная теорией народного теплотехника - Гугла. Логика системы отопления: 1. котел греет первичный контур СО до гидрострелки, циркуляцию обеспечивает насос котла; 2. от гидроразделителя через коллектор уходят четыре вторичных контура (ТП, два этажа и хозпомещения); 3. теплый пол - две намотки по около 100 метров в санузлах 1 и 2 этажей, температура регулируется термоклапанами Юнибокс РТЛ на обратке, плюс трехходовик на коллекторе перед насосом; 4. радиаторное отопление в двух отдельных контурах (1,2 этажи) со своими насосами и предусмотренной возможностью через байпас циркулировать от одного насоса (поломка второго циркуляционника допустим); Вопрос - как подобрать мощность насосов на коллекторе, и допустимо ли заужение трубы обратной линии в кольцах радиаторного отопления? Желаемая логика ГВС: кольцо "котел-бойлер", кольцо "бойлер-потребители", трехходовой смешивающий клапан открывает прямой проток "котел-потребители" в случае окончания запаса горячей воды в бойлере. Вопрос - нужна ли отдельная автоматика управления 3-ходовым клапаном для обеспечения прямого протока от котла к потребителям? Если да, то какая и куда её? Имеются ли альтернативные решения даной схемы? Спасибо! Посилання на коментар Поділитися на інших сайтах More sharing options...
Сергей 31 Опубліковано: 18 січня 2012 Поділитись Опубліковано: 18 січня 2012 Гидравлически устойчивая система отопления напоминает красивое дерево. Толстый, столб от которого отходят толстые ветки, от них тонкие и.т.д. Ваше дерево напоминает горизонтальные динные ветки от одного столба. Во первых это не красиво, а во вторых сломаются такие ветки. 1 Посилання на коментар Поділитися на інших сайтах More sharing options...
Phaeton1 Опубліковано: 19 січня 2012 Автор Поділитись Опубліковано: 19 січня 2012 Гидравлически устойчивая система отопления напоминает красивое дерево. Толстый, столб от которого отходят толстые ветки, от них тонкие и.т.д. Ваше дерево напоминает горизонтальные динные ветки от одного столба. Во первых это не красиво, а во вторых сломаются такие ветки. Где именно предлагаете нарастить "толщину" веток, на коллекторе или вторичных кольцах? Посилання на коментар Поділитися на інших сайтах More sharing options...
Vladimirnv Опубліковано: 19 січня 2012 Поділитись Опубліковано: 19 січня 2012 Прошу помощи практиков. Есть проект-схема системы отопления двухэтажного дома (170 м.кв.), составленная по принципу "хочу вот так" и подкрепленная теорией народного теплотехника - Гугла. Логика системы отопления: 1. котел греет первичный контур СО до гидрострелки, циркуляцию обеспечивает насос котла; 2. от гидроразделителя через коллектор уходят четыре вторичных контура (ТП, два этажа и хозпомещения); 3. теплый пол - две намотки по около 100 метров в санузлах 1 и 2 этажей, температура регулируется термоклапанами Юнибокс РТЛ на обратке, плюс трехходовик на коллекторе перед насосом; 4. радиаторное отопление в двух отдельных контурах (1,2 этажи) со своими насосами и предусмотренной возможностью через байпас циркулировать от одного насоса (поломка второго циркуляционника допустим); Вопрос - как подобрать мощность насосов на коллекторе, и допустимо ли заужение трубы обратной линии в кольцах радиаторного отопления? Желаемая логика ГВС: кольцо "котел-бойлер", кольцо "бойлер-потребители", трехходовой смешивающий клапан открывает прямой проток "котел-потребители" в случае окончания запаса горячей воды в бойлере. Вопрос - нужна ли отдельная автоматика управления 3-ходовым клапаном для обеспечения прямого протока от котла к потребителям? Если да, то какая и куда её? Имеются ли альтернативные решения даной схемы? Спасибо! а зачем так усложнять схему гвс. Купите одноконтурный котел и косвенник и все будет проще и понятней. А по отоплению- производительности котлового насоса будет маловато для загрузки стрелы.Qкотлового насоса должна быть на 10% выше чем суммарная производительность нагрузочных насосов. Посилання на коментар Поділитися на інших сайтах More sharing options...
Phaeton1 Опубліковано: 19 січня 2012 Автор Поділитись Опубліковано: 19 січня 2012 А по отоплению- производительности котлового насоса будет маловато для загрузки стрелы.Qкотлового насоса должна быть на 10% выше чем суммарная производительность нагрузочных насосов. Напрашивается еще один насос перед гидрострелкой на первичном контуре? А с одноконтурным непонятна логика "бойлер-прямой проток от котла в ГВС". Нагрузка на систему ГВС ожидается незначительная, потому грузить котел постоянной поддержкой циркуляционного контура не хочется. Нагрел котел бойлер и отдыхает пока температура не упадет до нижнего заданного значения. Понаехало народу, выбрали горячий запас из бойлера, и дальше себе пользуются от прямого протока. Вот так бы хотелось... У родственников стоит одноконтурный и косвенник на пол куба, есть небольшой зимний бассейн (сауна), так вот бассейн заполнил и горячей в доме уже увы... приходится ждать пока нагреется, дискомфорт однако. Посилання на коментар Поділитися на інших сайтах More sharing options...
murava Опубліковано: 19 січня 2012 Поділитись Опубліковано: 19 січня 2012 Вот же любопытный Вы, заказчики, народец Битый час в аське объяснял, что схема вторичных контуров кривовата - нет, все равно надо вынести эту схему-инвалида на всеобщее обсуждение А в итоге будут умнейшие советы типа: " Купите одноконтурный котел и косвенник и все будет проще и понятней.".. Посилання на коментар Поділитися на інших сайтах More sharing options...
Phaeton1 Опубліковано: 19 січня 2012 Автор Поділитись Опубліковано: 19 січня 2012 Битый час в аське объяснял, что схема вторичных контуров кривовата - нет, все равно надо вынести эту схему-инвалида на всеобщее обсуждение Дык, что кривовата схема это за "битый час" я усвоил, а вот как ее выпрямить вы не упомянули (насос на четвертый контур в техпомещения просто недорисовал). Посилання на коментар Поділитися на інших сайтах More sharing options...
Interso Опубліковано: 19 січня 2012 Поділитись Опубліковано: 19 січня 2012 Схема мягко говоря хреновая Так как у вас всё идёт по периметру отбалансировать систему будет очень тяжело или невозможно, плюс к этому у вас стоят внутрипольные конвектора которым нужен очень большой расход теплоносителя. Первое что надо сделать. Периметры первого и второго этажа закольцевать и увеличить диаметр труб но не везде. Второе-убрать RTLки,они лишние так как у вас есть смесительный узел,ветки контуров ТП первого и второго этажа выпускать прямо от смесительного узла. По котлу и бойлеру-убрать все ваши трёхходовики а поставить нормальный одноконтурный котёл и косвенник.ГВС вам хватит с головой. 1 Посилання на коментар Поділитися на інших сайтах More sharing options...
murava Опубліковано: 19 січня 2012 Поділитись Опубліковано: 19 січня 2012 Дык, что кривовата схема это за "битый час" я усвоил, а вот как ее выпрямить вы не упомянули (насос на четвертый контур в техпомещения просто недорисовал). Упомянул Насосы поставить, объединить некоторые ветки и пересчитать гидравлику по разводке - там есть узкие места... Посилання на коментар Поділитися на інших сайтах More sharing options...
Phaeton1 Опубліковано: 19 січня 2012 Автор Поділитись Опубліковано: 19 січня 2012 Первое что надо сделать... Предлагаю за "хорошее пиво" выпрямить схему с учетом моих пожеланий по функциональности системы в целом (детали о "пиве" в личку). Посилання на коментар Поділитися на інших сайтах More sharing options...
Phaeton1 Опубліковано: 19 січня 2012 Автор Поділитись Опубліковано: 19 січня 2012 Упомянул Андрей, ну для Вас то это сущий пустяк, не для меня. Потому и битый час вас упрашивал, чтоб небезвозмездно ляпы поправили. Почему такой любопытный, потому что пригласить на монтаж заслуженных не имею финансовых возможностей, а менее опытные могут накосячить, отаке. Посилання на коментар Поділитися на інших сайтах More sharing options...
murava Опубліковано: 19 січня 2012 Поділитись Опубліковано: 19 січня 2012 Андрей, ну для Вас то это сущий пустяк, не для меня. Потому и битый час вас упрашивал, чтоб небезвозмездно ляпы поправили. Почему такой любопытный, потому что пригласить на монтаж заслуженных не имею финансовых возможностей, а менее опытные могут накосячить, отаке. Дык я ж не против, ляпы-то я поправлю и даже схему нагора выдам, просто согласятся ли Ваши монтажники по ней делать ... .... А накосячить и я умею - это несложно... Посилання на коментар Поділитися на інших сайтах More sharing options...
Phaeton1 Опубліковано: 19 січня 2012 Автор Поділитись Опубліковано: 19 січня 2012 согласятся ли Ваши монтажники по ней делать ... Вот тут уж простите, кто платит, тот заказывает музыку Посилання на коментар Поділитися на інших сайтах More sharing options...
murava Опубліковано: 19 січня 2012 Поділитись Опубліковано: 19 січня 2012 Вот тут уж простите, кто платит, тот заказывает музыку Тогда стучитесь в аську - поправлю... 1 Посилання на коментар Поділитися на інших сайтах More sharing options...
murava Опубліковано: 19 січня 2012 Поділитись Опубліковано: 19 січня 2012 .....Qкотлового насоса должна быть на 10% выше чем суммарная производительность нагрузочных насосов. А если наоборот? Посилання на коментар Поділитися на інших сайтах More sharing options...
Interso Опубліковано: 19 січня 2012 Поділитись Опубліковано: 19 січня 2012 Предлагаю за "хорошее пиво" выпрямить схему с учетом моих пожеланий по функциональности системы в целом (детали о "пиве" в личку). Я вам и без пива уже поправил 1 Посилання на коментар Поділитися на інших сайтах More sharing options...
bgt Опубліковано: 19 січня 2012 Поділитись Опубліковано: 19 січня 2012 А если наоборот? насколько я помню, то Q котлового может быть на 10 %-30% меньше, тогда нужен гидравлический разделитель, который подбираеться под эти условия. Также мне не понятно назначение редуктора давления на подпитку системы а не поставить ли его вообще на весь дом ? Посилання на коментар Поділитися на інших сайтах More sharing options...
Phaeton1 Опубліковано: 19 січня 2012 Автор Поділитись Опубліковано: 19 січня 2012 Я вам и без пива уже поправил По правде, ниасилил логику прохода ТН и обратки по таким кольцам, но спорить не буду раз такая практика имеется. Посилання на коментар Поділитися на інших сайтах More sharing options...
Interso Опубліковано: 19 січня 2012 Поділитись Опубліковано: 19 січня 2012 По правде, ниасилил логику прохода ТН и обратки по таким кольцам, но спорить не буду раз такая практика имеется. При закольцовывании система становится самобалансируемая,тоись если радиатор окрылся то при таком подключении он будет питатся теплоносителем с той стороны где напор болше а при закрытии радиатора избыточный напор будет равномерно розпределятся на все открытые радиаторы в этом колце. Посилання на коментар Поділитися на інших сайтах More sharing options...
Phaeton1 Опубліковано: 19 січня 2012 Автор Поділитись Опубліковано: 19 січня 2012 Аргумент, спасибо. Еще не раскрыта тема запитки радиатора Р-2.6., установленного в помещении между 1 и 2 этажами. На него давать отвод 16мм (но протянет ли?) или заводить туда контур? Посилання на коментар Поділитися на інших сайтах More sharing options...
Interso Опубліковано: 19 січня 2012 Поділитись Опубліковано: 19 січня 2012 Аргумент, спасибо. Еще не раскрыта тема запитки радиатора Р-2.6., установленного в помещении между 1 и 2 этажами. На него давать отвод 16мм (но протянет ли?) или заводить туда контур? Для него хватит с головой 16й трубы подключённой по диагонали,если это радиатор с боковым подключением. Также принцип закольцовывания применяется и в водоснабжении. Посилання на коментар Поділитися на інших сайтах More sharing options...
Vladimirnv Опубліковано: 19 січня 2012 Поділитись Опубліковано: 19 січня 2012 А если наоборот? Вы же сами знаете что будет Посилання на коментар Поділитися на інших сайтах More sharing options...
Interso Опубліковано: 19 січня 2012 Поділитись Опубліковано: 19 січня 2012 Прошу помощи практиков. Есть проект-схема системы отопления двухэтажного дома (170 м.кв.), При такой схеме котельной вы только на одном электричестве розоритесь, да и плюс к такой схеме нужен ну очень мощный ИБП. ПС. У меня тоже дом 170м2 и отапливается одним котловым насосом. Посилання на коментар Поділитися на інших сайтах More sharing options...
Vladimirnv Опубліковано: 19 січня 2012 Поділитись Опубліковано: 19 січня 2012 насколько я помню, то Q котлового может быть на 10 %-30% меньше, тогда нужен гидравлический разделитель, который подбираеться под эти условия. Также мне не понятно назначение редуктора давления на подпитку системы а не поставить ли его вообще на весь дом ? Немного о возможной работе стрелки newcok.3dn.ru/faq/3-1#4 Посилання на коментар Поділитися на інших сайтах More sharing options...
Сергей_84 Опубліковано: 19 січня 2012 Поділитись Опубліковано: 19 січня 2012 а. А по отоплению- производительности котлового насоса будет маловато для загрузки стрелы. Простите., а с какого потолка вы это взяли? может вы знаетет название котла? Посилання на коментар Поділитися на інших сайтах More sharing options...
Рекомендовані повідомлення
Створіть акаунт або увійдіть у нього для коментування
Ви маєте бути користувачем, щоб залишити коментар
Створити акаунт
Зареєструйтеся для отримання акаунта. Це просто!
Зареєструвати акаунтУвійти
Вже зареєстровані? Увійдіть тут.
Увійти зараз