vopros'nik Опубліковано: 20 січня 2012 Поділитись Опубліковано: 20 січня 2012 У нас тоже 4 чел., двое взрослых детей - нам не всегда хватает 2 с/у (один очень любит подолгу плескаться, мы его туалетным утенком зовем :D). У нас одна ванная совмещенная, вторая отделная и с/у хватает с головой. Посилання на коментар Поділитися на інших сайтах More sharing options...
Acidius Опубліковано: 20 січня 2012 Автор Поділитись Опубліковано: 20 січня 2012 Еще порисовал - добавил лестницу. Попытался учесть все замечания. Посилання на коментар Поділитися на інших сайтах More sharing options...
Mania Опубліковано: 20 січня 2012 Поділитись Опубліковано: 20 січня 2012 (змінено) Вам надо предусмотреть не только красоту и функциональность внутренней планировки, но и технологичность дома. 1) посмотрите какие стены внутри дома будут несущими — рассмотрите вариант той стены которая у вас самая длинная и тогда при смещении ее в центр дома, она будет хорошей основой для крыши. 2) не обязательно санузлы делать прямоугольные, можно разбить планировку санузла так, что встроенная душевая даст Вам возможность найти более функциональную планировку для гардероба. 3) Я очень приветствую большое кол-во санузлов, но надо посмотреть чтоб трубы водоподготовки и канализации у Вас не опутывали паутиной весь дом. Вы можете сместить всю водоподготовку к центральной стене (кроме кухни). При этом посмотрите где у Вас будет наружный септик. А вообще мой Вам совет: прорабатывайте свой вариант планировки, поймите окончательно что Вам нужно и найдите готовый проект если не в Украине, то в России. Я покупала проект сделанный в Самаре и искала его N месяцев. Желаю удачи! Посмотрите проект www.postroi.ru/projects/j-229-1k/ Змінено 20 січня 2012 користувачем Mania добавление 1 Посилання на коментар Поділитися на інших сайтах More sharing options...
Acidius Опубліковано: 20 січня 2012 Автор Поділитись Опубліковано: 20 січня 2012 (змінено) Вам надо предусмотреть не только красоту и функциональность внутренней планировки, но и технологичность дома. 1) посмотрите какие стены внутри дома будут несущими — рассмотрите вариант той стены которая у вас самая длинная и тогда при смещении ее в центр дома, она будет хорошей основой для крыши. 2) не обязательно санузлы делать прямоугольные, можно разбить планировку санузла так, что встроенная душевая даст Вам возможность найти более функциональную планировку для гардероба. 3) Я очень приветствую большое кол-во санузлов, но надо посмотреть чтоб трубы водоподготовки и канализации у Вас не опутывали паутиной весь дом. Вы можете сместить всю водоподготовку к центральной стене (кроме кухни). При этом посмотрите где у Вас будет наружный септик. А вообще мой Вам совет: прорабатывайте свой вариант планировки, поймите окончательно что Вам нужно и найдите готовый проект если не в Украине, то в России. Я покупала проект сделанный в Самаре и искала его N месяцев. Желаю удачи! Посмотрите проект www.postroi.ru/projects/j-229-1k/ Спасибо за ссылку, но у меня фасад всего 24 метра - не влезет По сайтам - искал почти год (писал выше) - не вдохновило. Вообще ищу архитектора-конструктора в Донецке (в соответствующем разделе есть тема) - пока никто не откликнулся. Считаю, что типовые проекты не моё - надо делать под заказчика и с авторским надзором (хотя не совсем понимаю что такое авторский надзор - если определились с проектом и он готов - стройся, а косяки при реализации (если это косяки разработчика) - это проблемы проектанта, и оплачивать их по ходу должен он. Я так думаю). А спланировать самому - только на уровне хотелок;) Змінено 20 січня 2012 користувачем Acidius Посилання на коментар Поділитися на інших сайтах More sharing options...
руки_из_попы Опубліковано: 20 січня 2012 Поділитись Опубліковано: 20 січня 2012 сразу видно..что для сдачи в аренду.... Посилання на коментар Поділитися на інших сайтах More sharing options...
viksi_f Опубліковано: 20 січня 2012 Поділитись Опубліковано: 20 січня 2012 Вот, еще немного поигралась. С учетом ширины участка и всех пожеланий по поводу с/у и гардеробных, получилось следующее: площадь комнат порядка 20 кв.м., большие гардеробные в каждой комнате, персональные с/у для каждой спальни + гостевой. Три сантехнических блока - для детских, родительского и гостевого с/у и для кухни/котельной. Если я правильно поняла, у Вас фасад участка расположен в сторону севера и дороги. Поэтому, мне кажется, не стоит в этом направлении располагать спальни. Понятно, что терасса в глубине участка смотрится интимнее, но лучше ее расположить сбоку, а спальни дальше от дороги. При этом, нужно учитывать расстановку мебели и вид дома снаружи (расположение окон и т.д.). Общая площадь дома (застройки) получилась 280 кв.м. с размерами примерно 14 х 20 м. Возле тамбура большое остекление, которое сделает коридор светлым. Лестницу можно расположить там же, только сделать ее закрытой. Не обращайте внимание на цветовое решение и расстановку мебели - это так, прикидка. Может какие идеи у Вас в результате еще появятся . 1 Посилання на коментар Поділитися на інших сайтах More sharing options...
Volhv Опубліковано: 20 січня 2012 Поділитись Опубліковано: 20 січня 2012 А мне кажется бессмысленно делать такое количество гардеробных, все вопросы решаются установкой в спальне небольшого шкафа или камода для нижнего белья. Гораздо важнее выделить комнату-гардеробную для хранения обуви и верхней одежды, а также там можно хранить множество вещей, таких как пылесос, доску для глажки итд. Посилання на коментар Поділитися на інших сайтах More sharing options...
Acidius Опубліковано: 20 січня 2012 Автор Поділитись Опубліковано: 20 січня 2012 сразу видно..что для сдачи в аренду.... У каждого своё видение. Смотрите дальше. Посилання на коментар Поділитися на інших сайтах More sharing options...
Acidius Опубліковано: 20 січня 2012 Автор Поділитись Опубліковано: 20 січня 2012 А мне кажется бессмысленно делать такое количество гардеробных, все вопросы решаются установкой в спальне небольшого шкафа или камода для нижнего белья. Гораздо важнее выделить комнату-гардеробную для хранения обуви и верхней одежды, а также там можно хранить множество вещей, таких как пылесос, доску для глажки итд. Согласен, но это как фломастеры -каждому своё)). Сейчас у меня в спальне шкаф-купе 1.5х2, спальня 16 квадратов - кровать, "мазалка" для жены -всё, не пройти. Пылесос, доска для глажки - в котельной/постирочной. Сезонная обувь и верхняя одежда - гардероб возле входа, остальная - по своим гардеробным Посилання на коментар Поділитися на інших сайтах More sharing options...
Acidius Опубліковано: 20 січня 2012 Автор Поділитись Опубліковано: 20 січня 2012 Вот, еще немного поигралась. С учетом ширины участка и всех пожеланий по поводу с/у и гардеробных, получилось следующее: площадь комнат порядка 20 кв.м., большие гардеробные в каждой комнате, персональные с/у для каждой спальни + гостевой. Три сантехнических блока - для детских, родительского и гостевого с/у и для кухни/котельной. Если я правильно поняла, у Вас фасад участка расположен в сторону севера и дороги. Поэтому, мне кажется, не стоит в этом направлении располагать спальни. Понятно, что терасса в глубине участка смотрится интимнее, но лучше ее расположить сбоку, а спальни дальше от дороги. При этом, нужно учитывать расстановку мебели и вид дома снаружи (расположение окон и т.д.). Общая площадь дома (застройки) получилась 280 кв.м. с размерами примерно 14 х 20 м. Возле тамбура большое остекление, которое сделает коридор светлым. Лестницу можно расположить там же, только сделать ее закрытой. Не обращайте внимание на цветовое решение и расстановку мебели - это так, прикидка. Может какие идеи у Вас в результате еще появятся . Спасибо большое, но терасса упирающаяся в забор - как-то не то, но как вариант думать дальше - спасибо. И у меня дорога - это переулок, там всего десять домов - движуха практически отсутствует. Кстати, из представленных на этом сайте, ближе как мне кажется этот www.postroi.ru/projects/r-151-1k/ , но там тоже фасад... Посилання на коментар Поділитися на інших сайтах More sharing options...
viksi_f Опубліковано: 20 січня 2012 Поділитись Опубліковано: 20 січня 2012 Спасибо большое, но терасса упирающаяся в забор - как-то не то, но как вариант думать дальше - спасибо. И у меня дорога - это переулок, там всего десять домов - движуха практически отсутствует. На самом деле, до забора там еще несколько метров. Вот, сделала с учетом ширины участка. В этих вариантах развернута и смещена спальня, за счет чего терасса заходит за дом. На втором рисунке комнаты чуть уменьшены за счет с/у и увеличены кухня/гостинная, котельная и тамбур. Это уменьшило коридор и стена стала точно посередине. На рисунках все размеры указаны. Кстати, на фасаде можно сделать стеклянный полукруглый эркер а перед ним винтовую лестницу в винный погреб/мастерскую. 1 Посилання на коментар Поділитися на інших сайтах More sharing options...
viksi_f Опубліковано: 20 січня 2012 Поділитись Опубліковано: 20 січня 2012 Кстати, на фасаде можно сделать стеклянный полукруглый эркер а перед ним винтовую лестницу в винный погреб/мастерскую. Как-то так... 1 Посилання на коментар Поділитися на інших сайтах More sharing options...
Acidius Опубліковано: 21 січня 2012 Автор Поділитись Опубліковано: 21 січня 2012 Как-то так... Большое спасибо - это уже где-то очень рядом. В понедельник еще поиграюсь с предложенным вариантом. Посилання на коментар Поділитися на інших сайтах More sharing options...
viksi_f Опубліковано: 21 січня 2012 Поділитись Опубліковано: 21 січня 2012 Пожалуйста , не забудьте похвастаться своим вариантом . Посилання на коментар Поділитися на інших сайтах More sharing options...
Acidius Опубліковано: 23 січня 2012 Автор Поділитись Опубліковано: 23 січня 2012 Сорри, в командировке дня на три. 1 Посилання на коментар Поділитися на інших сайтах More sharing options...
Acidius Опубліковано: 30 січня 2012 Автор Поділитись Опубліковано: 30 січня 2012 Командировка затянулась... Зато было время осмыслить последний предложенный viksi_f проект. Вчера сходили с женой на участок, повбивали колышки, натянули веревочки, "походили" по будующему дому.... Что интересно - если стоять в середине "дома" - кажется не таким уж и большим, отходишь на один из краев - очень большой))). Вообщем еще в раздумии, жена еще хочет сделать макет из бумаги - ей так легче представляется. Viksi_f - а в чем Вы переделывали (в какой программе) проект - если можно, скиньте или проект, или чуть больше размеров - а то я тут распечатал и с линейкой мерял - как-то у меня разные площади выходят. Сам рисовал в арконе. И наверно все-же лучше отзеркалить проект - поменять восход и запад местами. Геологию сделали - результат будет в следующий понедельник. Может еще кто-нибудь предложит проект под заданные условия, а??? Посилання на коментар Поділитися на інших сайтах More sharing options...
Acidius Опубліковано: 31 січня 2012 Автор Поділитись Опубліковано: 31 січня 2012 Порисовал в FloorPlan 3D. Отзеркалил и убрал один гардероб, место него - лестница в подвал. Посилання на коментар Поділитися на інших сайтах More sharing options...
viksi_f Опубліковано: 31 січня 2012 Поділитись Опубліковано: 31 січня 2012 Viksi_f - а в чем Вы переделывали (в какой программе) проект - если можно, скиньте или проект, или чуть больше размеров - а то я тут распечатал и с линейкой мерял - как-то у меня разные площади выходят. Проект делала в MS Visio 2007. Площади все вычисляются автоматически, неточности есть только в помещениях, имеющих сложную внутреннюю форму (в спальнях с выступающими внутрь с/у, кухня-столовая-гостинная, в которой площадь кладовки входит в общую). Проект могу сбросить на почту (здесь не позволяет этого формата файлы выкладывать) или напишите какие размеры еще нужны. 1 Посилання на коментар Поділитися на інших сайтах More sharing options...
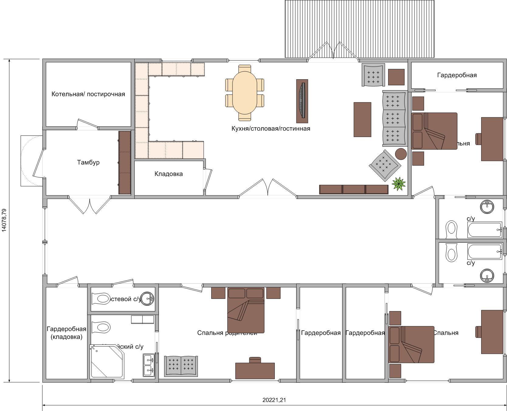
Acidius Опубліковано: 6 лютого 2012 Автор Поділитись Опубліковано: 6 лютого 2012 Получил геологию - подвалу быть. Прорисовал и расставил мебель, привязал к участку. Может у кого есть креативные идеи - типа круг, овал, шестиугольник ??? Очень прошу поделиться. Посилання на коментар Поділитися на інших сайтах More sharing options...
Archist Опубліковано: 6 лютого 2012 Поділитись Опубліковано: 6 лютого 2012 Получил геологию - подвалу быть. Прорисовал и расставил мебель, привязал к участку. Может у кого есть креативные идеи - типа круг, овал, шестиугольник ??? Очень прошу поделиться. Я смотрю коридор-боулинг сейчас в моде? 2 Посилання на коментар Поділитися на інших сайтах More sharing options...
Artyomovets Опубліковано: 6 лютого 2012 Поділитись Опубліковано: 6 лютого 2012 душ принять гостям ну никак не позволяют хозяева... заночевать же им придется на улице... или в котельной... 1 Посилання на коментар Поділитися на інших сайтах More sharing options...
Acidius Опубліковано: 6 лютого 2012 Автор Поділитись Опубліковано: 6 лютого 2012 душ принять гостям ну никак не позволяют хозяева... заночевать же им придется на улице... или в котельной... Про душ - упсс! Надо увеличить гостевой с/у и добавить душевую. Заночевать - гостинная в распоряжении. Пока так. Посилання на коментар Поділитися на інших сайтах More sharing options...
Acidius Опубліковано: 6 лютого 2012 Автор Поділитись Опубліковано: 6 лютого 2012 Я смотрю коридор-боулинг сейчас в моде? :D Везде надо искать позитив - спасибо за идею. Еще малой на машинке и самокате зимой гонять будет А если серьезно - в ТАКОЙ планировке от них никуда не денешься. Посилання на коментар Поділитися на інших сайтах More sharing options...
Archist Опубліковано: 6 лютого 2012 Поділитись Опубліковано: 6 лютого 2012 :D Везде надо искать позитив - спасибо за идею. Еще малой на машинке и самокате зимой гонять будет А если серьезно - в ТАКОЙ планировке от них никуда не денешься. В ТАКОЙ - действительно! Но если посмотрите планировки других домов (даже в соседних ветках), то увидите, что существуют другие варианты планировки, отличные от планирования типовых панельных квартир. Хотя, если не смущает, что площадь коридора в 1,5 раза больше гостиной... 2 Посилання на коментар Поділитися на інших сайтах More sharing options...
Artyomovets Опубліковано: 6 лютого 2012 Поділитись Опубліковано: 6 лютого 2012 Заночевать - гостинная в распоряжении. Пока так. что значит "пока"? вы потом достраивать что-то собираетесь? Посилання на коментар Поділитися на інших сайтах More sharing options...
Рекомендовані повідомлення
Створіть акаунт або увійдіть у нього для коментування
Ви маєте бути користувачем, щоб залишити коментар
Створити акаунт
Зареєструйтеся для отримання акаунта. Це просто!
Зареєструвати акаунтУвійти
Вже зареєстровані? Увійдіть тут.
Увійти зараз