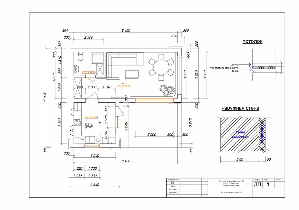
oleg.kotenko. Опубліковано: 24 січня 2012 Поділитись Опубліковано: 24 січня 2012 Доброго времени суток уважаемые форумчане! Помогите сделать схему отопления в полу. Есть план загородного домика. Возможно только электро-отопление. Нужно выбрать электрокотел по мощьности и качеству. Хочется чтобы кухня, с/у и комната обогревались независимо. Котел хотелось бы установить в с/у если можно. Помогите советами! Зарание всем спасибо! Посилання на коментар Поділитися на інших сайтах More sharing options...
oleg.kotenko. Опубліковано: 24 січня 2012 Автор Поділитись Опубліковано: 24 січня 2012 Попробую поднять может мир не без добрых людей! Посилання на коментар Поділитися на інших сайтах More sharing options...
Vasiliev Опубліковано: 24 січня 2012 Поділитись Опубліковано: 24 січня 2012 Попробую поднять может мир не без добрых людей! А можно нескромный вопрос? Если пол греет электричество, то зачем вам нужна труба, котел, всякие фиттинги, опять же регулировка по комнатам, место которое будет это все занимать... Ставьте себе электрический теплый пол. Посилання на коментар Поділитися на інших сайтах More sharing options...
Сергей_84 Опубліковано: 24 січня 2012 Поділитись Опубліковано: 24 січня 2012 Доброго времени суток уважаемые форумчане! Помогите сделать схему отопления в полу. Есть план загородного домика. Возможно только электро-отопление. Нужно выбрать электрокотел по мощьности и качеству. Хочется чтобы кухня, с/у и комната обогревались независимо. Котел хотелось бы установить в с/у если можно. Помогите советами! Зарание всем спасибо! здесь вам врядли будут рисовать схемы и считать теплпотери для подбора котла... Вы сами хотите делать? или нанимать специалиста, если второе, то ваша работа сейчас-напрасна Посилання на коментар Поділитися на інших сайтах More sharing options...
oleg.kotenko. Опубліковано: 24 січня 2012 Автор Поділитись Опубліковано: 24 січня 2012 здесь вам врядли будут рисовать схемы и считать теплпотери для подбора котла... Вы сами хотите делать? или нанимать специалиста, если второе, то ваша работа сейчас-напрасна Хочу в этом разобраться и сделать сам. Посилання на коментар Поділитися на інших сайтах More sharing options...
Сергей_84 Опубліковано: 24 січня 2012 Поділитись Опубліковано: 24 січня 2012 Хочу в этом разобраться и сделать сам. тогда хороший совет вам дали высше...ложите электрополы...и управляйте как хотите, по всем помещениям отдельно..притом дешевле обойдется Посилання на коментар Поділитися на інших сайтах More sharing options...
Vasiliev Опубліковано: 24 січня 2012 Поділитись Опубліковано: 24 січня 2012 Хочу в этом разобраться и сделать сам. В расчете теплопотерь будете сами долго разбираться - народ весь институт грыз гранит науки, чтобы стать теплотехником. Оно вам надо? А вот разобраться что и зачем и как смонтировать действительно можете. Могу вам помочь с расчетами тепловых потерь вашего дома и сделать предложение по кабельным теплым полам - пишите. И правы также коллеги - форумчане сама система получится дешевле и проще. Посилання на коментар Поділитися на інших сайтах More sharing options...
oleg.kotenko. Опубліковано: 24 січня 2012 Автор Поділитись Опубліковано: 24 січня 2012 затраты на оплату отопления где ниже? Посилання на коментар Поділитися на інших сайтах More sharing options...
Vasiliev Опубліковано: 24 січня 2012 Поділитись Опубліковано: 24 січня 2012 затраты на оплату отопления где ниже? Практически одинаковы, но в случае с кабельным отоплением все же ниже, ибо вы греете кабелем (перевод электрической энергии в тепловую) прямо в месте тепловых потерь - то бишь в комнате, с/у и т.д. А в случае с котлом вы греете все это в одном месте (там есть небольше потери), потом доставляете это тепло в места потребления энергии (потери на транспортировку, работа циркуляционного насоса, КПД Котла). Если хотите в цифрах, то котел надо брать процентов на 15-20 более мощный чем мощность теплых электрических полов. Некритично, но все же. Коллеги меня подправят если я ошибаюсь. Посилання на коментар Поділитися на інших сайтах More sharing options...
Сергей_84 Опубліковано: 24 січня 2012 Поділитись Опубліковано: 24 січня 2012 затраты на оплату отопления где ниже? одинаково, если будет работать автоматика и поддерживать температуру Посилання на коментар Поділитися на інших сайтах More sharing options...
Korni Опубліковано: 24 січня 2012 Поділитись Опубліковано: 24 січня 2012 одинаково,..... А это.... как его... о! Закон преобразования энергии! С водой добавляется ещё одно преобразование. Я за прямой элетронагрев. Посилання на коментар Поділитися на інших сайтах More sharing options...
Сергей_84 Опубліковано: 24 січня 2012 Поділитись Опубліковано: 24 січня 2012 А это.... как его... о! Закон преобразования энергии! С водой добавляется ещё одно преобразование. Я за прямой элетронагрев. я тоже...по всем параметрам это выгоднее, но разница в эксплуатационных затратах не огромна(потрие однозначно есть, но опять же не огромны)... я к тому, что если вдруг в будущем предполгается газ, то я бы сделал водяное..если нет, то однозначно-электрополы... Посилання на коментар Поділитися на інших сайтах More sharing options...
oleg.kotenko. Опубліковано: 24 січня 2012 Автор Поділитись Опубліковано: 24 січня 2012 В том то и дело, что через пару лет будет газ. и возможность подключения твердотопливного котла Посилання на коментар Поділитися на інших сайтах More sharing options...
Korni Опубліковано: 24 січня 2012 Поділитись Опубліковано: 24 січня 2012 В том то и дело, что через пару лет будет газ. Как ни покажется это Вам странным, но если дом постоянного проживания, то я бы посоветовал и электропол, и водяной смонтировать... хотя бы трубы заложить. Посилання на коментар Поділитися на інших сайтах More sharing options...
Сергей_84 Опубліковано: 24 січня 2012 Поділитись Опубліковано: 24 січня 2012 В том то и дело, что через пару лет будет газ. а стоимость его подключения хоть приблизительно можетет оценить..? Для информации: в среднем отопление газом в 2 раза дешевле электричества, если электричество по двойному тарифу, то немного меньше Посилання на коментар Поділитися на інших сайтах More sharing options...
Музей Опубліковано: 24 січня 2012 Поділитись Опубліковано: 24 січня 2012 В том то и дело, что через пару лет будет газ. и возможность подключения твердотопливного котла А через пару лет газ будет почем? Я тоже дошла до вопросов по отоплению дома. Надо что-то решать. Послушаю что говорят... Посилання на коментар Поділитися на інших сайтах More sharing options...
Korni Опубліковано: 24 січня 2012 Поділитись Опубліковано: 24 січня 2012 А через пару лет газ будет почем?.... А какая разница? Посилання на коментар Поділитися на інших сайтах More sharing options...
Vasiliev Опубліковано: 24 січня 2012 Поділитись Опубліковано: 24 січня 2012 А через пару лет газ будет почем? Я тоже дошла до вопросов по отоплению дома. Надо что-то решать. Послушаю что говорят... Сам знаю несколько людей, сделавших традиционную систему отопления (газовый котел + батареи), но в стяжку пола поместивших нагревательные кабели. Даже терморегуляторы не ставили (чтоб не тратиться) - просто оставили в стене закрытую монтажную коробку. Из серии - хай будэ, мало ли чем завтра отапливать придется. Стоимость кабеля для отопления - в принципе, ерунда на фоне общих затрат. Да что там - у меня практически то же, только регуляторы чуть другие (можно быстро поменять). Мощность теплых полов в доме чуть превышает теплопотери - в случае ничего не замерзну. Ну и камин еще есть Посилання на коментар Поділитися на інших сайтах More sharing options...
ts3 Опубліковано: 24 січня 2012 Поділитись Опубліковано: 24 січня 2012 Как ни покажется это Вам странным, но если дом постоянного проживания, то я бы посоветовал и электропол, и водяной смонтировать... хотя бы трубы заложить. А зачем? Либо целимся на газ/ТТ котел и вешаем электрокотел либо нет(используем электрический теплый пол) Посилання на коментар Поділитися на інших сайтах More sharing options...
Korni Опубліковано: 24 січня 2012 Поділитись Опубліковано: 24 січня 2012 А зачем? ..... Понятно, что обогревом пола Вы не пользуетесь.... Посилання на коментар Поділитися на інших сайтах More sharing options...
Музей Опубліковано: 24 січня 2012 Поділитись Опубліковано: 24 січня 2012 А какая разница? Дык...что значит какая разница? Вы хотите сказать, что газ уже настолько дорогой, что до разницы большинство не доживут?:D А если серьёзно, то что порекомендуете для отопления дома постоянного проживания. Бюджетность желательна, но не за счет качества. Учитывая реалии, точно поставлю что-нибуть совершенно автономное. И отопление электричеством без котла с бойлером для воды. Уже 2. Стоит ли тратиться еще и на газ? До трубы метров 100, больше пока ничего не знаю. Посилання на коментар Поділитися на інших сайтах More sharing options...
Korni Опубліковано: 24 січня 2012 Поділитись Опубліковано: 24 січня 2012 Дык...что значит какая разница? Вы хотите сказать, что газ уже настолько дорогой, что до разницы большинство не доживут?:.......До трубы метров 100, больше пока ничего не знаю. Я хочу сказать, что газовое отопление - самое экономичное и надёжное. И будет таким ещё не один десяток лет. Подорожает газ, подорожает и электричество... не говоря о дровах, и так не дешёвых. Рекомендовать сложно - мало данных. И не очень уместно в чужой ветке. 2 Посилання на коментар Поділитися на інших сайтах More sharing options...
oleg.kotenko. Опубліковано: 24 січня 2012 Автор Поділитись Опубліковано: 24 січня 2012 А по теме мне кто-нибудь подскажет? Посилання на коментар Поділитися на інших сайтах More sharing options...
Музей Опубліковано: 24 січня 2012 Поділитись Опубліковано: 24 січня 2012 А по теме мне кто-нибудь подскажет? Я прошу прощения. В Вашей темке больше не буду спрашивать. Посилання на коментар Поділитися на інших сайтах More sharing options...
Korni Опубліковано: 24 січня 2012 Поділитись Опубліковано: 24 січня 2012 .....Возможно только электро-отопление. Нужно выбрать электрокотел по мощьности и качеству..... Protherm на 6 кВт. Ветку можно закрывать. 1 Посилання на коментар Поділитися на інших сайтах More sharing options...
Рекомендовані повідомлення
Створіть акаунт або увійдіть у нього для коментування
Ви маєте бути користувачем, щоб залишити коментар
Створити акаунт
Зареєструйтеся для отримання акаунта. Це просто!
Зареєструвати акаунтУвійти
Вже зареєстровані? Увійдіть тут.
Увійти зараз