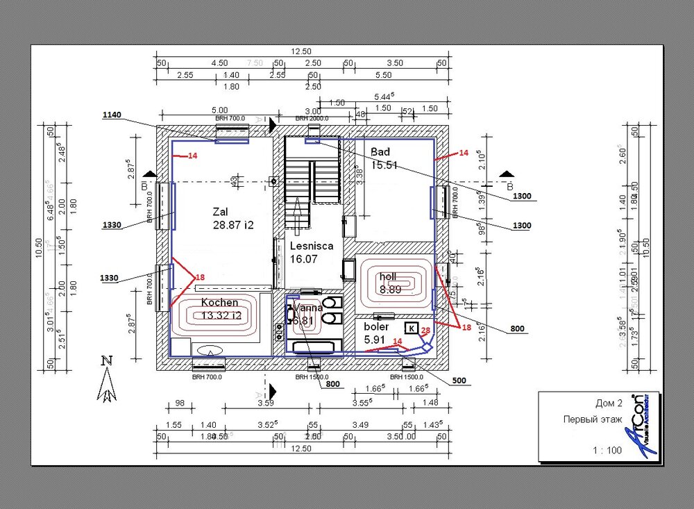
Plotnikovvv Опубліковано: 27 січня 2012 Поділитись Опубліковано: 27 січня 2012 Здравствуйте! Прошу покритиковать систему, схему просчитали спецы... я перенес ее на бумагу... может они что-то не учли... Посилання на коментар Поділитися на інших сайтах More sharing options...
naupv Опубліковано: 27 січня 2012 Поділитись Опубліковано: 27 січня 2012 А что тут критиковать, много тупиковых радиаторов, если это медь, то у нее не 14, а 15мм, полотенцесушитель бы через рециркуляцию ГВС пустить, на тупиковые радиаторы я бы не ставил длинные отводки 15-й трубой, может потом балансировать придется. Посилання на коментар Поділитися на інших сайтах More sharing options...
B.S.V. Опубліковано: 27 січня 2012 Поділитись Опубліковано: 27 січня 2012 Скорее всего, от котла 28 медь, остальное Каном. Не понятно где подъем на 2 этаж и какого диаметра стояк. 1 Посилання на коментар Поділитися на інших сайтах More sharing options...
Сергей_84 Опубліковано: 27 січня 2012 Поділитись Опубліковано: 27 січня 2012 Здравствуйте! Прошу покритиковать систему, схему просчитали спецы... я перенес ее на бумагу... может они что-то не учли... Не заметил ни грамма криминала.....Некоторые участки даже с запасом как это не может показаться странным для некоторых моих коллег... Спокойно можно брать в работу. Если делать не КАНом , то 14 заменить на 16, а 18- на 20 1 Посилання на коментар Поділитися на інших сайтах More sharing options...
Plotnikovvv Опубліковано: 28 січня 2012 Автор Поділитись Опубліковано: 28 січня 2012 Спасибо всем за ответы... Стояк будет 25мм... на чертеже он выделен ромбом.... А в чем разница кана от других...? уж очень дорогая эта труба... Или может соединить все радиаторы от гребенки?! но какую ставить трубу в этом случае... ? Подскажите как удешевить систему...? Посилання на коментар Поділитися на інших сайтах More sharing options...
B.S.V. Опубліковано: 28 січня 2012 Поділитись Опубліковано: 28 січня 2012 Спасибо всем за ответы... Стояк будет 25мм... на чертеже он выделен ромбом.... А в чем разница кана от других...? уж очень дорогая эта труба... Или может соединить все радиаторы от гребенки?! но какую ставить трубу в этом случае... ? Подскажите как удешевить систему...? 1.Кан- относительно недорогая польская труба нормального качества. 2. У Вас по плану двухтрубная тупиковая разводка, т.е. самый экономный вариант. 3. Дороже будет "попутка" , еще дороже- коллекторная система (как вы пишете от гребенки) 1 Посилання на коментар Поділитися на інших сайтах More sharing options...
Пролин Опубліковано: 28 січня 2012 Поділитись Опубліковано: 28 січня 2012 Подскажите как удешевить систему...? Рассмотрите вариант решения первого этажа в теплых полах. Смесительная установка все равно будет и думаю, что в этом случае может быть дешевле проектного решения. Посилання на коментар Поділитися на інших сайтах More sharing options...
Пролин Опубліковано: 28 січня 2012 Поділитись Опубліковано: 28 січня 2012 1.Кан- относительно недорогая польская труба нормального качества. Я бы сказал так - КАН, это польская компания, использующая в своей системе немецкую трубу нормального качества. если мы говорим о линейном и сетированном полиэтилене. 1 Посилання на коментар Поділитися на інших сайтах More sharing options...
Сергей_84 Опубліковано: 28 січня 2012 Поділитись Опубліковано: 28 січня 2012 Спасибо всем за ответы... Стояк будет 25мм... на чертеже он выделен ромбом.... А в чем разница кана от других...? уж очень дорогая эта труба... Или может соединить все радиаторы от гребенки?! но какую ставить трубу в этом случае... ? Подскажите как удешевить систему...? Кан-это самое дешевое решение из самых качественных...удешевить без потери качества не получится.. PS Совсем эта труба недорогая... 1 Посилання на коментар Поділитися на інших сайтах More sharing options...
Plotnikovvv Опубліковано: 28 січня 2012 Автор Поділитись Опубліковано: 28 січня 2012 Кан-это самое дешевое решение из самых качественных...удешевить без потери качества не получится.. PS Совсем эта труба недорогая... А сколько такая система потянет без катла? (меня напугали 50т) Посилання на коментар Поділитися на інших сайтах More sharing options...
Сергей_84 Опубліковано: 28 січня 2012 Поділитись Опубліковано: 28 січня 2012 А сколько такая система потянет без катла? (меня напугали 50т) не знаю как на кане, но на ТЕСЕ с радиаторами Керми,котлом Вайлантом с бойлером на литров 120 и монтажем водоснабжения и канализации около 9-10 тыс $ с работой...+- пару тысч гривен Говорю достаточно уверенно, потомоу что не один подобный домик смонтировал Посилання на коментар Поділитися на інших сайтах More sharing options...
naupv Опубліковано: 29 січня 2012 Поділитись Опубліковано: 29 січня 2012 Кан-это самое дешевое решение из самых качественных...удешевить без потери качества не получится.. PS Совсем эта труба недорогая... Нужно добавить-из систем с натяжной гильзой. Есть еще с пресс-гильзой. Посилання на коментар Поділитися на інших сайтах More sharing options...
Plotnikovvv Опубліковано: 1 лютого 2012 Автор Поділитись Опубліковано: 1 лютого 2012 По кану я так понял есть только гибкая труба... В эпике видел трубы прямые по 4 м, паяются и все... неужели они хуже чем кан... но их там множество... и какую именно выбрать не знаю... Добрые люди.. подскажите.... Посилання на коментар Поділитися на інших сайтах More sharing options...
Plotnikovvv Опубліковано: 2 лютого 2012 Автор Поділитись Опубліковано: 2 лютого 2012 И еще вопрос... как лучше вести трубы, по полу или по стене....? Посилання на коментар Поділитися на інших сайтах More sharing options...
Сергей_84 Опубліковано: 2 лютого 2012 Поділитись Опубліковано: 2 лютого 2012 По кану я так понял есть только гибкая труба... В эпике видел трубы прямые по 4 м, паяются и все... неужели они хуже чем кан... но их там множество... и какую именно выбрать не знаю... Добрые люди.. подскажите.... в эпицентре хорошего редко продается..обычно ширпотреб побюджетнее чтобы пипл хавал...Или сильно дорогое для больших мешков с деньгами... И еще вопрос... как лучше вести трубы, по полу или по стене....? выгоднее вести по полу 1 Посилання на коментар Поділитися на інших сайтах More sharing options...
Plotnikovvv Опубліковано: 2 лютого 2012 Автор Поділитись Опубліковано: 2 лютого 2012 в эпицентре хорошего редко продается..обычно ширпотреб побюджетнее чтобы пипл хавал...Или сильно дорогое для больших мешков с деньгами... выгоднее вести по полу Так все-же... какую трубу выбрать которую можно пояеть... и какого производителя? Разводку все-же решил делать по стенам... Посилання на коментар Поділитися на інших сайтах More sharing options...
Fly Wind Опубліковано: 2 лютого 2012 Поділитись Опубліковано: 2 лютого 2012 системы с гильзой надежнее чем с пайкой имхо пс-у меня в квартире рехау раутитан, делал сам 1 Посилання на коментар Поділитися на інших сайтах More sharing options...
Сергей_84 Опубліковано: 2 лютого 2012 Поділитись Опубліковано: 2 лютого 2012 Так все-же... какую трубу выбрать которую можно пояеть... и какого производителя? Разводку все-же решил делать по стенам... Если для пайки, то лучшая_Акватерм и Баннингер, средняя-Вавин екопластик 1 Посилання на коментар Поділитися на інших сайтах More sharing options...
B.S.V. Опубліковано: 2 лютого 2012 Поділитись Опубліковано: 2 лютого 2012 Так все-же... какую трубу выбрать которую можно пояеть... и какого производителя? Разводку все-же решил делать по стенам... По стенам, чтобы спрятать ППР с его набалдашниками, придеться глубоко штробить. Если у Вас есть толщина, то не вопрос, если нет, тогда лучше по полу с подъемами на сантехприборы. Кроме того если будет присутствовать щтробление в наружных стенах минимум изоляции 10 мм, вот и плюсуйте диаметр трубы+ 20 мм+ 25 мм штукатурки (меньше нежелательно). 1 Посилання на коментар Поділитися на інших сайтах More sharing options...
B.S.V. Опубліковано: 2 лютого 2012 Поділитись Опубліковано: 2 лютого 2012 Если для пайки, то лучшая_Акватерм и Баннингер, средняя-Вавин екопластик Вечером придет Андрей Интерсо и скажет, что лучше узкоглазой Блу Оушен нет ничего лучше. 1 Посилання на коментар Поділитися на інших сайтах More sharing options...
Plotnikovvv Опубліковано: 2 лютого 2012 Автор Поділитись Опубліковано: 2 лютого 2012 По стенам, чтобы спрятать ППР с его набалдашниками, придеться глубоко штробить. Если у Вас есть толщина, то не вопрос, если нет, тогда лучше по полу с подъемами на сантехприборы. Кроме того если будет присутствовать щтробление в наружных стенах минимум изоляции 10 мм, вот и плюсуйте диаметр трубы+ 20 мм+ 25 мм штукатурки (меньше нежелательно). Спасибо за советы всем... штрабить не придется... у меня по внешним стенам будет зашиваться ГК а в середине 50мм мин ваты...(там и спрячу трубы)... так что осталось за малым... выбрать трубы, фитинги и батареи... Посилання на коментар Поділитися на інших сайтах More sharing options...
Сергей_84 Опубліковано: 2 лютого 2012 Поділитись Опубліковано: 2 лютого 2012 Спасибо за советы всем... штрабить не придется... у меня по внешним стенам будет зашиваться ГК а в середине 50мм мин ваты...(там и спрячу трубы)... так что осталось за малым... выбрать трубы, фитинги и батареи... не относится к сантехнике, но из чего у Вас стена и не боитесь ли вы точку росы разместить в ней? Посилання на коментар Поділитися на інших сайтах More sharing options...
B.S.V. Опубліковано: 2 лютого 2012 Поділитись Опубліковано: 2 лютого 2012 Закладные под крепеж радиаторов не забудьте. 1 Посилання на коментар Поділитися на інших сайтах More sharing options...
Plotnikovvv Опубліковано: 2 лютого 2012 Автор Поділитись Опубліковано: 2 лютого 2012 не относится к сантехнике, но из чего у Вас стена и не боитесь ли вы точку росы разместить в ней? Пирог стены на рис ниже... Стены из ракушки, боюсь конечно... но выхода особо нет.. если -бы строил сейчас то все сделал по другому... Посилання на коментар Поділитися на інших сайтах More sharing options...
Plotnikovvv Опубліковано: 2 лютого 2012 Автор Поділитись Опубліковано: 2 лютого 2012 Закладные под крепеж радиаторов не забудьте. А как их крепить к ракушке? может у Вас есть опыт ? Посилання на коментар Поділитися на інших сайтах More sharing options...
Рекомендовані повідомлення
Створіть акаунт або увійдіть у нього для коментування
Ви маєте бути користувачем, щоб залишити коментар
Створити акаунт
Зареєструйтеся для отримання акаунта. Це просто!
Зареєструвати акаунтУвійти
Вже зареєстровані? Увійдіть тут.
Увійти зараз