mainfreak Опубліковано: 13 лютого 2012 Поділитись Опубліковано: 13 лютого 2012 Подскажите пожалуйста, как правильно заармировать... 1) колонну 40х40, высота 320. Колонна будет держать ж\б балку (ростверк) тоже наверное 40х40 , его тоже надо армировать- 2) Как армировать этот ростверк? На этом ростверке будет стоять газобетон толщиной 20см (500 марки), стена высотой 2.8м . Колонн 6 шт на периметре 18 метров, шаг 2,5 -3,8м. Перекрытия по лагам - легкое, на крыше сего чуда будет терасса, тоже по лагам, с поликарбонатным навесом. Волнует парусность (если это вообще приемлимо) этой стройки и СТОИМОСТЬ арматуры, её надо как -то поэкономить... Может можно и ростверк с колоннами поменьше в толщине сделать? Хочу в общем крепко и не дорого... Спасибо) Посилання на коментар Поділитися на інших сайтах More sharing options...
wertexan Опубліковано: 13 лютого 2012 Поділитись Опубліковано: 13 лютого 2012 Добавте планы. Без них собрать нагрузки и зделать адекватный рассчет не получится. Посилання на коментар Поділитися на інших сайтах More sharing options...
mainfreak Опубліковано: 13 лютого 2012 Автор Поділитись Опубліковано: 13 лютого 2012 Извените, какие планы? Я не совсем в курсе... Планировку сверху чтоли? Посилання на коментар Поділитися на інших сайтах More sharing options...
wertexan Опубліковано: 13 лютого 2012 Поділитись Опубліковано: 13 лютого 2012 Ага. Поэтажно. Посилання на коментар Поділитися на інших сайтах More sharing options...
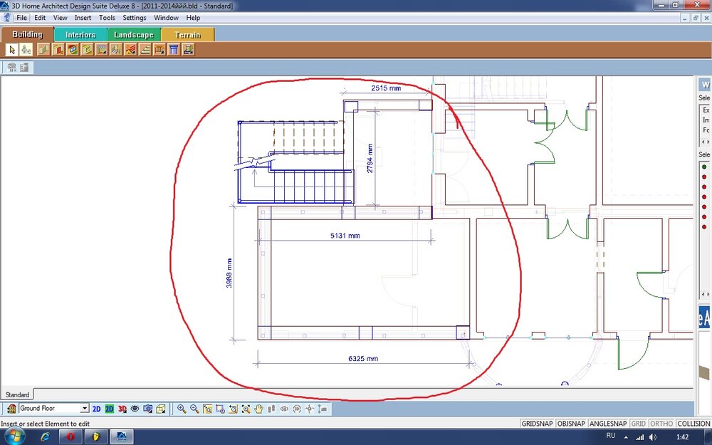
mainfreak Опубліковано: 13 лютого 2012 Автор Поділитись Опубліковано: 13 лютого 2012 Незнаю насколько это поможет, но выглядит как то так... 1 этаж - колонны, на них монолитная лента 2 этаж - та же лента,на ней 20см газобетона То что в красном кругу - будет пристраиваться к дому из ракушки 60х годов, стержни этой ленты буду анкеровать химией к стенам этого дома, прилигающие колонны к дому - так же буду укреплять хим анкерами через арматуру к стенам. Посилання на коментар Поділитися на інших сайтах More sharing options...
mainfreak Опубліковано: 13 лютого 2012 Автор Поділитись Опубліковано: 13 лютого 2012 Нормальных планировок нет, это то что сам нарисовал. Собственно и строить буду всё тоже сам. Я это к тому что никаких квалифицированных расщётов - НЕТ, поэтому к Вам и обращаюсь за помощью.. Так что кто готов помоч - милости просим)) Посилання на коментар Поділитися на інших сайтах More sharing options...
Tarac_ Опубліковано: 14 лютого 2012 Поділитись Опубліковано: 14 лютого 2012 1. Колони завеликі, достатньо 300х300. 2. Балки треба рахувати в залежності від навантажень 3. Для надання жорсткості каркасу потрібно робити монолітні з/б перекриття 4. Під колони потрібно запроектувати відповідні фундаменти 5. Анкерувати колони і існуючі стіни не потрібно 6. Колони Ви в будьякому випадку не зможете виконати так близько біля існуючих стін 7. Чому саме вибрали каркасну схему? ............... Зверніться до конструктора. Зекономите і зробите нормально. 1 Посилання на коментар Поділитися на інших сайтах More sharing options...
mainfreak Опубліковано: 15 лютого 2012 Автор Поділитись Опубліковано: 15 лютого 2012 1 А какие в диаметре и сколько стержней арматуры? 2 Нагрузка на 1 п\м стены с перекрытиями по лагам около 500-800 кг... 3 Очень хочеться легкие перекрытия, можно добавить 1-2 перемычки 4 Фундамент - под каждой колонной 100х100 х700 вглубь, армированный 12 арматурой в три слоя по 5 шт, с выпущеными ф16ми стержнями на 1-1.5м по 4 шт и ф12ми 2 шт. 5 Возможно... 6 Почему? Выполню вплотную к стенам! 7 А какую ещё, если мне нужно то пространство под этим строением? ............. Спасибо, но у меня же есть Вы! ))))) Посилання на коментар Поділитися на інших сайтах More sharing options...
Tarac_ Опубліковано: 16 лютого 2012 Поділитись Опубліковано: 16 лютого 2012 1 А какие в диаметре и сколько стержней арматуры? 2 Нагрузка на 1 п\м стены с перекрытиями по лагам около 500-800 кг... 3 Очень хочеться легкие перекрытия, можно добавить 1-2 перемычки 4 Фундамент - под каждой колонной 100х100 х700 вглубь, армированный 12 арматурой в три слоя по 5 шт, с выпущеными ф16ми стержнями на 1-1.5м по 4 шт и ф12ми 2 шт. 5 Возможно... 6 Почему? Выполню вплотную к стенам! 7 А какую ещё, если мне нужно то пространство под этим строением? ............. Спасибо, но у меня же есть Вы! ))))) 1. Щоб зробити нормально - потрібно рахувати. 2. Це навантаження разом з тимчасовими, чи лише постійні? 3. В каркасній будівлі потрібно забезпечувати горизонтальну та вертикальну жорсткість конструкціїї. 4. Фундамент залежить від грунтів і навантажень. Але, висоти 700мм явно забагато, достатньо 300-500 в залежності від розмірів в плані. 5. Не можливо, а точно. Там повинен бути деформаційний шов. 6. ТКолони ставляться посеред фундамента. Розміри фундаментів у Вас 1000х1000мм, колони 300х300мм. Підкопуватись під існуючі фундаменти недопустимо. Від повідно відстань між колоною і стіною буде як мінімум 400мм. 7. Залежить від того, як воно буде використовуватись і від району будівництва. Ніхто на сайті не несе відповідальності - це лише поради. Відповідно, щоб зробити нормально зверніться до проектної організації. 1 Посилання на коментар Поділитися на інших сайтах More sharing options...
mans_2008 Опубліковано: 16 лютого 2012 Поділитись Опубліковано: 16 лютого 2012 3. Для надання жорсткості каркасу потрібно робити монолітні з/б перекриття Да ростверка сверху вполне достаточно. Посилання на коментар Поділитися на інших сайтах More sharing options...
mans_2008 Опубліковано: 16 лютого 2012 Поділитись Опубліковано: 16 лютого 2012 6. Підкопуватись під існуючі фундаменти недопустимо. Від повідно відстань між колоною і стіною буде як мінімум 400мм. А че минимум именно 400 мм? Лучше вплотную к стене, только и по фундаменту и стене кинуть пенопласта 2 см толщиной чтобы конструкции работали независимо друг от друга. А то если делать как Вы советуете 400 мм. от стены то опалубку ростверка геморней будет выставлять. Посилання на коментар Поділитися на інших сайтах More sharing options...
Tarac_ Опубліковано: 16 лютого 2012 Поділитись Опубліковано: 16 лютого 2012 А че минимум именно 400 мм? Лучше вплотную к стене, только и по фундаменту и стене кинуть пенопласта 2 см толщиной чтобы конструкции работали независимо друг от друга. А то если делать как Вы советуете 400 мм. от стены то опалубку ростверка геморней будет выставлять. Від центру до краю фундамента - 1000/2=500мм(у варіанті ТС) Від центру до краю колони - 300/2=150 Деформаційний шов - 50мм Відповідно 500+50-150=400мм - від створа існуючої стіни(фундаменту) до краю колони. Якось так. Посилання на коментар Поділитися на інших сайтах More sharing options...
Tarac_ Опубліковано: 16 лютого 2012 Поділитись Опубліковано: 16 лютого 2012 Да ростверка сверху вполне достаточно. Ростверків зверху по колонах не буває, це частина фундаментів. 2 Посилання на коментар Поділитися на інших сайтах More sharing options...
TOP-PROJECT Опубліковано: 16 лютого 2012 Поділитись Опубліковано: 16 лютого 2012 Подскажите пожалуйста, как правильно заармировать... 1) колонну 40х40, высота 320. Колонна будет держать ж\б балку (ростверк) тоже наверное 40х40 , его тоже надо армировать- 2) Как армировать этот ростверк? На этом ростверке будет стоять газобетон толщиной 20см (500 марки), стена высотой 2.8м . Колонн 6 шт на периметре 18 метров, шаг 2,5 -3,8м. Перекрытия по лагам - легкое, на крыше сего чуда будет терасса, тоже по лагам, с поликарбонатным навесом. Волнует парусность (если это вообще приемлимо) этой стройки и СТОИМОСТЬ арматуры, её надо как -то поэкономить... Может можно и ростверк с колоннами поменьше в толщине сделать? Хочу в общем крепко и не дорого... Спасибо) Нужно собрать нагрузки и выполнить расчёт. Посилання на коментар Поділитися на інших сайтах More sharing options...
mahno 31 Опубліковано: 16 лютого 2012 Поділитись Опубліковано: 16 лютого 2012 На халяву только уксус сладкий.:D С такими советчиками которые балку називают ростверком так вам и насоветуют. Людиииииииииии зачем беретесь за то чего не понимаете. Это какой то ужас просто. Дам хороший совет не пожалейте денег закажите в проектировщика росчет нагрузок 1 Посилання на коментар Поділитися на інших сайтах More sharing options...
dogkiller Опубліковано: 17 лютого 2012 Поділитись Опубліковано: 17 лютого 2012 (змінено) Подскажите пожалуйста, как правильно заармировать... 1) колонну 40х40, высота 320. Колонна будет держать ж\б балку Я вот мучался с проблемой армирования и изготовления балок и пришел к выводу, что проще и дешевле и с ГАРАНТИРОВАННОЙ прочностью ее изготовить на заводе из металла, муки выбора описаны в моем отчете по стройке, если интересно то почитайте тут там же написаны последствия попытки построиться без проекта.... Змінено 17 лютого 2012 користувачем dogkiller Посилання на коментар Поділитися на інших сайтах More sharing options...
mans_2008 Опубліковано: 17 лютого 2012 Поділитись Опубліковано: 17 лютого 2012 Від центру до краю фундамента - 1000/2=500мм(у варіанті ТС) Від центру до краю колони - 300/2=150 Деформаційний шов - 50мм Відповідно 500+50-150=400мм - від створа існуючої стіни(фундаменту) до краю колони. Якось так. Деф. шов обязательно 50 мм? Исходя из чего? Фундамент обязательно делать 1000х1000 мм, 2000х500 на углу никак? Посилання на коментар Поділитися на інших сайтах More sharing options...
mans_2008 Опубліковано: 17 лютого 2012 Поділитись Опубліковано: 17 лютого 2012 На халяву только уксус сладкий.:D С такими советчиками которые балку називают ростверком так вам и насоветуют. Людиииииииииии зачем беретесь за то чего не понимаете. Это какой то ужас просто. Дам хороший совет не пожалейте денег закажите в проектировщика росчет нагрузок Ростверк (нем. Rostwerk, от Rost — решётка и Werk — строение) — верхняя часть свайного или столбчатого фундамента, распределяющая нагрузку на основание. Ростверк выполняется в виде балок или плит, объединяющих оголовки столбов (свай) и служащих опорной конструкцией для возводимых элементов сооружения. Посилання на коментар Поділитися на інших сайтах More sharing options...
mans_2008 Опубліковано: 17 лютого 2012 Поділитись Опубліковано: 17 лютого 2012 Ростверків зверху по колонах не буває, це частина фундаментів. Согласен, но суть не меняется. Посилання на коментар Поділитися на інших сайтах More sharing options...
Tarac_ Опубліковано: 17 лютого 2012 Поділитись Опубліковано: 17 лютого 2012 Деф. шов обязательно 50 мм? Исходя из чего? Фундамент обязательно делать 1000х1000 мм, 2000х500 на углу никак? 1. 50мм - стандартна ширина деформаційного шва. А Вам скільки треба? 2. Теоретично можна. Збільшивши витрати бетону і арматури разів в 2-3. Причому, а)правильно розробивши схему армування; б) абезпечивши стійкість фундаменту від продавлювання і перекидання. Для того, щоб щось радити, потрібно хоча б знати основи роботи будівельних конструкцій та матеріалів. Посилання на коментар Поділитися на інших сайтах More sharing options...
wertexan Опубліковано: 17 лютого 2012 Поділитись Опубліковано: 17 лютого 2012 Точно зная, что меня сдесь некоторые не поймут, попробую немножко помочь. Условия: — оценочный вес перекрытий 150кг/м². — Эксплуатационные нагрузки: помещения 195кг/м², террасы 195кг/м² (с учетом к-тов). — Вес стен .2*500*2.8*1.1=308кг/м. — Вес легкой конструкций навеса условно не учитываю. — Снег не зная района оцениваю примерно в 170 кг/м². Зная что не вполне правомерно, но допущений и так много. — Бетон В15 арматура А400С. — Колонны внизу шарнир вверху к балкам жестко. Рассчетная длина колонн 3.2м. — Длина балок по чертежам. Допущения: — Предположим, что балки девевянного перекрытия идут на картинке "по вертикали" (осей на "чертеже" нет и иначе я описать не смогу а дорисовывать влом). — Нагрузку от стен, покрытия террасы и снега я условно делаю равномерно распределенной на балки. Знаю, что неправильно. Но деформативность ГБ и стремление посоветовать так чтобы нивелировать ошибки застройщика ИМХО позволяют. Набросал пару рам и вот ПРИМЕРНЫЕ результаты: Колонны 300х300мм. Во всех колоннах моменты небольшие и будет достаточно 4Ø12А400С и поперечки Ø6А240С с шагом 300мм. Рассчетная длина 3.2м внизу условно шарнир. Балки 300х400(высота): Двухпролетная с суммарным размером 6325мм. Вверху насковозь либо 2Ø12А400С либо 3Ø10А400с. Внизу 2Ø10А400с. Поперечка Ø6А240с 1/3 пролета у опор шаг 150мм в центре пролета шаг 250мм. Схема армирования УПРОЩЕНА. Балка 3988мм. Внизу 2Ø10А400С вверху либо тоже либо чуть слабее — из условий жескости рамы. Можно вверху 2Ø8А240С. Поперечная как в предыдущем. Двухпролетная 5131мм. Вверху 2Ø12А400С. Внизу 2Ø10А400с. Поперечная как в предыдущем. Балка 2794мм. Там мало. Берите как в 3988м. Балка 2515. Внизу 2Ø10А400с. Верху 2Ø8А240С. Поперечка как везде. Арматуру колон выводить вверх до верха балок, загинать и связывать с арматурой балок. Для жескости. Все армирование рассчитано, как достаточное, но его увеличению противиться не буду. Уменьшать не рекомендую. Фундамент без геологии считать глупо. Только скажу, что нужно делать не под каждую колонну отдельно а ЛЕНТОчнЫЙ. В сечении в виде перевернутой буквы Т или в виде бруска с продольной арматурой вверху и внизу. Чтоб минимизировать деформации и уменьшить риск трещин в стенах. ГБ над балками НАД ОПОРАМИ обязательно армировать. Не в середине пролета а над опорами и на 1/4 пролета у опор. Почему — долго рассказывать. Зная отношение многих форумчан к подобным советам, добавлю что я за полноценный проект, который лучше начинать с геологии и архитектуры. Есть замечания? Сделайте лучше. Все вышенаписанное — ИМХО! 1 Посилання на коментар Поділитися на інших сайтах More sharing options...
Alexander Pryakha Опубліковано: 18 лютого 2012 Поділитись Опубліковано: 18 лютого 2012 — Бетон В15 арматура А400С. Всегда использую вместо арматуры А400С, Rs - 365 (3750)МПа (кгс/см2) Ар-руА500С Rs - 450 (4600) МПа (кгс/см2) другая арматура (А400) на стройплощадки Киева практически не поставляется. Причем если конструктор применяет арматуру А400, вместо А500, то возникает вопрос - для чего это делать?. Прочность отличается на 22%, стоимость ар-ры одинаковая. Заказчику невыгодно применять А400. Обычно если вижу проект с арматурой А400, прошу конструктора, чтобы он переделал чертежи на арматуру А500, поменял диаметры, анкеровку, спецификации. На большом объекте - разница в деньгах существенная. Посилання на коментар Поділитися на інших сайтах More sharing options...
wertexan Опубліковано: 18 лютого 2012 Поділитись Опубліковано: 18 лютого 2012 Всегда использую вместо арматуры А400С, Rs - 365 (3750)МПа (кгс/см2) Ар-руА500С Rs - 450 (4600) МПа (кгс/см2) В ряде случаев использование А500С вместо А400С просто невыгодно. Так как у А500С модуль упругости ниже, по в конструкциях работающих на сжатие без значительного момента она не нужна а уж тем более при рассчете по второй группе ГС она легко можнт потребовать значительно большей площади, чем А400С. А в данном случае лучше я напишу А400С а топикпастер возмет А500С и получит запас прочности. При таких примерных исходных данных вы думаете мои рассчеты дадут точную картинку? Как бы не так! Но какой вопрос такой и ответ. Если хочет делать сам, то и риски его. 1 Посилання на коментар Поділитися на інших сайтах More sharing options...
mainfreak Опубліковано: 20 лютого 2012 Автор Поділитись Опубліковано: 20 лютого 2012 Во первых спасибо всем за подержание моей темы. Кое какая картина уже вырисовываеться, но несколько вопросов всё же есть. Если кому не сложно объясните чем играющая конструкция правильней жесткой? Я про то место где колонна прилегает к стене дома... Мне кажеться что если между стеной и колонной будет деформ.шов, то возведенная на них общая стена скорее даст трещену чем в том случае если и стена и колонна будут одним целым.. Я точно не прав? Я ещё тут не сказал что верхняя плоскость росверка будет совподать с верхней плоскостью старой стены, то есть ростверк на неё ложиться не будет, а будет просто прилегать к ней будучи заанкерёным. Второй вопрос заключаеться в армировании ростверка, и скорее адресован к уважаемому Wertexan.. Разве максимальная нагрузка в "провисающем" варианте ж\б конструкции приходиться на верхнею её часть? Арматура же играет роль продольной устойчивости и когда она начнет рваться или лопаться, то это начнёт происходить в том месте где будет её максимальное натяжение, а это как раз нижняя часть... А у нас выходит что верх заармирован сильнее чем низ. Поправте пожалуйста, если ошибаюсь. А армирование колонн... Я то понял что арматуры можно и больше, но 4 шт Ø12 это серьёзно может работать? Да, колонна работает в основном на сжатие, а бетон тут как раз делает свое дело, но всё же есть и другие силы, ветровые нагрузки например... Вот один товарищ с другого форума написал так - "mainfreak, мы недавно строили монолитное здание, там колонны были сечением 400 х 400 мм и 400 х 600 мм, а армировались на первом этаже 6 стержней диаметром 20 мм, на втором 6 шт. д. 18 мм, и на третьем 6 шт. д 16 мм. Поперечные стержни из проволоки диаметром 6 мм." Это конечно похоже на крайность, помоему слишком уж мощно, но и в 4 шт из 12арматуры мне тоже не вериться... Я понимаю что Вам, Wertexan, всё равно - вериться мне или нет, это в конце концов мне надо, а не Вам... В любом случае спасибо за рекомендации, но у меня вопрос - Вы видели колонны с таким армированием? Посилання на коментар Поділитися на інших сайтах More sharing options...
wertexan Опубліковано: 20 лютого 2012 Поділитись Опубліковано: 20 лютого 2012 Если кому не сложно объясните чем играющая конструкция правильней жесткой? Я про то место где колонна прилегает к стене дома... Мне кажеться что если между стеной и колонной будет деформ.шов, то возведенная на них общая стена скорее даст трещену чем в том случае если и стена и колонна будут одним целым.. Я точно не прав? Вообще прав, но в общем случае новый фундамент и новаяччасть соответственно дадут осадку. Грунт под ними сожмется. И почти наверняка никакое крепление новой части к старой не поможет. Будет трещина на всю высоту здания. Потому правильнее будет делать дефшов до самой крыши — она деформативнее и ее не "поколбасит" так. Второй вопрос заключаеться в армировании ростверка, и скорее адресован к уважаемому Wertexan.. Разве максимальная нагрузка в "провисающем" варианте ж\б конструкции приходиться на верхнею её часть? Арматура же играет роль продольной устойчивости и когда она начнет рваться или лопаться, то это начнёт происходить в том месте где будет её максимальное натяжение, а это как раз нижняя часть... А у нас выходит что верх заармирован сильнее чем низ. Поправте пожалуйста, если ошибаюсь. Смотрите внимательнее. Более толстая а-ра вверху в двухпролетных балках. Там момент на средней опоре вылазит вверх и над средней опорой нужна а-ра злее пролетной внизу. Основы сопромата вам в помощь. Всмысле для понимания принципов работы конструкций а не рассчета железобетона. Но вычерчивать схемы армирования с обрыванием толстой а-ры вверху и переходом на более тонкую, считать длины анкеовки и т.д. мне лениво. Извините. Потому я написал, что на всю длину в двухпролетных более толстая а-ра вверху. Если что, то по деньгам выйдет копейки. А армирование колонн... Я то понял что арматуры можно и больше, но 4 шт Ø12 это серьёзно может работать? Да, колонна работает в основном на сжатие, а бетон тут как раз делает свое дело, но всё же есть и другие силы, ветровые нагрузки например... Вот один товарищ с другого форума написал так - "mainfreak, мы недавно строили монолитное здание, там колонны были сечением 400 х 400 мм и 400 х 600 мм, а армировались на первом этаже 6 стержней диаметром 20 мм, на втором 6 шт. д. 18 мм, и на третьем 6 шт. д 16 мм. Поперечные стержни из проволоки диаметром 6 мм." Это конечно похоже на крайность, помоему слишком уж мощно, но и в 4 шт из 12арматуры мне тоже не вериться... Я понимаю что Вам, Wertexan, всё равно - вериться мне или нет, это в конце концов мне надо, а не Вам... В любом случае спасибо за рекомендации, но у меня вопрос - Вы видели колонны с таким армированием? Ветер для вашего здания посто несущественен. Гораздо злее моменты при общей работе рамы. А колонны я видел с армированием и 10мм. Правда сам не лил. В любом случае для успокоения можете брать и большего диаметра. Например если взять Ø14 то прирост по площади будет примерно 36% от Ø12. По цене тоже не сильно дорого. Решать вам. Кое-что из вышенаписанного — ИМХО! Посилання на коментар Поділитися на інших сайтах More sharing options...
Рекомендовані повідомлення
Створіть акаунт або увійдіть у нього для коментування
Ви маєте бути користувачем, щоб залишити коментар
Створити акаунт
Зареєструйтеся для отримання акаунта. Це просто!
Зареєструвати акаунтУвійти
Вже зареєстровані? Увійдіть тут.
Увійти зараз