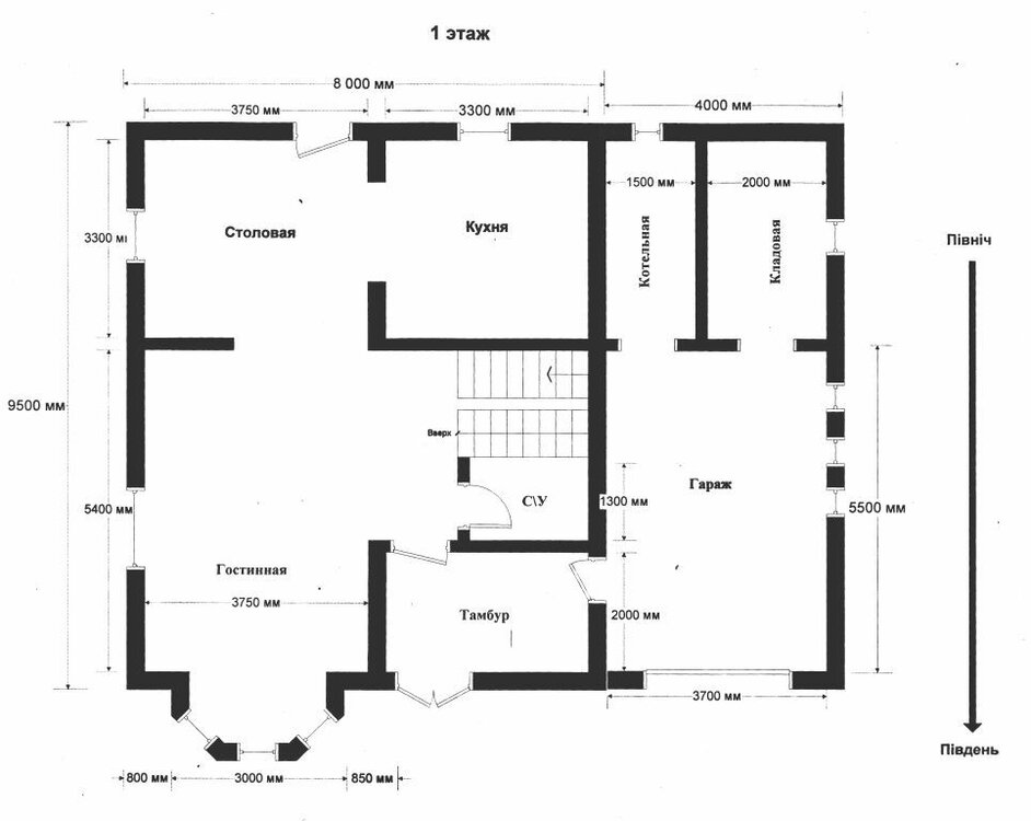
BukaKiev Опубліковано: 17 лютого 2012 Поділитись Опубліковано: 17 лютого 2012 Добрый день всем! Вот последние наброски плана. Жду критики! Посилання на коментар Поділитися на інших сайтах More sharing options...
Artyomovets Опубліковано: 17 лютого 2012 Поділитись Опубліковано: 17 лютого 2012 стены второго этажа не совпадают с первым. и внутренняя несущая на первом - где? Посилання на коментар Поділитися на інших сайтах More sharing options...
Archist Опубліковано: 17 лютого 2012 Поділитись Опубліковано: 17 лютого 2012 стены второго этажа не совпадают с первым. и внутренняя несущая на первом - где? Да не, автор условно показал и стены и пергородки одной толщиной. Дальще с этим разбираться проектантам. Меня больше насторожило заявление автора что это последние наброски плана... Откуда такой пессимизм? ;) 1 Посилання на коментар Поділитися на інших сайтах More sharing options...
Artyomovets Опубліковано: 17 лютого 2012 Поділитись Опубліковано: 17 лютого 2012 Да не, автор условно показал и стены и пергородки одной толщиной. Дальще с этим разбираться проектантам. так они одна на другую просто не пляшут... иначе там размеры помещений пойдут восвояси... Посилання на коментар Поділитися на інших сайтах More sharing options...
BukaKiev Опубліковано: 17 лютого 2012 Автор Поділитись Опубліковано: 17 лютого 2012 Дом планируется строить из газобетона 300мм плюс утеплитель 100 мм, перекрытие монолитная плита. Несущие стены - кухня и левая сторона тамбура. На втором этаже не совпадает только одна стена в ванную комнату, просто нужно как-то уменьшить площадь ванны. Посилання на коментар Поділитися на інших сайтах More sharing options...
Artyomovets Опубліковано: 17 лютого 2012 Поділитись Опубліковано: 17 лютого 2012 Дом планируется строить из газобетона 300мм плюс утеплитель 100 мм у меня дежа вю... но сейчас опять начнется холивар кладовок и гардеробных вы принципиально не хотите? та, которая за гаражом - крайне функциональная... сходи за консервой, сходи за макаронами... Посилання на коментар Поділитися на інших сайтах More sharing options...
BukaKiev Опубліковано: 17 лютого 2012 Автор Поділитись Опубліковано: 17 лютого 2012 Гардеробная - В тамбуре шкаф-купе, на втором этаже в большой комнате от ванны тоже большой шкаф купе. Не могу понять зачем кладовая если гараж пристроен к дому? и еще планируется под кладовой яму-погреб для овощей. Посилання на коментар Поділитися на інших сайтах More sharing options...
dklimock Опубліковано: 17 лютого 2012 Поділитись Опубліковано: 17 лютого 2012 Добрый день всем! Вот последние наброски плана. Жду критики! интересно посмотреть, как будет выглядеть фасад. особенно та часть, где балкон над эркером. жаль, что окно стпальни, ванны и кухни выходит на север. при установки ТТ котла котельная узкая, не хватит для доступа для обслуживания. Посилання на коментар Поділитися на інших сайтах More sharing options...
seyvalter Опубліковано: 17 лютого 2012 Поділитись Опубліковано: 17 лютого 2012 Я б сан.вузол і сходи поміняв місцями, щоб він опинився через стіну від кухні - спростить життя з комунікаціями і всі вент.канали зійдуться в один блок (з кухні, сан.вузла, гаража і топочної) Посилання на коментар Поділитися на інших сайтах More sharing options...
BukaKiev Опубліковано: 17 лютого 2012 Автор Поділитись Опубліковано: 17 лютого 2012 Вот фото планируемого фасада Посилання на коментар Поділитися на інших сайтах More sharing options...
BukaKiev Опубліковано: 17 лютого 2012 Автор Поділитись Опубліковано: 17 лютого 2012 Если лестницу и санузел поменять местами на первом этаже то нужно будет поменять ванную и игровую местами на втором этаже. В таком случае ванна буде с выходом на балкон - как-то вроде-бы не правильно. А на счет вентканалов вы правы!!!!!!!!!!!!!!! Спасибо! Посилання на коментар Поділитися на інших сайтах More sharing options...
Archist Опубліковано: 17 лютого 2012 Поділитись Опубліковано: 17 лютого 2012 Нормальный гараж должен быть 6х4 м. Это если не проходной. (информация к размышлению) 1 Посилання на коментар Поділитися на інших сайтах More sharing options...
BukaKiev Опубліковано: 17 лютого 2012 Автор Поділитись Опубліковано: 17 лютого 2012 Можно и 6х4, можно и на 2 машины - но все упирается в финансы. Посилання на коментар Поділитися на інших сайтах More sharing options...
Alisa3 Опубліковано: 17 лютого 2012 Поділитись Опубліковано: 17 лютого 2012 Приятно, что помогла вам. Так значительно лучше. Зря не оставили проём на кухню возле лестницы - со временем надоест делать постоянный круг через столовую. Особенно когда спуститесь со второго этажа попить водички или с тяжёлыми сумками будете спешить к холодильнику или за пивком к нему же с улицы забежите... А вот маленькая дверца из кухни в котельную - просто необходима! Через неё вы те же сумки из машины сразу на кухню занесёте и в коморку за баночкой огурцов быстро сходите. Но это моё мнение. А дальше работа архитектора Удачи! 2 Посилання на коментар Поділитися на інших сайтах More sharing options...
BukaKiev Опубліковано: 19 лютого 2012 Автор Поділитись Опубліковано: 19 лютого 2012 Всем спасибо за комментарии, я так понимаю план у меня остается без критики - все ОК? Посилання на коментар Поділитися на інших сайтах More sharing options...
Рекомендовані повідомлення
Створіть акаунт або увійдіть у нього для коментування
Ви маєте бути користувачем, щоб залишити коментар
Створити акаунт
Зареєструйтеся для отримання акаунта. Це просто!
Зареєструвати акаунтУвійти
Вже зареєстровані? Увійдіть тут.
Увійти зараз