Lipton Опубліковано: 24 серпня 2008 Поділитись Опубліковано: 24 серпня 2008 Скажите пожалуйста ,кто нибудь делал септик своими руками-поделитесь опытом или дайте совет как правильно его сделать ! Посилання на коментар Поділитися на інших сайтах More sharing options...
Chiara Опубліковано: 24 серпня 2008 Поділитись Опубліковано: 24 серпня 2008 я видела на ИВД.ру целую ветку на много стр, но что-то поиск там глючит, а пересмотреть все стр в их форуме Строим дом не могу, если никто не ответит, поищите там Посилання на коментар Поділитися на інших сайтах More sharing options...
DenverAF Опубліковано: 24 серпня 2008 Поділитись Опубліковано: 24 серпня 2008 Вот тут есть целая серия статей как раз на эту тему: www.aquart-info.ru/index.php?option=com_autherarticle&task=viewauthst&ids=374&idc=88888915&cba=31&Itemid=99999999 Посилання на коментар Поділитися на інших сайтах More sharing options...
RUL Опубліковано: 29 серпня 2008 Поділитись Опубліковано: 29 серпня 2008 ИгорьЛонг делал, читай. Где то была отдельная ветка. На пару топиков ниже, вот: www.stroimdom.com.ua/forum/showthread.php?t=2576 Посилання на коментар Поділитися на інших сайтах More sharing options...
Антип Опубліковано: 1 вересня 2008 Поділитись Опубліковано: 1 вересня 2008 Скажите пожалуйста ,кто нибудь делал септик своими руками-поделитесь опытом или дайте совет как правильно его сделать ! Только не смейтесь. Из автопокрышек от грузовиков в песчаном грунте. Посилання на коментар Поділитися на інших сайтах More sharing options...
trik Опубліковано: 2 вересня 2008 Поділитись Опубліковано: 2 вересня 2008 автопокрышек от грузовиков в песчаном грунте. Ооо! Нестандартный подход. Можно поподробнее и желательно фотке. Кстати, может подскажете где можно нашару набрать таких покрышек грузовиковских размером поболее? Посилання на коментар Поділитися на інших сайтах More sharing options...
annette Опубліковано: 2 вересня 2008 Поділитись Опубліковано: 2 вересня 2008 Я делала Из еврокубов. Описание - тут www.stroimdom.com.ua/forum/showpost.php?p=134544&postcount=67 Посилання на коментар Поділитися на інших сайтах More sharing options...
Антип Опубліковано: 2 вересня 2008 Поділитись Опубліковано: 2 вересня 2008 Ооо! Нестандартный подход. Можно поподробнее и желательно фотке. Кстати, может подскажете где можно нашару набрать таких покрышек грузовиковских размером поболее? Это самый стандартный подход.Два калодца из скатов.В первом отстой и перелив во второй. Второй я отсыпал щебнем по контуру для фильтрации воды которая свободно растекается по грунту через зазоры между шинами. А первый всеже раз в два года откачиваем. Так я даже не знаю у кого из знакомых септики не из шин. Посилання на коментар Поділитися на інших сайтах More sharing options...
AНДРЮША Опубліковано: 5 вересня 2008 Поділитись Опубліковано: 5 вересня 2008 Делают и у нас из шин. Но я делал так: был у меня старый туалет с выгребной ямой, так я в него завел трубу канализации 110мм - получилась яма для твердых отходов. Рядом вырыл еще яму, думал тоже из скатов,но их под рукой не было,а было две бочки металлические крашенные.Я вырезал дно, поставил одну на другую, засыпал щебнем наполовину для фильтрации,соединил обе ямы трубой 50мм. Старую кабину туалетную не убирал, а пользуюсь уличным туалетом,когда работаю на участке,очень удобно - грязь не несется в дом. Посилання на коментар Поділитися на інших сайтах More sharing options...
Антип Опубліковано: 5 вересня 2008 Поділитись Опубліковано: 5 вересня 2008 Делают и у нас из шин. Но я делал так: был у меня старый туалет с выгребной ямой, так я в него завел трубу канализации 110мм - получилась яма для твердых отходов. Рядом вырыл еще яму, думал тоже из скатов,но их под рукой не было,а было две бочки металлические крашенные.Я вырезал дно, поставил одну на другую, засыпал щебнем наполовину для фильтрации,соединил обе ямы трубой 50мм. Старую кабину туалетную не убирал, а пользуюсь уличным туалетом,когда работаю на участке,очень удобно - грязь не несется в дом. Теще та кже делал аж два . Ванна и кухня в разных углах дома, бочки проперфорировал и покрыл горячим битумом. Уже лет12 и не откачивали уже 3 года. Все уходит в песок.Туалет на улице есть (нормальный) , от туалета в доме отдельный септик. Короче весь участок в септиках.Дом большой на две семьи. Септики замаскированы клумбами с цветами. Посилання на коментар Поділитися на інших сайтах More sharing options...
lonjin Опубліковано: 5 вересня 2008 Поділитись Опубліковано: 5 вересня 2008 Это не септики. Это выгребные ямы. Посилання на коментар Поділитися на інших сайтах More sharing options...
Антип Опубліковано: 5 вересня 2008 Поділитись Опубліковано: 5 вересня 2008 (змінено) Это не септики. Это выгребные ямы. По две бочки с переливом-наверное...Но сепарирует воду в песок. Змінено 5 вересня 2008 користувачем Антип Посилання на коментар Поділитися на інших сайтах More sharing options...
Diver Опубліковано: 7 вересня 2008 Поділитись Опубліковано: 7 вересня 2008 а куда потом эта вода идет?..... Посилання на коментар Поділитися на інших сайтах More sharing options...
Антип Опубліковано: 8 вересня 2008 Поділитись Опубліковано: 8 вересня 2008 (змінено) а куда потом эта вода идет?..... Во вторых бочках уровень никогда не держиться, Через перфорации в стенках и щебневую засыпку растекаеться в песок.Никто и не задумывался об очистке воды и повторном ее использовании. Ну чем хуже класических. Конечно элемент везения- песок, расматриваем как частный случай. На других грунтах-прислушивайтесь к мнению экспертов и специалистов Змінено 8 вересня 2008 користувачем Антип Посилання на коментар Поділитися на інших сайтах More sharing options...
Yuri_Ivanchenko Опубліковано: 23 жовтня 2008 Поділитись Опубліковано: 23 жовтня 2008 Это не септики. Это выгребные ямы. +1 это называется "писяем и какаем под себя" ... зато дёшево... вот чё надо душе савецкой шобы порадоваться.... ekoline.kiev.ua/ вот это септики, а всё остальное это, извините, просто дырявая выгребная яма... Посилання на коментар Поділитися на інших сайтах More sharing options...
Мария Кле Опубліковано: 5 листопада 2008 Поділитись Опубліковано: 5 листопада 2008 а мы сделали 2 ямы по 3 кольца (1,5 м диаметр), швы замазаны раствором, между собой соединены трубкой, дно бетонированное, и люки для откачки.. надеюсь, что это септик )) Посилання на коментар Поділитися на інших сайтах More sharing options...
Юлия@@@ Опубліковано: 6 серпня 2009 Поділитись Опубліковано: 6 серпня 2009 Это самый стандартный подход.Два калодца из скатов.В первом отстой и перелив во второй. Второй я отсыпал щебнем по контуру для фильтрации воды которая свободно растекается по грунту через зазоры между шинами. А первый всеже раз в два года откачиваем. Так я даже не знаю у кого из знакомых септики не из шин. аналогично и мы использовали этот метод Посилання на коментар Поділитися на інших сайтах More sharing options...
Svetlana76 Опубліковано: 6 серпня 2009 Поділитись Опубліковано: 6 серпня 2009 Трактором выкопали яму шириной на 2 1,5м.кольца(копка 10 грн./куб). На дно - около 50 см. щебня. Монтировали 2 столбика по 3 кольца + крышка. Сверху будут оголовки из кирпича под люки в уровень с землей. Чуть выше средины будет перелив, а под крышкой - соединяющая труба вентиляции. Планируется цементирование 1й ямы несмотря на уговоры спецов не делать этого. Все в процессе. На данный момент потрачено 6615 грн. (копка, щебень, подчистка ямы и засыпка щебня, растягивание лишней земли и песка по фасаду участка, кольца, доставка, кран, монтаж) Посилання на коментар Поділитися на інших сайтах More sharing options...
duk Опубліковано: 7 серпня 2009 Поділитись Опубліковано: 7 серпня 2009 (ссылка устарела) и это почитайте (ссылка устарела) и еще (ссылка устарела) и вот (ссылка устарела) удачи Вот только не совсем пойму с подачей воздуха в септик...одни пишут надо другие нет....Проект системы отвода фикально-сточных вод .doc 3 Посилання на коментар Поділитися на інших сайтах More sharing options...
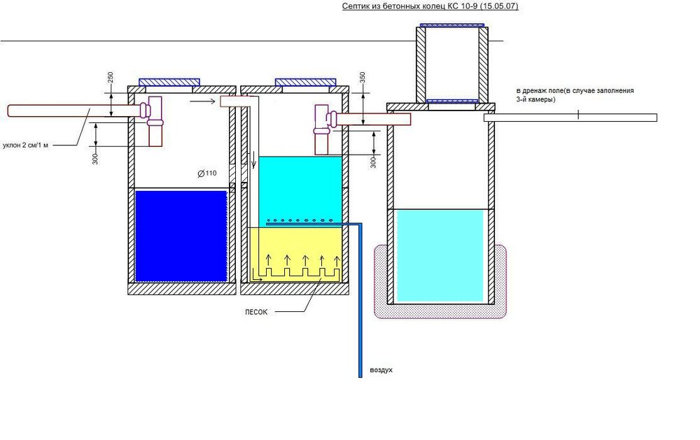
duk Опубліковано: 7 серпня 2009 Поділитись Опубліковано: 7 серпня 2009 Я вот думаю сделать вот такого плана: "вода" из первой камеры через песок попадает во вторую камеру, далее воздух и в 3-ю камеру... С 3-й камеры воду используем на полив...Если 3-я камера заполнилась(не поливаю) тогда вода идет в дренажное поле Песок можно будет заменять, скажем несколько раз в год. Давайте, помогите подумать над этим типом септика. 2 Посилання на коментар Поділитися на інших сайтах More sharing options...
Breathe Опубліковано: 7 серпня 2009 Поділитись Опубліковано: 7 серпня 2009 Творение наших с женой рук: www.radikal.ru/USERS/helgash/stroyka?pg=3 Посилання на коментар Поділитися на інших сайтах More sharing options...
duk Опубліковано: 7 серпня 2009 Поділитись Опубліковано: 7 серпня 2009 а за чем так много камер? Посилання на коментар Поділитися на інших сайтах More sharing options...
Breathe Опубліковано: 7 серпня 2009 Поділитись Опубліковано: 7 серпня 2009 4 камеры 2 длинных и одна коротенькая под септик Вторая из коротких, к ней проложенную длинную трубу можно увидеть, под ливневку. Из нее на полив воду буду сливать. Еще под фильтрационное поле есть яма, но ее еще не засыпали, т.к. руки не дошли и техника не подъедет пока не зароем траншею.. Размер первой ямы 3.5*3*2.5, второй (поле) 5*4*3.5. Посилання на коментар Поділитися на інших сайтах More sharing options...
Алекс Опубліковано: 7 серпня 2009 Поділитись Опубліковано: 7 серпня 2009 Я вот думаю сделать вот такого плана: "вода" из первой камеры через песок попадает во вторую камеру, далее воздух и в 3-ю камеру... С 3-й камеры воду используем на полив...Если 3-я камера заполнилась(не поливаю) тогда вода идет в дренажное поле Песок можно будет заменять, скажем несколько раз в год. Давайте, помогите подумать над этим типом септика. -А хотите по настоящему потрахаться?-спросила Фея -Да, да, конечно... ...и тогда у танка отвалилась башня... Какие-то компрессоры, форсунки дорогущие, выгребание песка вонючего два раза в год (ВРУЧНУЮ), с предыдущей откачкой жидкости над песком (ЧЕМ?-это будет взвесь)...Неужели Вы настолько цените свои отходы жизнедеятельности, что готовы ТАКОЕ городить, чтобы ИМ было приятно? Или Вы хотите нас удивить широтой инженерной мысли? Что это за система, преодолевшая всемирное тяготение? Как у Вас жидкость вверх пойдет? Насосом? Сделайте обычный септик, фильтрующий колодец и емкость для сбора воды с насосом-если уж так собирать ее хотите 1 Посилання на коментар Поділитися на інших сайтах More sharing options...
duk Опубліковано: 7 серпня 2009 Поділитись Опубліковано: 7 серпня 2009 -А хотите по настоящему потрахаться?-спросила Фея -Да, да, конечно... ...и тогда у танка отвалилась башня... Какие-то компрессоры, форсунки дорогущие, выгребание песка вонючего два раза в год (ВРУЧНУЮ), с предыдущей откачкой жидкости над песком (ЧЕМ?-это будет взвесь)...Неужели Вы настолько цените свои отходы жизнедеятельности, что готовы ТАКОЕ городить, чтобы ИМ было приятно? Или Вы хотите нас удивить широтой инженерной мысли? Что это за система, преодолевшая всемирное тяготение? Как у Вас жидкость вверх пойдет? Насосом? Сделайте обычный септик, фильтрующий колодец и емкость для сбора воды с насосом-если уж так собирать ее хотите Но тогда крупные касти из 1-й камеры будут попадать во вторую, а там по мере заполнения в 3-ю? Правильно? Посилання на коментар Поділитися на інших сайтах More sharing options...
Рекомендовані повідомлення
Створіть акаунт або увійдіть у нього для коментування
Ви маєте бути користувачем, щоб залишити коментар
Створити акаунт
Зареєструйтеся для отримання акаунта. Це просто!
Зареєструвати акаунтУвійти
Вже зареєстровані? Увійдіть тут.
Увійти зараз