Перейти до публікації
Пошук в
  • Додатково...
Шукати результати, які містять...
Шукати результати в...

Нужен совет архитектора и конструктора

DIAMONDX

Рекомендовані повідомлення

На форуме много практикующих инженеров и архитекторов и прорабов - может кто даст толковый совет по фундаменту и перекрытиям:drinks:

 

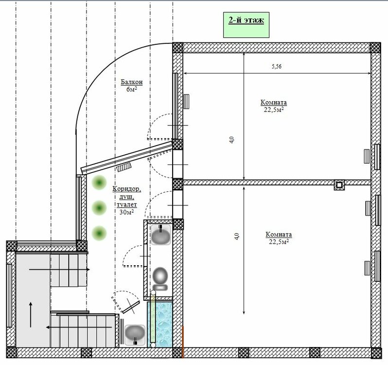
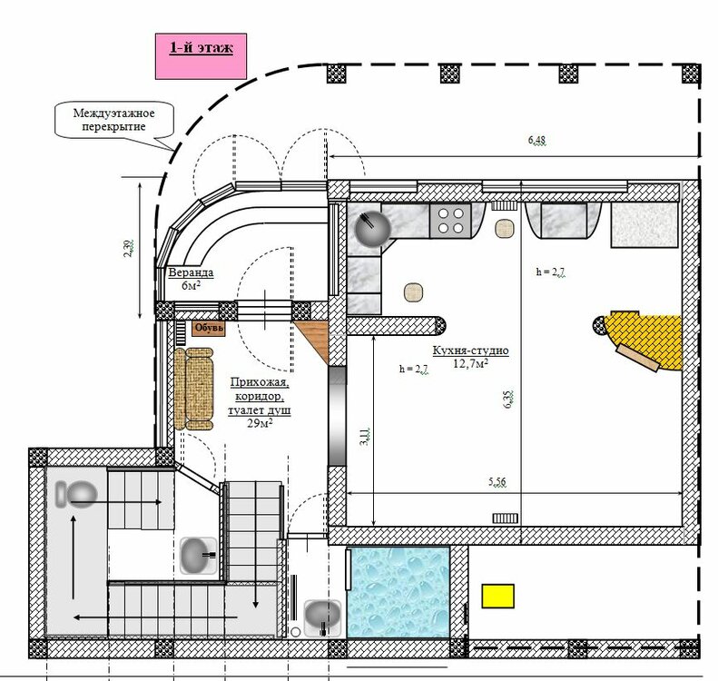
Досталась мне двухэтажная дача 2000-го года постройки расположенная в углу почти квадратного участка в Киевской области.

 

По показаниям соседей, фундамент и первый этаж делала одна бригада, а второй и крышу - другая... алко-бригада :smile:.

 

Грунт: чернозем 0..0.5м, суглинок желтый 0.5..2.5м, песок р/зернистый желтый слабоглинистый 2.5 - 18. Грунтовые воды низкие.

 

Фундамент: неизвестного происхождения. Бывший хозяин говорил про битый кирпич и монолитную ленту глубиной в 1м и шириной 40-50см. Глубина промерзания по области 0.9м.

 

Первый этаж: кладка в полтора кирпича, высота потолков 2.57 (хотелось бы 2.70). В целом, сделан добротно.

 

Второй этаж: сделан мансардой в один кирпич. Соответсвенно, холодный и на стенах образовались трещины из-за отсутсвия армопояса. Также нет доверия к перекрытию второго этажа - все играет, когда ходишь.

 

Крыша: двухскатная, холодная (рубероид, клеенка, тонкий слой мин ваты).

 

В общем, появилось желание демонтировать крышу, стены второго этажа, перекрытие второго этажа, стянуть стены первого армопоясом и положить сверху монолитное ж.б. перекрытие. Дальше погнать газоблоком второй этаж. Снова армопояс, чердачное перекрытия и двухскатная крыша с фронтонами из газоблока и поставить 42 метра забора из профнастила высотой 2.50).

 

Размеры дачи - 6,5м на 6,5м так, что сразу было принято решение делать пристройку. Если делать пристройку с одной стороны - становится вопрос увязывать / не увязывать фундаменты. Если увязывать то как - главное что бы не повело потом ничего. Анкерами, или может химия какая то? Арматуры 12-ки у меня около тонны завалялось :smile:

 

Думали-гадали и что бы лучше представлялось смоделировали дом в 3d и сделали поэтажные планы. Рисунки и схемы прилагаются (есть / надо).

 

После нескольких месяцев осознания хотелок и возможностей пришли к тому, что пристройка может примыкать с одной стороны, или опоясывать старый дом - вынос 1,5 - 2 метра на сваях с ростверком. Между новым и старым фундаментом - деформационный шов. Вот думаем сейчас, может перекрытие первого этажа залить сплошным (без деформационного шва), поскольку фундамент окружает старый и нагрузки распределятся равномерно?

 

Посоветуйте как лучше сделать и что нужно учесть, что бы потом не было обидно за потраченные деньги и время.

 

Может кто поможет грамотно расчитать нагрузки, количество арматуры, размеры поясов, перекрытий, свай и их пяток. Разумеется за вознаграждение :drinks:

 

Прошу помощи в ответе на на такие вопросы:

 

1) Увязывать фундаменты и / или перекрытия?

2) Если увязывать то как (хим анкера и ли сверлить дырки в старом фундаменте и лить сплошные перекрытия)?

3) Если не увязывать то как правильно сделать деформационный шов (толщина / заполнитель)?

4) Каким должно быть сечение столба и сколько в нем арматуры?

5) Какая должна быть пятка под столбами / лентой?

6) Закладывать новый фундамент на уровень старого (1м) или ниже?

5) Какая толщина балок / перекрытий и сколько в них арматуры?

6) Армировать газоблок каждый четвертый ряд?

7) Какая по вашему оптимальная цена на:

землеустроительные работы за куб,

установку опалубки за метр к.в.,

вязку арматуры за тонну,

прием бетона с миксера / замес в бетономешалке за куб,

кладку газоблока за куб,

монтаж профнастила за метр к.в.

 

 

Большое человеческое спасибо за интерес к теме!

1.jpg.fa6d8509ec21dc6f1005746458f63689.jpg

2.jpg.efd2a85ba68a097f7bb57d5a7d7b327a.jpg

3.jpg.e91907cea95c9ba88dbe58e7b0de5151.jpg

4.jpg.4583f6df48b47a7749efabea25d73d41.jpg

5.jpg.31033966dd071a6e302bb2ec48229aa4.jpg

6.jpg.4b210071b2e742485371e4373b963a41.jpg

7.jpg.99387d4824273db4b12db6ff7daf9ed8.jpg

8.thumb.JPG.e95988c3ba1c7f389665bf7586ac57cf.JPG

9.JPG.df9aaded7c5b97d966ab61d0e3e386a9.JPG

10.JPG.b0b86b787bb0b417bcb03fd32e76374a.JPG

11.JPG.aa50f06e3457df951eb0e51c8e4e6ada.JPG

12.thumb.JPG.f4cec776badb5a0e7e794b574466a066.JPG

13.thumb.JPG.f91a4692cdfa423c4b60aeb972ac42e6.JPG

Змінено користувачем DIAMONDX
Посилання на коментар
Поділитися на інших сайтах

С таким количеством вопросов, Вам необходимо обращаться к архитектору&конструктору за помощью по изготовлению Проекта Реконструкции.

 

Однозначных ответов сейчас выдать нереально, надо делать освидетельствование и исследование строения, обкапывать по периметру здание до глубины залегания фундаментов и только после этого понимать что со всем этим делать и какие технологии применять...

имхо

  • Лайк 1
Посилання на коментар
Поділитися на інших сайтах

Согласен с предыдущим оратором. Без полноценного технического заключения (это такой вид обследования существ. зданий, которое выполняется лицензированной организацией) тут сложно и бесполезно что-либо советовать.

Может так случиться, что в результате обследования будет вынесено решение о необходимости усиления существующих фундаментов, или о предельной возможной высоте здания и т. п.

Меня сразу насторожила ширина фундаментной ленты (40-50 см при толщине стены 38 см).

При любом исходе обследований, я бы рекомендовал делать пристройку на собственном фундаменте и стены отрезать от существующих осадочным швом.

  • Лайк 1
Посилання на коментар
Поділитися на інших сайтах

Да в общем-то уже все сказали. Что делать вы соображаете, получше чем другие, поэтому не должно возникнуть проблем при непосредственном общении с конструкторами. Форум тут не помошник.
  • Лайк 1
Посилання на коментар
Поділитися на інших сайтах

Спасибо за ответы,

 

Техническое обследование дома проводилось перед покупкой (есть целая папка) - основные данные я озвучил выше.

 

Трещины только сверху, из-за того что стены в один кирпич не несущие и здание 12 лет подвергалось перепадам температуры и повышенной влажности - крыша не очень и топили каждый год зимой на новый год.

 

 

Может у кого то есть контакты организации, с которой был положительный опыт, лицензия и цены не большие?

 

Я на форуме не прошу все досконально просчитать, а прошу подтолкнуть меня в правильное русло, ведь одна гоова - хорошо, а 20 опытных еще лучше. Плюс, уже точно буду знать о чем разговариать с архитекторами и конструкторами за денежку.

Посилання на коментар
Поділитися на інших сайтах

Я на форуме не прошу все досконально просчитать, а прошу подтолкнуть меня в правильное русло, ведь одна гоова - хорошо, а 20 опытных еще лучше. Плюс, уже точно буду знать о чем разговариать с архитекторами и конструкторами за денежку.

 

1. Вы должны себе дать отчёт, на какие фин.возможности рассчитываете. (строительство непосредственно)

2. Составьте для себя и архитектора сочинение, с подробностями, что Вы в результате желаете получить.

3. Соберите все "доки" (гос.акт, тех.обследование и т.д.) и идите к архитектору.

  • Лайк 1
Посилання на коментар
Поділитися на інших сайтах

  • 4 тижні потому...
Хочеться, звичайно, Вам допомогти, але відповідь на таку кількість питань і нюансів Вам дасть тільки проект. Як говорили вже колеги, без обстеження фундаментів про примикання важко сказати, існуючий фундамент вже осадки не дасть, оскільки пройшло 12 років, що з ним буде після додаткового навантаження, сказати важко без результатів обстеження і розрахунку. Потрібно прокопати два шурфа 1х0,7м щоб побачити конструкцію фундамента зовні. При перевірочному розрахунку, потрібно враховувати мінімальне можливе армування, оскільки я впевнений акту прихованих робіт по армуванні у Вас немає :) Будинок у Вас невеликих розмірів, тому не думаю що проект обійдеться для Вас дорого.. Дорожче обійтись може без проекту :)
  • Лайк 1
Посилання на коментар
Поділитися на інших сайтах

1.Я б відмовився від з/б перекриття на існуючій частині і дав дерево (х...зна які там фундаменти).

2.Огляньте уважно фундамент на наявність трищин - якщо є - треба думати, якщо нема - добре, шурфи я б не копав. Поясню - якщо ви знімете другий поверх побудований в цеглину і на його місці побудуєте газобетонний ( я б радив 200мм газобетон + 100 мінвата) - то за рахунок того що газоблок легший за цеглу ви фундаменти не навантажите - а навпаки - розвантажите, + зробите нормальний армопояс під перекриття і все буде добре (тільки перекриття - БЕЗ ПАНЕЛЕЙ!!!).

3. Запамятайте - нові фундаменти НІКОЛИ не зав"язуються з існуючими. Причина - коли нові будуть сідати - потягнуть за собою старі і ті тріснуть. Усадочний шов робиться на стиках фундаментів, заповнювая його - або пісок, або просмолена доска 20мм. Доречі - звязувати поясами добудову і існуючу будівлю я б теж не радив.

 

Якось так. Але перш за все - детальний огляд на предмет тріщин. Якщо фундаменти тріщать - простіше і дешевше згорнути все екскаватором і будувати нове.

  • Лайк 1
Посилання на коментар
Поділитися на інших сайтах

Створіть акаунт або увійдіть у нього для коментування

Ви маєте бути користувачем, щоб залишити коментар

Створити акаунт

Зареєструйтеся для отримання акаунта. Це просто!

Зареєструвати акаунт

Увійти

Вже зареєстровані? Увійдіть тут.

Увійти зараз
×
×
  • Створити...