владік Опубліковано: 24 квітня 2012 Поділитись Опубліковано: 24 квітня 2012 (змінено) Шановні дизайнери , прохання допомогти порадою та критикою даного проекта. невеликий опис. це проект сімейного готелю мого брата, який буде розташований в Закарпатській обл. поряд гора , невеликий потічок та ліс. на цей момент є побудовано коробка першого будинку ( заштрихована частина на рис1, та обведена рамкою на рис. Вид1) планується на 1-му поверху невелике кафе, на 2-му поверху кімнати для проживання брата з сімєю, ) а далі 2 частина : на 1 поверху котельня та 2 кімнати для гостей, на 2 поверху 3 кімнати.і окремою спорудою буде побудована невелика сауна. Мені цей проект неподобається , так як ззовні він нагадує класичні радянські готелі.,і завелика кількість кімнат. Думаю я його вже переконав що в такому виді як зараз є перший будинок(в рамці) не варта залишати , в зовнішньому оздобленні використати камінь та дерево, в кожній кімнаті санузел, з кожної кімнати вихід на балкон. і цьому проекту на мою думку бракує якоїсь "родзинки" та сімейного тепла щоб людина яка буде проїжжати дорогою хотіла зупинитись і відпочити.. Надіємось на вашу допомогу та поради , за втілені Ваші поради в нашому проекті відпочинок у нас Вам гарантовано Змінено 24 квітня 2012 користувачем владік Посилання на коментар Поділитися на інших сайтах More sharing options...
S-STUDIO Опубліковано: 25 квітня 2012 Поділитись Опубліковано: 25 квітня 2012 Шановні дизайнери , прохання допомогти порадою та критикою даного проекта. невеликий опис. Подпишите комнаты и их площадь, если есть возможность, покажите расстановку мебели. Важно!!! Расположение санузлов. Сложно что-то советовать без детального проекта. И еще важно: есть такое понятие для отелей как звезды: **, *** и т.д. Попытайтесь определиться, на какую категорию Вы тянете и подтянуться к ней. А вдруг завтра таки сертификация нагрянет? 1 Посилання на коментар Поділитися на інших сайтах More sharing options...
DVIJOK Опубліковано: 25 квітня 2012 Поділитись Опубліковано: 25 квітня 2012 Да, до проекта тут далеко. И к чему тут сейчас дизайнеры, когда требуется прежде всего работа архитектора? Дайте удобоваримые планы, с хорошим расрешением и законченные картинки, а не этот очень между идейный этап. 1 Посилання на коментар Поділитися на інших сайтах More sharing options...
владік Опубліковано: 25 квітня 2012 Автор Поділитись Опубліковано: 25 квітня 2012 Подпишите комнаты и их площадь, если есть возможность, покажите расстановку мебели. Важно!!! Расположение санузлов. Сложно что-то советовать без детального проекта. И еще важно: есть такое понятие для отелей как звезды: **, *** и т.д. Попытайтесь определиться, на какую категорию Вы тянете и подтянуться к ней. А вдруг завтра таки сертификация нагрянет? так до зірочок тут як до неба!!! далеко . передбачається одномісний номер з своїм санузлом (ванна туапет умивальник порядка 2м.квадр. і дійсно тут треба допомогу архітектора щоб згенерувати хорошу концепцію.:rolleyes: Добавлено через 3 минуты Да, до проекта тут далеко. И к чему тут сейчас дизайнеры, когда требуется прежде всего работа архитектора? Дайте удобоваримые планы, с хорошим расрешением и законченные картинки, а не этот очень между идейный этап. так якраз допомогу архітектора треба сильно!!! зараз пошукаєм фотографіі нанесу розміри та скину Посилання на коментар Поділитися на інших сайтах More sharing options...
Lompier Опубліковано: 25 квітня 2012 Поділитись Опубліковано: 25 квітня 2012 Ховайтесь дядьку. Або найміть архітектора. Не будку ж для собак будуєте. Чи грошей нема на гонорар? 1 Посилання на коментар Поділитися на інших сайтах More sharing options...
ozzy66 Опубліковано: 25 квітня 2012 Поділитись Опубліковано: 25 квітня 2012 Подскажите пожалуйста какой из проектов более практичен.Не знаю на каком остановиться Посилання на коментар Поділитися на інших сайтах More sharing options...
S-STUDIO Опубліковано: 26 квітня 2012 Поділитись Опубліковано: 26 квітня 2012 так до зірочок тут як до неба!!! далеко . передбачається одномісний номер з своїм санузлом (ванна туапет умивальник порядка 2м.квадр. Якщо дотриматись основних умов (ТВ, необхідний набір меблів, тощо), то на **-***, не складно ДОТЯГНУТИ. Шукайте нормативи для готелів, там є нюанси, яких просто дотриматись на стадії проектування. Наприклад, підлога в номерах повинна бути з ковроліну (паркет та дошка недопустимі) Посилання на коментар Поділитися на інших сайтах More sharing options...
фая Опубліковано: 26 квітня 2012 Поділитись Опубліковано: 26 квітня 2012 ozzy66, я голосую за второй. Посилання на коментар Поділитися на інших сайтах More sharing options...
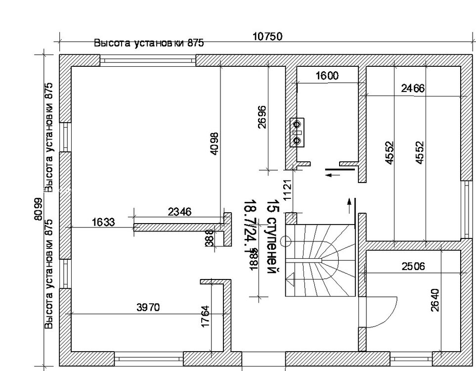
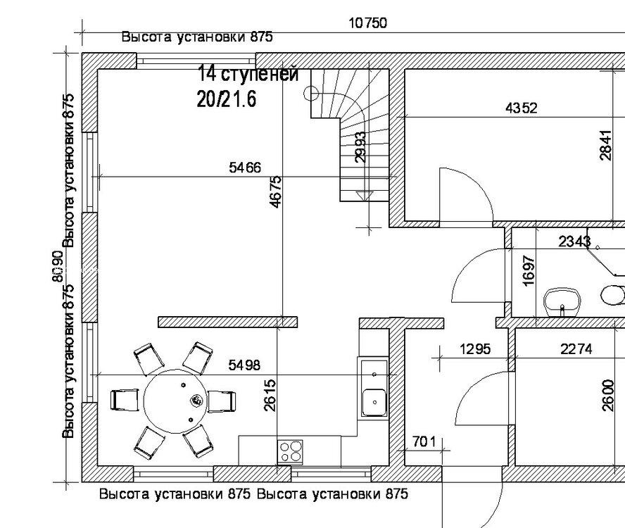
владік Опубліковано: 1 травня 2012 Автор Поділитись Опубліковано: 1 травня 2012 Да, до проекта тут далеко. И к чему тут сейчас дизайнеры, когда требуется прежде всего работа архитектора? Дайте удобоваримые планы, с хорошим расрешением и законченные картинки, а не этот очень между идейный этап. викладаю фото що вже є зроблене ( треба переробляти!!!) і розміри, радий буду почути, побачити будь який Ваш варіант вигляду будівлі Посилання на коментар Поділитися на інших сайтах More sharing options...
владік Опубліковано: 1 травня 2012 Автор Поділитись Опубліковано: 1 травня 2012 не можу вставити файл з розширенням .dxf Добавлено через 26 минут Ховайтесь дядьку. Або найміть архітектора. Не будку ж для собак будуєте. Чи грошей нема на гонорар? Форум є я так думаю якраз для того щоб не ховатись.. проект по якому збудували дану споруду робив архітектор з районної архітектури, як змінити це "ДЕЩО" і своє бачення виконав інший архітектор (теж не безплатно) але ... НЕ ТО !!!!!!!!, на рахунок будки змовчу. Посилання на коментар Поділитися на інших сайтах More sharing options...
DVIJOK Опубліковано: 2 травня 2012 Поділитись Опубліковано: 2 травня 2012 викладаю фото що вже є зроблене ( треба переробляти!!!) і розміри, радий буду почути, побачити будь який Ваш варіант вигляду будівлі Не знаю, что советовать. Сейчас надо работать конкретно, с архитектором, как-то все это упорядочивать, выравнивать линию окон и дверей, работать над вариантами архитектурного оформления фасадов, над стилем. Советовать можно исходя из гораздо большей информации нежели представлена тут. Посилання на коментар Поділитися на інших сайтах More sharing options...
владік Опубліковано: 30 травня 2012 Автор Поділитись Опубліковано: 30 травня 2012 після декількох змін вийшли на такий проект7?? які Ваші думки?? Посилання на коментар Поділитися на інших сайтах More sharing options...
DVIJOK Опубліковано: 31 травня 2012 Поділитись Опубліковано: 31 травня 2012 Сама картинка даже для архикада, паршивая - ракурс и задник убивают восприятие. Если судить из того, что есть, то нет стиля. Верх тяжелый, низ хиловатый. Если говорить по мелочи... Колонны и цоколь сделать по мощнее, явно толщина перекрытия балкона не будет такой маленькой. Соотношение верхнего треугольного окна и размеров фронтона вообще не отработано. Одни окна со шпросами, другие правые нет, ну и т.д. Короче работы немеряно. 2 Посилання на коментар Поділитися на інших сайтах More sharing options...
meblima Опубліковано: 31 травня 2012 Поділитись Опубліковано: 31 травня 2012 після декількох змін вийшли на такий проект7?? які Ваші думки?? Мысли просто отсутствуют. Нанимайте толкового архитектора, дальше будет меньше проблем. Посилання на коментар Поділитися на інших сайтах More sharing options...
владік Опубліковано: 3 червня 2012 Автор Поділитись Опубліковано: 3 червня 2012 Мысли просто отсутствуют. Нанимайте толкового архитектора, дальше будет меньше проблем. так, кожен архітектор вважає себе ну просто супер толковим, а інші так просто , і кожного з ким говориш позиціонує себе як першого!!! чи не так ??????? 1 Посилання на коментар Поділитися на інших сайтах More sharing options...
meblima Опубліковано: 3 червня 2012 Поділитись Опубліковано: 3 червня 2012 так, кожен архітектор вважає себе ну просто супер толковим, а інші так просто , і кожного з ким говориш позиціонує себе як першого!!! чи не так ?? Трудно не согласится с Вами. В большинстве случаев у архитекторов есть портфолио, по которому можно определить уровень профессионализма. Посилання на коментар Поділитися на інших сайтах More sharing options...
ATX Опубліковано: 8 червня 2012 Поділитись Опубліковано: 8 червня 2012 Мені цей проект неподобається , так як ззовні він нагадує класичні радянські готелі.,і завелика кількість кімнат. [/b][/b][/color] Да, выглядит как убогий совок. Работайте над абсолютно новым проектом. Посилання на коментар Поділитися на інших сайтах More sharing options...
DecorMaster Опубліковано: 9 червня 2012 Поділитись Опубліковано: 9 червня 2012 і цьому проекту на мою думку бракує якоїсь "родзинки" та сімейного тепла щоб людина яка буде проїжжати дорогою хотіла зупинитись і відпочити.. "Діагноз" Ви поставили вірно, а підійшли до вирішення, на мою думку - не зовсім. В першу чергу я б порадив вирішити питання "безіменності". Часто у придорожніх закладах зупиняються за рекомендайіями тих, хто вже там побував. Радити комусь щось типу "біло-коричневенький на двітисячизмазаному кілометрі" вряд чи хтось буде. Придумайте назву, причому придумайте самі, як власної дитини. В першу чергу ваш заклад має полюбитися Вам самим. А вже від придуманої назви танцюйте далі. З точки зору мистецтвознавства, архітектура - вид ОБРАЗотворчого мистецтва. Відштовхуючись від назви спершу самі подумайте, в якому ключі вам хочеться розвивати той самий ОБРАЗ. А вже тоді поможливості підключайте тих, хто може професійно щось порадити в реалізації. 1 Посилання на коментар Поділитися на інших сайтах More sharing options...
ТатьянаTanya Опубліковано: 22 червня 2012 Поділитись Опубліковано: 22 червня 2012 Тут уже строительнство началось? Объемное решение отсается? не понятно, где дорога, вообще какая ситуация. Ну и едет человек и должен как-то вход видеть главный приглашающий. Что он видит?Это важно. О чем человеку говрит название и внешний вид соответственно? Вывеска где планируется. Да дизайн фасада требует работы. Посилання на коментар Поділитися на інших сайтах More sharing options...
владік Опубліковано: 22 червня 2012 Автор Поділитись Опубліковано: 22 червня 2012 Тут уже строительнство началось? Объемное решение отсается? не понятно, где дорога, вообще какая ситуация. Ну и едет человек и должен как-то вход видеть главный приглашающий. Что он видит?Это важно. О чем человеку говрит название и внешний вид соответственно? Вывеска где планируется. Да дизайн фасада требует работы. Так вже роботи почалися. оріентуюсь на останній варіант, вивіска буде під козирьком другого поверху де маленьке трик. вікно Що ви можете запропонувати по дизайну фасада??? Посилання на коментар Поділитися на інших сайтах More sharing options...
ТатьянаTanya Опубліковано: 23 червня 2012 Поділитись Опубліковано: 23 червня 2012 Выберите стиль, который вам нравится, в инете полно картинок и покажите своему архитектору - типа вот классно. Может вы где-то в живую видели такой , что вам нравится - в любом случае на визуализации у вас дизайн очень условный, донесите архитектору ваше видение. Если объемное решение уже принято, остается работа с наружной отделкой фасада. Остался подбор материалов и пластика фасада. Например. Посилання на коментар Поділитися на інших сайтах More sharing options...
Технология Строительства Опубліковано: 27 листопада 2021 Поділитись Опубліковано: 27 листопада 2021 01.05.2012 в 16:54, владік сказав: викладаю фото що вже є зроблене ( треба переробляти!!!) і розміри, радий буду почути, побачити будь який Ваш варіант вигляду будівлі Это ужас одним словом. Ребристые панели консольно не работают..... Их надо спиливать, отсутствие монолитных поясов как и кровли. Будьте аккуратными Посилання на коментар Поділитися на інших сайтах More sharing options...
userxxx Опубліковано: 3 грудня 2021 Поділитись Опубліковано: 3 грудня 2021 В 27.11.2021 в 07:43, Технология Строительства сказал: Это ужас одним словом. Ребристые панели консольно не работают..... Их надо спиливать, отсутствие монолитных поясов как и кровли. Будьте аккуратными Спустя 9 лет, да :D 1 2 Посилання на коментар Поділитися на інших сайтах More sharing options...
Рекомендовані повідомлення
Створіть акаунт або увійдіть у нього для коментування
Ви маєте бути користувачем, щоб залишити коментар
Створити акаунт
Зареєструйтеся для отримання акаунта. Це просто!
Зареєструвати акаунтУвійти
Вже зареєстровані? Увійдіть тут.
Увійти зараз