Татьяна5 Опубліковано: 13 травня 2012 Автор Поділитись Опубліковано: 13 травня 2012 Измененный генплан, так же еще по нескольким участкам планируются задатки П.С. буду в Жукине во вторник - 067-506-36-11 Татьяна Посилання на коментар Поділитися на інших сайтах More sharing options...
Татьяна5 Опубліковано: 14 травня 2012 Автор Поділитись Опубліковано: 14 травня 2012 актуально Посилання на коментар Поділитися на інших сайтах More sharing options...
Татьяна5 Опубліковано: 16 травня 2012 Автор Поділитись Опубліковано: 16 травня 2012 Идеальный вариант дачи для проживающих на Оболони, Троещине, Виноградаре, Академгородке, Борщаговке. От Оболони 40 минут спокойной езды по красивой дороге Вышгород-Осещина-Хотяновка-Новоселки-Н.Дубечня-В.Дубечня-Пырново-Воропаев - Жукин Посилання на коментар Поділитися на інших сайтах More sharing options...
Татьяна5 Опубліковано: 17 травня 2012 Автор Поділитись Опубліковано: 17 травня 2012 на субботу запланирована большая экскурсия по Жукину - присоеденяйтесь! 067-506-36-11 Татьяна Посилання на коментар Поділитися на інших сайтах More sharing options...
Татьяна5 Опубліковано: 19 травня 2012 Автор Поділитись Опубліковано: 19 травня 2012 едем в Жукин - поехали с нами? - 067-506-36-11 Посилання на коментар Поділитися на інших сайтах More sharing options...
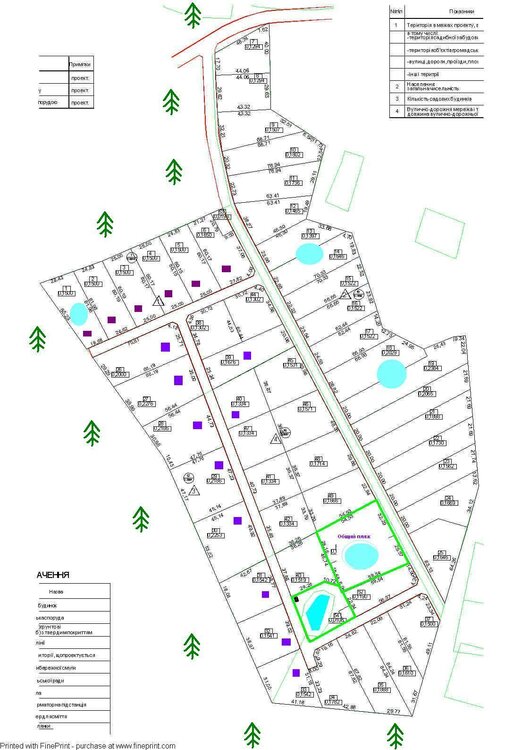
Татьяна5 Опубліковано: 20 травня 2012 Автор Поділитись Опубліковано: 20 травня 2012 Изменения генплана , еще один участок под задатком. Напоминаю - участки в закрытом дачном городке, предусмотрено решение всех инфраструктурных вопросов, на всех участках - деревья, прямое премыкание к большому лесу, более 10% площади массива - дороги, ширина 10 и 8 метров, более 10% площади массива - общественные зоны - пляж, озеро для рыбалки Посилання на коментар Поділитися на інших сайтах More sharing options...
ангелос Опубліковано: 20 травня 2012 Поділитись Опубліковано: 20 травня 2012 таня, а вы нечасто апаете свою темку и модеры молчат можно ли так фсе имхо Посилання на коментар Поділитися на інших сайтах More sharing options...
Татьяна5 Опубліковано: 20 травня 2012 Автор Поділитись Опубліковано: 20 травня 2012 фсе имхо что именно является ВАшим имхо? Посилання на коментар Поділитися на інших сайтах More sharing options...
ангелос Опубліковано: 20 травня 2012 Поділитись Опубліковано: 20 травня 2012 это как бы уже не имхо 8. Запрещается скрытая и открытая реклама в любом виде кроме раздела «Реклама». При этом одно предприятие имеет право создавать не более одной рекламной темы, обновление которой допускается не чаще одного раза за 72 часа. Объявления о продаже материалов, инструментов, бытовой техники и любых других предметов, приобретённых с целью перепродажи, могут размещаться только в разделе «Реклама». Посилання на коментар Поділитися на інших сайтах More sharing options...
Татьяна5 Опубліковано: 20 травня 2012 Автор Поділитись Опубліковано: 20 травня 2012 это как бы уже не имхо 8. Запрещается скрытая и открытая реклама в любом виде кроме раздела «Реклама». При этом одно предприятие имеет право создавать не более одной рекламной темы, обновление которой допускается не чаще одного раза за 72 часа. Объявления о продаже материалов, инструментов, бытовой техники и любых других предметов, приобретённых с целью перепродажи, могут размещаться только в разделе «Реклама». Все верно, в применении к продаже дров в разделе Реклама. Прочитайте чуть внимательнее правила . Посилання на коментар Поділитися на інших сайтах More sharing options...
ангелос Опубліковано: 20 травня 2012 Поділитись Опубліковано: 20 травня 2012 невнимателен ключевое слово реклама Посилання на коментар Поділитися на інших сайтах More sharing options...
Татьяна5 Опубліковано: 20 травня 2012 Автор Поділитись Опубліковано: 20 травня 2012 невнимателен ключевое слово реклама раздел Реклама имеет свои правила Вам достаточно попросить разъяснений по пункту правил у ув. Модераторов Посилання на коментар Поділитися на інших сайтах More sharing options...
Ведьма Опубліковано: 21 травня 2012 Поділитись Опубліковано: 21 травня 2012 Татьяна, а у меня не открывается карта по вашим координатам. Можете дать ссылку? Не совсем понятно, как далеко Десна от участков. Мне интересно, люблю Жукин, наша сторона, но очень смущает расстояние до Киева, если честно, и качество дороги. Скажите мне что-то хорошее по этому поводу. Посилання на коментар Поділитися на інших сайтах More sharing options...
Татьяна5 Опубліковано: 21 травня 2012 Автор Поділитись Опубліковано: 21 травня 2012 Татьяна, а у меня не открывается карта по вашим координатам. Можете дать ссылку? Не совсем понятно, как далеко Десна от участков. Мне интересно, люблю Жукин, наша сторона, но очень смущает расстояние до Киева, если честно, и качество дороги. Скажите мне что-то хорошее по этому поводу. Снесла Гуглирз после переустановки системы , ребят, кто поможет со сслыкой на координаты? Десна - км 2, хотя при наличии своего пляжа - может она уже и не нужна? Давно ездили по направлению? ттт, ничего плохого сказать не могу про дорогу, транзита нет, пробок нет никогда (в 2011 расширили дамбу и решили вопрос одним махом), при моем черепашьем стиле вождения еду 40 минут от КП на Оболони. О дороге, Десне, лесе, местности - можно спросить у владельцев участков в Жукине-1, уверена, ребята поделятся инфой - www.stroimdom.com.ua/forum/showthread.php?t=66165&page=147 Посилання на коментар Поділитися на інших сайтах More sharing options...
Ведьма Опубліковано: 21 травня 2012 Поділитись Опубліковано: 21 травня 2012 Снесла Гуглирз после переустановки системы , ребят, кто поможет со сслыкой на координаты? Десна - км 2, хотя при наличии своего пляжа - может она уже и не нужна? Да может и не нужна, дети требуют водоемов дя рыбалки)), и побольше, побольше. Буквально 2 недели назад смотрели участок в Жукине, дорога местами лучше, местами раздолбана... Посилання на коментар Поділитися на інших сайтах More sharing options...
Татьяна5 Опубліковано: 21 травня 2012 Автор Поділитись Опубліковано: 21 травня 2012 Да может и не нужна, дети требуют водоемов дя рыбалки)), и побольше, побольше. Буквально 2 недели назад смотрели участок в Жукине, дорога местами лучше, местами раздолбана... водоем для рыбалки есть на территории, частный, наш , есть Десна в Жукине, есть Боденьки (там рыбалка лучше), есть обводной канал в лесу в паре км Основная трасса вопросов не вызывает, в самом Жукине - идеальных дорог нет, но к массиву ведет таки асфальт, хоть и не автобан, последние 600 метров - будет отсыпка. Решать Вам Посилання на коментар Поділитися на інших сайтах More sharing options...
Diver Опубліковано: 21 травня 2012 Поділитись Опубліковано: 21 травня 2012 Слушай, ищи и договаривайся с этими белками-летягами (дельтапланиристами) что бы они с высоты фотографии сделали. Будет БОМБА! ;) рассказываю как сделать: берется удочка метров 5, к нему цепляется фотоаппарат-мыльница цифровичок, крепится все, потом вкл задержка на 10 сек и подымается вверх.. ну помахать конечно придется, и мыльницу желательно чем то мягким обмотать, но фото будет очень-очень необычное 1 Посилання на коментар Поділитися на інших сайтах More sharing options...
Татьяна5 Опубліковано: 21 травня 2012 Автор Поділитись Опубліковано: 21 травня 2012 рассказываю как сделать: берется удочка метров 5, к нему цепляется фотоаппарат-мыльница цифровичок, крепится все, потом вкл задержка на 10 сек и подымается вверх.. ну помахать конечно придется, и мыльницу желательно чем то мягким обмотать, но фото будет очень необычное аааа, вот это славянская выдумка :lol: Посилання на коментар Поділитися на інших сайтах More sharing options...
Ведьма Опубліковано: 21 травня 2012 Поділитись Опубліковано: 21 травня 2012 Я обязательно проеду, посмотрю на выходных, наберу вас предварительно. Присмотрела себе конкретный участок. Посилання на коментар Поділитися на інших сайтах More sharing options...
Татьяна5 Опубліковано: 21 травня 2012 Автор Поділитись Опубліковано: 21 травня 2012 Я обязательно проеду, посмотрю на выходных, наберу вас предварительно. Присмотрела себе конкретный участок. звоните, каждую субботу я есть в Жукине (на неделе тоже почти каждый день) Посилання на коментар Поділитися на інших сайтах More sharing options...
Татьяна5 Опубліковано: 23 травня 2012 Автор Поділитись Опубліковано: 23 травня 2012 в субботу буду в Жукине - 067-506-36-11 Посилання на коментар Поділитися на інших сайтах More sharing options...
Татьяна5 Опубліковано: 26 травня 2012 Автор Поділитись Опубліковано: 26 травня 2012 в субботу буду в Жукине - 067-506-36-11 прошу прощения, но сегодня в Жукине не будет, буду на неделе, во вторник Посилання на коментар Поділитися на інших сайтах More sharing options...
Татьяна5 Опубліковано: 28 травня 2012 Автор Поділитись Опубліковано: 28 травня 2012 актуально закрытый дачный городок, недалеко от Киева, на свежем воздухе, с прямым выходом в большой лес, со своими озерами, со своей инфраструктурой, с деревьями на каждом участке - не так уж и много подобных предложений ;) - 067-506-36-11 Посилання на коментар Поділитися на інших сайтах More sharing options...
Татьяна5 Опубліковано: 29 травня 2012 Автор Поділитись Опубліковано: 29 травня 2012 сегодня с 15.00 буду в Жукине, до 18.00 - 067-506-36-11 Посилання на коментар Поділитися на інших сайтах More sharing options...
Татьяна5 Опубліковано: 31 травня 2012 Автор Поділитись Опубліковано: 31 травня 2012 актуально Посилання на коментар Поділитися на інших сайтах More sharing options...
Рекомендовані повідомлення