K.SyS Опубліковано: 9 травня 2012 Поділитись Опубліковано: 9 травня 2012 Давненько я читаю этот форум. Много переосмыслено, ногтей изгрызено, пока звонкие пиастры в носок откладывались. Этой весной, почесав лысеющий череп, решил что пора. Вводная. Участок на Осокорках, в р-не пресловутой Белой Дачи, 250 метров до Днепра. На участке старый неухоженный сад и фанерная халупка, с любовью выстроенная из попавшихся по дороге досочек моим дальним, и уже перешагнувшим финишную черту, родственником. Хочется в этом месте построить симпатичный небольшой домик, для комфортного проживания с весны по осень, типа дачка, но с прищуром глаза на "совсем переехать", если все получится. На улице есть газ, и паршивенькое, как и везде в тех краях, электричество. Договор на строительство подписал с очень известной среди здешних завсегдатаев фирмой "Фараон". Они же делают проект, который является достаточно типовым, а по сути слегка увеличенным и измененным домом Виктория от Дрим-Хаус. Без изысков, ничего лишнего, и в тоже время достаточно удобная и продуманная планировка. 20 апреля, сбрив седеющую щетину и надев все чистое, приступили. Первым делом нужно было очистить участок от всего, добуриться до нормальной воды, сделать документы на подключение газа, и крепко подумать где взять нормальное электричество, достаточное для полноценного функционирования дома 150 метров. Когда на участке есть свет, вода и газ, то на нем уже можно жить даже в палатке. Побежал отнес документы на топогеодезию, нужную для подключения газа. Сказали ждать месяц. Ладно, спешить некуда. Очистку участка, бурение скважины и устройство септика доверил фирме Никос-Буд. Их мне рекомендовали коллеги на автомобильном форуме, но и тут, как потом оказалось, есть их ветка. Приехали 4 уравновешенных мущщины, нахмурили свои суровые брови, и через 4 дня на участке осталась только одинокая яблоня и отхожая будочка в углу, голая, черная земля, остатки корешков, и дрожащий голос моей тещи. Заодно выкорчевали силовой кабель наших соседей, скромно лежавший без опознавательных знаков на небольшой глубине перед нашим участком. 5 мая уже другие 4 мущщины, поплевав на мозолистые руки, сделали в земле дырку глубиной 62 метра, торжественно произнесли заклинание "сеноман", дали испить свежей водички, и с достоинством удалились, гремя своими железками. 8 мая сделали кессон из двух метровых колец, запихнули в скважину насос, поставили гидроаккумулятор, но закончить не смогли. Гроза, ливень и сильный ветер. Закончат 10 числа. 11 мая приезжает бригада "фундаменталистов". Доклад о их нелегком труде и о шведской утепленной плите будет уже с фотографиями. Промежуточные итоги. 1. Началось. 2. Никос-Буд работу свою знают, результатами пока удовлетворен. Правда большого труда стоило заставить их прислать мне все необходимые договоры, хочется все же иметь на руках какие-то документы. 3. Начинаем фундамент и параллельно септик. Под фундамент спрячем трубы для рекуператора. 4. Важнейший вопрос с электричеством остался открытым. То, что течет у нас по проводам сети общего пользования, мягко говоря, неудовлетворительно. Говорят что в холодное время напряжение проседает до 130 В. Как мне видится, мне нужно где-то 10-12 квт. для нормальной жизни в доме, и разумеется пока это только мечты. Один инициативный житель нашей улицы предложил мне подключиться к частному трансформатору и получить 20 квт. трехфазного питания, однако бюджет затеи 15к американских денег. В горло немедленно вцепилась жаба. Некоторые граждане на разных форумах говорят что это совсем недорого, но мне так совсем не кажется. Если кто сталкивался с этой проблемой, буду благодарен за любые советы. 6 Посилання на коментар Поділитися на інших сайтах More sharing options...
Татьяна5 Опубліковано: 9 травня 2012 Поділитись Опубліковано: 9 травня 2012 Один инициативный житель нашей улицы предложил мне подключиться к частному трансформатору и получить 20 квт. трехфазного питания, однако бюджет затеи 15к американских денег. В горло немедленно вцепилась жаба. Некоторые граждане на разных форумах говорят что это совсем недорого, но мне так совсем не кажется. Если кто сталкивался с этой проблемой, буду благодарен за любые советы. берите, окупится сторицей! и газ не нужен будет ;) 1 Посилання на коментар Поділитися на інших сайтах More sharing options...
pr@ktik Опубліковано: 9 травня 2012 Поділитись Опубліковано: 9 травня 2012 Давненько я читаю этот форум. вцепилась жаба. Некоторые граждане на разных форумах говорят что это совсем недорого, но мне так совсем не кажется. Если кто сталкивался с этой проблемой, буду благодарен за любые советы. Удачи Вам ! Посилання на коментар Поділитися на інших сайтах More sharing options...
Optimalist Опубліковано: 9 травня 2012 Поділитись Опубліковано: 9 травня 2012 . Один инициативный житель нашей улицы предложил мне подключиться к частному трансформатору и получить 20 квт. трехфазного питания, однако бюджет затеи 15к американских денег. В горло немедленно вцепилась жаба. Некоторые граждане на разных форумах говорят что это совсем недорого, но мне так совсем не кажется. Если кто сталкивался с этой проблемой, буду благодарен за любые советы. На Осокорках обычная цена 5килобаксов за 5 кВт, так что действительно, цена нормальная. Но боюсь, что у Вас это только право на подключение. Уточните, а то потом дальше будут техусловия, проект, прокладка кабеля, подключение и килобаксы, килобаксы, килобаксы . Если собираетесь жить зимой, газ нужен в любом случае, так как все трансформаторы что общественные, что частные висят на одной ЛЭП, и чаще всего выходит из строя именно она. И почему-то это как раз когда сильный снегопад и мороз. Как проще протянуть газ в Осокорках, - почитайте в ветке Белой Рыси, я там писал, а то будете месяцами топосьемку делать, хотя она уже давно сделана - ведь газопровод-то проложен. Но газофикацию надо учесть в проекте дома, так что сейчас самое время поинтересоваться, чтобы потом не перестраивать или достраивать. Даже если и не будете сразу газ тянуть. 1 Посилання на коментар Поділитися на інших сайтах More sharing options...
HUGO BOSS Опубліковано: 9 травня 2012 Поділитись Опубліковано: 9 травня 2012 Начало интересное. С удовольствием буду следить за темкой. Вам удачи в осуществлении мечты Посилання на коментар Поділитися на інших сайтах More sharing options...
Sandy_Sandy Опубліковано: 9 травня 2012 Поділитись Опубліковано: 9 травня 2012 Как проще протянуть газ в Осокорках С 1 апреля вступила в силу какая-то постанова о том, что газ можно подключить только когда дом введен в эксплуатацию, а для этого надо сначала получить стройпаспорт, сделать топопланы 1:500 и 1:2000, получить всякие ТУ на электричество, газ, воду, канализацию и т.д. и т.п. Не все так просто. 1 Посилання на коментар Поділитися на інших сайтах More sharing options...
K.SyS Опубліковано: 10 травня 2012 Автор Поділитись Опубліковано: 10 травня 2012 берите, окупится сторицей! и газ не нужен будет ;) Газ нужен обязательно. Топить планируем газом, и на всякий случай сделаем электрические конвекторы, как дублирующую систему. На Осокорках обычная цена 5килобаксов за 5 кВт, так что действительно, цена нормальная. Но боюсь, что у Вас это только право на подключение. Уточните, а то потом дальше будут техусловия, проект, прокладка кабеля, подключение и килобаксы, килобаксы, килобаксы . Право на подключение - десятка. Остальное, по предварительным расчетам, это кабель и бумажки. Однако это сильно пошатнет мне бюджет строительства... С 1 апреля вступила в силу какая-то постанова о том, что газ можно подключить только когда дом введен в эксплуатацию, а для этого надо сначала получить стройпаспорт, сделать топопланы 1:500 и 1:2000, получить всякие ТУ на электричество, газ, воду, канализацию и т.д. и т.п. Не все так просто. Ну у меня пока дальше топографии дело не пошло, буду отчитываться что и как. Посилання на коментар Поділитися на інших сайтах More sharing options...
Optimalist Опубліковано: 10 травня 2012 Поділитись Опубліковано: 10 травня 2012 С 1 апреля вступила в силу какая-то постанова о том, что газ можно подключить только когда дом введен в эксплуатацию, а для этого надо сначала получить стройпаспорт, сделать топопланы 1:500 и 1:2000, получить всякие ТУ на электричество, газ, воду, канализацию и т.д. и т.п. Не все так просто. Так всегда было. И если Вы обратитесь официально, Вам так и ответят. Как и мне 5 лет назад. Но если это выполнять, то "Творец" (фирма, которая газифицирует Осокорки) останется без заказов и денег. Не знаю, найдется ли на тысячи домов, хотя бы десяток введенных в эксплуатацию по всем правилам. Поэтому звоните по указанному телефону, платите деньги вроде как за работу, а на самом деле для смазки шестерен бюрократического механизма (что, они зря такие постановления принимают?), выполняете инструкции, - получаете газ. К необходимой документации вроде как по Вашему дому (снятую под копирку на ксероксе ) приложат конверт, содержимого которого откорректирует зрение контролерам. Единственный человек, который увидит все Ваше в реале - инспектор по пуску системы, обычно довольствуется 500 грн и бутылкой водки. У меня хоть вся система отопления была смонтирована, а Белой Рыси вообще ничего не было, кроме котла в упаковке, но на процесс полета китайских космонавтов это влияния не оказало. А поначалу тоже заявляли о новом постановлении, по которому ну никак нельзя в недострой без системы отопления . Кстати, ситуация с электричеством аналогичная. Не думайте, что проектанты берут бешеные деньги за клочок грязной мятой бумажки, гордо именуемой проектом. Там тоже все в доле. 2 Посилання на коментар Поділитися на інших сайтах More sharing options...
K.SyS Опубліковано: 11 травня 2012 Автор Поділитись Опубліковано: 11 травня 2012 Сделали кессон, но пока не закрыли люком. Закроем после фундамента, чтобы выйти на правильный уровень относительно почвы. Вода течет, сероводородом не пахнет. С месяц нужно ее хорошенько прокачать, а там возьмем анализ. Приехала бригада делать фундамент. Вечерком организую им встречу с представителем Никос-Буд для согласования вывода труб в септик. Когда поставили колышки фундамента, наш маленький домик, кажется занял половину участка. Ну и ладно, меньше будет огорода копать Добавлено через 9 минут Поэтому звоните по указанному телефону, платите деньги вроде как за работу, а на самом деле для смазки шестерен бюрократического механизма (что, они зря такие постановления принимают?), выполняете инструкции, - получаете газ. Ну похоже у нас так и будет. Дядька, который делает нам проектную документацию, сказал что ему от нас нужен только фундамент для привязки к участку, и план дома. На основании этих документов и топогеодезии дается разрешение на врезку. У разрешения есть цена, и она не зависит от того, есть у тебя дом и все такое, или еще нет. Единственный контроль будет в момент врезки и установки счетчика и прочих труб, но это уже когда будет куда устанавливать, а до этого еще ого-го. Немного очкую что что-то не учли или забыли. Терпеть не могу переделывать. Посилання на коментар Поділитися на інших сайтах More sharing options...
Tranquil Опубліковано: 11 травня 2012 Поділитись Опубліковано: 11 травня 2012 Удачи в строительстве! А можно посмотреть, что именно выбрали : проект, экспликации? По эл-ву, вроде в рынке, у нас 20квт вышло в районе 11т.у.е., но это в 15км от Киева. Посилання на коментар Поділитися на інших сайтах More sharing options...
K.SyS Опубліковано: 11 травня 2012 Автор Поділитись Опубліковано: 11 травня 2012 Перелопатил кучу форумов, аж дурно уже. По всему выходит что электричество нужно брать, цена для этих мест даже низкая. Видимо придется изыскивать ресурсы. Сегодня мерили напряжение в нашей сети - 180 вольт. И это летом и днем. Так жить нельзя. Сегодняшний день удачно завершился выполнением всех намеченных планов. Ребята работают, с местом установки септика решили, завозим материалы. Ниже фотки процесса, вдруг кому любопытно будет. Сначала убрали участок, все сломали и выкорчевали. Сегодня приехал трактор, выкопал котлованчик. Привезли пенополистирол, трубы под грунтовой рекуператор, арматуру и пленку для гидроизоляции. Работа кипит, ко вторнику угрожают закончить заливку. Stay tuned! Посилання на коментар Поділитися на інших сайтах More sharing options...
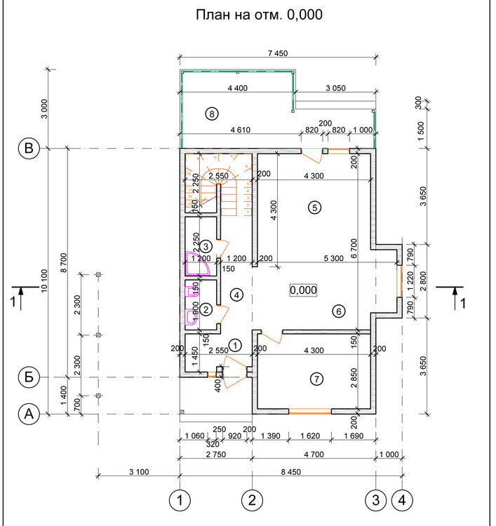
K.SyS Опубліковано: 11 травня 2012 Автор Поділитись Опубліковано: 11 травня 2012 План дома: Посилання на коментар Поділитися на інших сайтах More sharing options...
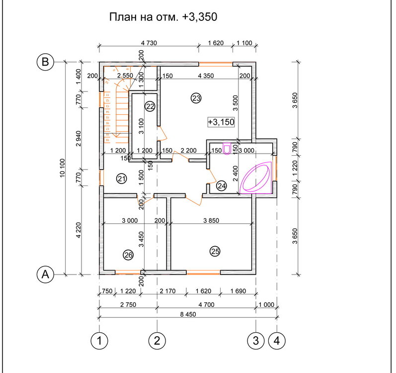
K.SyS Опубліковано: 11 травня 2012 Автор Поділитись Опубліковано: 11 травня 2012 8-) Ну и картинки: Посилання на коментар Поділитися на інших сайтах More sharing options...
K.SyS Опубліковано: 13 травня 2012 Автор Поділитись Опубліковано: 13 травня 2012 Выровняли площадку, закопали рекуператор, завтра ждем щебень. Немного смущает высота фундамента, кажется маловато над уровнем земли с одной стороны. Надеюсь после выравнивания участка нормализуется. Посилання на коментар Поділитися на інших сайтах More sharing options...
K.SyS Опубліковано: 16 травня 2012 Автор Поділитись Опубліковано: 16 травня 2012 Постепенно погружаемся в нирвану: все свободное время уходит на чтение манускриптов и пасквилей о черепице, фиброцементном сайдинге, на копание в глобальных трудах о длине и форме гвоздей, включая научное обоснование зависимости одного от другого. Причиной этого странного перерождения свободолюбия в аутизм является взятый единожды в курс на т.н. индивидуализм. Потерян безмятежный сон, да и возможен ли он при таком чудовищном выборе, начиная от производителей и заканчивая цветовой гаммой их бесконечной продукции? Созидательный труд на рабочем месте практически вытеснен мыслями в жанре знамений. Блуждающий взгляд, бессвязное бормотание и нервный стук клавиатуры - самое меньшее, чем теперь можно удивить притихших соратников. Конечный результат еще так далек, что мысли о нем вызывают приступы морской болезни, многократно усиливающейся скупердяйством и самокопанием. Явным признаком последнего и является весь текст выше. Фундамент готов. На днях будем делать септик. Недельки через три начнем каркас. Посилання на коментар Поділитися на інших сайтах More sharing options...
K.SyS Опубліковано: 16 травня 2012 Автор Поділитись Опубліковано: 16 травня 2012 Будущий септик: septic.kiev.ua/index/bioreaktor_gerkules_smeta_na_montazh/0-103 1 Посилання на коментар Поділитися на інших сайтах More sharing options...
Koskos Опубліковано: 16 травня 2012 Поділитись Опубліковано: 16 травня 2012 По поводу электричества на Осокорках - рассказываю о проактическом опыте. У тестя дом на Садовой 119. Постоянно проживают с ноября прошлого года. Современный котедж с порядочным потреблением. В свое время сбрасывались с соседями на свой трансформатор. Имеет 25 квт. Так вот ничего это не дало. Электричество постоянно отключат. Иногда по полдня сидят без света. И дело не в их трансформаторе а в конечной подстанции которая питает все осокорки. Вчера например вечером опять вырубили весь район. Единственный выход из ситуации - автономный газовый генератор для экстренного включения (газ есть). 5 килобасов за американский Generac - и проблема как-то решается. 1 Посилання на коментар Поділитися на інших сайтах More sharing options...
K.SyS Опубліковано: 18 травня 2012 Автор Поділитись Опубліковано: 18 травня 2012 После проведенной работы бюджет электрификации упал на 3 к, и выяснилось, что наш трансформатор как-то хитро подключен минуя подстанцию Осокорки. Когда на улице вырубается свет, у пользователей трансформатора все хорошо. Посилання на коментар Поділитися на інших сайтах More sharing options...
K.SyS Опубліковано: 3 серпня 2012 Автор Поділитись Опубліковано: 3 серпня 2012 Стройка движется помаленьку, ленюсь обновлять тему ввиду отсутствия времени, да и интерес общественности посредственный. Завтра будут фотки септика, коробки, описание возникших проблем. Ну и спою, если пиво будет свежим. 1 Посилання на коментар Поділитися на інших сайтах More sharing options...
Татьяна5 Опубліковано: 3 серпня 2012 Поділитись Опубліковано: 3 серпня 2012 Стройка движется помаленьку, ленюсь обновлять тему ввиду отсутствия времени, да и интерес общественности посредственный. Завтра будут фотки септика, коробки, описание возникших проблем. Ну и спою, если пиво будет свежим. Нормальный-нормальный интерес , Вы побольше фото мелким и крупным планом размещайте - интерес обязательно будет 1 Посилання на коментар Поділитися на інших сайтах More sharing options...
Alexma1 Опубліковано: 3 серпня 2012 Поділитись Опубліковано: 3 серпня 2012 На самом деле всё интересно! Выкладывайте побольше фотографий и удачи! Посилання на коментар Поділитися на інших сайтах More sharing options...
K.SyS Опубліковано: 31 серпня 2012 Автор Поділитись Опубліковано: 31 серпня 2012 Завтра осень. Стройка движется, темп слабенький, но остановок почти нет. За лето, начиная с мая, выровняли и убрали участок, сделали скважину и септик, почти поставили коробку. Завтра приедет шаман строить дымоход, и с понедельника начнем укладывать битумную черепицу. Одновременно начнется черновая отделка и утепление фасада. Септик закопали за один день, ребята свою работу делают хорошо. Сначала выкопали яму и опустили туда две бочки. Посилання на коментар Поділитися на інших сайтах More sharing options...
K.SyS Опубліковано: 31 серпня 2012 Автор Поділитись Опубліковано: 31 серпня 2012 Затем сделали переливы, лючки, и прочую пользу. Посилання на коментар Поділитися на інших сайтах More sharing options...
K.SyS Опубліковано: 31 серпня 2012 Автор Поділитись Опубліковано: 31 серпня 2012 Выкопали траншею для дренажного туннеля, который собирается из специальных секций. Посилання на коментар Поділитися на інших сайтах More sharing options...
K.SyS Опубліковано: 31 серпня 2012 Автор Поділитись Опубліковано: 31 серпня 2012 Ну и красиво все закопали. Перед началом эксплуатации во вторую бочку засыпаются пластиковые чашечки, на которых живут прожорливые бактерии. Печальна их судьба, всю жизнь дерьмо жрут... Но польза неоспорима. Над землей осталось только два лючка. Высоту их подровняем ближе к концу стройки. 1 Посилання на коментар Поділитися на інших сайтах More sharing options...
Рекомендовані повідомлення
Створіть акаунт або увійдіть у нього для коментування
Ви маєте бути користувачем, щоб залишити коментар
Створити акаунт
Зареєструйтеся для отримання акаунта. Це просто!
Зареєструвати акаунтУвійти
Вже зареєстровані? Увійдіть тут.
Увійти зараз