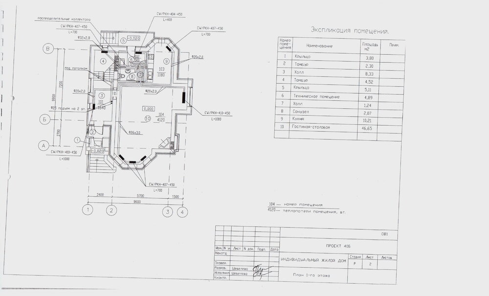
perukar Опубліковано: 10 травня 2012 Поділитись Опубліковано: 10 травня 2012 Ищется поставщик сантехнического оборудования для комплектации коттеджа в киеве. Спецификация (в вложении). Заранее благодарен. Слава. perukar@ua.fm Посилання на коментар Поділитися на інших сайтах More sharing options...
murava Опубліковано: 10 травня 2012 Поділитись Опубліковано: 10 травня 2012 Любопытно следующее: кто эти Изотермы привезет и кто продаст, если затачивалось под Россию... Перепилить под аналоги - это поменять разводку и гидравлику, тоесть это уже тема далеко не тендерная... Во-вторых - спецификация в указанном виде немного некорректна. В-третьих - проект будет требовать доработок, собравши в нарисованном виде, рискуете не запуститься. Если купите по написанному - боюсь констурктор не сойдется и будут лишние запчасти... Посилання на коментар Поділитися на інших сайтах More sharing options...
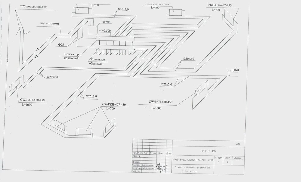
perukar Опубліковано: 10 травня 2012 Автор Поділитись Опубліковано: 10 травня 2012 За изотермами не гонимся. Радиаторы сталь-керми или корадо. Труба полипропилен рехау или тесе. Основное кольцо (гидроколлектор), на каждый этаж по коллектору , насосу + ТП. Поможете укомплектовать? Заранее благодарен. Посилання на коментар Поділитися на інших сайтах More sharing options...
murava Опубліковано: 10 травня 2012 Поділитись Опубліковано: 10 травня 2012 Только если будет четкий список. Ныне существующий просто не годится. Берите монтажника, пусть пишет оный. Посилання на коментар Поділитися на інших сайтах More sharing options...
B.S.V. Опубліковано: 11 травня 2012 Поділитись Опубліковано: 11 травня 2012 В-третьих - проект будет требовать доработок, собравши в нарисованном виде, рискуете не запуститься. Если купите по написанному - боюсь констурктор не сойдется и будут лишние запчасти... 3. Глянь на диаметры-28 стояк, и 26 на три радиатора, аж побежит. Вопрос только на.... 4. Факт. Посилання на коментар Поділитися на інших сайтах More sharing options...
Теплотехник Опубліковано: 12 травня 2012 Поділитись Опубліковано: 12 травня 2012 Ищется поставщик сантехнического оборудования для комплектации коттеджа в киеве. Спецификация (в вложении). Заранее благодарен. Слава. perukar@ua.fm Можем помочь (ссылка устарела)... У Вас типовой проект, который я бы порекомендовал пересчитать... Посилання на коментар Поділитися на інших сайтах More sharing options...
perukar Опубліковано: 15 травня 2012 Автор Поділитись Опубліковано: 15 травня 2012 Только если будет четкий список. Ныне существующий просто не годится. Берите монтажника, пусть пишет оный. Спецификация для просчётов во вложении.ТД_радиаторы, отопление полипропилен.xlsТД_теплый пол.xlsТД_трейтий Этаж_полипропилен.xls Посилання на коментар Поділитися на інших сайтах More sharing options...
vogo Опубліковано: 16 травня 2012 Поділитись Опубліковано: 16 травня 2012 Спецификация для просчётов во вложении. Ограничитель температуры обратного потока RTL DN 15 (1/2) проходной -7 шт.? многовато, на 64 м. кв нужно ставить смесительный узел. Посилання на коментар Поділитися на інших сайтах More sharing options...
Рекомендовані повідомлення
Створіть акаунт або увійдіть у нього для коментування
Ви маєте бути користувачем, щоб залишити коментар
Створити акаунт
Зареєструйтеся для отримання акаунта. Це просто!
Зареєструвати акаунтУвійти
Вже зареєстровані? Увійдіть тут.
Увійти зараз