Korni Опубліковано: 22 травня 2012 Поділитись Опубліковано: 22 травня 2012 А если держать рециркуляцию постоянно включенной, то будут лишние потери - ибо насос=эл.энергия и каждый метр контура, как не утепляй, работает как радиатор Похоже, Вы не представляете алгоритм работы насоса рециркуляции. Поинтересуйтесь на досуге затратами электроэнергии и потерями тепла в трубах. Открыли кран, насос включился стакан воды вытек из крана, а остальные 2.75л возвратились в бойлер по линии рециркуляции - вода горячая пошла почти сразу.Ничем не отличается от режима "без рециркуляционной линии". Ни расход, ни потери, ни скорость. Посилання на коментар Поділитися на інших сайтах More sharing options...
Igor_M Опубліковано: 22 травня 2012 Автор Поділитись Опубліковано: 22 травня 2012 Ну прикиньте - к примеру до кухни 10м трубы Ф20 это выходит кажись 3л воды. Т.е чтобы пошла горячая вода без рециркуляции надо слить 3л воды - это долго. Теперь добавим контур рециркуляции с более мощным насосом, чем обычно. Открыли кран, насос включился стакан воды вытек из крана, а остальные 2.75л возвратились в бойлер по линии рециркуляции - вода горячая пошла почти сразу. А если держать рециркуляцию постоянно включенной, то будут лишние потери - ибо насос=эл.энергия и каждый метр контура, как не утепляй, работает как радиатор (зимой это пофиг, а летом потом тратим эл. энергию на кондиционер, чтобы избавиться от лишнего тепла). Как-то так Похоже тут и в самом деле недопонимание идеи РЕциркуляции. БОЛЕЕ мощный насос, чем ОБЫЧНО ГДЕ? Если мы говорим о системе ГВС от бойлера косвенного нагрева, то там насоса в "обычной" системе нет. Проток идет за счет давления, давление поддерживается гидроаккумулятором (на вводе в дом холодной воды). В той ситуации, что вы пишете, когда "вдруг" при открытии крана включается насос, то он сначала "выдавит" из крана те же 3л воды (из трубы 10м). С какого перепугу она вдруг вернется в бойлер, если есть "ДЫРКА" в виде открытого крана? Вот картинка (одна из - их есть у меня...;)) на которой все понятно вроде бы изложено. Взята отсюда - Система рециркуляции ГВС Там же есть и описательная часть. Думается, это поможет прояснить ситуацию................ PS То, что вы описываете больше похоже на систему ГВС при использовании ДВУХКОНТУРНЫХ котлов. В такой ситуации рециркуляцию вообще через полотенчик лучше не делать, а то на отопление у котла останется немного времени совсем... Посилання на коментар Поділитися на інших сайтах More sharing options...
sov1178 Опубліковано: 22 травня 2012 Поділитись Опубліковано: 22 травня 2012 Похоже, Вы не представляете алгоритм работы насоса рециркуляции. Я этим "алгоритмом" каждый день пользуюсь у родителей ;) Поинтересуйтесь на досуге затратами электроэнергии и потерями тепла в трубах. ОК. Насос 20Вт, потери в трубах 10Вт/м. Допустим линия 10м до крана. 100Вт теплопотерь и 20Вт насос. В сутки выйдет 2.6кВт*ч. За пять "летних" месяцев 400кВт*ч на ветер. Для озабоченных энергосбережением людей это совсем не мало... Ничем не отличается от режима "без рециркуляционной линии". Ни расход, ни потери, ни скорость. Ну, а теперь смотрим картинку: 1. Итак, если система БЕЗ рециркуляции, то она состоит из одной зеленой ветки. Процессы происходящие при открытии крана всем понятны - открыл, спустил остывшую воду, потекла горячая. 2. Если в систему добавили линию рециркуляции (синяя). То, при постоянно работающем насосе все тоже понятно - остывшая вода отправляется в бойлер и ее заменяет горячая. В трубах контура при этом вода с температурой воды в бойлере (в первом приближении) вне зависимости от использования ГВС. Думаю тоже все всем понятно. 3. Теперь добавим датчик открытия крана (датчик протока). Пусть в начальный момент вода в контуре остывшая (насос выключен). Открыли кран, вода начала двигаться по зеленой ветке. Включился насос циркуляции, теперь расход воды в зеленой ветке равен сумме вытекающей из крана и перекачиваемой циркуляционным насосом. В каком варианте горячая вода быстрее дойдет до крана надеюсь теперь всем понятно. О насосе - при обычной системе рециркуляции нет нужды обеспечивать большую скорость воды в контуре, в описанном же варианте нужно как можно быстрее "обновить" воду в контуре при поступлении сигнала. При этом нет нужды держать включенный насос - достаточно, чтобы он прогнал воду по контуру, поэтому обычно у них еще и таймер стоит на насосе. На западе подобные системы называют on demand recirculation. Причем включать насос может не только датчик потока, но и датчик движения, или включение света в ванной и т.п. 2 Посилання на коментар Поділитися на інших сайтах More sharing options...
murava Опубліковано: 22 травня 2012 Поділитись Опубліковано: 22 травня 2012 Ага, попробуйте на on demand recirculation повесить сушки для полотенец и трусов - и поглядим что скажет нам владелец... Посилання на коментар Поділитися на інших сайтах More sharing options...
Korni Опубліковано: 22 травня 2012 Поділитись Опубліковано: 22 травня 2012 ОК. Насос 20Вт, потери в трубах 10Вт/м. Допустим линия 10м до крана. 100Вт теплопотерь и 20Вт насос. В сутки выйдет 2.6кВт*ч. За пять "летних" месяцев 400кВт*ч на ветер. Для озабоченных энергосбережением людей это совсем не мало... Погуглите тогда ещё картинки по терминам "термостат" и "таймер". Ещё раз повторю - не знакомы с алгоритмом работы насоса рециркуляции. 10Вт с метра трубы? Это труднодостижимо... вернее, самый худший вариант монтажа. Посилання на коментар Поділитися на інших сайтах More sharing options...
sov1178 Опубліковано: 22 травня 2012 Поділитись Опубліковано: 22 травня 2012 Погуглите тогда ещё картинки по терминам "термостат" и "таймер". Ещё раз повторю - не знакомы с алгоритмом работы насоса рециркуляции. Вы издеваетесь или как? Откройте же мне тогда тайну сего алгоритма? От того, что Вы посадите насос на таймер уменьшится потребление эл. энергии насосом, но теплопотери в контуре (если существенно не опускать температуру в трубах) не изменятся. Термостат (вроде, как я его в этой теме упомянул - как бы в курсе, что это такое ) уменьшит температуру горячей воды, и, соответственно теплопотери (немного меньше, чем на 50%), но не решает проблемы в принципе. 10Вт с метра трубы? Это труднодостижимо... вернее, самый худший вариант монтажа. www.smng-geophysics.com/page_31.html - там есть табличка с разными вариантами и изолированными тоже Находим строчку "циркуляционные стояки, изолированные" - и смотрим от 9.7Вт/м и более Ага, попробуйте на on demand recirculation повесить сушки для полотенец и трусов - и поглядим что скажет нам владелец... Читаем внимательно: На западе народ, озабоченный энергосбережением включает насос по датчику протока, чтобы не гонять горячую воду по контуру циркуляции (со всеми вытекающими потерями тепла) когда это не нужно (естественно полотенцесушители при такой схеме не ГВС не вешают). 1 Посилання на коментар Поділитися на інших сайтах More sharing options...
murava Опубліковано: 22 травня 2012 Поділитись Опубліковано: 22 травня 2012 ... Читаем внимательно: Извините, был напуган... Посилання на коментар Поділитися на інших сайтах More sharing options...
Сергей 31 Опубліковано: 22 травня 2012 Поділитись Опубліковано: 22 травня 2012 Извините, был напуган... А ты не бойся, мы с тобой. Посилання на коментар Поділитися на інших сайтах More sharing options...
Korni Опубліковано: 22 травня 2012 Поділитись Опубліковано: 22 травня 2012 (змінено) От того, что Вы посадите насос на таймер уменьшится потребление эл. энергии насосом, Совершенно точно. Соответственно, Ваш подсчёт уже будет некорректен В сутки выйдет 2.6кВт*ч. За пять "летних" месяцев 400кВт*ч на ветер Термостат ..... уменьшит температуру горячей воды,Вообще-то, термостат встроенный в циркуляционный насос (или установленный отдельно, но для управления Т4) выполняет другую задачу. Он не уменьшает температуру "...и, соответственно теплопотери...", он её измеряет и даёт команду на насос - выключает его, когда изменились теплопотери линии рециркуляции..... например, прикрутили термоголовку на полотенчике..... и температура Т4 стала пороговой. Добавлено через 1 минуту Находим строчку "циркуляционные стояки, изолированные" Некорректная таблица, ну да ладно.... лень искать. Да, и про 46*С в бойлере - всё не так ...... Может кому будет интересно - Документация для проектирования Buderus "Расчет и подбор баков - водонагревателей" Змінено 22 травня 2012 користувачем Korni Посилання на коментар Поділитися на інших сайтах More sharing options...
Igor_M Опубліковано: 22 травня 2012 Автор Поділитись Опубліковано: 22 травня 2012 На западе подобные системы называют on demand recirculation. Причем включать насос может не только датчик потока, но и датчик движения, или включение света в ванной и т.п. Со светом очень даже замечательно получается. Включил свет, пока добрел до умывальника или душа, а там водичка уже горяченькая течет... А вышел из санузла, свет выключил и насосик отключился...;) Очень пользительная опция получается. 2 Посилання на коментар Поділитися на інших сайтах More sharing options...
sov1178 Опубліковано: 23 травня 2012 Поділитись Опубліковано: 23 травня 2012 Вообще-то, термостат встроенный в циркуляционный насос (или установленный отдельно, но для управления Т4) выполняет другую задачу. Он не уменьшает температуру "...и, соответственно теплопотери...", он её измеряет и даёт команду на насос - выключает его, когда изменились теплопотери линии рециркуляции..... например, прикрутили термоголовку на полотенчике..... и температура Т4 стала пороговой. Если не принимать во внимание полотенцесушитель, как бы мы не игрались с протоком воды, учитывая основное назначение линии рециркуляции поддерживать в контуре горячую воду постоянно теплопотери сильно не изменятся. Ну допустим, включен насос t на входе 60С, на насосе (после кольца) 59С. Путем включения/выключения уменьшаем проток, температурный режим изменится, но ниже 60С/55С ведь уже не положено. Как бы мы не игрались с протоком, но существенно сэкономить можно только путем отключения циркуляции на ночь (или когда все на работе). Но такой вариант не всегда приемлем. Некорректная таблица, ну да ладно.... лень искать. Если брать не утепленную медную трубу, то один метр Ф20 при режиме 60/55/20 даст 170Вт мощности. Так что 10Вт/м для утепленного варианта выглядит вполне нормально... Неоднократно встречал эту цифру в разных источниках, например здесь при расчете принимаются потери линии рециркуляции 10Вт/м (причем у них ГВС 45С) (ссылка устарела) Может кому будет интересно - Документация для проектирования Buderus " Спасибо! Почитаю... Со светом очень даже замечательно получается. Включил свет, пока добрел до умывальника или душа, а там водичка уже горяченькая течет... А вышел из санузла, свет выключил и насосик отключился...;) Оно как бы так, но если добавить в контур кухню, то нужно придумывать еще что-то для нее (датчик движения возле мойки ). 3 Посилання на коментар Поділитися на інших сайтах More sharing options...
Igor_M Опубліковано: 23 травня 2012 Автор Поділитись Опубліковано: 23 травня 2012 Если не принимать во внимание полотенцесушитель, как бы мы не игрались с протоком воды, учитывая основное назначение линии рециркуляции поддерживать в контуре горячую воду постоянно теплопотери сильно не изменятся. Ну допустим, включен насос t на входе 60С, на насосе (после кольца) 59С. Путем включения/выключения уменьшаем проток, температурный режим изменится, но ниже 60С/55С ведь уже не положено. Как бы мы не игрались с протоком, но существенно сэкономить можно только путем отключения циркуляции на ночь (или когда все на работе). Но такой вариант не всегда приемлем. Если все-таки полотенцесушитель задействовать... Это достаточно удобно, хотя наверное и затратно. У меня в квартире один полотенцесушитель от ГВС, второй - от СО (вместо радиатора поставил). Разница летом ощущается...;) Пока видится такое - ставлю комнатный хронотермостат, в котором в т.ч. и управление ГВС. Насос рециркуляции будет включаться в то время, когда в бойлере будет греться вода (в заданных временных диапазонах). НО... насос будет не постоянно работать, а скажем 10мин работа - 20мин пауза (подобрать опытным путем)... Как такая идея? Посилання на коментар Поділитися на інших сайтах More sharing options...
Korni Опубліковано: 23 травня 2012 Поділитись Опубліковано: 23 травня 2012 Пока видится такое - ставлю комнатный хронотермостат, в котором в т.ч. и управление ГВС. Насос рециркуляции будет включаться в то время, когда в бойлере будет греться вода (в заданных временных диапазонах). НО... насос будет не постоянно работать, а скажем 10мин работа - 20мин пауза (подобрать опытным путем)... Бляха-муха... Да купите нормальный котёл с программатором, в котором все эти функции есть ПО УМОЛЧАНИЮ....... 1 Посилання на коментар Поділитися на інших сайтах More sharing options...
murava Опубліковано: 23 травня 2012 Поділитись Опубліковано: 23 травня 2012 Бляха-муха... Э, а помудохаться? Котел-то уже выбран-с... Бакси...Луна... 1 Посилання на коментар Поділитися на інших сайтах More sharing options...
Igor_M Опубліковано: 23 травня 2012 Автор Поділитись Опубліковано: 23 травня 2012 Бляха-муха... Да купите нормальный котёл с программатором, в котором все эти функции есть ПО УМОЛЧАНИЮ....... Пллиз назовите модель... Чтоб и рециркуляция программировалась. Спасибо! Э, а помудохаться? Котел-то уже выбран-с... Бакси...Луна... Да, была такая мысль... с самого начала... Но вот эта их цифровая выносная панель НЕ делает того, что хочется. А переплачивать за девайс, который потом не использовать не вижу большого смысла... Посилання на коментар Поділитися на інших сайтах More sharing options...
romi9999 Опубліковано: 23 травня 2012 Поділитись Опубліковано: 23 травня 2012 (змінено) Пллиз назовите модель... ...А толку.... Вы же здесь с нами, как препод со студентами - будете пытать до тех пор, пока не услышите то, что хотите (то, что для себя уже предопределили) Хотя, в этой теме, дающие ответы далеко не студенты, а вы не профессор.. Змінено 23 травня 2012 користувачем romi9999 Посилання на коментар Поділитися на інших сайтах More sharing options...
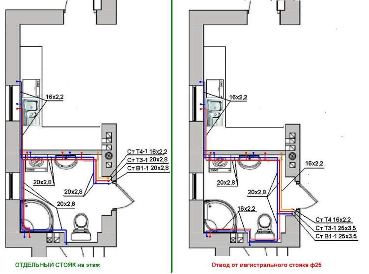
Igor_M Опубліковано: 23 травня 2012 Автор Поділитись Опубліковано: 23 травня 2012 вы начинаетет понимать суть.... Именно такой способ я использую ведя на каждый санузел отдельную трубу и как правило это 20-ка....И дешевле и нет взаисмного влияния двух санузлов подключенных к одному 25-му стояку Сергей, спасибо что "пнули" в этом направлении. В связи с этим перерисовал схему разводки 1-го этажа. Слева - новый вариант (с отдельным "стояком", справа - предыдущая версия). Так будет лучше? Хватит ли вообще 20-й магистральной трубы при таком "скоплении" потребителей? Допустим по холодной воде может одновременно набираться вода в бачок унитаза, включен душ и в то же время работает стиралка (или посудомойка)? Подскажите с практической точки зрения - не будет ли "скачков" температуры в душе? СПАСИБО! Посилання на коментар Поділитися на інших сайтах More sharing options...
Сергей_84 Опубліковано: 23 травня 2012 Поділитись Опубліковано: 23 травня 2012 Так будет лучше? Хватит ли вообще 20-й магистральной трубы при таком "скоплении" потребителей? Допустим по холодной воде может одновременно набираться вода в бачок унитаза, включен душ и в то же время работает стиралка (или посудомойка)? Подскажите с практической точки зрения - не будет ли "скачков" температуры в душе? СПАСИБО! Кухню я практически всегда запитываю отдельно.....16 трубой достаточно...туда же и посудомойку... При мытье в душе если слить воду в унитазе в этом же санузле, то скачек температуры может быть..(причем это не зависит от того будетте ли вы делать стояк 25 диаметр ана оба этажа или по 20 стояку на каждый этаж). Но как правило такой режим редкий ввиду наличия двух санузлов, поэтому я бы его особо не рассматривал... Работа стиралки тоже может влиять, но не так сильно и длительно 1 Посилання на коментар Поділитися на інших сайтах More sharing options...
Igor_M Опубліковано: 24 травня 2012 Автор Поділитись Опубліковано: 24 травня 2012 Кухню я практически всегда запитываю отдельно.....16 трубой достаточно...туда же и посудомойку... При мытье в душе если слить воду в унитазе в этом же санузле, то скачек температуры может быть..(причем это не зависит от того будетте ли вы делать стояк 25 диаметр ана оба этажа или по 20 стояку на каждый этаж). Но как правило такой режим редкийввиду наличия двух санузлов , поэтому я бы его особо не рассматривал... Работа стиралки тоже может влиять, но не так сильно и длительно Т.е. ситуация с перепадами температуры в душе типичная? У меня в квартире два санузла. Но это же неудобно "ходить" в один, а потом перебегать в другой, чтобы принять душ...А в доме саузлы вообще на разных этажах. Ежедневный утренний "обряд" заключается в том, что я "сливаю воду", а потом тут же захожу в душ. Настроив водичку "по вкусу", через некоторое время приходится перенастраивать, поскольку она становится холоднее... То же самое и с умывальником. Приходится сильнее крутить рычаг вправо, чтоб увеличить подачу холодной воды... И если с душем я замаялся и теперь просто жду минуту, пока бачок наберется, то с умывальником хочется сразу же помыть руки... В квартире все разведено 16-й трубой (делали 10 лет назад). Хочется в доме решить эту проблему. Если мы проведем 20-й трубой до душа (на картинке слева), а потом продлим до унитаза 16-й, то это поможет? Посилання на коментар Поділитися на інших сайтах More sharing options...
Korni Опубліковано: 24 травня 2012 Поділитись Опубліковано: 24 травня 2012 Хочется в доме решить эту проблему. Может-поможет: Как правильно определять нагрузку на горячее водоснабжение? К ВОПРОСУ ВЫБОРА РАСЧЁТНЫХ ТЕМПЕРАТУР СИСТЕМ НЕЗАВИСИМОГО ОТОПЛЕНИЯ И ГОРЯЧЕГО ВОДОСНАБЖЕНИЯ Справочник по сантехнике Проектирование систем холодного и горячего водоснабжения 3 Посилання на коментар Поділитися на інших сайтах More sharing options...
Сергей_84 Опубліковано: 24 травня 2012 Поділитись Опубліковано: 24 травня 2012 Т.е. ситуация с перепадами температуры в душе типичная? У меня в квартире два санузла. Но это же неудобно "ходить" в один, а потом перебегать в другой, чтобы принять душ...А в доме саузлы вообще на разных этажах. Ежедневный утренний "обряд" заключается в том, что я "сливаю воду", а потом тут же захожу в душ. Настроив водичку "по вкусу", через некоторое время приходится перенастраивать, поскольку она становится холоднее... То же самое и с умывальником. Приходится сильнее крутить рычаг вправо, чтоб увеличить подачу холодной воды... И если с душем я замаялся и теперь просто жду минуту, пока бачок наберется, то с умывальником хочется сразу же помыть руки... В квартире все разведено 16-й трубой (делали 10 лет назад). Хочется в доме решить эту проблему. Если мы проведем 20-й трубой до душа (на картинке слева), а потом продлим до унитаза 16-й, то это поможет? поможет установка термосмесителя на душ... расчеты показывают, что при нагрузке Душ+унитаз даже на 16 трубе падение давления практически не отличается от падения давления на 20 трубе.... Обсуждаемый момент чаще всего проявляется на границе включения насоса ( окло 1,5 атм)...Если нижнюю границу довести до 2-2,5 то разница практически не будет заметна Посилання на коментар Поділитися на інших сайтах More sharing options...
Igor_M Опубліковано: 24 травня 2012 Автор Поділитись Опубліковано: 24 травня 2012 Может-поможет: ... т.е. "теоретические... основы..." У нас, украинцев, поговорка была в КПИ по поводу данного предмета "То Є, то нема..." По сути повторения пройденного делаю собственное умозаключение по означенной проблеме, то бишь "гулянию" температуры в душе. 1) Нужно ставить в душевой кабине смеситель с термостатом (который втрое дороже обычного, примерно 1,5-2 тыс грн) 2) Делать коллекторную разводку водоснабжения (что тоже дороже тройниковой). По крайней мере "развести" по разным веткам тех потребителей, которые могут работать одновременно и их взаимное влияние вызывает дискомфорт... Если есть еще третий вариант, был бы очень признателен за его описание. Или по крайней мере критические замечания по изложенным (не совсем интуитивно;)) методам решения поставленной задачи. Спасибо! Посилання на коментар Поділитися на інших сайтах More sharing options...
Marshal Опубліковано: 25 травня 2012 Поділитись Опубліковано: 25 травня 2012 Надеюсь автор темы не сильно против, но у меня тут к нашим форумным гуру возник вопрос. А какой, собственно, смысл в переходах с 20-й на 16-ю трубу ? Что-то мне подсказывает, что экономия будет "копеечная" на общем фоне затрат, а гемор ещё тот. Не, ну ладно если ты профессионально занимаешься монтажом, и у тебя в багажнике постоянно катаются бухты как 20-й, так и 16-й трубы. Но если тебе нужно её покупать, а потом с остатками делать непонятно-что... Стоит ли заморачиваться ? Есть-ли какой-то в этом смысл с точки зрения гидравлики ? Посилання на коментар Поділитися на інших сайтах More sharing options...
murava Опубліковано: 25 травня 2012 Поділитись Опубліковано: 25 травня 2012 ... Стоит ли заморачиваться ? ... Ну я так и не заморачиваюсь - все в один диаметр 1 Посилання на коментар Поділитися на інших сайтах More sharing options...
ts3 Опубліковано: 25 травня 2012 Поділитись Опубліковано: 25 травня 2012 Надеюсь автор темы не сильно против, но у меня тут к нашим форумным гуру возник вопрос. А какой, собственно, смысл в переходах с 20-й на 16-ю трубу ? Что-то мне подсказывает, что экономия будет "копеечная" на общем фоне затрат, а гемор ещё тот. Не, ну ладно если ты профессионально занимаешься монтажом, и у тебя в багажнике постоянно катаются бухты как 20-й, так и 16-й трубы. Но если тебе нужно её покупать, а потом с остатками делать непонятно-что... Стоит ли заморачиваться ? Есть-ли какой-то в этом смысл с точки зрения гидравлики ? Ну, если для системы ТЕСЕ, то разница в цене между 16 и 20: гильза - 2грн труба за м.п. - 5грн а труб то этих, а тем более гильз на водоснабжение ТЬМА уходит! 1 Посилання на коментар Поділитися на інших сайтах More sharing options...
Рекомендовані повідомлення
Створіть акаунт або увійдіть у нього для коментування
Ви маєте бути користувачем, щоб залишити коментар
Створити акаунт
Зареєструйтеся для отримання акаунта. Це просто!
Зареєструвати акаунтУвійти
Вже зареєстровані? Увійдіть тут.
Увійти зараз