lim Опубліковано: 17 травня 2012 Поділитись Опубліковано: 17 травня 2012 помогите определится в существующем дому полностью переделываю крышу и хочу заложить трубу для будущего камина камин будет в комнате около 40 квадратов около внутренней стены насколько я понимаю сейчас надо сделать фундамент и трубу а камин можно пристроить позже камин кирпичный без чугунных топок Посилання на коментар Поділитися на інших сайтах More sharing options...
Лелик! Опубліковано: 18 травня 2012 Поділитись Опубліковано: 18 травня 2012 помогите определится в существующем дому полностью переделываю крышу и хочу заложить трубу для будущего камина камин будет в комнате около 40 квадратов около внутренней стены насколько я понимаю сейчас надо сделать фундамент и трубу а камин можно пристроить позже камин кирпичный без чугунных топок правильно понимаете,кирпичного дымохода 27смх27см должно хватить(внутрянку зашвабровать, и не пустошовка)с последующей гильзовкой правильной нержавейкой. Скажите, у Вас перекрытие (потолок в комнате) ж.б.плита? Посилання на коментар Поділитися на інших сайтах More sharing options...
Playmaker Опубліковано: 18 травня 2012 Поділитись Опубліковано: 18 травня 2012 правильно понимаете,кирпичного дымохода 27смх27см должно хватить(внутрянку зашвабровать, и не пустошовка)с последующей гильзовкой правильной нержавейкой. Скажите, у Вас перекрытие (потолок в комнате) ж.б.плита? Смысл швабровать если гильзовка будет? 1 Посилання на коментар Поділитися на інших сайтах More sharing options...
SON Опубліковано: 18 травня 2012 Поділитись Опубліковано: 18 травня 2012 кирпичного дымохода 27смх27см должно хватить Хватить для чего? Посилання на коментар Поділитися на інших сайтах More sharing options...
Лелик! Опубліковано: 18 травня 2012 Поділитись Опубліковано: 18 травня 2012 Смысл швабровать если гильзовка будет? Во первых-а вдруг не будет. во вторых-а вдруг гильзовать в конце будут, труба цепляться будет, гнуться. в третьих-так положенно!!! Добавлено через 1 минуту Хватить для чего? для трубы из НЖ,(200-250__) Посилання на коментар Поділитися на інших сайтах More sharing options...
SON Опубліковано: 18 травня 2012 Поділитись Опубліковано: 18 травня 2012 для трубы из НЖ,(200-250__) Так на кой мне эта труба сама по себе. А вдруг я хочу камин с топкой 0,8м2 или больше, что мне потом с этой трубой делать? Посилання на коментар Поділитися на інших сайтах More sharing options...
Лелик! Опубліковано: 18 травня 2012 Поділитись Опубліковано: 18 травня 2012 (змінено) Так на кой мне эта труба сама по себе. А вдруг я хочу камин с топкой 0,8м2 или больше, что мне потом с этой трубой делать? Вы правы, нужно знать какая топка будет. Но , например топка 60х70, глубиной 44, с высотой дымохода от пода до выхода из трубы 5м 200 хватает, чтоб не дымило. Скажите высоту потолка, и размеры топки. Змінено 18 травня 2012 користувачем Лелик! Посилання на коментар Поділитися на інших сайтах More sharing options...
usanin_n Опубліковано: 18 травня 2012 Поділитись Опубліковано: 18 травня 2012 помогите определится в существующем дому полностью переделываю крышу и хочу заложить трубу для будущего камина камин будет в комнате около 40 квадратов около внутренней стены насколько я понимаю сейчас надо сделать фундамент и трубу а камин можно пристроить позже камин кирпичный без чугунных топок Для вашей площади в 40 м2 можно соорудить камин с габаритами портала 95х71 см (ширина и высота). Это просто большой камин. Почти такой портал вот на этой работе www.stroimdom.com.ua/forum/album.php?albumid=517&pictureid=29363 Для такого сечения портала нужен дымоход в 27х27 см (с учетом швов). Работа камина будет стабильной. Но нужно знать высоты конька крыши, конфигурацию крыши, т.к. это может внестикориективы в высоту трубы и соответственно высота может дать поправки на сечение дымохода. При низкой трубе можно будет увеличить сечение до 39х27 см (с учетом швов). Это все относится к трубам КИРПИЧНЫМ без гильзовки. Для круглых труб просто подбираем соответствующее сечение 2 Посилання на коментар Поділитися на інших сайтах More sharing options...
Algebra Опубліковано: 18 травня 2012 Поділитись Опубліковано: 18 травня 2012 Высота потолка 2,65 топка 595х500х440 Какой должен быть дымоход? Делаю вентканалы и дымоход одним махом. Нет на чертеже размеров. А продавец каминов прислал расчеты без ТУ. Вот теперь думай, на какой высоте делать дымоход :): Посилання на коментар Поділитися на інших сайтах More sharing options...
SON Опубліковано: 18 травня 2012 Поділитись Опубліковано: 18 травня 2012 Вот теперь думай, на какой высоте делать дымоход :): Вот тут выкладывал www.stroimdom.com.ua/forum/showthread.php?t=97458, п. №6. но к мнению печников стоит прислушаться. 1 Посилання на коментар Поділитися на інших сайтах More sharing options...
Лелик! Опубліковано: 19 травня 2012 Поділитись Опубліковано: 19 травня 2012 Высота потолка 2,65 топка 595х500х440 Какой должен быть дымоход? Делаю вентканалы и дымоход одним махом. Нет на чертеже размеров. А продавец каминов прислал расчеты без ТУ. Вот теперь думай, на какой высоте делать дымоход :): высота потолка, эт хорошо, а квадратура комнаты?все ли двери в комнате будут? будут ли просто дверные проемы без дверей? Продавец каминов сказал.... а какой камин вы будете покупать???с закрытой топкой??если да, то ориентируйтесь на трубу того диаметра, который выходит из топки, если открытый камин, то нужно посчитать чуток. Добавлено через 4 минуты Для вашей площади в 40 м2 можно соорудить камин с габаритами портала 95х71 см (ширина и высота). Это просто большой камин. Почти такой портал вот на этой работе www.stroimdom.com.ua/forum/album.php?albumid=517&pictureid=29363 Для такого сечения портала нужен дымоход в 27х27 см (с учетом швов). Работа камина будет стабильной. Но нужно знать высоты конька крыши, конфигурацию крыши, т.к. это может внестикориективы в высоту трубы и соответственно высота может дать поправки на сечение дымохода. При низкой трубе можно будет увеличить сечение до 39х27 см (с учетом швов). Это все относится к трубам КИРПИЧНЫМ без гильзовки. Для круглых труб просто подбираем соответствующее сечение Под такую :D"топочку":D нужно будет приточку дать хорошую, а то воздух разрядиться за считаные минуты, и там хоть кольцо для колодца ставь, а дымить будет. как то давненько сам на этом прокололся 1 Посилання на коментар Поділитися на інших сайтах More sharing options...
usanin_n Опубліковано: 19 травня 2012 Поділитись Опубліковано: 19 травня 2012 Под такую :D"топочку":D нужно будет приточку дать хорошую, а то воздух разрядиться за считаные минуты, и там хоть кольцо для колодца ставь, а дымить будет. как то давненько сам на этом прокололся Так надо с умом делать Посилання на коментар Поділитися на інших сайтах More sharing options...
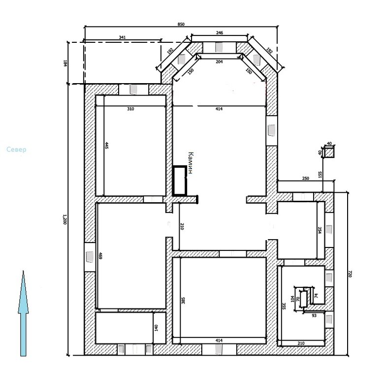
Vlana Опубліковано: 19 травня 2012 Поділитись Опубліковано: 19 травня 2012 помогите определится в существующем дому полностью переделываю крышу и хочу заложить трубу для будущего камина Подписываюсь под каждым словом.Cитуация один в один.Необходимо определиться с подводом воздуха и дымоходом. Разница в том, что планирую ставить закрытую топку(если все сложиться - JOTUL I 570). Также надо от камина разводку теплого воздуха по другим комнатам сделать. Камин будем ставить в гостиной, практически в центре дома. Гостиная расширяется за счет коридора (увеличивается проём и обьединяется пространство) и эркера с лестницей на мансарду. Планировка мансарды практически повторяет первый этаж. Хотелось бы получить профессиональные советы, какой дымоход можно сделать и можно ли подвести воздух с южной стороны комнаты. В нашей местности (Киевская обл.) преобладают западные и северо-западные ветры. Перекрытие и пол дома - дерево. Спасибо за советы и ,возможно,помощь в обустройстве камина. Посилання на коментар Поділитися на інших сайтах More sharing options...
Dima_dimohod Опубліковано: 20 травня 2012 Поділитись Опубліковано: 20 травня 2012 Подписываюсь под каждым словом.Cитуация один в один.Необходимо определиться с подводом воздуха и дымоходом. Разница в том, что планирую ставить закрытую топку(если все сложиться - JOTUL I 570). Также надо от камина разводку теплого воздуха по другим комнатам сделать. Камин будем ставить в гостиной, практически в центре дома. Гостиная расширяется за счет коридора (увеличивается проём и обьединяется пространство) и эркера с лестницей на мансарду. Планировка мансарды практически повторяет первый этаж. [ATTACH]187933[/ATTACH] Хотелось бы получить профессиональные советы, какой дымоход можно сделать и можно ли подвести воздух с южной стороны комнаты. В нашей местности (Киевская обл.) преобладают западные и северо-западные ветры. Перекрытие и пол дома - дерево. Спасибо за советы и ,возможно,помощь в обустройстве камина. Если будет Jotul I570, то диаметр дымохода должен быть 200мм, подвод воздуха - 100мм или эквивалент в прямоугольном сечении (50*150, например). Можно и желательно с южной стороны - меньше снега зимой. Разводку можно организовать в близлежащие смежные комнаты. Посилання на коментар Поділитися на інших сайтах More sharing options...
Vlana Опубліковано: 20 травня 2012 Поділитись Опубліковано: 20 травня 2012 Спасибо,что обратили на меня внимание. Можно ещё поспрашиваю? Я не зря указала,что у нас преобладают северо-западные и северные ветра. Меня смутила вот эта картинка, а не будет ли в камине обратная тяга при сильном ветре. Или я не правильно поняла физику процесса? По сечению дымохода все понятно. А вот из чего лучше всего его сделать в реконструируемом доме? И еще маленький вопросик - какой фундамент необходимо подготовить под такой камин? Посилання на коментар Поділитися на інших сайтах More sharing options...
SON Опубліковано: 20 травня 2012 Поділитись Опубліковано: 20 травня 2012 Меня смутила вот эта картинка, а не будет ли в камине обратная тяга при сильном ветре. Если сделаете по этой картинке, то не будет. 1 Посилання на коментар Поділитися на інших сайтах More sharing options...
armail Опубліковано: 20 травня 2012 Поділитись Опубліковано: 20 травня 2012 В проекте запланирован квадратный дымоход. 140х270 мм. Хочу каминную топку, По какому принципу моё сечение можно пересчитать на круглое топки (просто по площади или есть какието коефициенты)? Дымоход кирпичный гильзование только в конце 2.5м - коробом из нержавейки. Посилання на коментар Поділитися на інших сайтах More sharing options...
Dima_dimohod Опубліковано: 20 травня 2012 Поділитись Опубліковано: 20 травня 2012 Спасибо,что обратили на меня внимание. Можно ещё поспрашиваю? Я не зря указала,что у нас преобладают северо-западные и северные ветра. Меня смутила вот эта картинка, а не будет ли в камине обратная тяга при сильном ветре. [ATTACH]187988[/ATTACH] Или я не правильно поняла физику процесса? По сечению дымохода все понятно. А вот из чего лучше всего его сделать в реконструируемом доме? И еще маленький вопросик - какой фундамент необходимо подготовить под такой камин? Собственно, руководствуйтесь схемой, которую выложил SON. Подготовьте фундамент толщиной не менее 10см. Добавлено через 8 минут В проекте запланирован квадратный дымоход. 140х270 мм. Хочу каминную топку, По какому принципу моё сечение можно пересчитать на круглое топки (просто по площади или есть какието коефициенты)? Дымоход кирпичный гильзование только в конце 2.5м - коробом из нержавейки. Максимальный эквивалентный диаметр 180мм. Гильзование только в конце канала толку не даст - или гильзуйте весь канал или не гильзуйте вообще! Посилання на коментар Поділитися на інших сайтах More sharing options...
lim Опубліковано: 20 травня 2012 Автор Поділитись Опубліковано: 20 травня 2012 перекрытие у меня деревянное до конька 8 меторв так подскажите схему чтоб определиться с размерами фундамента и как разделить процес посторойки на этапы камин отдельно от трубы Посилання на коментар Поділитися на інших сайтах More sharing options...
lim Опубліковано: 22 травня 2012 Автор Поділитись Опубліковано: 22 травня 2012 дайте совет где почитать про подготовку к камину Посилання на коментар Поділитися на інших сайтах More sharing options...
usanin_n Опубліковано: 22 травня 2012 Поділитись Опубліковано: 22 травня 2012 так подскажите схему чтоб определиться с размерами фундамента и как разделить процес посторойки на этапы камин отдельно от трубы дайте совет где почитать про подготовку к камину Связываетесь с мастером, которого планируете привлечь к работе и консультируетесь с ним на всех этапах строительства Или читаете книги по печному делу и пользуетесь ГУГЛОМ. хотя одно другому не мешает Посилання на коментар Поділитися на інших сайтах More sharing options...
Лелик! Опубліковано: 24 травня 2012 Поділитись Опубліковано: 24 травня 2012 перекрытие у меня деревянное до конька 8 меторв так подскажите схему чтоб определиться с размерами фундамента и как разделить процес посторойки на этапы камин отдельно от трубы Вы можете ответить на все вопросы? 1. высота потолка в каминной комнате? 2.будут ли в этой комнате не закрывающиеся проемы или двери? 3.примерно какого размера, Вы хотите топку(высота, ширина, глубина)? 4. Квадратуру мы знаем. 5. высота до конька 8 метров-это от куда? от пола первго этажа? Когда все данные будут, тогда и скажем Вам какого сечения нужен дымоход и какой фундамент заливать! Посилання на коментар Поділитися на інших сайтах More sharing options...
lim Опубліковано: 24 травня 2012 Автор Поділитись Опубліковано: 24 травня 2012 1. высота потолка в каминной комнате? 2.будут ли в этой комнате не закрывающиеся проемы или двери? 3.примерно какого размера, Вы хотите топку(высота, ширина, глубина)? 4. Квадратуру мы знаем. 5. высота до конька 8 метров-это от куда? от пола первго этажа? 1. 2.8 м. 2. будут двери в коридор(площадь 8 квадратов) которые будут в 99% открыты также будет лестница на 2 этаж и там тоже коридор такой же площадью 3. тут не знаю, нужны Ваши советы, напомню топка открытая (не чугун) 4. пересмотрел план 38 квадратов 5. да от пола 1 этажа мне бы где найти описание постройки и примеры честно говоря много гуглил но толковую информация найти не могу да и местных мастеров проверять надо тут лучше на форуме найти правильную конструкция и уже потом искать тех которые будут способны ее реализовать Посилання на коментар Поділитися на інших сайтах More sharing options...
usanin_n Опубліковано: 24 травня 2012 Поділитись Опубліковано: 24 травня 2012 1. 2.8 м. 2. будут двери в коридор(площадь 8 квадратов) которые будут в 99% открыты также будет лестница на 2 этаж и там тоже коридор такой же площадью 3. тут не знаю, нужны Ваши советы, напомню топка открытая (не чугун) 4. пересмотрел план 38 квадратов 5. да от пола 1 этажа мне бы где найти описание постройки и примеры честно говоря много гуглил но толковую информация найти не могу да и местных мастеров проверять надо тут лучше на форуме найти правильную конструкция и уже потом искать тех которые будут способны ее реализовать Вы хотите говорить своим исполнителям КАК и ЧТО делать? Проще найти хорошего исполнителя и начать с ним сотрудничать на всех этапах строительства. Он вас под ваш проект сделает все расчеты, какие необходимо 1 Посилання на коментар Поділитися на інших сайтах More sharing options...
ivan_saveliev Опубліковано: 24 травня 2012 Поділитись Опубліковано: 24 травня 2012 Когда все данные будут, тогда и скажем Вам какого сечения нужен дымоход и какой фундамент заливать! Насколько мне не изменяет память, то расчет фундамента пляшет от размера и веса топки камина. Посилання на коментар Поділитися на інших сайтах More sharing options...
Рекомендовані повідомлення
Створіть акаунт або увійдіть у нього для коментування
Ви маєте бути користувачем, щоб залишити коментар
Створити акаунт
Зареєструйтеся для отримання акаунта. Це просто!
Зареєструвати акаунтУвійти
Вже зареєстровані? Увійдіть тут.
Увійти зараз