Юлия_М Опубліковано: 1 жовтня 2008 Поділитись Опубліковано: 1 жовтня 2008 Коллеги самостройщики, в вашем полку прибыло! мы запустили проект 30 августа - начало "расчистки" участка. фундамент залили 24 сентября. участок находится на острове Водников, рядом с о.Жуков. почва - намывной песок, вода на уровне 2.2 - 2.8. газа нет, электричество по 40 коп квт. почитали немало форумов и просто всякой интернетины, остановились на термодоме. учитывая, что с участка шикарный вид на всякие заливы и яхт-клубы (с высоты 4 метра), решили делать плоскую эксплуатируемую кровлю для смотровой площадки. прониклись идеей "клифф-хаус" - делаем на юге стеклянную стену, это будет гостиная. короче, экспериментируем почти во всем. а иначе неинтересно. котлован 15Х15, глубина 2.75 - специально до уровня воды, чтобы уложить контур телового насоса, - опять же, новые технологии. коробку нам делает бригада Андрея Леня (АндрЛен), - мы видели их некоторые объекты. один наблюдали со стадии заливки плиты на всех этапах. понравилось. надеюсь, у нас тоже все будет супер, тогда окончательно выражу свое мнение. пока все путем - если интересует, можно смотреть и "щупать". в смысле коробку 1 Посилання на коментар Поділитися на інших сайтах More sharing options...
levoved Опубліковано: 2 жовтня 2008 Поділитись Опубліковано: 2 жовтня 2008 А проект какой? В смысле продемонстрируйте. Посилання на коментар Поділитися на інших сайтах More sharing options...
Юлия_М Опубліковано: 2 жовтня 2008 Автор Поділитись Опубліковано: 2 жовтня 2008 А проект какой? В смысле продемонстрируйте. обовъязково мы его сами придумали и воплощаем. конечно, не без консультаций с отдельными специалистами по инженерии - бассейн, вентиляция, отопление. но основная концепция разработана мужем. спецы похвалили. так что представим, не без опасения быть раскритикованными, - на форуме народ посерьезнее тех спецов) Посилання на коментар Поділитися на інших сайтах More sharing options...
Евгения Опубліковано: 2 жовтня 2008 Поділитись Опубліковано: 2 жовтня 2008 Вот скоро свенсен придет, обсудит. Офф. С початком вас, я ,конечно,представляла большой котлован, но мое живое воображение не смогло нарисовать его в полной мере! Посилання на коментар Поділитися на інших сайтах More sharing options...
Юлия_М Опубліковано: 3 жовтня 2008 Автор Поділитись Опубліковано: 3 жовтня 2008 (змінено) Вот скоро свенсен придет, обсудит. Офф. С початком вас, я ,конечно,представляла большой котлован, но мое живое воображение не смогло нарисовать его в полной мере! разве после такой "пожар"ки шашлыка ты могла ожидать меньшего размаха? Змінено 3 жовтня 2008 користувачем Юлия_М Посилання на коментар Поділитися на інших сайтах More sharing options...
Игорь_Дн Опубліковано: 4 жовтня 2008 Поділитись Опубліковано: 4 жовтня 2008 А почему разный материал на подвал (цоколь) и надземные стены? Как планируете изолировать пенопласт от земли? Посилання на коментар Поділитися на інших сайтах More sharing options...
Юлия_М Опубліковано: 7 жовтня 2008 Автор Поділитись Опубліковано: 7 жовтня 2008 А почему разный материал на подвал (цоколь) и надземные стены? Как планируете изолировать пенопласт от земли? материал одинаковый. просто на цоколе разборные блоки, как раз для того, чтобы снимать пенопласт с бетона и делать гидроизоляционное покрытие. какое - не решили. хотим сперва посмотреть как будет вести себя наш супер-бетон с супер-добавками изоматовскими. заполним чашу бассейна водой и понаблюдаем, - может спец.бетона с добавками достаточно... Посилання на коментар Поділитися на інших сайтах More sharing options...
Юлия_М Опубліковано: 13 жовтня 2008 Автор Поділитись Опубліковано: 13 жовтня 2008 (змінено) пенопласт, как советовали нам специалисты из "Валькирия", мы не стали снимать. обрабатываем его гидроизол.смесью на основе битумной эмульсии и эластификатора (см.картинки) офтоп. по просьбе Андрея даю уточнение по первому пОсту этой темы, что его фамилия на русском пишется не "Лень", как я указала, а "Лэнь", как и произносится на укр. действительно важно, ИМХО. ведь "лень" на русском не очень-то хорошая фамилия для подрядчика и он точно такой фамилии не соответствует Змінено 13 жовтня 2008 користувачем Юлия_М Посилання на коментар Поділитися на інших сайтах More sharing options...
Alexander Pryakha Опубліковано: 13 жовтня 2008 Поділитись Опубліковано: 13 жовтня 2008 (змінено) котлован 15Х15, глубина 2.75 - специально до уровня воды, чтобы уложить контур телового насоса, - опять же, новые технологии. коробку нам делает бригада Андрея Леня (АндрЛен), - мы видели их некоторые объекты. один наблюдали со стадии заливки плиты на всех этапах. понравилось. Не скажу, что большая глубина подвала, но довольно приличная - 2,75м. На бетонные стены толщиной 150мм будет оказывать горизонтальное давление грунт. Давление на глубине 1м - порядка 1600кг/м2, на глубине 2м - около 3т/м2, возле плиты фундамента - 4,0 т/м2. Довольно приличная распределенная нагрузка. Армировать стену нужно с двух сторон (внутри и снаружи) вертикальными арматурными стержнями (как на рисунке). Эти стержни должны воспринимать изгиб (изгибающий момент). Нужно ставить и горизонтальные стержни. А товарищ Лэнь поставил арматуру всередине стены (в нулевой зоне) - где она не нужна вовсе.. Причем шаг установленной арматуры очень редкий. КТо интересно принял такое проектное решение - при такой глубине подвала? Стоит добавить что внутренние стены дома служат контрфорсами - упорами, они не дают стене деформироваться вовнутрь под действием давления грунта. Также упором служит и горизонтальный диск перекрытия (не панели). Что за перекрытие? Покажите пожалуйста планировочное решение подвала. Грунт я смотрю пока не засыпали. Это хорошо. Песок в качестве засыпки - лучший грунт. Змінено 13 жовтня 2008 користувачем Alexander Pryakha Посилання на коментар Поділитися на інших сайтах More sharing options...
Наталья Опубліковано: 14 жовтня 2008 Поділитись Опубліковано: 14 жовтня 2008 На сколько куб бетона с такими добавками дороже?Добавляли сами или можно заказать и привезут готовый в миксере?У нас грунтовые воды высоко и тоже при заливке плиты думаем что то добавить,у кого бы проконсультироваться?Заливать плиту планируем через несколько дней. Посилання на коментар Поділитися на інших сайтах More sharing options...
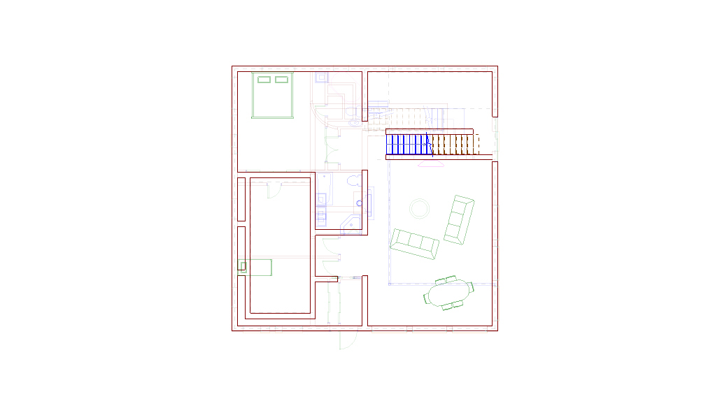
Юлия_М Опубліковано: 14 жовтня 2008 Автор Поділитись Опубліковано: 14 жовтня 2008 (змінено) Не скажу, что большая глубина подвала, но довольно приличная - 2,75м. Что за перекрытие? Покажите пожалуйста планировочное решение подвала. Грунт я смотрю пока не засыпали. Это хорошо. Песок в качестве засыпки - лучший грунт. с армированием все нормально. вы видите фото, где блоки не заполнены бетоном. а шаг такой, как и видится. перекрытие монолитный железобетон, наподобие "терива". в бетон добавлялся пластификатор. вот подвал. кстати, а вы знаете как можно подсчитать давление, которое выдержат стены при определеном армирование, т.е. от обратного. нужно для бассейна, чтобы перепроверить Змінено 14 жовтня 2008 користувачем Юлия_М Посилання на коментар Поділитися на інших сайтах More sharing options...
Юлия_М Опубліковано: 14 жовтня 2008 Автор Поділитись Опубліковано: 14 жовтня 2008 (змінено) На сколько куб бетона с такими добавками дороже?Добавляли сами или можно заказать и привезут готовый в миксере?У нас грунтовые воды высоко и тоже при заливке плиты думаем что то добавить,у кого бы проконсультироваться?Заливать плиту планируем через несколько дней. бетон брали у ковальской, сразу с добавками. насчет добавок спец Пропеллер. у нас вышло 49.5 кубов 43000 грн. с доставкой Змінено 14 жовтня 2008 користувачем Юлия_М Посилання на коментар Поділитися на інших сайтах More sharing options...
pryaniki Опубліковано: 15 жовтня 2008 Поділитись Опубліковано: 15 жовтня 2008 Коллеги самостройщики, в вашем полку прибыло! мы запустили проект 30 августа - начало "расчистки" участка. фундамент залили 24 сентября. участок находится на острове Водников, рядом с о.Жуков. почва - намывной песок, вода на уровне 2.2 - 2.8. газа нет, электричество по 40 коп квт. почитали немало форумов и просто всякой интернетины, остановились на термодоме. учитывая, что с участка шикарный вид на всякие заливы и яхт-клубы (с высоты 4 метра), решили делать плоскую эксплуатируемую кровлю для смотровой площадки. прониклись идеей "клифф-хаус" - делаем на юге стеклянную стену, это будет гостиная. короче, экспериментируем почти во всем. а иначе неинтересно. котлован 15Х15, глубина 2.75 - специально до уровня воды, чтобы уложить контур телового насоса, - опять же, новые технологии. коробку нам делает бригада Андрея Леня (АндрЛен), - мы видели их некоторые объекты. один наблюдали со стадии заливки плиты на всех этапах. понравилось. надеюсь, у нас тоже все будет супер, тогда окончательно выражу свое мнение. пока все путем - если интересует, можно смотреть и "щупать". в смысле коробку Вы упоминали что собираетесь делать стеклянную стену в доме. С поставщиком определились данной стены. Почему спрашиваю, так как сам строю проект у которого больша часть стенн в гостинной, столовой стеклянная. Был на выставке нашел только двух (Одесситы и Эстонцы). Посилання на коментар Поділитися на інших сайтах More sharing options...
Юлия_М Опубліковано: 16 жовтня 2008 Автор Поділитись Опубліковано: 16 жовтня 2008 Вы упоминали что собираетесь делать стеклянную стену в доме. С поставщиком определились данной стены. Почему спрашиваю, так как сам строю проект у которого больша часть стенн в гостинной, столовой стеклянная. Был на выставке нашел только двух (Одесситы и Эстонцы). на самом деле стена выглядит вот так. нужно же было и армировать как то. профили будут аллюминивые, металопластиковые конструкции не выдержат, пришлось бы делить. фирм, кто монтрирует, достаточно. что касается стклянной стены - один дизайнер посоветовал сделать стекло снаружи, чтоб смотрелось цельным, но я не хочу. меня полностью устраивает данный вариант. а у вас второй свет будет или нет? Посилання на коментар Поділитися на інших сайтах More sharing options...
Alexander Pryakha Опубліковано: 16 жовтня 2008 Поділитись Опубліковано: 16 жовтня 2008 (змінено) с армированием все нормально. вы видите фото, где блоки не заполнены бетоном. а шаг такой, как и видится. Это кто такое утверждает? Помоему не совсем нормально. Вы невнимательно читали мой предыдущий пост. Армировать такую стеночку надо стержнями ф12 шагом 250 (в каждой ячейке термоблока) с двух сторон. Это типа - минимальное армирование в данном случае. профили будут аллюминивые, металопластиковые конструкции не выдержат, пришлось бы делить. фирм, кто монтрирует, достаточно. О так вы еще и перекрытием ЖБ (балкончиком) раму фасадную пригрузили. Круто! Такие "витражи" обычно лепят в виде плоской стальной рамы - эдакого мастадонта, а к нему цепляют мелкий люминевый профиль ну или стеклопакеты. А если тока из алюминия делать - дюже дорого. Змінено 16 жовтня 2008 користувачем Alexander Pryakha Посилання на коментар Поділитися на інших сайтах More sharing options...
pryaniki Опубліковано: 16 жовтня 2008 Поділитись Опубліковано: 16 жовтня 2008 на самом деле стена выглядит вот так. нужно же было и армировать как то. профили будут аллюминивые, металопластиковые конструкции не выдержат, пришлось бы делить. фирм, кто монтрирует, достаточно. что касается стклянной стены - один дизайнер посоветовал сделать стекло снаружи, чтоб смотрелось цельным, но я не хочу. меня полностью устраивает данный вариант. а у вас второй свет будет или нет? Второго света не будет. На втором этаже всему по фасаду будет балкон. На первом выход на терассу через гостинную или столовую. Постараюсь выложить фасад на форум. Посилання на коментар Поділитися на інших сайтах More sharing options...
Юлия_М Опубліковано: 20 жовтня 2008 Автор Поділитись Опубліковано: 20 жовтня 2008 Это кто такое утверждает? Помоему не совсем нормально. Вы невнимательно читали мой предыдущий пост. Армировать такую стеночку надо стержнями ф12 шагом 250 (в каждой ячейке термоблока) с двух сторон. Это типа - минимальное армирование в данном случае. О так вы еще и перекрытием ЖБ (балкончиком) раму фасадную пригрузили. Круто! Такие "витражи" обычно лепят в виде плоской стальной рамы - эдакого мастадонта, а к нему цепляют мелкий люминевый профиль ну или стеклопакеты. А если тока из алюминия делать - дюже дорого. читала внимательно, учитель 2.75 это глубина котлована, куда сперва укладывался контур и засыпался пока не скрылась вода. в конечно итоге подвал глубиной 2.20. насчет давления грунта...сомневаюсь, что в тех формулах, по которым указанные вами показатели просчитаны, были учтены все параметры, например, что грунт - рассыпчатый песок, который, например, НЕ удерживает воду, которая могла бы усилить давление. есть общая теория, а есть частные случаи. ну пока что мы ничего еще не пригрузили расстояние между нижним и верхним рядом окон 50см, армирование 18-ками. консультировались у проектировщика, который занимается крупными коммерческими объектами более 20 лет. Посилання на коментар Поділитися на інших сайтах More sharing options...
Alexander Pryakha Опубліковано: 20 жовтня 2008 Поділитись Опубліковано: 20 жовтня 2008 Я увидел проблему и я вам на нее указал. Ваше дело - принимать это к сведению или нет. Теория обычно проверяется на практике. Желаю вам успехов. Посилання на коментар Поділитися на інших сайтах More sharing options...
Юлия_М Опубліковано: 24 жовтня 2008 Автор Поділитись Опубліковано: 24 жовтня 2008 Скажите Юлия и Aleksander Pryakha, я так понял блоки у Вас от Валькирии, www.valkiria.ua ? Если да, то почему? Я просто тоже определился что буду себе строить Термодом и трохи растерялся, у кого покупать. А Вы, я так догадываюсь в этом деле уже промониторили рынок? У них на самом деле на сайте все достаточно хорошо расписано но пока не пощупал сам не уверен. Заранее благодарю! Наши строители работали и с другими, но выбрали эти. говорят, меньше брака, более правильная форма. валькирия брак меняет, если что.что касается нас самих, как клиента - валькирия и скидку дала, и по некоторым вопросам термодомостроения проконсультировали. поставки своевременны - нет претензий. пощупать у них можно в офисе. Посилання на коментар Поділитися на інших сайтах More sharing options...
xzest Опубліковано: 27 жовтня 2008 Поділитись Опубліковано: 27 жовтня 2008 бетон брали у ковальской, сразу с добавками. насчет добавок спец Пропеллер. у нас вышло 49.5 кубов 43000 грн. с доставкой А-а-а-а-а-а-а-а-а-а-а-а-а-а-а-а-а-а-а-а-а-а-а-а-а-а!!!!!!!!!! Цена мягко говоря пугает... Если не опознали - Вова (Дмитровичи)... Свою плиту залил по факту за 450 грн. за 1м3 (планировалось правда на момент заказа по 550). Посилання на коментар Поділитися на інших сайтах More sharing options...
xzest Опубліковано: 27 жовтня 2008 Поділитись Опубліковано: 27 жовтня 2008 А вот если верить ДБН - то ф12 (округляем "плотность" до 1кг на м.п.) то при наличии горизонтального армирования через блок (т.е. 50 см) по арматурине в ячейке - как раз хватит... Тока вот в реальной жизни если строят по инженерным рассчетам а снабжают по ДБН то 50% арматуры остаются... Армирование тут достаточно-избыточное как минимум... У меня тоже самое в глине. Грунт уже частично обратно отсыпан. Пока все в норме Сами технологи по ICF из Isorast рекомендуют армирование подвала - 4 вертикально и 2 горизонтально но ф10 + каркас 4ф10 каждые 3м вертикально и каркас в первом и предпоследнем ряду блоков... Юля а гидроизоляцию проверили уже? Посилання на коментар Поділитися на інших сайтах More sharing options...
Cолнышко Опубліковано: 9 травня 2009 Поділитись Опубліковано: 9 травня 2009 Очень понравилась идея.Уверенна, что все получиться. Прислушивайтесь к советам специалистов форумчан Посилання на коментар Поділитися на інших сайтах More sharing options...
datsko Опубліковано: 10 травня 2009 Поділитись Опубліковано: 10 травня 2009 Юлия_М - против течения сложно плыть, я знаю. Зато и цель другая. Окна, конечно будут охлаждать зимой, но дизайн...догреет ;). Спасибо за тему и фото. Александра Пряху нужно слушать, он плохого не посоветует. Он и мне очень помог! Просто сложно в Вашем случае выдержать консультации с двух сторон, верю. Но все-таки прислушайтесь. pryaniki - тоже офигенно! Посилання на коментар Поділитися на інших сайтах More sharing options...
Мирт Опубліковано: 19 травня 2009 Поділитись Опубліковано: 19 травня 2009 Не скажу, что большая глубина подвала, но довольно приличная - 2,75м. На бетонные стены толщиной 150мм будет оказывать горизонтальное давление грунт. Давление на глубине 1м - порядка 1600кг/м2, на глубине 2м - около 3т/м2, возле плиты фундамента - 4,0 т/м2. Довольно приличная распределенная нагрузка. Армировать стену нужно с двух сторон (внутри и снаружи) вертикальными арматурными стержнями (как на рисунке). Эти стержни должны воспринимать изгиб (изгибающий момент). Нужно ставить и горизонтальные стержни. А товарищ Лэнь поставил арматуру всередине стены (в нулевой зоне) - где она не нужна вовсе.. Причем шаг установленной арматуры очень редкий. КТо интересно принял такое проектное решение - при такой глубине подвала? Стоит добавить что внутренние стены дома служат контрфорсами - упорами, они не дают стене деформироваться вовнутрь под действием давления грунта. Также упором служит и горизонтальный диск перекрытия (не панели). Что за перекрытие? Покажите пожалуйста планировочное решение подвала. Грунт я смотрю пока не засыпали. Это хорошо. Песок в качестве засыпки - лучший грунт. При глубине подвала 2.35м Активное давление(равнодействующая)Е=2,1...2,5тон На глубине 2м -1,2т/м2 но никак не 3т/м2 . Если принять методику расчёта стен подвала как из бетонных блоков то прочность стены обеспечена(Вахненко.каменые конструкции).Если принять как колону изгибаемую и сжимаемую то арматура нужна. Здесь спорный момент. Посилання на коментар Поділитися на інших сайтах More sharing options...
Мирт Опубліковано: 19 травня 2009 Поділитись Опубліковано: 19 травня 2009 (змінено) Поспешил с выводом что прочность обеспечена. Момент (М) наибольший при таких усилиях будет гдето 0.5 т/м. По нормам наибольший допустимый эксцентриситет(е) для стен толщиной меньше 25см равен 0.8х7.5=6см и он должен находиться не ближе 2см от края стены поэтому он равен 7.5-2=5.5см. Вертикальная нагрузка на стену должна быть не меньше М/е=0.5/0.055=9.1 тон на п.м. Чем больше сила ,тем меньше эксцентриситет. Сила уменьшает действие момента на конструкцию. Я предпологаю что нагрузка по факту меньше чем 9.1т .Поэтому считаю нужным сделать усиление стен. Можно использовать ленты которые предлагает форумчанин Рropeler. Их надо наклеить на внутрение стороны стен подвала, предварительно сняв пенопласт под полосы, а потом опять его наклеить. Змінено 19 травня 2009 користувачем Мирт Посилання на коментар Поділитися на інших сайтах More sharing options...
Рекомендовані повідомлення
Створіть акаунт або увійдіть у нього для коментування
Ви маєте бути користувачем, щоб залишити коментар
Створити акаунт
Зареєструйтеся для отримання акаунта. Це просто!
Зареєструвати акаунтУвійти
Вже зареєстровані? Увійдіть тут.
Увійти зараз