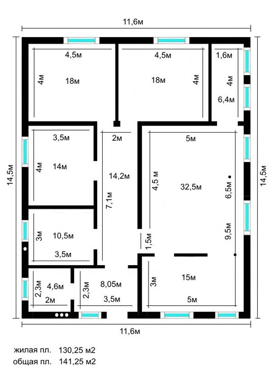
wipe Опубліковано: 10 червня 2012 Поділитись Опубліковано: 10 червня 2012 Добрый день форумчане, так сказать настал момент истины, в следующем году планирую строить дом, сам строитель со стажем, но вот, увы, не сталкивался с системами отопления. Отсюда большая просьба, ниже приведу пример того, как я вижу свою систему отопления, знаю на форуме много хороших специалистов-теплотехников, кто грамотно соображает в системах отопления. Вести простую систему к каждой трубе подача и обратка это дорого, моя семья не располагает большими средствами. А вот как правильно сделать и провести сечение труб я не умею, но очень хочу сэкономить на этом этапе стройки. Очень прошу знающих людей посмотреть планировку и то, что я накалякал, подскажите, что где не так и что надо сделать по уму. Заранее всем очень буду благодарен. Котел 24 кВт рассчитан на 250 м2, основной отвод от котла 32 мм труба, разводка по комнатам 25 мм и к радиаторам, наверное 15 мм. Заранее извиняюсь, возможно, все, что я написал для вас покажется ерундой, реально не имею опыта в отопительных системах. Если я правильно понял, читая форум, в этой системе надо будет играть кранами на радиаторах, да бы сбалансировать систему, и еще подскажите, может на обратку нужен насос ? Сейчас живем в доме на 80 м2, тут стоит то же котел на 24 кВт и 250 м2, но тут однотрубная система, к первому радиатору пришло из последнего ушло к котлу, за счет того, что котел рассчитан на намного большую площадь, все трубы зимой горячие, может и мне так же сделать ? Посилання на коментар Поділитися на інших сайтах More sharing options...
ts3 Опубліковано: 10 червня 2012 Поділитись Опубліковано: 10 червня 2012 Так трубы меньше потратите 1 Посилання на коментар Поділитися на інших сайтах More sharing options...
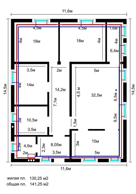
Interso Опубліковано: 10 червня 2012 Поділитись Опубліковано: 10 червня 2012 Добрый день форумчане, так сказать настал момент истины, в следующем году планирую строить дом, сам строитель со стажем, но вот, увы, не сталкивался с системами отопления. Отсюда большая просьба, ниже приведу пример того, как я вижу свою систему отопления, знаю на форуме много хороших специалистов-теплотехников, кто грамотно соображает в системах отопления. Вести простую систему к каждой трубе подача и обратка это дорого, моя семья не располагает большими средствами. А вот как правильно сделать и провести сечение труб я не умею, но очень хочу сэкономить на этом этапе стройки. Очень прошу знающих людей посмотреть планировку и то, что я накалякал, подскажите, что где не так и что надо сделать по уму. Заранее всем очень буду благодарен. [ATTACH]193046[/ATTACH] [ATTACH]193049[/ATTACH] Котел 24 кВт рассчитан на 250 м2, основной отвод от котла 32 мм труба, разводка по комнатам 25 мм и к радиаторам, наверное 15 мм. Заранее извиняюсь, возможно, все, что я написал для вас покажется ерундой, реально не имею опыта в отопительных системах. Если я правильно понял, читая форум, в этой системе надо будет играть кранами на радиаторах, да бы сбалансировать систему, и еще подскажите, может на обратку нужен насос ? Сейчас живем в доме на 80 м2, тут стоит то же котел на 24 кВт и 250 м2, но тут однотрубная система, к первому радиатору пришло из последнего ушло к котлу, за счет того, что котел рассчитан на намного большую площадь, все трубы зимой горячие, может и мне так же сделать ? Та ну зачем же так сложно да и дорого будет. Вы можете прекрасно обойтись только 25 и 16 трубой. Делаете кольцо по периметру 25 трубой а радиаторы подключаете 16 трубой. Данная схема самая простая и идеально самосбалансированная. 2 Посилання на коментар Поділитися на інших сайтах More sharing options...
wipe Опубліковано: 10 червня 2012 Автор Поділитись Опубліковано: 10 червня 2012 Ребята большое спасибо, очень помогли, а то уже всю голову себе сломал. насосы дополнительные не нужны ? Еще тогда подскажите, из этих двух схем, какая предпочтительней ? та, что замкнута в кольцо или с двумя отдельными ветками ? и в чем разница ? заранее спасибо. Посилання на коментар Поділитися на інших сайтах More sharing options...
naupv Опубліковано: 10 червня 2012 Поділитись Опубліковано: 10 червня 2012 насосы дополнительные не нужны ? Если в котле уже есть и кольцевая разводка, то не нужен. Добавлено через 1 минуту Делаете кольцо по периметру 25 трубой Или 26 трубой. 1 Посилання на коментар Поділитися на інших сайтах More sharing options...
wipe Опубліковано: 10 червня 2012 Автор Поділитись Опубліковано: 10 червня 2012 Очень выручаете, огромное спасибо, безумно рад, что есть такой форум. Посилання на коментар Поділитися на інших сайтах More sharing options...
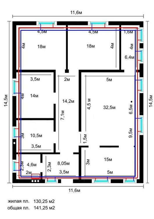
Сергей 31 Опубліковано: 10 червня 2012 Поділитись Опубліковано: 10 червня 2012 Кольца не замыкаются. Вот правильная попутка. Посилання на коментар Поділитися на інших сайтах More sharing options...
naupv Опубліковано: 10 червня 2012 Поділитись Опубліковано: 10 червня 2012 Кольца не замыкаются. Вот правильная попутка. Это петля Тихельмана. Кольцевая более сбалансированная, проверено не раз. Посилання на коментар Поділитися на інших сайтах More sharing options...
Сергей 31 Опубліковано: 10 червня 2012 Поділитись Опубліковано: 10 червня 2012 Кольцевая более сбалансированная, проверено не раз. В плане балансировки попутке (Тихельмана), равных просто нет. Можно не ставить балансировочные вентили на обратках радиаторов. Минус один, диаметры нужно увеличивать. Посилання на коментар Поділитися на інших сайтах More sharing options...
Interso Опубліковано: 10 червня 2012 Поділитись Опубліковано: 10 червня 2012 В плане балансировки попутке (Тихельмана), равных просто нет. Можно не ставить балансировочные вентили на обратках радиаторов. Минус один, диаметры нужно увеличивать. Закольцованная система заключает в себе эффект так сказать Тихельмана, плюс к этому балансировка сводится к минимуму,сопротивление системы в два раза меньше чем у Тихельмана, следственно и насос нужен с меньшим напором,также при этом можно уменьшить диаметр труб Ну а вентиля нужны хоть там хоть там, хотябы для того чтоб отключить и снять радиатор. 1 Посилання на коментар Поділитися на інших сайтах More sharing options...
wipe Опубліковано: 10 червня 2012 Автор Поділитись Опубліковано: 10 червня 2012 что-то я запутался, то есть лучше делать последовательное подключение ? то есть провести 25-ю трубу по всему периметру, от нее 16 диаметром подключить радиаторы, и эту петлю не закольцовывать ? и так же обратка, от последнего радиатора, по кругу обратно от всех радиаторов к котлу ? я правильно понял ? в этом случае не нужны вентили на балансировку ? Добавлено через 5 минут Жаль что я непонимаю всего этого, как оказалось, сколько мастеров столько и мнений. Мне бы систему попроще и подешевле, это кольцевая или тупиковая (она же я так понял Тахельмана) ? какую же выбрать Посилання на коментар Поділитися на інших сайтах More sharing options...
Interso Опубліковано: 10 червня 2012 Поділитись Опубліковано: 10 червня 2012 что-то я запутался, то есть лучше делать последовательное подключение ? то есть провести 25-ю трубу по всему периметру, от нее 16 диаметром подключить радиаторы, и эту петлю не закольцовывать ? и так же обратка, от последнего радиатора, по кругу обратно от всех радиаторов к котлу ? я правильно понял ? в этом случае не нужны вентили на балансировку ? Добавлено через 5 минут Жаль что я непонимаю всего этого, как оказалось, сколько мастеров столько и мнений. Мне бы систему попроще и подешевле, это кольцевая или тупиковая (она же я так понял Тахельмана) ? какую же выбрать Да хароший совет, вы ещё и на котёл краны неставте тогда будет вообще всё замечательно, особенно зимой и когда надо будет чтото отключить и поремонтировать. 1 Посилання на коментар Поділитися на інших сайтах More sharing options...
wipe Опубліковано: 10 червня 2012 Автор Поділитись Опубліковано: 10 червня 2012 Вот значит, что я нарисовал и какой возник вопрос. Если с радиаторами 1,2,3,4,5 все мне ясно, для них давления хватит и они будут горячие, а что вы скажете об удаленных радиаторах ? 6,7 хватит ли им давления ? все-таки пока до них доходит теплоноситель, он же уйдет в попутно расставленные радиаторы ? если несложно объясните. Посилання на коментар Поділитися на інших сайтах More sharing options...
wipe Опубліковано: 10 червня 2012 Автор Поділитись Опубліковано: 10 червня 2012 Да хароший совет, вы ещё и на котёл краны неставте тогда будет вообще всё замечательно, особенно зимой и когда надо будет чтото отключить и поремонтировать. Так, этот момент я понял, краны нужны на всех радиаторах, а по поводу кольцевой или тупиковой ? я выше на рисунке свои опасения написал по поводу кольцевой, что тут подскажете Посилання на коментар Поділитися на інших сайтах More sharing options...
Interso Опубліковано: 10 червня 2012 Поділитись Опубліковано: 10 червня 2012 Вот значит, что я нарисовал и какой возник вопрос. Если с радиаторами 1,2,3,4,5 все мне ясно, для них давления хватит и они будут горячие, а что вы скажете об удаленных радиаторах ? 6,7 хватит ли им давления ? все-таки пока до них доходит теплоноситель, он же уйдет в попутно расставленные радиаторы ? если несложно объясните. [ATTACH]193094[/ATTACH] При данной разводке у вас все радиаторы будут нормально себья чувствовать так как для 25 трубы по 7 кВт на левое и правое крыло это небольшая нагрузка. Плюс к этому что система закольцована сопротивление её меньше, так как подача и обратка на удалённые радиаторы поступает с двух сторон. 1 Посилання на коментар Поділитися на інших сайтах More sharing options...
wipe Опубліковано: 10 червня 2012 Автор Поділитись Опубліковано: 10 червня 2012 При данной разводке у вас все радиаторы будут нормально себья чувствовать так как для 25 трубы по 7 кВт на левое и правое крыло это небольшая нагрузка. Плюс к этому что система закольцована сопротивление её меньше, так как подача и обратка на удалённые радиаторы поступает с двух сторон. Очень вам признателен за помощь, сам бы долго еще кумекал, большое спасибо. Посилання на коментар Поділитися на інших сайтах More sharing options...
Interso Опубліковано: 10 червня 2012 Поділитись Опубліковано: 10 червня 2012 Так, этот момент я понял, краны нужны на всех радиаторах, а по поводу кольцевой или тупиковой ? я выше на рисунке свои опасения написал по поводу кольцевой, что тут подскажете Моё мнение что кольцевая это самый идеальный вариант, и если у вас есть возможность то грех ею невоспользоватся. Также мне нравится и такая кольцевая система в которой ненужно применять байпас и радиаторы прогреваются быстро и одновременно. Посилання на коментар Поділитися на інших сайтах More sharing options...
wipe Опубліковано: 10 червня 2012 Автор Поділитись Опубліковано: 10 червня 2012 Спасибо за помощь, прямо на душе полегчало )) теперь можно до следующей весны зарабатывать деньги на свой дом. Все этапы расписаны, смета посчитана, желания много, участок есть, была лишь загвоздка с отоплением, но теперь благодаря вашей и остальных помощи, разобрался и готов к действию )) Посилання на коментар Поділитися на інших сайтах More sharing options...
romi9999 Опубліковано: 10 червня 2012 Поділитись Опубліковано: 10 червня 2012 Закольцованная система заключает в себе эффект так сказать Тихельмана... Пиз..ец... ...пошел переучивать гидравлику... 3 Посилання на коментар Поділитися на інших сайтах More sharing options...
naupv Опубліковано: 10 червня 2012 Поділитись Опубліковано: 10 червня 2012 пошел переучивать гидравлику Нахрена? Раз попробуйте когда, например, туева куча радиаторов на этаже, и все станет ясно.Отходите от стереотипов, применяйте новаторство. Посилання на коментар Поділитися на інших сайтах More sharing options...
Сергей 31 Опубліковано: 10 червня 2012 Поділитись Опубліковано: 10 червня 2012 Раз попробуйте когда, например, туева куча радиаторов на этаже, Про такую кучу разговор? forum.abok.ru/index.php?showtopic=35761 Посилання на коментар Поділитися на інших сайтах More sharing options...
naupv Опубліковано: 10 червня 2012 Поділитись Опубліковано: 10 червня 2012 Круто. Мы такое проходили в офисном здании на Воровского, Ренессанс по моему называется, 2004-2005 было. Блокбастер на Петровке тоже. Посилання на коментар Поділитися на інших сайтах More sharing options...
romi9999 Опубліковано: 10 червня 2012 Поділитись Опубліковано: 10 червня 2012 ...Отходите от стереотипов, применяйте новаторство. Это из разряда "забейте *** на физику, есть политическая (экономическая) целесообразность" ? Посилання на коментар Поділитися на інших сайтах More sharing options...
Сергей 31 Опубліковано: 10 червня 2012 Поділитись Опубліковано: 10 червня 2012 Мы такое проходили в офисном Вы доконца дочитайте мою ссылку. Эту схему можно заставить работать, но это притягивание за уши. Посилання на коментар Поділитися на інших сайтах More sharing options...
Interso Опубліковано: 10 червня 2012 Поділитись Опубліковано: 10 червня 2012 Вы доконца дочитайте мою ссылку. Эту схему можно заставить работать, но это притягивание за уши. Ну дочитал и что, там сразу понятно что вся проблема с элеватором. То что вам схема ненравится или трудно её понять так это дело такое. По такой схеме я сделал трёхэтажный дом более сорока радиаторов,запустился дом сразу и балансировки практически непотребовалось,регулировались только этажи. Посилання на коментар Поділитися на інших сайтах More sharing options...
Рекомендовані повідомлення
Створіть акаунт або увійдіть у нього для коментування
Ви маєте бути користувачем, щоб залишити коментар
Створити акаунт
Зареєструйтеся для отримання акаунта. Це просто!
Зареєструвати акаунтУвійти
Вже зареєстровані? Увійдіть тут.
Увійти зараз