vpeletsky Опубліковано: 23 липня 2012 Поділитись Опубліковано: 23 липня 2012 Подскажите вариант монтажа металлопластикового окна в 3-х слойной стене непосредственно в самом утеплителе (см. фото). Специалисты говорят, что без жесткого основания хотябы внизу стоять окно не будет. Анкерные пластины не смогут его удержать. Может кто-то сталкивался с таким вариантом. Посилання на коментар Поділитися на інших сайтах More sharing options...
Kostjantyn Опубліковано: 24 липня 2012 Поділитись Опубліковано: 24 липня 2012 (змінено) ....Специалисты говорят, что без жесткого основания хотябы внизу стоять окно не будет..... Вам специалисты говорят верно. Как сделать основание - нужно считать. Применяли стальные кронштейны, подобные тем, что под кондиционеры. Главное - хорошо защитить от коррозии.Узел 2.pdf Змінено 24 липня 2012 користувачем Kostjantyn добавление эскиза Посилання на коментар Поділитися на інших сайтах More sharing options...
Ruslan R Опубліковано: 24 липня 2012 Поділитись Опубліковано: 24 липня 2012 Главное - хорошо защитить от коррозии. А что мешает покрасить кронштейны порошковой покраской (в печи)? Далее необходимо гидроизолировать стальной кронштейн от кирпичной кладки, например с помощью рубероида. Посилання на коментар Поділитися на інших сайтах More sharing options...
vpeletsky Опубліковано: 24 липня 2012 Автор Поділитись Опубліковано: 24 липня 2012 Я думаю сделать это из деревянного бруса (просептировав и гидроизолировав) Посилання на коментар Поділитися на інших сайтах More sharing options...
Ruslan R Опубліковано: 24 липня 2012 Поділитись Опубліковано: 24 липня 2012 Я думаю сделать это из деревянного бруса (просептировав и гидроизолировав) Как брус крепить будете? Набросайте узелок от руки. Если бы он был заранее закреплен (до установки облицовочного кирпича), вопросов бы не было. Посилання на коментар Поділитися на інших сайтах More sharing options...
vpeletsky Опубліковано: 25 липня 2012 Автор Поділитись Опубліковано: 25 липня 2012 Мои строители предложили вариант с кирпичем, завтра переговорю с ними не по телефону. Выложу вариант. Посилання на коментар Поділитися на інших сайтах More sharing options...
mgerbut Опубліковано: 26 липня 2012 Поділитись Опубліковано: 26 липня 2012 Мои строители предложили вариант с кирпичем, завтра переговорю с ними не по телефону. Выложу вариант. Искренне надеюсь, что это не те же строители, что и построили эту "трехслойную стену" Ибо единственный правильный вариант- разобрать стену и переложить заново облицовочный кирпич. Остальные варианты- откровенный "колхоз" А ежели они свою безграмотность еще и за ваши деньги ликвидируют- тогда аплодисменты! 1 Посилання на коментар Поділитися на інших сайтах More sharing options...
Александр 13 Опубліковано: 27 липня 2012 Поділитись Опубліковано: 27 липня 2012 Здравствуйте. У меня такая же проблема.Трехслойная стена с четвертью.Что делать не знаю,если можете подскажите.Установщики окон разводят руками. Посилання на коментар Поділитися на інших сайтах More sharing options...
Дощ Опубліковано: 28 липня 2012 Поділитись Опубліковано: 28 липня 2012 Я б зробив би таку підставку з оцинкованого металу, можна у вигляді пари пластин шириною 100-150 мм товщиною 3-4мм, розрахувавши довжину щоб коротким кінцем заходила на чверть з облицювальної цегли на 20-30мм (закриється відливом), а довгим на чорнову стіну на 60-80мм, ну і згин на висоту чверті. Можна не кріпити, а просто позакладати під час монтажу Посилання на коментар Поділитися на інших сайтах More sharing options...
Pride Опубліковано: 28 липня 2012 Поділитись Опубліковано: 28 липня 2012 А в случае, если утеплитель - пеностекло в блоках, на него можно устанавливать? Хватит его несущей способности? Посилання на коментар Поділитися на інших сайтах More sharing options...
Дощ Опубліковано: 28 липня 2012 Поділитись Опубліковано: 28 липня 2012 Так, вистачить Посилання на коментар Поділитися на інших сайтах More sharing options...
vadoss8008 Опубліковано: 28 липня 2012 Поділитись Опубліковано: 28 липня 2012 Искренне надеюсь, что это не те же строители, что и построили эту "трехслойную стену" Ибо единственный правильный вариант- разобрать стену и переложить заново облицовочный кирпич. Остальные варианты- откровенный "колхоз" А ежели они свою безграмотность еще и за ваши деньги ликвидируют- тогда аплодисменты! А чем вам кирпич не угодил!!!!!!!!!!!! Посилання на коментар Поділитися на інших сайтах More sharing options...
mgerbut Опубліковано: 28 липня 2012 Поділитись Опубліковано: 28 липня 2012 А чем вам кирпич не угодил!!!!!!!!!!!! кирпич- отличный! но положен - категорически неправильно. нет четвертей по бокам и сверху проемов. причем четверти должны доходить до несущей части стены, а не останавливаться где-то посреди утеплителя. Посилання на коментар Поділитися на інших сайтах More sharing options...
Ruslan R Опубліковано: 28 липня 2012 Поділитись Опубліковано: 28 липня 2012 кирпич- отличный! но положен - категорически неправильно. нет четвертей по бокам и сверху проемов. причем четверти должны доходить до несущей части стены, а не останавливаться где-то посреди утеплителя. Судя по фото - боковые и верхняя четверти присутсвуют. А черновой кирпич можно было доложить до облицовочного кирпича (только в проемах под оконные или дверные конструкции). 1 Посилання на коментар Поділитися на інших сайтах More sharing options...
alvikov Опубліковано: 29 липня 2012 Поділитись Опубліковано: 29 липня 2012 кирпич- отличный! но положен - категорически неправильно. нет четвертей по бокам и сверху проемов. причем четверти должны доходить до несущей части стены, а не останавливаться где-то посреди утеплителя. Кирпичная четверть – это выступ кирп.облицовки (на 6 см) за габарит проема в несущей стене, если смотреть на план и разрез. Видно же на фото, что она есть. А ваша фраза непонятна. Может, Вы немного не правы, говоря о соединении слоев кладки в местах проемов, если именно это подразумевалось? Например, ГОСТ 30971-2002. Или вот, навскидку, узел. К примеру, ГОСТы бруски не любят, а в типовые узлы разработчики их с удовольствием добавляют для простоты монтажа окон. И т.п. Бывает больше одного варианта решений, правда? Особенно помня о теплопотерях. Ваш - приводит к росту прочности, но увеличению теплопотерь. А кирпич – обычный кривой от СБК. Наилучшее сочетание хорошей цены и нехорошего качества. С уважением. Посилання на коментар Поділитися на інших сайтах More sharing options...
Ruslan R Опубліковано: 29 липня 2012 Поділитись Опубліковано: 29 липня 2012 Можно на гильотине нарубить стальных пластин 80х250х5мм, закрепить пластины в черновой кирпич на 2 анкера (согласно точкам крепления окна) и спокойно поставить окно используя в качестве крепежа турбовинты. Вот Вам и решение проблемы Посилання на коментар Поділитися на інших сайтах More sharing options...
mgerbut Опубліковано: 30 липня 2012 Поділитись Опубліковано: 30 липня 2012 Можно на гильотине нарубить стальных пластин 80х250х5мм, закрепить пластины в черновой кирпич на 2 анкера и спокойно поставить окно если окно лёгкое пластиковое и глухое- пожалуйста! предлагаю Вам пофантазировать о подобном способе монтажа входной двери, весом более 100 кг. Особо ярко постарайтесь представить вибрацию конструкции на рычагах (это я так по-умному Ваши пластины обозвал :D) ну и трещины, трещины, трещины... Кирпичная четверть – это выступ кирп.облицовки .....Видно же на фото, что она есть. Может, Вы немного не правы, говоря о соединении слоев кладки в местах проемов, если именно это подразумевалось? Бывает больше одного варианта решений, правда? Ваш - приводит к росту прочности, но увеличению теплопотерь. четверть какая-то есть. но она неправильная. четверть нужно было "завернуть" и перекрыть ею утеплитель. а окно установить на наружный край несущей стены. никакие якобы "теплопотери" не оправдывают отсутствие жесткой механической связи конструкции окна и стены. тем более, что разговор о "теплопотерях" тут вообще не к месту. По-правде говоря, есть еще одно решение данного вопроса без перекладывания облицовочного кирпича: короб из бетон-полимера. Посилання на коментар Поділитися на інших сайтах More sharing options...
Ruslan R Опубліковано: 31 липня 2012 Поділитись Опубліковано: 31 липня 2012 если окно лёгкое пластиковое и глухое- пожалуйста! предлагаю Вам пофантазировать о подобном способе монтажа входной двери, весом более 100 кг. Особо ярко постарайтесь представить вибрацию конструкции на рычагах (это я так по-умному Ваши пластины обозвал :D) ну и трещины, трещины, трещины... Если на фото проем под двери, то я мост Патона. А вы 5мм стальную пластину вообще в глаза видели то? Посилання на коментар Поділитися на інших сайтах More sharing options...
mgerbut Опубліковано: 31 липня 2012 Поділитись Опубліковано: 31 липня 2012 Если на фото проем под двери, то я мост Патона. А вы 5мм стальную пластину вообще в глаза видели то? ну тогда выбирайте сами: либо всё-таки бывают дома БЕЗ дверей либо вы- мост Патона!!! а про пластину: предположим, я всё-таки НЕ видел сталь 5 мм, точнее ГЛАЗА пластины 5 мм :D но мне всё-равно кажется, что пешеходный мост в Киеве сделан из немного более толстых пластин. Но он тем не менее очень здорово трясется в ветренную погоду. И это в нем еще ничего не открыватся и не закрывается :lol::lol: ах да, вы наверное спросите причем тут мост? к сожалению, это целый семестр термеха. боюсь многим будет неинтересно Посилання на коментар Поділитися на інших сайтах More sharing options...
Kostjantyn Опубліковано: 31 липня 2012 Поділитись Опубліковано: 31 липня 2012 ...........Трехслойная стена с четвертью.Что делать .................. Совершенно случайно получилась иллюстрация к теме разговора. На одном из объектов меняем металопластик пятилетней службы на теплый алюминий. При демонтаже и изменении проема с оконного на дверной отчетливо увидели на чем стояло окно в трехслойной стене. Окно стояло на ряде кирпича, выпущенного в слой утеплителя. Это низ, а справа, слева и сверху - анкерные пластины. Вполне доступное решение - если сделать выпуск во время кладки. Все, что придется доделывать (деревянные бруски, металлические кронштейны и т.п.), будет дороже и проблемнее. Посилання на коментар Поділитися на інших сайтах More sharing options...
Chuk Опубліковано: 31 липня 2012 Поділитись Опубліковано: 31 липня 2012 Подскажите вариант монтажа металлопластикового окна в 3-х слойной стене непосредственно в самом утеплителе (см. фото). Специалисты говорят, что без жесткого основания хотябы внизу стоять окно не будет. Анкерные пластины не смогут его удержать. Может кто-то сталкивался с таким вариантом. Всё правильно - снизу нужна опора. Готового решения Вам никто из оконщиков не предложит, ну так было у нас. Поэтому мы сами изготавливали кронштейны из уголка и покрывали полимерным покрытием(порошковая покраска). Цена вопроса на весь дом, это 24 окна, порядка 400 грн. Сами кронштейны крепили на дюбеля в подоконник, предварительно залив их бетоном - где это нужно было для поднятия уровня... От лицевой кладки отделяли 20 мм прокладкой из XPS для гидро- и теплоизоляции - см. фото. После установки прошло 1,5 года - пока нигде ничего не повело и не просело - вся фурнитура работает. 2 Посилання на коментар Поділитися на інших сайтах More sharing options...
mgerbut Опубліковано: 31 липня 2012 Поділитись Опубліковано: 31 липня 2012 Готового решения Вам никто из оконщиков не предложит После установки прошло 1,5 года - пока нигде ничего не повело и не просело - вся фурнитура работает. 1. единственное готовое решение как раз уже предложили. см пост выше. 2. в вашей фразе ключевой тезис "пока работает" ибо первые полтора года идеально работают даже корявенькие китайские самоделки. Посилання на коментар Поділитися на інших сайтах More sharing options...
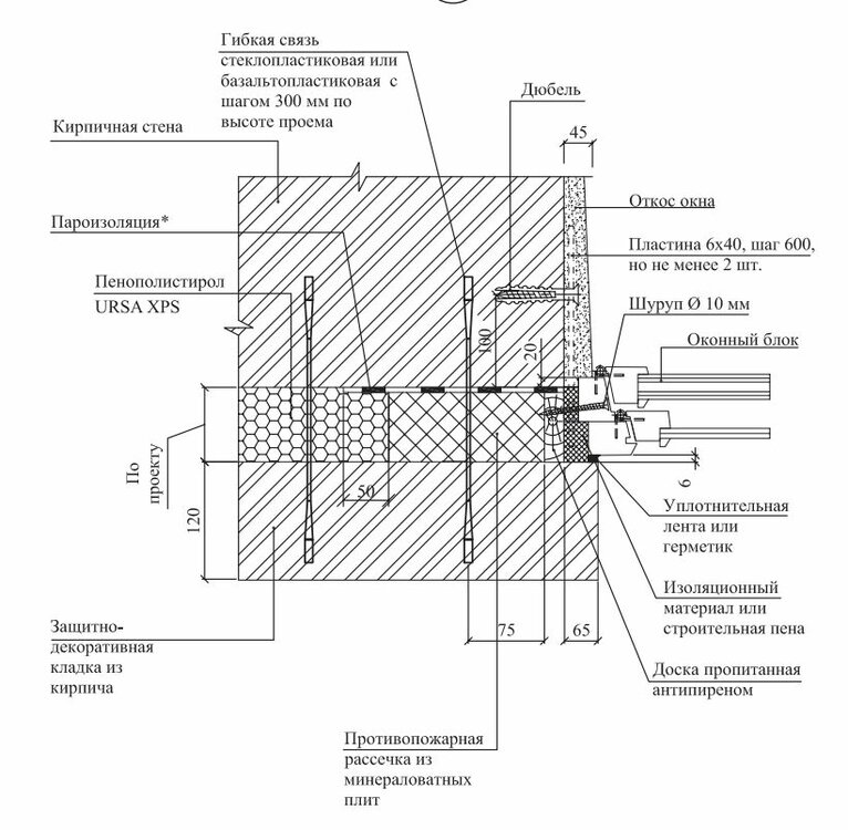
Зигзаг Удачи Опубліковано: 31 липня 2012 Поділитись Опубліковано: 31 липня 2012 Я делал вот так: 2 Посилання на коментар Поділитися на інших сайтах More sharing options...
Kostjantyn Опубліковано: 31 липня 2012 Поділитись Опубліковано: 31 липня 2012 Я делал вот так: А какой у Вас средний слой стены? Посилання на коментар Поділитися на інших сайтах More sharing options...
Зигзаг Удачи Опубліковано: 31 липня 2012 Поділитись Опубліковано: 31 липня 2012 А какой у Вас средний слой стены? Утеплитель Техноблок плотностью 60 (или 65) кг/куб - 100 мм. Посилання на коментар Поділитися на інших сайтах More sharing options...
Рекомендовані повідомлення
Створіть акаунт або увійдіть у нього для коментування
Ви маєте бути користувачем, щоб залишити коментар
Створити акаунт
Зареєструйтеся для отримання акаунта. Це просто!
Зареєструвати акаунтУвійти
Вже зареєстровані? Увійдіть тут.
Увійти зараз