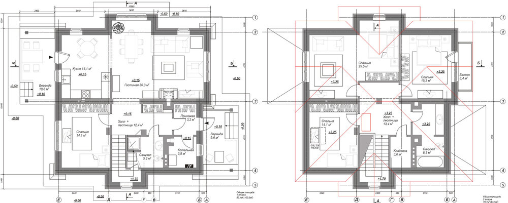
Swetlyachok Опубліковано: 10 вересня 2012 Поділитись Опубліковано: 10 вересня 2012 Всем добрый день. После долгих лет поиска участки, его покупки – решили в следующем году начинать строительство. Просмотрев кучу проектов домов , просмотрев много тем на данном форуме решили строить одноэтажный дом, так как ы нас семья состоит из 3-х человек: я, жена и 2-х летний сын. Итак вводные данные о участке: - участок 19 сток, ровный-прямоугольный разметом 33м*57м; - сделали геодезию, топографию (м1:500) и геологию; - геология состояла из 3-х скважин, и соответственно их результаты: 0-0,4м «грунтово рослинний шар», 0,4-3,1м «супісок-лесовидний, жовтий, жовто-коричневий, палево-жовтий, твердий, з включенням карбонатів та піску пилуватого» 3,1-5,5м «пісок середньої крупності, жовтий, світло-коричневий, середньої щільності, малого ступеню водо насичення, з прошарком супіску та суглини» 5,5-7м «пісок середньої крупності, світло-жовтий, жовто-сірий, середньої щільності, малого ступеня водонасичення»\ Чего мы хотим от дома: - одноэтажный - кухню не менше 10 кв.м. (пожелание жены) - большую гостинную, не менше 20 кв.м. с камином (пожелание жены) - 2-е жилые комнаты - гардеробную - ванную комнату больше 8 кв.м. (мое желание) - гараж пристроеный к дому с входом в сам дом (мое пожелание) Собственно пока-что это все что хотим. По самой стройте: 1. строится будем исключительно своїми силами, без найма бригад. При постройте дома родителям – ложил и кирпи, и пеноблоки, так, что навыки есть. А себе тем более все сделаю в лучшем виде. 2. фундамент – ленточный. Будем, металические прутья (толщиной 10 мм) в’язати по всему периметру, а на углах делать металические «колоны» с прутьев (толщина прутьев 12 мм). Заливать миксерами в 2 захода: до земли и через 2 недели саму опалубку. Толщина фундамента – 0,5 м., 1 м. в глубь и 0,5 м. над землей. 3. каркас – планирую сделать следующим образом: газоблок (аерок) 300 мм. + 50 мм. воздушной прослойки (утеплить минватой) + облицовочный кирпичь. перегородки или газоблоком, или рядовым кирпичом. 4. перекрытие – планируется делать деревяными бруссями толщиной – 150*200 мм. С верху и с низу зашивать доской толшиной 30 мм. 5. крыша – металочерепица. 6. отопление – если получится подвести газ, то газовый котел, если нет – твердотопливный котел. Для ванной планирую поставить отдельно бойлер на 50 литров. Собственно: Рисунок 1 - посадка дома на участок Рисунок 2 - план дома (без вентиляционных каналов, т.к. не нашел как их показать в архикаде) Рисунок 3 - топосьемка 2012.08.23_Bilogorodka_Sad_A4.pdf Всех кто желает высказать свои замечания или пожелания рад буду слышать. Сам проект есть желание закончить до конца осени, так как в конце осени хочу сдать документы на изготовление стройпаспорта. Посилання на коментар Поділитися на інших сайтах More sharing options...
mikhailoff71 Опубліковано: 10 вересня 2012 Поділитись Опубліковано: 10 вересня 2012 По планировке могу сказать следующее: 1. Обязательно нужен тамбур (если дом предназначен для круглогодичного проживания) 2. Желательно иметь второй санузел - это Ваш комфорт. 3. Гараж пристроенный к дому - спорный вопрос. У Вас размеры участка позволяют построить его отдельно. А прямой вход из гаража в дом (без буферного помещения) - это серъезный источник холода. Я сейчас сам пытаюсь набросать эскиз своего дома, тоже голову ломаю по поводу гаража в доме. 4. Зачем Вам в гардеробной такое большое окно? И надо оно там вообще? Это то, что сразу увидел. Посилання на коментар Поділитися на інших сайтах More sharing options...
Swetlyachok Опубліковано: 11 вересня 2012 Автор Поділитись Опубліковано: 11 вересня 2012 По планировке могу сказать следующее: 1. Обязательно нужен тамбур (если дом предназначен для круглогодичного проживания) 2. Желательно иметь второй санузел - это Ваш комфорт. 3. Гараж пристроенный к дому - спорный вопрос. У Вас размеры участка позволяют построить его отдельно. А прямой вход из гаража в дом (без буферного помещения) - это серъезный источник холода. Я сейчас сам пытаюсь набросать эскиз своего дома, тоже голову ломаю по поводу гаража в доме. 4. Зачем Вам в гардеробной такое большое окно? И надо оно там вообще? Это то, что сразу увидел. 1. Тамбур уже думал. Все что приходит с ходу - это добавление стены которая объединит кухню и топочную. 2. Думали об этом много, но все-таки решили сделать одну ванную комнату. А как дополнительный туалет сделать на улице, за домом. 3. Что-б холод с гаража не входил в дом решил ставить 2-е двери. Да и в гараже будет 2 небольшие батареи, что-б в гараже было не ниже +5 (люблю в гараже в с машиной возится, убирать, натирать). 4. Изначально гардеробная предусматривалась как кабинет или комната для гостей. В каждой комнате думали ставить по отдельному шкафу-купе, а потом уже появилась идея сделать отдельную гардеробную. П.С. К первому сообщению не могу прикрепить наброски по расстановке мебели по-этому вставлю здесь. Посилання на коментар Поділитися на інших сайтах More sharing options...
wipe Опубліковано: 11 вересня 2012 Поділитись Опубліковано: 11 вересня 2012 Я бы гараж не делал в доме, там постоянная сырость, а зимой просто кошмар, иначе делать хорошее отопление и серьезную вытяжку, или машина сгниет за пару лет, представте что вы заехали зимой с наледью на днище, арках, защите, куда уйдет эта вода ? а сырость ? Зачем в дальней угловой спальне два окна ? мне кажется из за этого толком ни шкафов ни камода с зеркалом не разместить. Не вижу совсем вент каналов под камин, вытяжку из ванны и кухни. Посилання на коментар Поділитися на інших сайтах More sharing options...
Татьяна5 Опубліковано: 11 вересня 2012 Поділитись Опубліковано: 11 вересня 2012 - большую гостинную, не менше 20 кв.м. с камином (пожелание жены) эээ, Вы раньше жили в хрущевке ? без обид, но 20 метров - это крохотулечная гостинная, куда там еще камин тулить? Посилання на коментар Поділитися на інших сайтах More sharing options...
Swetlyachok Опубліковано: 11 вересня 2012 Автор Поділитись Опубліковано: 11 вересня 2012 Я бы гараж не делал в доме, там постоянная сырость, а зимой просто кошмар, иначе делать хорошее отопление и серьезную вытяжку, или машина сгниет за пару лет, представте что вы заехали зимой с наледью на днище, арках, защите, куда уйдет эта вода ? а сырость ? Зачем в дальней угловой спальне два окна ? мне кажется из за этого толком ни шкафов ни камода с зеркалом не разместить. Не вижу совсем вент каналов под камин, вытяжку из ванны и кухни. 1. По-поводу окон в дальней комнате учту. 2. По вент каналам я написал, что в архикаде не разобрался как их там рисовать. 3. Зимой машиной выезжаю максиму 1 раз в неделю (скупится в ашане). По-этому хочу держать машину в тепле. Ну, а если будет все в снегу или в ледышках буду ставить на улице. Кстати на улице планировал сделать дополнительный навес для машины. Добавлено через 38 секунд эээ, Вы раньше жили в хрущевке ? без обид, но 20 метров - это крохотулечная гостинная, куда там еще камин тулить? 27 кв.м. что совсем маленькая гостинная? Посилання на коментар Поділитися на інших сайтах More sharing options...
Татьяна5 Опубліковано: 11 вересня 2012 Поділитись Опубліковано: 11 вересня 2012 27 кв.м. что совсем маленькая гостинная? Для камина - это оч скромная гостинная Посилання на коментар Поділитися на інших сайтах More sharing options...
Swetlyachok Опубліковано: 11 вересня 2012 Автор Поділитись Опубліковано: 11 вересня 2012 я не вижу за счет чего можно еще увеличить гостиную Посилання на коментар Поділитися на інших сайтах More sharing options...
wipe Опубліковано: 11 вересня 2012 Поділитись Опубліковано: 11 вересня 2012 я не вижу за счет чего можно еще увеличить гостиную Увеличить внешние стены, сделать их шире и длинее. Посилання на коментар Поділитися на інших сайтах More sharing options...
Swetlyachok Опубліковано: 11 вересня 2012 Автор Поділитись Опубліковано: 11 вересня 2012 да как по мне дом и так уже больших размеров. куда еще больше Посилання на коментар Поділитися на інших сайтах More sharing options...
ionico Опубліковано: 11 вересня 2012 Поділитись Опубліковано: 11 вересня 2012 Вроде всё логично. Но я бы обратил внимание на следующее: вход в дом лишён парадности: узкий вход, потом коридор и ещё один тестный коридор. Я бы стремился к цельному парадному холлу без коридоров. Коридоры - для тех. помещений. Ну и конструкции летают пока. Выровняйте стену между кухней и тамбуром со стеной между гостиной и спальней. 1 Посилання на коментар Поділитися на інших сайтах More sharing options...
wipe Опубліковано: 11 вересня 2012 Поділитись Опубліковано: 11 вересня 2012 если честно, какой то прямо грустный проект. Вам он нравится ? смотрели готовае проекты ? Посилання на коментар Поділитися на інших сайтах More sharing options...
Swetlyachok Опубліковано: 11 вересня 2012 Автор Поділитись Опубліковано: 11 вересня 2012 Вроде всё логично. Но я бы обратил внимание на следующее: вход в дом лишён парадности: узкий вход, потом коридор и ещё один тестный коридор. Я бы стремился к цельному парадному холлу без коридоров. Коридоры - для тех. помещений. Ну и конструкции летают пока. Выровняйте стену между кухней и тамбуром со стеной между гостиной и спальней. Объясните пожалуйста для тех кто на бронепоезде, что значит "вход в дом лишен парадности"? Войдя в дом я сделал арку на кухню, что-б сразу можно было забрасывать пакеты с продуктами, а не идти через коридор. или я не правильно сделал? Добавлено через 4 минуты если честно, какой то прямо грустный проект. Вам он нравится ? смотрели готовае проекты ? готовые смотрели очень и очень много. для меня очень хочется, что-б из окна кухни было видно вход на участок, а гостевая смотрела на заднюю часть участка (в будущем планирую построить баньку и сделать маленькое озерцо). да и если честно, то просмотрев больше сотни проектов только 5-7 более менее понравились. Вот и скомпоновали несколько проектов и получили результат. Посилання на коментар Поділитися на інших сайтах More sharing options...
wipe Опубліковано: 11 вересня 2012 Поділитись Опубліковано: 11 вересня 2012 готовые смотрели очень и очень много. для меня очень хочется, что-б из окна кухни было видно вход на участок, а гостевая смотрела на заднюю часть участка (в будущем планирую построить баньку и сделать маленькое озерцо). да и если честно, то просмотрев больше сотни проектов только 5-7 более менее понравились. Вот и скомпоновали несколько проектов и получили результат. Ох как я вас понимаю, мы то же долго с женой искали, в итоге сами разработали проект, точнее скомуниздили с польского сайта но проработали под себя, потратили на это почти три года, а в итоге увидели один проект и все в голове полетело к чертям, влюбились по уши, теперь покупаем его. Может и вы влюбитесь, места мало занимает 10х10 Посилання на коментар Поділитися на інших сайтах More sharing options...
Swetlyachok Опубліковано: 11 вересня 2012 Автор Поділитись Опубліковано: 11 вересня 2012 Ох как я вас понимаю, мы то же долго с женой искали, в итоге сами разработали проект, точнее скомуниздили с польского сайта но проработали под себя, потратили на это почти три года, а в итоге увидели один проект и все в голове полетело к чертям, влюбились по уши, теперь покупаем его. Может и вы влюбитесь, места мало занимает 10х10 [ATTACH]213799[/ATTACH] [ATTACH]213800[/ATTACH] [ATTACH]213801[/ATTACH] [ATTACH]213802[/ATTACH] [ATTACH]213803[/ATTACH] Вы себе даже не представляете сколько нам с женой понравилось двухэтажных домов, или в один этаж и жилой мансардой. Но приезжая к родителям у которых 2-х этажный дом, в гости раз в неделю, я просто замахиваюсь с ребенком бегать между этажами. У ребенка к концу дня энергии хоть отбавляй, а у меня ноги просто не хотят подниматься по лестнице. Вот по этой причине (да и не только) мы решили строить одноэтажный, так как размеры участка позволяют все это сделать. Посилання на коментар Поділитися на інших сайтах More sharing options...
mikhailoff71 Опубліковано: 11 вересня 2012 Поділитись Опубліковано: 11 вересня 2012 Вот по этой причине (да и не только) мы решили строить одноэтажный, так как размеры участка позволяют все это сделать. Если размеры участка позволяют, то 100% надо строить одноэтажный дом, о его преимуществах уже писано-переписано. Еще раз к слову о двух санузлах (из другой ветки) Это как в первых хрущобах совмещали туалет с ванной. При обменах такие квартиры и смотреть никто не хотел. Все повторяется, и следующее поколение уже само стало убирать перегородки в санузлах, ставя джакузи, забыв, как ныряли их предки, когда один принимает ванну, а другому члену семьи приспичило. Но в частном доме с этим нет проблем, если сделать хотя бы два санузла. А зимой на улицу не набегаешься. Посилання на коментар Поділитися на інших сайтах More sharing options...
Swetlyachok Опубліковано: 12 вересня 2012 Автор Поділитись Опубліковано: 12 вересня 2012 Ставить второй санузел я не вижу где. Разве что часть кухни отделить и сделать санузел отдельный. Посилання на коментар Поділитися на інших сайтах More sharing options...
mikhailoff71 Опубліковано: 12 вересня 2012 Поділитись Опубліковано: 12 вересня 2012 Домик с похожей планировкой www.galeriadomow.pl/projekt/UPB-7103,dom-przy-rubinowej-3.html 1 Посилання на коментар Поділитися на інших сайтах More sharing options...
Swetlyachok Опубліковано: 13 вересня 2012 Автор Поділитись Опубліковано: 13 вересня 2012 Спасибо большое за ссылку. Действительно очень похож. мы этот проект даже не находили на сайтах. Добавлено через 51 минуту На указанном сайте нашел более интересный и похожий проект www.galeriadomow.pl/projekt/UPB-710,dom-przy-rubinowej.html Только в нем нужно убрать перегородку между кухней и гостиной Посилання на коментар Поділитися на інших сайтах More sharing options...
seyvalter Опубліковано: 13 вересня 2012 Поділитись Опубліковано: 13 вересня 2012 Якби не гараж в будинку - скинув би вам хороший одноповерховийс будинок в акурат під ваші вимоги, та гараж туди явно не впишеться.... Якщо раптом зацікавитесь - пишіть - поділюсь безвозмездно. Посилання на коментар Поділитися на інших сайтах More sharing options...
Swetlyachok Опубліковано: 13 вересня 2012 Автор Поділитись Опубліковано: 13 вересня 2012 Я бачив дуже багато цікавих проектів одноповерхових будинків, але більшість з них без гаража. Але я хочу саме з гаражом, що в негоду не ганяти з окремого гаража в будинок і тільке те робити, що носити сміття в дім. Посилання на коментар Поділитися на інших сайтах More sharing options...
wipe Опубліковано: 13 вересня 2012 Поділитись Опубліковано: 13 вересня 2012 Я бачив дуже багато цікавих проектів одноповерхових будинків, але більшість з них без гаража. Але я хочу саме з гаражом, що в негоду не ганяти з окремого гаража в будинок Намучаетесь вы с гаражом пристроенным к дому. Посилання на коментар Поділитися на інших сайтах More sharing options...
Swetlyachok Опубліковано: 13 вересня 2012 Автор Поділитись Опубліковано: 13 вересня 2012 хорошо. а если не делать отопление в гараже? Посилання на коментар Поділитися на інших сайтах More sharing options...
архітектор Опубліковано: 13 вересня 2012 Поділитись Опубліковано: 13 вересня 2012 Глядя на эту крышу - у Вас не возникает подозрения, что ее площадь не менее чем в 2,5 раза больше площади помещений дома? Угол наклона, четыре ската, плюс свесы кровли. Тоесть в доме 116 м2, а крыша имеет 300 м2. Это 300 м2 гидробарьера, обрешетки, стропильной системы, кровельного материала - черепицы. Достаточно ли это эффетивно? Объем под крышей - практически равен объему жилых помещений. Тоесть неиспользуемое пространство = полезному пространству. С точки зрения автомобиля - 30% занимают конструкции и силовые агрегаты, остальное - коммерческий объем для пользователя. Если это превести на данный дом, то расклад примерно такой - 30% конструкции и коммуникации, 30% - полезный объем, и бонус - 40% неиспользуемого объема. (ссылка на изображение устарела) 1 Посилання на коментар Поділитися на інших сайтах More sharing options...
Hover Опубліковано: 13 вересня 2012 Поділитись Опубліковано: 13 вересня 2012 Я уже не удивляюсь людям видят конфетку но не видят начинку. Посилання на коментар Поділитися на інших сайтах More sharing options...
Рекомендовані повідомлення
Створіть акаунт або увійдіть у нього для коментування
Ви маєте бути користувачем, щоб залишити коментар
Створити акаунт
Зареєструйтеся для отримання акаунта. Це просто!
Зареєструвати акаунтУвійти
Вже зареєстровані? Увійдіть тут.
Увійти зараз