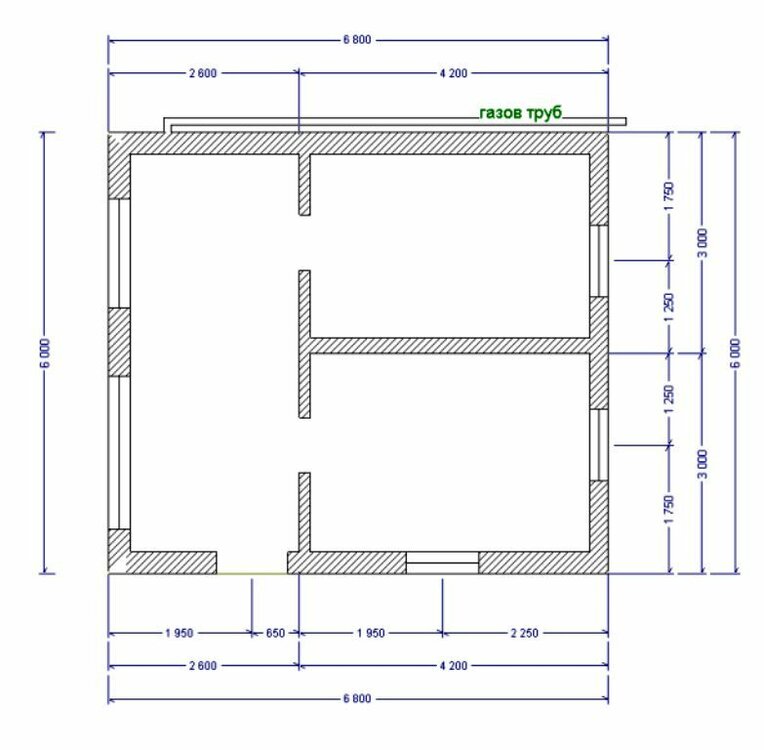
АлЮр Опубліковано: 27 листопада 2008 Поділитись Опубліковано: 27 листопада 2008 Любі друзі! Извините что я к Вам обращаюсь такая молодая! Мы люди местные, но всё равно нуждаемся в помощи, и совете Имеется дачный домик размерами 6 х 6,8 м (рис. № 1). Т.К. дача находится в 17 км от столицы и в 28 км от нашей квартиры , решили его достроить с перспективой дальнейшего проживания. Семья состоит из 3-х взрослых человек и ребенка (пока одного). Пожелания к 1-му этажу : кухня, гостиная (наличие камина), спальня, санузёл ( унитаз, умывальник, небольшая душевая кабинка), кладовка (возможно под лестницей). Второй этаж полумансардный (высота мансарды поднята на 1 метр): 3 спальни, санузел, гардеробная, кладовка, балкон или терасса. После того, как немного посидели и потренировались с мужем в ЗD Home Architect Deluxe получилось вот такой 1-ый этаж (Рис. № 2). Второй этаж нарисовать не могу, программка что-то не очень работает. Когда пытаюсь создать 2-й этаж, программа вылетает. По сторонам света: стена вдоль которой расположены кухня, холл и санузел – это север. Еще: под пристройкой (гостиной) хотелось бы сделать подвал. Конструктивно такое возможно? С какими трудностями можно столкнуться? На что нужно обратить внимание? Заранее благодарна за конструктивные предложения (чертежи) и критику. Посилання на коментар Поділитися на інших сайтах More sharing options...
Мария Кле Опубліковано: 28 листопада 2008 Поділитись Опубліковано: 28 листопада 2008 правильное решение сразу бросилась в глаза лестница из тамбура - не очень хорошо тамбур - источник грязи.. и эта грязь будет нестись на второй этаж автоматически... подумайте, как сделать дополнительное помещение, вплоть до того, что достроить веранду и на ней на втором этаже балкон. а если дача - фотку домика разместите.. внешне будет понятней.. Посилання на коментар Поділитися на інших сайтах More sharing options...
АлЮр Опубліковано: 28 листопада 2008 Автор Поділитись Опубліковано: 28 листопада 2008 фото дачи: Посилання на коментар Поділитися на інших сайтах More sharing options...
Мария Кле Опубліковано: 28 листопада 2008 Поділитись Опубліковано: 28 листопада 2008 вы дачный дом сами строили? в фундаменте уверены? вам нужно снимать крышу, и разбирать фронтон, доливать фундамент.. делать связку с остальным домом и накрывать общую крышу а потом обшивать это сайдингом или штукатурить сразу пририсуйте тамбур, чтобы там оставалась грязь и холод, а лестница уже бы выходила из коридора общего поищите по поиску - был мужчинка, который к даче своей пристройку делал.. может так будет легче и дешевле, чем бороться с домиком основным.. Посилання на коментар Поділитися на інших сайтах More sharing options...
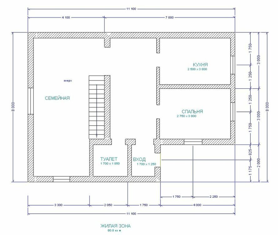
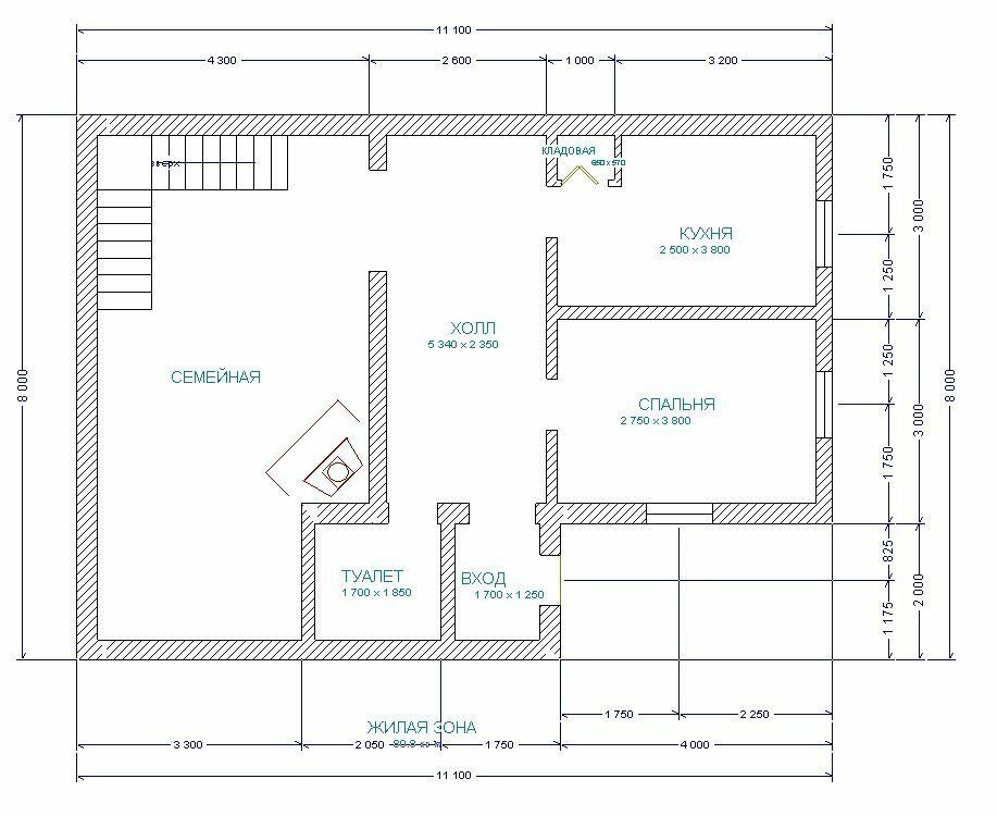
АлЮр Опубліковано: 28 листопада 2008 Автор Поділитись Опубліковано: 28 листопада 2008 Рассматривались также следующие варианты. В первом варианте не устраивает то, что лестница и санузел забрали много места у гостинной, во 2-м и 3-м варианте не нравится , что санузел и кухня расположены не в линию, потом будем заморачиваться с разводкой комуникаций, ну и по деньгам дороже выйдет.Хочется, чтобы санузлы были на одном стояке и в одном рядочеке с кухней И котельню рядышком где-то пристроить, скорее всего в подвале (хотим его сделать под гостинной). Посилання на коментар Поділитися на інших сайтах More sharing options...
Ed34 Опубліковано: 28 листопада 2008 Поділитись Опубліковано: 28 листопада 2008 подумайте очень хорошо. Я тоже переделывю дачный домик. От него мало что осталось..... Посилання на коментар Поділитися на інших сайтах More sharing options...
АлЮр Опубліковано: 28 листопада 2008 Автор Поділитись Опубліковано: 28 листопада 2008 Мария Кле, домик строили не мы, о фундаменте сказать ничего не могу, соседи говорят, что предыдущий хозяин домика был строителем и домик строил правильно (для себя любимого ). О том, что предстоит разбирать фронтоны, и все остальное я догадываюсь . По конструктиву , конечно сложновато По тамбуру: на самом первом фото он есть, правда с лестницей. Согласна с Вами, что грязь из тамбура будет нестись на второй этаж но мы рассматриваем разные варианты ( пост выше) ПС .Это я Вам в личку писала по поводу проекта Посилання на коментар Поділитися на інших сайтах More sharing options...
АлЮр Опубліковано: 28 листопада 2008 Автор Поділитись Опубліковано: 28 листопада 2008 Ed 34 Вы имели в виду, что лучше его снести? Конечно же лучше строить с нуля. В нашей ситуации отталкиваевся от того, что есть. Посилання на коментар Поділитися на інших сайтах More sharing options...
Ed34 Опубліковано: 28 листопада 2008 Поділитись Опубліковано: 28 листопада 2008 Ed 34 Вы имели в виду, что лучше его снести? Конечно же лучше строить с нуля. В нашей ситуации отталкиваевся от того, что есть. 1)Вопрос денег. Вы наверное думает раз вы переделывает что то уже существуюещее это будет бюджетно? На самом деле вам придеться платить за разрушение чего то старого, придумывать какие то интеграции и т.д. Т.е. экономия не будт столь ощутимой как кажеться сейчас. Ваша ошибка в том что вы не ориентируетесь ни в стоимости материалов, ни в стоимости работ. Также готовьтесь что во время перестройки - жить в дачном домике не получиться. 2)Концепция. Я тоже думал: вначале - "будем жить иногда", потом - "будем жить в с ранней весны до поздней осени", закончилось - "хотим жить постоянно". А из этого вытекают разные требования к дому. Дача - это когда в нее можно приехать, отдохнуть, пожить чуть-чуть и домой. А теперь представьте что у вас нет квартиры - нужно и подсобные помещения, куда свести весь хлам и вещи; нужно полные городские удобства - вода, отопление, канализация; нужно утеплять дом; в конце концов столько усилий чтоб ванна была опять 3 м2 и комнат опять не хватало?!!? В итоге дом это нечто совсем другое чем дача. 3)В ваших проектах есть только план-схемы. Непонтяно из чего будет все достраиваться - какие стеновые материалы, какие перекрытия, чем утпеляться, из чего крыша... Посилання на коментар Поділитися на інших сайтах More sharing options...
Olena Опубліковано: 28 листопада 2008 Поділитись Опубліковано: 28 листопада 2008 А не хотите убрать спальню на 1-м этаже ? станет просторнее намного. Или есть необходимость именно в 3-х спальнях ? Посилання на коментар Поділитися на інших сайтах More sharing options...
АлЮр Опубліковано: 28 листопада 2008 Автор Поділитись Опубліковано: 28 листопада 2008 А не хотите убрать спальню на 1-м этаже ? станет просторнее намного. Или есть необходимость именно в 3-х спальнях ? Для справки: перекрытие - монолит,стены все несущие трогать их нельзя. А необходимость в спальне на первом этаже есть - ведь родители стареют Посилання на коментар Поділитися на інших сайтах More sharing options...
Olena Опубліковано: 28 листопада 2008 Поділитись Опубліковано: 28 листопада 2008 если ВСЕ стены несущие и их нельзя трогать , непонятно как планируете увеличивать площать Посилання на коментар Поділитися на інших сайтах More sharing options...
Ed34 Опубліковано: 28 листопада 2008 Поділитись Опубліковано: 28 листопада 2008 Для справки: перекрытие - монолит,стены все несущие трогать их нельзя. А необходимость в спальне на первом этаже есть - ведь родители стареют Я ни в коем случае не отговариваю - просто объясняю: стройка это серьезно, вам ведь не нужен долгострой или по завершению стройки осознать что вам не хватает площади? "В принципе ничего нет невозможного...можно и зайца научить курить" (с) Посилання на коментар Поділитися на інших сайтах More sharing options...
АлЮр Опубліковано: 28 листопада 2008 Автор Поділитись Опубліковано: 28 листопада 2008 непонятно как планируете увеличивать площать был дачный одноэтажный домик 6х6,8м делаем пристройку 4 м в длину и 2м в ширину, полущаем площадь 8*10,8м, над всем этим строим мансардный этаж (3 спальни, санузел). Вот таким образом увеличили площадь ;) Посилання на коментар Поділитися на інших сайтах More sharing options...
АлЮр Опубліковано: 28 листопада 2008 Автор Поділитись Опубліковано: 28 листопада 2008 Я ни в коем случае не отговариваю - просто объясняю: стройка это серьезно, вам ведь не нужен долгострой или по завершению стройки осознать что вам не хватает площади? "В принципе ничего нет невозможного...можно и зайца научить курить" (с) Я с Вами абсолютно согласна, спасибо за советы. По поводу цен так я вроде в курсе - на форуме 2 года просвещаюсь. Строительство бюджетное, поэтому площадь дома 180 м, для нас вполне достаточно. Посилання на коментар Поділитися на інших сайтах More sharing options...
Olena Опубліковано: 28 листопада 2008 Поділитись Опубліковано: 28 листопада 2008 был дачный одноэтажный домик 6х6,8м делаем пристройку 4 м в длину и 2м в ширину, полущаем площадь 8*10,8м, над всем этим строим мансардный этаж (3 спальни, санузел). Вот таким образом увеличили площадь ;) Это почти что новая стройка по деньгам, но более хлопотная , и по судя про проектам одну или даже две стены несущих нужно сносить. Вывод делайте сами. Посилання на коментар Поділитися на інших сайтах More sharing options...
Olena Опубліковано: 28 листопада 2008 Поділитись Опубліковано: 28 листопада 2008 Я с Вами абсолютно согласна, спасибо за советы. По поводу цен так я вроде в курсе - на форуме 2 года просвещаюсь. Строительство бюджетное, поэтому площадь дома 180 м, для нас вполне достаточно. У всех бюджетное, только бюджеты бывают разные Посилання на коментар Поділитися на інших сайтах More sharing options...
Unicorn Опубліковано: 28 листопада 2008 Поділитись Опубліковано: 28 листопада 2008 Это почти что новая стройка по деньгам, но более хлопотная , и по судя про проектам одну или даже две стены несущих нужно сносить. Вывод делайте сами. +1. Уважаемая АлЮр, посмотрев эскизы и фото, думаю что выигрыш по деньгам будет (если будет) незначительным, но вот головной боли поимеете - мама не горюй. IMHO, лучше с нуля. Тем более "домик строили не мы", а "соседи говорят, что предыдущий хозяин домика был строителем и домик строил правильно" - уж простите, не показатель. Выдержит ли дом? Вы слишком серьезные изменения планируете, это не пристройку на пару комнат соорудить. В любом случае, позвольте пожелать удачи в реализации Вашей мечты Посилання на коментар Поділитися на інших сайтах More sharing options...
Фахверка Опубліковано: 29 листопада 2008 Поділитись Опубліковано: 29 листопада 2008 Нужно лестницу делать только походу перекрытий, а то прийдется снимать много плит и много монолитить, а лутше всего, наверное сделать ее в пристройке. Котельную в подвале просто нельзя, нужно окно и высота помещения. Лучше делать в доме, сможете ее использовать как прачечную, должно все хорошо сохнуть, и регулировать котел тоже часто приходится. По поводу фундамента, я уже говорила Вам по телефону, что нужно смотреть, выдержит или нет Посилання на коментар Поділитися на інших сайтах More sharing options...
архітектор Опубліковано: 24 січня 2009 Поділитись Опубліковано: 24 січня 2009 как Вы просили - совет. Не буду повторяться, Вам уже советовали, что новое стротельство дешевле, особенно для новичков. Я Вам расскажу только о том, где у Вас ошибки в планировках. Основной недочет - планировка должна быть не только удобна именно Вам, но и учитывать ряд объективных критериев: расположение несущих стен, на которые можно опирать перекрытия. Вам не избежать этого объективного фактора. Надо плясать от конструкций - в этом и есть экономия, как использовать старые и добавлять новые. Теоретически можно сделать все, но это будет дорого. Второй фактор - канализация, если сантехприборы, мойка расположены как у Вас, собрать их в минимальное количество стояков и сделать только один выпуск из здания (у Вас же один септик будет, а не несколько у каждого угла . Ну это так коротко... Посилання на коментар Поділитися на інших сайтах More sharing options...
Рекомендовані повідомлення
Створіть акаунт або увійдіть у нього для коментування
Ви маєте бути користувачем, щоб залишити коментар
Створити акаунт
Зареєструйтеся для отримання акаунта. Це просто!
Зареєструвати акаунтУвійти
Вже зареєстровані? Увійдіть тут.
Увійти зараз