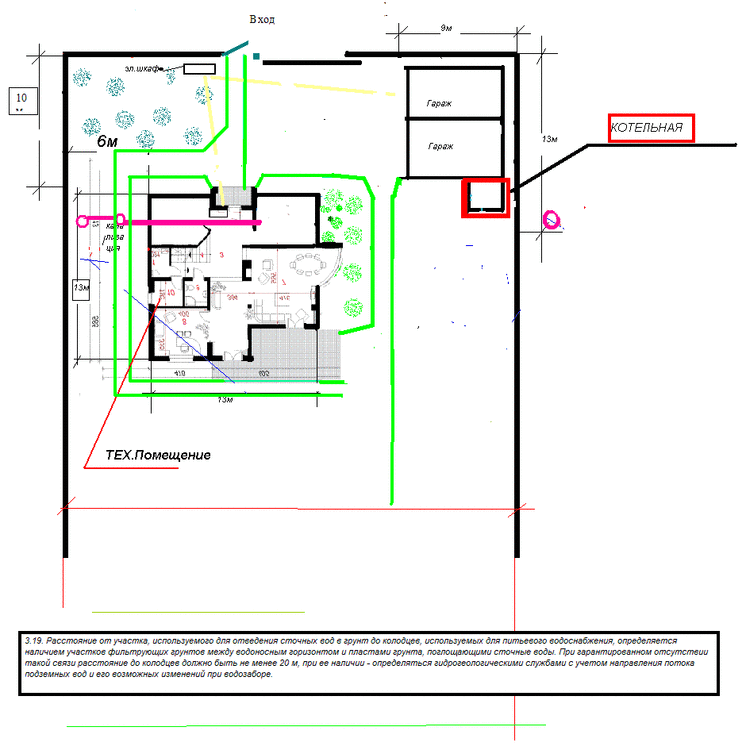
iro4ka Опубліковано: 4 грудня 2008 Поділитись Опубліковано: 4 грудня 2008 Уважаемые специалисты теплотехники и любители-строители пожалуйста посоветуйте. Находясь на стадии "нуля" маемся сомнениямипо по воду инженерных коммуникаций. К весне надо принять решение ,чтобы продолжить строительство ,если переживем кризис... По соображениям безопасности предполагаеться устанавливать газовый котел в котельной ,расположенной вне дома в отдельностоящем помещении на расстоянии 25 м (План участка и техническое описание проекта отопления в приложении) Дом 2 этажа, общая площадь 260м2 .теплые полы в нек-рых помещениях. Проект www.archon.com.ua/proekt_doma/WILLA_WIKTORIA/m46ea62cbc1b62 В проекте котельная была в доме рядом с гаражем.Мы проект перепланировали и гараж "отрезали",а вместе с ним и котельную.Но осталось помещение ,2.2х2.5м. техническое , где можно установить приборы для отопления и ГВС. В принципе там можно было бы наверное и котел установить Но сын настаивает: котел -отдельно ,все остальное-в доме.(Мясо отдельно-мухи отдельно),т.к много лет назад мы все чуть не погибли от газовой колонки. Внимание!-вопрос! Это вообще технически осуществимо? Практически ,не теоретически,кто -нибудь так делал? Какую- то схемку примитивную может кто нибудь изобразить? Какое количество труб будет идти от котла -2?4?. Можно ли в одной траншее.? Насколько такое решение увеличивает стоимость всей системы отопления и ГВС дома ? Я опасаюсь,что если контур отопления будет большой протяженности-то возможны следующие проблемы: 1.температура теплоносителя будет низкой. 2.Количество потребляемого газа будут высоким 3.Нужен еще один бойлер для горячего водоснабжения , или при открывании крана горячей воды ее надо будет ждать 10 минут!!! 4.Сложная система автоматики ?,чтобы осуществлять регулирование из дома-не бегать в котельную. 5 Нужно будет применять котел большей мощности ,чем указано в проекте? Жду ваших советов ... Возможно есть у кого то рекомендации по бригаде или специалистам способным воплотить в жизнь это техническое решение.? Посилання на коментар Поділитися на інших сайтах More sharing options...
Hans Опубліковано: 5 грудня 2008 Поділитись Опубліковано: 5 грудня 2008 На все перечисленные вопросы отвечу так - излишние домыслы. Все сомнения Ваши обоснованы, но все они решаемы без особых затрат. Те люди, которые будут Вам делать, конечно, должны разбираться в этом. Если бы у меня была задача сделать котельную отдельно от дома - сделал бы. Посилання на коментар Поділитися на інших сайтах More sharing options...
Сергей 31 Опубліковано: 5 грудня 2008 Поділитись Опубліковано: 5 грудня 2008 "Hans" прав. Все делается, но такой вариант дороже. Посилання на коментар Поділитися на інших сайтах More sharing options...
AlexRS4 Опубліковано: 5 грудня 2008 Поділитись Опубліковано: 5 грудня 2008 Я себе делал подобным образом. Категорически не хотел заводить газ в дом. Сделал котельную , там же водонагреватель, гидроаккумулятор в хозблоке, который находится в 3-х метрах от дома. Провел по воздуху все трубы в одном пучке, хорошо утеплил и вот уже лет 15 как все нормально. Посилання на коментар Поділитися на інших сайтах More sharing options...
Lexx Опубліковано: 11 грудня 2008 Поділитись Опубліковано: 11 грудня 2008 Много лет назад Запорожец считался машиной. Сейчас отопительная техника шагнула далеко вперед. Проще и дешевле сделать встроенную котельную. Если хотите минимизировать вероятность несчастного случая, посмотрите на котлы с закрытой камерой сгорания. Для пущей уверенности сделайте отдельный вход в котельную с улицы. Еще можно установить сигнализацию загазованности в котельной с отключением подачи газа. Ваша техническая задача не представляет особой сложности. Ее можно решить силами среднестатистических монтажников. Самое сложное в вашем случае - найти теплотехника для расчета системы отопления. Посилання на коментар Поділитися на інших сайтах More sharing options...
K_Serega Опубліковано: 11 лютого 2010 Поділитись Опубліковано: 11 лютого 2010 Делайте котельную в доме, если боитесь газа - ставте сигнализатор газа, и электромагнитный клапан. Посилання на коментар Поділитися на інших сайтах More sharing options...
AlexRS4 Опубліковано: 11 лютого 2010 Поділитись Опубліковано: 11 лютого 2010 Делайте котельную в доме, если боитесь газа - ставте сигнализатор газа, и электромагнитный клапан. А если не хочется делать в доме? Мне удобней в хозблоке. Посилання на коментар Поділитися на інших сайтах More sharing options...
Сергей 31 Опубліковано: 11 лютого 2010 Поділитись Опубліковано: 11 лютого 2010 Тем более, что все это реально. Но дорого. Посилання на коментар Поділитися на інших сайтах More sharing options...
_dim_ Опубліковано: 11 лютого 2010 Поділитись Опубліковано: 11 лютого 2010 если есть желания потягатся с металом, можно ещё взять "метал предизолированую" -- уже готоова к вкладке в землю, диаметр от ду32, от 100грн/метр.....ну и варить надо Посилання на коментар Поділитися на інших сайтах More sharing options...
Сергей_84 Опубліковано: 11 лютого 2010 Поділитись Опубліковано: 11 лютого 2010 Конечно все возможно и все ваши сомнения в реале не будут так ужасны. Но ИМХО -бред. Сейчас столько систем и средств безопасности, что нафиг не нужно строить отдельную котельную, тянуть дорогие трубы, продумывать нормальное функционирование всего этого. А вобще после таких фантазий заказчика у него часто потом возникает вопрос: "А чего так дорого?!!!!!!!!" Вот и доказывай, что фантазии и мечты дорого стоят) Посилання на коментар Поділитися на інших сайтах More sharing options...
Сергей 31 Опубліковано: 11 лютого 2010 Поділитись Опубліковано: 11 лютого 2010 Но ИМХО -бред. На моих фото, газовый в доме, а Т.Т. в хозблоке. И варианты могут быть разные. А если не хочется делать в доме? Мне удобней в хозблоке. Посилання на коментар Поділитися на інших сайтах More sharing options...
Сергей_84 Опубліковано: 11 лютого 2010 Поділитись Опубліковано: 11 лютого 2010 На моих фото, газовый в доме, а Т.Т. в хозблоке. И варианты могут быть разные. Сергей не путайте газовый и ТТ котлы. Я бы тоже не особо хотел ТТ у себя в доме, а хотя бы очень-очень близко , но газовый......... Посилання на коментар Поділитися на інших сайтах More sharing options...
Сергей 31 Опубліковано: 11 лютого 2010 Поділитись Опубліковано: 11 лютого 2010 Я повторю: "варианты могут быть разные". На форуме обсуждалось, семья чуть не погибла из-за котла. И как Вы после такого будите их убеждать? Посилання на коментар Поділитися на інших сайтах More sharing options...
Сергей_84 Опубліковано: 11 лютого 2010 Поділитись Опубліковано: 11 лютого 2010 спорить все равно бесполезно, у каждого свое мнение будет. Но пример приведу: Машина сбила на улице, ехал за рулем и пьяный урод протаранил тебя, поскользнулся ванной , упал и ударился головой об угол. А теперь сказал бы людям, можете сами проанализровать, сколько случаев от того, что я привел и сколько от взрыва газа в современном газовом котле. Хотя опять же дело каждого, кто-то не ездит за рулем, кто-то в ванной коврики стелит, кто-то ходит сугубо на зеленый и смотрит по сторонам, а кто-то........газовый котел далеко устанавливает Посилання на коментар Поділитися на інших сайтах More sharing options...
О_ВК Опубліковано: 11 лютого 2010 Поділитись Опубліковано: 11 лютого 2010 : Какое количество труб будет идти от котла -2?4?. От котла - 2-е трубы подача/обратка отопления (если узел смешения теплого пола в доме) + 2-е трубы горячая вода и рециркуляция. :Можно ли в одной траншее.? Насколько такое решение увеличивает стоимость всей системы отопления и ГВС дома ? Я опасаюсь,что если контур отопления будет большой протяженности-то возможны следующие проблемы: 1.температура теплоносителя будет низкой. 2.Количество потребляемого газа будут высоким Сходите - посмотрите (ссылка устарела), есть на Украине - (ссылка устарела) - пообщайтесь. :3.Нужен еще один бойлер для горячего водоснабжения , или при открывании крана горячей воды ее надо будет ждать 10 минут!!! Нет - работает рециркуляция. :4.Сложная система автоматики?, чтобы осуществлять регулирование из дома-не бегать в котельную. Нет - программатор в доме - 2-а провода в земле к котлу. Посилання на коментар Поділитися на інших сайтах More sharing options...
K_Serega Опубліковано: 12 лютого 2010 Поділитись Опубліковано: 12 лютого 2010 А если не хочется делать в доме? Мне удобней в хозблоке. Ну если есть не нужный хозблок..., или нужно его будет построить? А если котел выключится (будет требовать подпитки...), например ночью..., зимой..., на улице -20, метель..., а вы удобно устроились на диване... тепло, и тут , котёл не работает, я в таком случае иду в котельную, где стоит газовый котел, как есть в трусах и майке и подпитываю его, или перезапускаю. А Вы? В котле стоит куча защит, это не та старая колонка, из-за которой Вы чуть не погибли, там стоит свеча ионизации, если газ включился, но не разжегся, газ перекрывается. К тому же можно поставить, как я уже говорил, сигнализатор газа в котельной и электромагнитный клапан на входе газа в дом, а вот ТТ котельную однозначно пристраивать. 2 Посилання на коментар Поділитися на інших сайтах More sharing options...
Kog Опубліковано: 12 лютого 2010 Поділитись Опубліковано: 12 лютого 2010 Делайте как задумали.Иначе чувство страха, оставшееся от того случая, недаст вам спать спокойно.Все остальное дело техники и денежных ресурсов. 1 Посилання на коментар Поділитися на інших сайтах More sharing options...
AlexV Опубліковано: 12 лютого 2010 Поділитись Опубліковано: 12 лютого 2010 Да она навернека (точно) уже сделала, а вы тему мусолите. А то что так можно не только знаем но и сами почти так как на фотках Сергей31 делали, правда был вариант и по воздуху. Но как не утепляй всеравно теплопотери есть. Но это другая тема. Посилання на коментар Поділитися на інших сайтах More sharing options...
AndrejKiev Опубліковано: 13 лютого 2010 Поділитись Опубліковано: 13 лютого 2010 Если рассматривать только газ, то я бы не заморачивался на отдельное помещение, но если смотреть "ширше", то ТТ котел (пеллетный, солярный, и пр.) настоятельно просится "за пределы дома". Насчет теплопотерь. У меня пристроенная котельная, слабо утепленная (~20м2). В условиях этой зимы, в дежурном режиме (чтоб не замерз ТТ и ТА), одна протопка в 4-ре дня ~ 20 кг дров. Но это теплопотери только помещения, теплопотери передачи отсутствуют по причине смежности зданий. Но тут я загоняю тепло в ТА и потом оно по ЕЦ остывает через котел и трубы. Если бы поставил электроконвектор, то надо бы ~20кг*3кВт/ч = 60 кВт/ч. Но реально пришлось топить бы гораздо больше. Так тепло гуляет прямо в теплоносителе, а в самой котельной дубак и изморось по краю двери. Посилання на коментар Поділитися на інших сайтах More sharing options...
Vit3f Опубліковано: 13 лютого 2010 Поділитись Опубліковано: 13 лютого 2010 Как вариант сегодня есть предложение так называемых котельных контейнерного типа и строить ничего не надо, привез поставил на площадку, подключил к домовым комуникациям и вперед. По поводу бегатни в трусах на улицу - а чего бегать? Если все нормально сделано, то туда неделями можно незаглядывать. Кстати подпитку можно и в доме организовать, или вобще автоматизировать - есть специальные клапна подпитки. Не буду рекламировать производителей погуглие найдете. Посилання на коментар Поділитися на інших сайтах More sharing options...
Vit3f Опубліковано: 13 лютого 2010 Поділитись Опубліковано: 13 лютого 2010 Ну если есть не нужный хозблок..., или нужно его будет построить? А если котел выключится (будет требовать подпитки...), например ночью..., зимой..., на улице -20, метель..., а вы удобно устроились на диване... тепло, и тут , котёл не работает, я в таком случае иду в котельную, где стоит газовый котел, как есть в трусах и майке и подпитываю его, или перезапускаю. А Вы? В котле стоит куча защит, это не та старая колонка, из-за которой Вы чуть не погибли, там стоит свеча ионизации, если газ включился, но не разжегся, газ перекрывается. К тому же можно поставить, как я уже говорил, сигнализатор газа в котельной и электромагнитный клапан на входе газа в дом, а вот ТТ котельную однозначно пристраивать. Если котел ночью выключится вы об этом узнаете утром. Если все нормально сделано то ходить в трусах по улице не прийдется Подпитку можно сделать в доме, или вобще автоматизировать. Если ТТ котельную пристраивать то смысл в двух котельных, а ну в трусах побегать от одной к другой заодно и согреться Посилання на коментар Поділитися на інших сайтах More sharing options...
K_Serega Опубліковано: 17 лютого 2010 Поділитись Опубліковано: 17 лютого 2010 Если котел ночью выключится вы об этом узнаете утром. Если все нормально сделано то ходить в трусах по улице не прийдется Подпитку можно сделать в доме, или вобще автоматизировать. Если ТТ котельную пристраивать то смысл в двух котельных, а ну в трусах побегать от одной к другой заодно и согреться Интересно, в каком доме живёте Вы, и чем топите. Хотел бы я посмотреть, как Вы носите уголь и дрова, через весь дом или держите котел, бойлер, систему водоочистки в котельной с ТТ котлом. Да подпитку можно автоматизировать, в теории.... и таким образом увалить все котлы в случае утечки. Посилання на коментар Поділитися на інших сайтах More sharing options...
Vit3f Опубліковано: 19 лютого 2010 Поділитись Опубліковано: 19 лютого 2010 Интересно, в каком доме живёте Вы, и чем топите. Хотел бы я посмотреть, как Вы носите уголь и дрова, через весь дом или держите котел, бойлер, систему водоочистки в котельной с ТТ котлом. Да подпитку можно автоматизировать, в теории.... и таким образом увалить все котлы в случае утечки. К сожалению в 9 этажном. В эксплуатации дом тещи и дача. А я хотел бы посмотреть как вы носитесь между двух котельных при переходе с одного котла на другой. Если без ума строить то можно и уголь через весь дом носить, как правило котельные имеют отдельный вход с улицы, у тещи хоть котел и газовый но вход имеется и с улицы и с дома. Так многие и ставят все в одном помещении и ничего, в чем проблема при ТТ котле? Вот без подпитки котлы увалить как раз проще, как подпиткой можно увалить котлы? Посилання на коментар Поділитися на інших сайтах More sharing options...
vladd Опубліковано: 20 лютого 2010 Поділитись Опубліковано: 20 лютого 2010 в чем проблема при ТТ котле? ИМХО, но он более "грязный" в эксплуатации, чем всё остальное "навесное" и дополнительное оборудование. Одно дело взглянуть на градусник и совсем другое - "заправить" топливом, почистить и всё такое. Вероятнее всего, именно об этом и шла речь. Посилання на коментар Поділитися на інших сайтах More sharing options...
Vit3f Опубліковано: 20 лютого 2010 Поділитись Опубліковано: 20 лютого 2010 ИМХО, но он более "грязный" в эксплуатации, чем всё остальное "навесное" и дополнительное оборудование. Одно дело взглянуть на градусник и совсем другое - "заправить" топливом, почистить и всё такое. Вероятнее всего, именно об этом и шла речь. При рациональном размещении оборудования не вижу проблем. Владельцы ТТ котлов поделитесь опытом "грязной" эксплуатации. Посилання на коментар Поділитися на інших сайтах More sharing options...
Рекомендовані повідомлення
Створіть акаунт або увійдіть у нього для коментування
Ви маєте бути користувачем, щоб залишити коментар
Створити акаунт
Зареєструйтеся для отримання акаунта. Це просто!
Зареєструвати акаунтУвійти
Вже зареєстровані? Увійдіть тут.
Увійти зараз