inline Опубліковано: 30 жовтня 2012 Поділитись Опубліковано: 30 жовтня 2012 Швеллер 10П (стенка 4,5мм) для столбов под кованные ворота подойдет. Одна часть ворот около 1,8 и весом 70-80 кг. Швеллер 10П (стенка 4,5мм) рассматривается как альтернатива квадрату десятке с стенкой 3мм. Посилання на коментар Поділитися на інших сайтах More sharing options...
Вратарь Опубліковано: 30 жовтня 2012 Поділитись Опубліковано: 30 жовтня 2012 Швеллер 10П (стенка 4,5мм) для столбов под кованные ворота подойдет. Одна часть ворот около 1,8 и весом 70-80 кг. Швеллер 10П (стенка 4,5мм) рассматривается как альтернатива квадрату десятке с стенкой 3мм. Очень легкие кованные ворота получаются. Для такого веса и размера достаточно профильных труб 100х100х3 мм. Посилання на коментар Поділитися на інших сайтах More sharing options...
inline Опубліковано: 31 жовтня 2012 Автор Поділитись Опубліковано: 31 жовтня 2012 Очень легкие кованные ворота получаются. что-то вроде таких будут разве тяжелее? Посилання на коментар Поділитися на інших сайтах More sharing options...
dimakon Опубліковано: 11 березня 2013 Поділитись Опубліковано: 11 березня 2013 Швеллер 10П (стенка 4,5мм) для столбов под кованные ворота подойдет. Одна часть ворот около 1,8 и весом 70-80 кг. Швеллер 10П (стенка 4,5мм) рассматривается как альтернатива квадрату десятке с стенкой 3мм. Непойму зачем швелер нужен? Возьмите проф. трубу 100*100 толщиной 4мм. Ето если столбы будут как на картинке 1 Посилання на коментар Поділитися на інших сайтах More sharing options...
sh7 Опубліковано: 12 квітня 2013 Поділитись Опубліковано: 12 квітня 2013 Что бы не плодить темы Есть похожие ворота, и столбы 80*80 толщина 2 мм. В землю столб только на 50 см. Вопрос как укрепить и удлинить столб. Я думаю во внуть поместить или круглую трубу 76 или двутавровую балку, что бы на 50-70 см выстурала из столба. После монтажа в столб сверху залить бетон. Посилання на коментар Поділитися на інших сайтах More sharing options...
mont Опубліковано: 12 квітня 2013 Поділитись Опубліковано: 12 квітня 2013 Есть похожие ворота, и столбы 80*80 толщина 2 мм В местах где будут петли, поставьте пластины и хорошо их обварите. К ним уже приваривайте петли. В землю столб только на 50 см. Основание столба желательно забетонировать до точки промерзания. Иначе столбы могут "плавать" весной и осенью. Я думаю во внуть поместить или круглую трубу 76 или двутавровую балку, что бы на 50-70 см выстурала из столба. После монтажа в столб сверху залить бетон. С заливкой бетона во внутрь соглашусь и с возможным усилением тоже. Но при одном условии. Необходимо, чтобы усилительный метал уходил в землю на 30-40 см. 1 Посилання на коментар Поділитися на інших сайтах More sharing options...
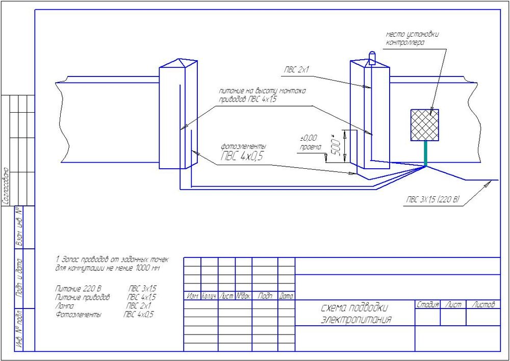
Taras 1771 Опубліковано: 12 квітня 2013 Поділитись Опубліковано: 12 квітня 2013 не забудьте предусмотреть разводку кабелей для автоматики до монтажа столбов 1 Посилання на коментар Поділитися на інших сайтах More sharing options...
kaskad_2437 Опубліковано: 12 квітня 2013 Поділитись Опубліковано: 12 квітня 2013 Швеллер 10П (стенка 4,5мм) для столбов под кованные ворота подойдет. Одна часть ворот около 1,8 и весом 70-80 кг. Швеллер 10П (стенка 4,5мм) рассматривается как альтернатива квадрату десятке с стенкой 3мм. Швеллер сваренный квадратом - подойдет, а просто швеллер - будет очень хлипкая конструкция (это если столбы будут не связаны с основным забором). Желательно сделать эскиз забора чтобы понять всю суть вопроса. Посилання на коментар Поділитися на інших сайтах More sharing options...
sh7 Опубліковано: 12 квітня 2013 Поділитись Опубліковано: 12 квітня 2013 не забудьте предусмотреть разводку кабелей для автоматики до монтажа столбов Кабель к земле есть, рядом со столбом, что с ним дальше делать? запустить во внуть столба и вывести наружу на какой-то высоте через отверстие. Я так понимаю что Вы продаете автоматику. Пришлите бюджетное решение в личку. Будем сразу под него все делать. Добавлено через 3 минуты В местах где будут петли, поставьте пластины и хорошо их обварите. К ним уже приваривайте петли. Основание столба желательно забетонировать до точки промерзания. Иначе столбы могут "плавать" весной и осенью. С заливкой бетона во внутрь соглашусь и с возможным усилением тоже. Но при одном условии. Необходимо, чтобы усилительный метал уходил в землю на 30-40 см. Спасибо. На столбах уже все есть для крепежа ворот, поэтому и держусь за них. Понял, бетонирую в любом случае на максимальную глубину. Сделаю. Посилання на коментар Поділитися на інших сайтах More sharing options...
Вратарь Опубліковано: 13 квітня 2013 Поділитись Опубліковано: 13 квітня 2013 Кабель к земле есть, рядом со столбом, что с ним дальше делать? запустить во внуть столба и вывести наружу на какой-то высоте через отверстие. По схеме проведите провода, в полотне ворот предусмотрите ребро жесткости для крепления привода на створке. 2 Посилання на коментар Поділитися на інших сайтах More sharing options...
sh7 Опубліковано: 13 квітня 2013 Поділитись Опубліковано: 13 квітня 2013 По схеме проведите провода, в полотне ворот предусмотрите ребро жесткости для крепления привода на створке. Спасибо, очень информативно. Может подскажите по поводу столбов в 5-м сообщении Посилання на коментар Поділитися на інших сайтах More sharing options...
Вратарь Опубліковано: 13 квітня 2013 Поділитись Опубліковано: 13 квітня 2013 Спасибо, очень информативно. Может подскажите по поводу столбов в 5-м сообщении Я считаю, что бетон, залитый в металлический столб не придаст ему жесткости, со временем от деформации потрескается внутри профильной трубы. Металл, забитый в профильную трубу 80х80 мм. под большим вопросом. Чтобы потом не переделывать демонтируйте существующие и сделайте новые столбы, в зависимости от почвы нужно определить какой глубины и формы делать фундамент. Нужен совет грамотного строителя, я больше по воротам и автоматике . 1 Посилання на коментар Поділитися на інших сайтах More sharing options...
sh7 Опубліковано: 14 квітня 2013 Поділитись Опубліковано: 14 квітня 2013 Я считаю, что бетон, залитый в металлический столб не придаст ему жесткости, со временем от деформации потрескается внутри профильной трубы. Металл, забитый в профильную трубу 80х80 мм. под большим вопросом. Чтобы потом не переделывать демонтируйте существующие и сделайте новые столбы, в зависимости от почвы нужно определить какой глубины и формы делать фундамент. Нужен совет грамотного строителя, я больше по воротам и автоматике . Спасибо, столбы пока не установленны. Посилання на коментар Поділитися на інших сайтах More sharing options...
Вратарь Опубліковано: 14 квітня 2013 Поділитись Опубліковано: 14 квітня 2013 Спасибо, столбы пока не установленны. Это несколько меняет дело. Столбы из профильной трубы 100х100х3-4 мм., заливать ниже нуля 1000-1200 мм., максимальная рекомендуемая ширина калитки 1000-1100 мм., "общий" столб калитки и ворот залить фундаментом как на схеме. Взвешенно отнеситесь к ширине распашных ворот, нужно помнить о ветровой нагрузке и необходимости чистить снег перед открытием ворот. Минимальный зазор между отметкой нуля и низом ворот 80 мм. (помним про снег). Посилання на коментар Поділитися на інших сайтах More sharing options...
gnom_slava Опубліковано: 14 квітня 2013 Поділитись Опубліковано: 14 квітня 2013 к стати, по поводу расположения контроллера: это не догма, что он должен быть расположен рядом с воротами (тем более строго с правой стороны ).можно его расположить и в гараже или, например, домике охраны. в этом случае увеличится количество проводов и, возможно, придется поставить внешнюю антенну для ДУ, но зато уменьшится вероятность открытия ворот с самого контроллера, да и ремонт и настройку электроники делать под крышей на много полезнее, чем под дождем и снегом. Посилання на коментар Поділитися на інших сайтах More sharing options...
Вратарь Опубліковано: 15 квітня 2013 Поділитись Опубліковано: 15 квітня 2013 к стати, по поводу расположения контроллера: это не догма, что он должен быть расположен рядом с воротами (тем более строго с правой стороны ).можно его расположить и в гараже или, например, домике охраны. Если Вы были внимательны, то заметили, что не указано место, где необходимо установить контроллер, на указателе надпись "место установки контроллера". Устанавливайте где хотите - слева, в сторожке, на столбе электропередач, где угодно. Раньше столбы на схемах были нарисованы из кирпича, часть строителей выводила закладные и провода для автоматики четко по рисунку, т.е. считает сколько рядов кирпича до провода или закладной на моей схеме, там и выводит. После таких случаев столбы на моих схемах стали "бетонными" без разбивки по рядам . Кирпичными столбами на схеме я путал строителей, как Вы считаете? в этом случае увеличится количество проводов Зачем увеличивать количество проводов? Их и так несколько километров на дом уйдет. но зато уменьшится вероятность открытия ворот с самого контроллера Гораздо проще открутить одну гайку, которая крепит привод к кронштейну на створке ворот, чем разбираться как открыть ворота с контроллера. да и ремонт и настройку электроники делать под крышей на много полезнее, чем под дождем и снегом. Во время дождя и снегопада монтажники не варят, автоматику не настраивают. Во время настройки полезно видеть створки ворот - видишь то, что делаешь. Посилання на коментар Поділитися на інших сайтах More sharing options...
gnom_slava Опубліковано: 15 квітня 2013 Поділитись Опубліковано: 15 квітня 2013 (змінено) Если Вы были внимательны, то заметили, что не указано место, где необходимо установить контроллер, на указателе надпись "место установки контроллера". Устанавливайте где хотите - слева, в сторожке, на столбе электропередач, где угодно. просто во многих случаях память срабатывает визуально - увидел на картинке так, значит так и надо делать. Гораздо проще открутить одну гайку, которая крепит привод к кронштейну на створке ворот, чем разбираться как открыть ворота с контроллера. проще, если есть чем. блок управления во многих случаях проще открыть. хотя в этом случае нужно знать что там делать Во время дождя и снегопада монтажники не варят, автоматику не настраивают. не монтируют, но ремонтировать иногда приходится... а вообще я это там написал скорее как уточнение, а не с целью поспорить на данную тему. всё вы правильно говорите. Змінено 15 квітня 2013 користувачем gnom_slava 1 Посилання на коментар Поділитися на інших сайтах More sharing options...
mont Опубліковано: 15 квітня 2013 Поділитись Опубліковано: 15 квітня 2013 Спасибо, столбы пока не установленны. В таком случае соглашусь с Вратарь по поводу столбов 100х100. Я думал, что столбы уже установлены. Я считаю, что бетон, залитый в металлический столб не придаст ему жесткости, со временем от деформации потрескается внутри профильной трубы Делали несколько раз таким образом и жесткость увеличивалась. Бетон относительно эластичен. Главная проблема, это то, что строители не могут/не хотят сделать нормальный раствор и залить в трубу. Если стоять над душей у строителей, тогда и потрескается он в трубе не скоро. sh7, какой размер ворот планируете? Будет ли рядом калитка? 1 Посилання на коментар Поділитися на інших сайтах More sharing options...
sh7 Опубліковано: 15 квітня 2013 Поділитись Опубліковано: 15 квітня 2013 В таком случае соглашусь с Вратарь по поводу столбов 100х100. Я думал, что столбы уже установлены. Делали несколько раз таким образом и жесткость увеличивалась. Бетон относительно эластичен. Главная проблема, это то, что строители не могут/не хотят сделать нормальный раствор и залить в трубу. Если стоять над душей у строителей, тогда и потрескается он в трубе не скоро. sh7, какой размер ворот планируете? Будет ли рядом калитка? Спасибо, Ворота 2+2, калитка не рядом. По поводу столбов 100x100 убедили. Спасибо Вам и Вратарь. 1 Посилання на коментар Поділитися на інших сайтах More sharing options...
mont Опубліковано: 15 квітня 2013 Поділитись Опубліковано: 15 квітня 2013 Ворота 2+2, калитка не рядом Если ворота приблизительно такие как на рисунке, тогда бетон можно не заливать в трубу. Посилання на коментар Поділитися на інших сайтах More sharing options...
Вратарь Опубліковано: 16 квітня 2013 Поділитись Опубліковано: 16 квітня 2013 Если ворота приблизительно такие как на рисунке, тогда бетон можно не заливать в трубу. Не вериться мне в пользу бетона в столбе. Посилання на коментар Поділитися на інших сайтах More sharing options...
mont Опубліковано: 16 квітня 2013 Поділитись Опубліковано: 16 квітня 2013 Не вериться мне в пользу бетона в столбе. Ну почему не верится. В металлическом столбе будет бетонный стержень. Посилання на коментар Поділитися на інших сайтах More sharing options...
Вратарь Опубліковано: 16 квітня 2013 Поділитись Опубліковано: 16 квітня 2013 Ну почему не верится. В металлическом столбе будет бетонный стержень. Вчера наблюдал как створка распашных ворот ADS400 1650х2250 мм. во время закрытия наклоняет кирпичный столб на 5-7 мм. Бетон хорошо сопротивляется сжатию, значительно хуже – срезу и еще хуже растяжению. Вибрация от ветровой нагрузки и и изгиб при наклон столба со временем разрушит бетон внутри трубы. Если бетонный столб, то армированный 200х200 мм. Посилання на коментар Поділитися на інших сайтах More sharing options...
mont Опубліковано: 16 квітня 2013 Поділитись Опубліковано: 16 квітня 2013 Вратарь, если столб не будет связан с забором, тогда его конечно будет наклонять в сторону створки. Что касается распашных ворот, то здесь, я думаю вы знаете, необходимо под каждый отдельный случай находить техническое решение. Есть несколько факторов которые необходимо учесть. Это: вес створки, размер, ветровую нагрузку, расположение привода и. т.д. 1 Посилання на коментар Поділитися на інших сайтах More sharing options...
Вратарь Опубліковано: 16 квітня 2013 Поділитись Опубліковано: 16 квітня 2013 Вратарь, если столб не будет связан с забором, тогда его конечно будет наклонять в сторону створки. Что касается распашных ворот, то здесь, я думаю вы знаете, необходимо под каждый отдельный случай находить техническое решение. Есть несколько факторов которые необходимо учесть. Это: вес створки, размер, ветровую нагрузку, расположение привода и. т.д. В данном случае достаточно столба из профильной трубы 100х100. 2 Посилання на коментар Поділитися на інших сайтах More sharing options...
Рекомендовані повідомлення
Створіть акаунт або увійдіть у нього для коментування
Ви маєте бути користувачем, щоб залишити коментар
Створити акаунт
Зареєструйтеся для отримання акаунта. Це просто!
Зареєструвати акаунтУвійти
Вже зареєстровані? Увійдіть тут.
Увійти зараз