Tarras Опубліковано: 18 січня 2014 Автор Поділитись Опубліковано: 18 січня 2014 дякую, Тарасе. Чи достатньо буде стіна в 250 мм для опираня монолітного перекриття? Дякую. Розумієте, щоб сказати точно потрібна вся "картина". По міцності скоріш за все що достатньо а вот по стійкості залежить від довжини, висоти стіни і її розкріплення іншими стінами із площини.. щоб точно сказати потрібно рахувати.. но 250 це вже несуча стіна і у будь-якому випадку це краще ніж 120.. 120 недопустимо навантажувати! 1 Посилання на коментар Поділитися на інших сайтах More sharing options...
ERAT Опубліковано: 20 січня 2014 Поділитись Опубліковано: 20 січня 2014 Я конкретну товщину не можу Вам сказати без розрахунку, можу тільки дати схожі креслення сходів, ще колись давно роектував як студентом був... у прикріпленому файлі в PDF Доброго дня! Дякую за відповідь і за матеріали! По армуванні і товщинам плит і косоурів визначився. Переглянув Ваші відео (ще одне дякую)про вхідні групи і виникли питання на рахунок:висоти площадки до дверей? ізоляції сходів(облицювального матеріалу) від грунтових вод, щоб потім не рвало на морозі? І якою заливати ширину сходини під плитку 300*300 щоб не було проблем з облицюванням? Дякую Посилання на коментар Поділитися на інших сайтах More sharing options...
Vikctor Опубліковано: 28 січня 2014 Поділитись Опубліковано: 28 січня 2014 Добрый день, Tarras. По проекту у меня вальмовая кровля без коньковой балки. Присутствует лишь коньковая доска без подпорок - для удобства монтажа и правильного закрепления верха центральных стропил основных скатов, а также накосных стропил. Наличие подкосов для центральных стропил, а также шпренгельных ферм в нижних 1/4 и стоек в верхних 1/4 накосных стропил, с определённой долей вероятности делает стропилку всё же безраспорной. Правда для этого ещё и опорные части стропильных ног нужно закрепить на мауэрлате на ползун. И вот этот момент для меня несколько тревожный. Как то я не решаюсь, при отсутствии жёстко закреплённого массивного конька или привычной для вальмовых кровель "табуретки", выполнить закрепление стропил в мауэрлате лишь парой гвоздей накосую и скобой. Хочется также использовать уголки с болтами, но тогда теоретически возможно появление распора... Вопрос в следующем: может не стоит беспокоиться о появлении распора при наличии кругового армопояса под мауэрлатами 275*200h из заводского бетона В25М350, армированного 4 прутами А500С? Или наличие такого пояса на стенах из ГБ (прямоугольный пятистенок с внешними размерами 15200*10500) не гарантирует безпроблемность при наличии распора? Посилання на коментар Поділитися на інших сайтах More sharing options...
Tarras Опубліковано: 30 січня 2014 Автор Поділитись Опубліковано: 30 січня 2014 Добрый день, Tarras. По проекту у меня вальмовая кровля без коньковой балки. Присутствует лишь коньковая доска без подпорок - для удобства монтажа и правильного закрепления верха центральных стропил основных скатов, а также накосных стропил. Наличие подкосов для центральных стропил, а также шпренгельных ферм в нижних 1/4 и стоек в верхних 1/4 накосных стропил, с определённой долей вероятности делает стропилку всё же безраспорной. Правда для этого ещё и опорные части стропильных ног нужно закрепить на мауэрлате на ползун. И вот этот момент для меня несколько тревожный. Как то я не решаюсь, при отсутствии жёстко закреплённого массивного конька или привычной для вальмовых кровель "табуретки", выполнить закрепление стропил в мауэрлате лишь парой гвоздей накосую и скобой. Хочется также использовать уголки с болтами, но тогда теоретически возможно появление распора... Вопрос в следующем: может не стоит беспокоиться о появлении распора при наличии кругового армопояса под мауэрлатами 275*200h из заводского бетона В25М350, армированного 4 прутами А500С? Или наличие такого пояса на стенах из ГБ (прямоугольный пятистенок с внешними размерами 15200*10500) не гарантирует безпроблемность при наличии распора? Радий би допомогти, але на Ваше питання дасть відповідь тільки індивідуальний розрахунок. Посилання на коментар Поділитися на інших сайтах More sharing options...
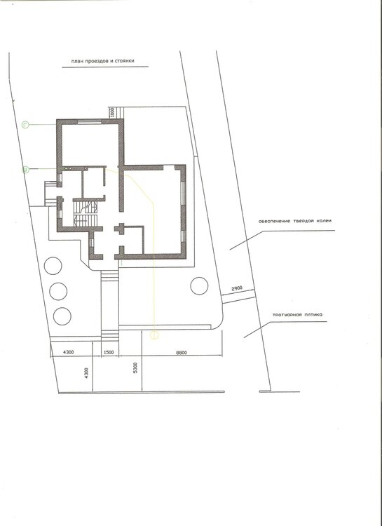
Zinder Опубліковано: 6 лютого 2014 Поділитись Опубліковано: 6 лютого 2014 Доброго дня! Необхідна Ваша консультація. Весною починаємо стіни, поки є фундамент, товщина 400-450 мм, глибина 1,1, цоколь 0,4 м. Грунт глина Одноповерховий дім з мансардою. Стіни - ракушняк М25 400 мм товщина. 1-й поверх висота стін 2,8 чиста Перекриття - плити з/б або дерево. Ще не вирішили Мансарда висота стін 1,6 Крівля - металочерепиця. Таке питання - є бажання збільшити площу еркера за рахунок зменшення товщини стіни з 400 мм до 200 мм (в пів ракушняка) або до 250 мм ( в один кирпич). Згідно проекта товщина стіни еркера в один ракушняк 400 мм. Вона є несучою. ЗВерху армопояс під перекриття. Які особливості такого варіанту для перекриття з плит або з дерева? 1. Маю думку, що якщо перекриття роботи з плит то стіна еркера (200 мм або 250 мм) не повинна бути несучою через малу товщину, і вся вага плит повинна лягти на перемичку) довжина десь 3 метра), яка зображена на малюнку. Чи це реально зробити? Чи можливо обійтись і без перемички? 2. Якщо робити перекриття з дерева чи може така стіна в пів ракушняка або в один кирпич бути несучою? Або потрібна така перемичка в любому випадку? 3. Яка принципова різниця, якщо будувати стіну еркера в пів ракушняка або в один кирпич для сприйняття навантаження від перекриття? Дуже дякую за консультацію! Посилання на коментар Поділитися на інших сайтах More sharing options...
romalex4 Опубліковано: 6 лютого 2014 Поділитись Опубліковано: 6 лютого 2014 доброго дня Тарасе, придумав собі головну біль, так як ділянка має схил - на 10 м -1,2;1,5 м, і не маю бажання робити "башки"-цокольного поверху, придумав фундамент уступом, і тепер ломаю голову наскільки він дієздатний, чи реально такий фкндамент буде виконувати свою функцію. Будинок планується з мансардним поверхом, матеріал стін - зовні ГБ+цегла, внутрішні перегородки цегляні, перекриття, вірогідно, деревяні балки, криша МЧ або шифер, дякую Посилання на коментар Поділитися на інших сайтах More sharing options...
Tarras Опубліковано: 6 лютого 2014 Автор Поділитись Опубліковано: 6 лютого 2014 Доброго дня! Необхідна Ваша консультація. Весною починаємо стіни, поки є фундамент, товщина 400-450 мм, глибина 1,1, цоколь 0,4 м. Грунт глина Одноповерховий дім з мансардою. Стіни - ракушняк М25 400 мм товщина. 1-й поверх висота стін 2,8 чиста Перекриття - плити з/б або дерево. Ще не вирішили Мансарда висота стін 1,6 Крівля - металочерепиця. Таке питання - є бажання збільшити площу еркера за рахунок зменшення товщини стіни з 400 мм до 200 мм (в пів ракушняка) або до 250 мм ( в один кирпич). Згідно проекта товщина стіни еркера в один ракушняк 400 мм. Вона є несучою. ЗВерху армопояс під перекриття. Які особливості такого варіанту для перекриття з плит або з дерева? 1. Маю думку, що якщо перекриття роботи з плит то стіна еркера (200 мм або 250 мм) не повинна бути несучою через малу товщину, і вся вага плит повинна лягти на перемичку) довжина десь 3 метра), яка зображена на малюнку. Чи це реально зробити? Чи можливо обійтись і без перемички? 2. Якщо робити перекриття з дерева чи може така стіна в пів ракушняка або в один кирпич бути несучою? Або потрібна така перемичка в любому випадку? 3. Яка принципова різниця, якщо будувати стіну еркера в пів ракушняка або в один кирпич для сприйняття навантаження від перекриття? Дуже дякую за консультацію! Доброго дня. На прикріпленому фото я задав Вам кілька запитань і зауваженб. Скиньте згаданий на фото матеріал у цю вітку і я постараюсь чимось Вам допомогти. Посилання на коментар Поділитися на інших сайтах More sharing options...
Tarras Опубліковано: 6 лютого 2014 Автор Поділитись Опубліковано: 6 лютого 2014 доброго дня Тарасе, придумав собі головну біль, так як ділянка має схил - на 10 м -1,2;1,5 м, і не маю бажання робити "башки"-цокольного поверху, придумав фундамент уступом, і тепер ломаю голову наскільки він дієздатний, чи реально такий фкндамент буде виконувати свою функцію. Будинок планується з мансардним поверхом, матеріал стін - зовні ГБ+цегла, внутрішні перегородки цегляні, перекриття, вірогідно, деревяні балки, криша МЧ або шифер, дякую Добрий день. Важко дати Вам конкретну відповідь... поскільки тут потрібен індивідуальний розрахунок. Дуже багато факторів, від яких залежить конструкція фундаменту.. Для розрахунку фундаменту потрібнщ: -Звіт геологічних вишукувань -Плани поверхів -Фасади, розріз -Матеріал стін, перекриття, покрівлі написав у приватному повідомленні. Посилання на коментар Поділитися на інших сайтах More sharing options...
Zinder Опубліковано: 7 лютого 2014 Поділитись Опубліковано: 7 лютого 2014 Доброго дня. На прикріпленому фото я задав Вам кілька запитань і зауваженб. Скиньте згаданий на фото матеріал у цю вітку і я постараюсь чимось Вам допомогти. Миниатюры Доброго дня, дякую за увагу Додаю орієнтовні плани поверхів та фасади. Якщо є зауваження то буду вдячний вислухати Зміни будуть по фасаду - еркер іншої форми та балкон майже на всю ширину будинку. Дякую5.pdf Посилання на коментар Поділитися на інших сайтах More sharing options...
romalex4 Опубліковано: 7 лютого 2014 Поділитись Опубліковано: 7 лютого 2014 написав у приватному повідомленні. да дякую, спочатку потрібно зробити геологію, у нас в містечку цього не роблять, потрібно замовляти у Вінниці. Посилання на коментар Поділитися на інших сайтах More sharing options...
Всеволод_Р Опубліковано: 11 лютого 2014 Поділитись Опубліковано: 11 лютого 2014 Доброго дня, Тарасе! Перегляньте, будь-ласка, мою тему www.stroimdom.com.ua/forum/showthread.php?t=145593 Обговорення в ній фактично закінчено, мене майже відмовили від побудови металоконструкції, але в душі бажання зробити опираня плит на металоконстукцію всеж є. Посилання на коментар Поділитися на інших сайтах More sharing options...
Tarras Опубліковано: 12 лютого 2014 Автор Поділитись Опубліковано: 12 лютого 2014 Доброго дня, дякую за увагу Додаю орієнтовні плани поверхів та фасади. Якщо є зауваження то буду вдячний вислухати Зміни будуть по фасаду - еркер іншої форми та балкон майже на всю ширину будинку. Дякую Відповідь відобразив на фото... Посилання на коментар Поділитися на інших сайтах More sharing options...
Евгения 777 Опубліковано: 13 лютого 2014 Поділитись Опубліковано: 13 лютого 2014 Возникла дилемма, которую долго не можем решить! Участок под наклоном. 1. Фундамент дома верхней точкой вышел в ноль (хотим откопать 30-40 см. под цоколь и выровнять площадку перед домом в этом месте - там будет открытая веранда и зона отдыха). Таким образом, образуется перепад между огородом и этой зоной. Нужно ставить подпорную стенку, а как рассчитать ее высоту, ширину и глубину заложения? 2. Передняя часть осталась не закопанная (земли не хватило) - достраивались в зиму... По задумке архитектора в это место нужно привезти и досыпать 100 кубов грунта, трамбовать и вывести в одну плоскость, перед домом сделать еще одну опорную стену. Ну не хочется так сильно землю подымать и выстраивать эти пандусы к дому. Можно ли меньше насыпать земли, а крыльцо сделать выше, ну и водоотведение продумать и таким образом обойтись малой кровью? Прикрепляю разрез по земле, фундаменты, фото дома (парадный и в сад) и фото желаемого крыльца. Вода проложена под подушкой фундамента. Инженерно-геологическое Заключение УКРНИИНТИЗ - тип грунтовых условий просадочности первый. Начальное просадочное давление 0,13 МПа, просадка грунтов от собственного веса менее 5 см. Буду очень Вам благодарна за рекомендации! Посилання на коментар Поділитися на інших сайтах More sharing options...
Tarras Опубліковано: 14 лютого 2014 Автор Поділитись Опубліковано: 14 лютого 2014 Доброго дня, Тарасе! Перегляньте, будь-ласка, мою тему www.stroimdom.com.ua/forum/showthread.php?t=145593 Обговорення в ній фактично закінчено, мене майже відмовили від побудови металоконструкції, але в душі бажання зробити опираня плит на металоконстукцію всеж є. Всю вітку не читав, читав тільки Ваше перше повідомлення. Можна хоч на 100 сторінок вести обговорення, але най надійніше і правильно промто провести розрахунк. Тільки тоді Ваше бажання має можна втілити в реальність! Посилання на коментар Поділитися на інших сайтах More sharing options...
Tarras Опубліковано: 14 лютого 2014 Автор Поділитись Опубліковано: 14 лютого 2014 Возникла дилемма, которую долго не можем решить! Участок под наклоном. 1. Фундамент дома верхней точкой вышел в ноль (хотим откопать 30-40 см. под цоколь и выровнять площадку перед домом в этом месте - там будет открытая веранда и зона отдыха). Таким образом, образуется перепад между огородом и этой зоной. Нужно ставить подпорную стенку, а как рассчитать ее высоту, ширину и глубину заложения? 2. Передняя часть осталась не закопанная (земли не хватило) - достраивались в зиму... По задумке архитектора в это место нужно привезти и досыпать 100 кубов грунта, трамбовать и вывести в одну плоскость, перед домом сделать еще одну опорную стену. Ну не хочется так сильно землю подымать и выстраивать эти пандусы к дому. Можно ли меньше насыпать земли, а крыльцо сделать выше, ну и водоотведение продумать и таким образом обойтись малой кровью? Прикрепляю разрез по земле, фундаменты, фото дома (парадный и в сад) и фото желаемого крыльца. Вода проложена под подушкой фундамента. Инженерно-геологическое Заключение УКРНИИНТИЗ - тип грунтовых условий просадочности первый. Начальное просадочное давление 0,13 МПа, просадка грунтов от собственного веса менее 5 см. Буду очень Вам благодарна за рекомендации! Добрий день. Можна виконати терасування ділянки і без насипу грунту. Я недавно виконував проект на ділянці з перепадом на 30-ти метраз 10м і там використовував саме терасси без насипу грунту і підпірних стін.. ну звісно потрібно порахувати схил на зсуви. Такі площадки можуть бути різних конструкцій, і з металу і з залізобетоні, може бути метал +дерево, або бетон +метал +дерево.. Частина яка знаходиться в землі обовязково захищається від корозії.. На фото правда вже сама конструкція закрита моїм архітектором, але дві нижні тераси виконано без насипу грунту і підпірних стін. Підпірна стіна тільки одна яка йде рівно із фасадом будинку.. і то її можна булоб і не виконувати.. завжди є вибір. У Вашому випадку щось конкретно важко сказати без детального опрацювання інформації і проведення розрахунку, та знайте що без підпірної стіни можна обійтись.. Доречі на фото під двома нижніми терасами є простір, який можна експлуатувати. Посилання на коментар Поділитися на інших сайтах More sharing options...
Евгения 777 Опубліковано: 15 лютого 2014 Поділитись Опубліковано: 15 лютого 2014 Добрий день. Можна виконати терасування ділянки і без насипу грунту. Я недавно виконував проект на ділянці з перепадом на 30-ти метраз 10м і там використовував саме терасси без насипу грунту і підпірних стін.. ну звісно потрібно порахувати схил на зсуви. Такі площадки можуть бути різних конструкцій, і з металу і з залізобетоні, може бути метал +дерево, або бетон +метал +дерево.. Частина яка знаходиться в землі обовязково захищається від корозії.. На фото правда вже сама конструкція закрита моїм архітектором, але дві нижні тераси виконано без насипу грунту і підпірних стін. Підпірна стіна тільки одна яка йде рівно із фасадом будинку.. і то її можна булоб і не виконувати.. завжди є вибір. У Вашому випадку щось конкретно важко сказати без детального опрацювання інформації і проведення розрахунку, та знайте що без підпірної стіни можна обійтись.. Доречі на фото під двома нижніми терасами є простір, який можна експлуатувати. Спасибо большое за ответ! Будем думать! Посилання на коментар Поділитися на інших сайтах More sharing options...
Всеволод_Р Опубліковано: 15 лютого 2014 Поділитись Опубліковано: 15 лютого 2014 Всю вітку не читав, читав тільки Ваше перше повідомлення. Можна хоч на 100 сторінок вести обговорення, але най надійніше і правильно промто провести розрахунк. Тільки тоді Ваше бажання має можна втілити в реальність! Дякую! Питання більше в тому, чи доцільно взагалі ускладнювати собі життя побудовою такої конструкції? Чи просто добудувати на 1200 мм стіну в цоколі, і вирізати шмат плити довжиною не 750 мм, а 1600 мм, отримавши отвір під сходи 2400 на 1600? Посилання на коментар Поділитися на інших сайтах More sharing options...
Tarras Опубліковано: 4 березня 2014 Автор Поділитись Опубліковано: 4 березня 2014 Доброго дня, шановні форумчани. Зявилась ідея після закінчення проекту записаувати його відео-огляд, щоб було більш зрозуміло що де знаходиться, які конструктивні рішення на основі чого приймались і т д. Просто якщо людина не спеціаліст в будівництві, то розібратись в кресленнях не просто. Це теж саме що мені показати коди, які пишуть програмісти. На свій блог добавив еккспериментальне відео - прошу оцінити, я закинув ди зсилку чи саме відео на вітку, але не знаю як це оцінить керівництво stroimdom.com.ua Посилання на коментар Поділитися на інших сайтах More sharing options...
NAVIN Опубліковано: 11 березня 2014 Поділитись Опубліковано: 11 березня 2014 Добрый день Тарас, Прошу помощи по несущей балке. В центре дома нет несущей стены, планировали использовать двутавр h-200мм, расстояние между несущими стенами 6200мм, колонна - труба д.160 Вопрос1 - достаточно ли сечений (колонны, двутавра)? Вопрос2 - если отказаться от несущей стены(межкомнатной) увеличив расстояние между наружными стенами до 9200мм - достаточно поставить две колонны д.160 Посилання на коментар Поділитися на інших сайтах More sharing options...
Tarras Опубліковано: 12 березня 2014 Автор Поділитись Опубліковано: 12 березня 2014 Добрый день Тарас, Прошу помощи по несущей балке. В центре дома нет несущей стены, планировали использовать двутавр h-200мм, расстояние между несущими стенами 6200мм, колонна - труба д.160 Вопрос1 - достаточно ли сечений (колонны, двутавра)? Вопрос2 - если отказаться от несущей стены(межкомнатной) увеличив расстояние между наружными стенами до 9200мм - достаточно поставить две колонны д.160 Скиньте на цю вітку хоч якісь плани чи схемку від руки, і потрібно розуміти яке навантаження на балку Посилання на коментар Поділитися на інших сайтах More sharing options...
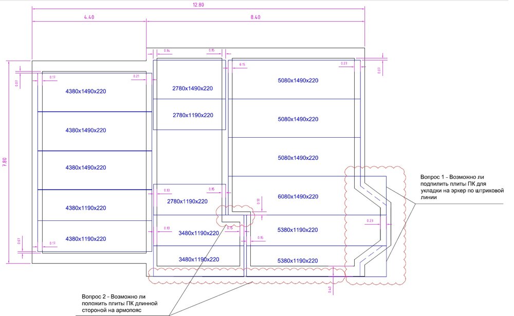
Zinder Опубліковано: 12 березня 2014 Поділитись Опубліковано: 12 березня 2014 Добрый день, Скоро начну строить стены, фундамент и цоколь готовы. Подскажите пожалуйста по варианту раскладки плит перекрытия ПК пустотных Информация о стенах: Фундамент, цоколь - лента, монолит, бетон М200, ширина 0,4м, высота 1,5м. Глубина заложения 1,1 м. Стены - ракушняк М25 в камень, ширина 0,4м. Высота до армопояса - 2,7 м. Армопояс - армировка 4 продольных арматуры А14 (низ) и А12 (верх), поперечены А10 По краям армопояса в качестве опалубки стоят кирпичи М100 на ребро с каждой стороны в два ряда. Итого выходит если смотреть сверху на армопояс - кирпич 65 мм плюс армопояс 250 мм плсю 65 мм кирпич. Размеры армопояса - 250 на 250 мм. Я придерживался рекомендации по опирании торцевой части плит ПК на несущую стену 140-150 мм Расстояние между длинной частью плит и несущей стеной 70-100 мм. Вплотную не получилось На рисунке я выдели места, которые меня беспокоят, и соответственно хотелось бы услышать мнение форумчан о такой раскладке плит. Вопрос 1 - Возможно ли подпилить плиты ПК для укладки на эркер по штриховой линии Вопрос 2 - Возможно ли положить плиты ПК длинной стороной на армопояс на всю длинну либо частично? Плюс если есть замечание по остальной раскладки плит то с удовольствием выслушаю. Посилання на коментар Поділитися на інших сайтах More sharing options...
Tarras Опубліковано: 14 березня 2014 Автор Поділитись Опубліковано: 14 березня 2014 Вопрос 1 - Возможно ли подпилить плиты ПК для укладки на эркер по штриховой линии Вопрос 2 - Возможно ли положить плиты ПК длинной стороной на армопояс на всю длинну либо частично? Плюс если есть замечание по остальной раскладки плит то с удовольствием выслушаю. Добрий день. 1- такий підпріз плити не рекомендований, поскільки її несуча здатність з 800кг/м.кв може стати наприклад 500кг/м.кв. а тоф 300. Краще там виконати монолвтну ділянку, вона уВас буде не великою. зато перекриття буде надійним. Якщо звичайно не можливо розкласти плити щоб обійтись без монолітних робіт. 2-Плиту заводити на несучу стіну допустимо, але за умови перевірочного розрахунку, про це навіть сказано в якомусь із посібників, але якщо можна цього уникнути то краще саме так і зробити. При опиранні плити тільки на дві короткі сторони вона працює згідно із своїм заводським армуванням, в протилежному випадку напруження розподіляються нерівномірно в залежності від ширини плити, навантаження, прольоту і тд. Посилання на коментар Поділитися на інших сайтах More sharing options...
NAVIN Опубліковано: 14 березня 2014 Поділитись Опубліковано: 14 березня 2014 Скиньте на цю вітку хоч якісь плани чи схемку від руки, і потрібно розуміти яке навантаження на балку Перекрытие - балки 200*100 (сосна), на 2м этаже спальни Посилання на коментар Поділитися на інших сайтах More sharing options...
Tarras Опубліковано: 14 березня 2014 Автор Поділитись Опубліковано: 14 березня 2014 Перекрытие - балки 200*100 (сосна), на 2м этаже спальни Покжіть де у Вас закінчуються сходи на 2 му пов. Вам же їх потрібно до перекриття кріпити. Відправте ще план 2-го пов. Посилання на коментар Поділитися на інших сайтах More sharing options...
NAVIN Опубліковано: 14 березня 2014 Поділитись Опубліковано: 14 березня 2014 Покжіть де у Вас закінчуються сходи на 2 му пов. Вам же їх потрібно до перекриття кріпити. Відправте ще план 2-го пов. Прошу прошения за качество фото. лестница крепится к перекрытию без проблем, остался только вопрос - по несущей балке из двутавра: Вопрос1 - достаточно ли сечений (колонны, двутавра)? Вопрос2 - если отказаться от несущей стены(межкомнатной) увеличив расстояние между наружными стенами до 9200мм - достаточно поставить две колонны д.160 Заранее спасибо! Посилання на коментар Поділитися на інших сайтах More sharing options...
Рекомендовані повідомлення
Створіть акаунт або увійдіть у нього для коментування
Ви маєте бути користувачем, щоб залишити коментар
Створити акаунт
Зареєструйтеся для отримання акаунта. Це просто!
Зареєструвати акаунтУвійти
Вже зареєстровані? Увійдіть тут.
Увійти зараз