alabay111 Опубліковано: 12 березня 2021 Поділитись Опубліковано: 12 березня 2021 Добрий день, порадьте будь ласка з кухнею, площа кухні 11 м.кв. 2,4*4,7.планував п -образну кухню, але чи не буде мало місця адже 0,6 + 0,6 лишиться 1,2 в середині між тумбочками. Чи краще зробити Г - образну. Висота потоків 2,85, чи варто робити до потолка ,адже верхом дуже рідко користуються.Наперед вдячний за відповідь. Посилання на коментар Поділитися на інших сайтах More sharing options...
allasvet Опубліковано: 13 березня 2021 Поділитись Опубліковано: 13 березня 2021 Добрий день, порадьте будь ласка з кухнею, площа кухні 11 м.кв. 2,4*4,7.планував п -образну кухню, але чи не буде мало місця адже 0,6 + 0,6 лишиться 1,2 в середині між тумбочками. Чи краще зробити Г - образну. Висота потоків 2,85, чи варто робити до потолка ,адже верхом дуже рідко користуються.Наперед вдячний за відповідь. Для того чтобы предлагать вам варианты размещения кухни необходимы по крайней мере хотя бы размеры, места дверей и окон, привязки к водоснабжению и канализации, место вентиляции, количество проживающих, как часто вы готовите, какое необходимое оборудование должно быть(холодильник, посудомойка, микроволновка), какой бытовой техникой вы постоянно пользуетесь(пароварка, эл.чайник, тостер) зона приема еды(стандартный стол или быстро перекусили). Вот эти все вопросы я задаю заказчику при проектировании кухни и уточняю из какого материала хотите фасады кухни, рабочую поверхность. 1 Посилання на коментар Поділитися на інших сайтах More sharing options...
alabay111 Опубліковано: 13 березня 2021 Поділитись Опубліковано: 13 березня 2021 Розмір кухні на малюнку, з ліва зона прийому їжі і великий двох дверний холодильник. З права електро плита, мойка на проти вікна, розмір вікна 1,4*1,7. Двері на проти вікна.Посудомойка стоятиме біля мойки. Сам кухонний гарнітур планую до середини вікна і під стіною з права. Зараз би зробив все по іншому але коли планував багато чого не знав і навіть про форум даний не знав, звідси взяв для себе дуже багато інформації,но не помиляється той хто нічого не робить! Будинок одно поверховий, сім'я з 4-х чоловік,готовим часто. Наперед вдячний за відповідь. Посилання на коментар Поділитися на інших сайтах More sharing options...
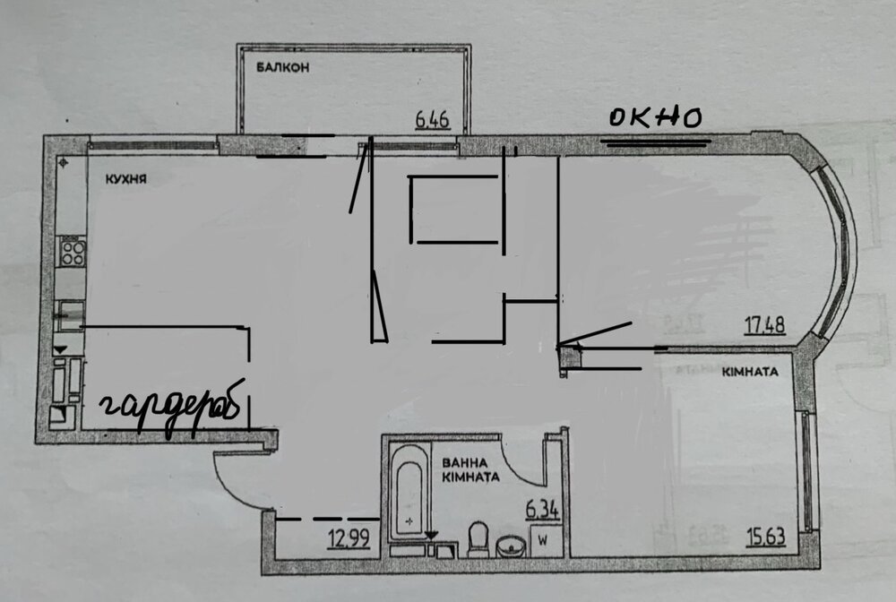
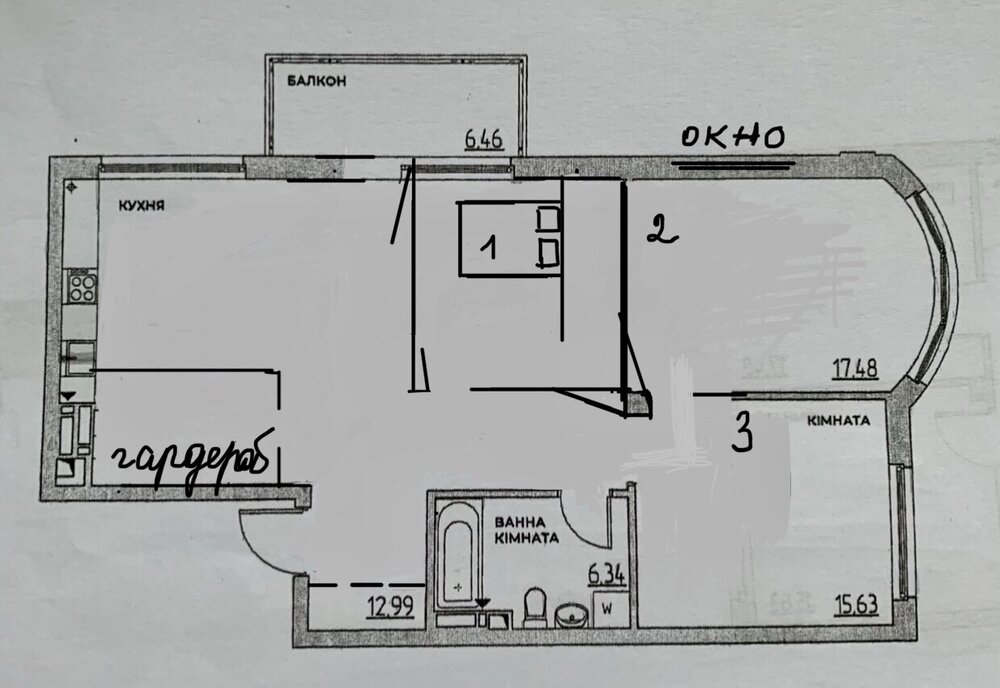
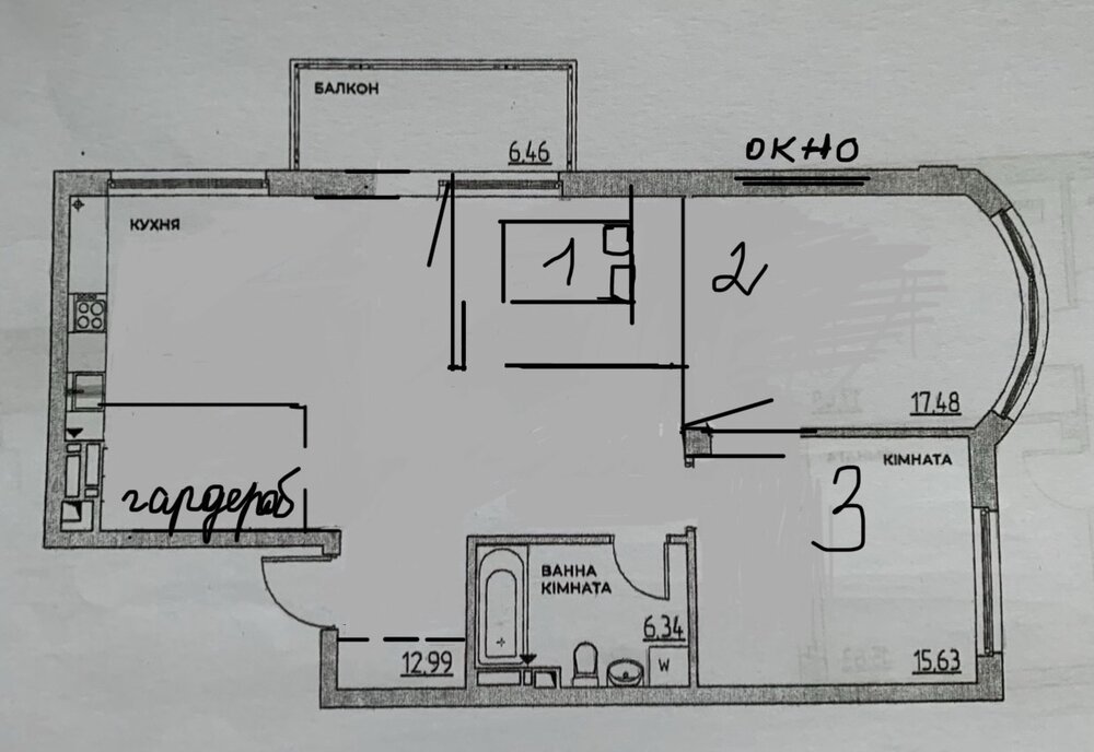
Анжелика.К. Опубліковано: 17 березня 2021 Поділитись Опубліковано: 17 березня 2021 Доброй ночи, посоветуйте пожалуйста с дизайном. Квартира 92м, в планах сделать три спальни( взрослая и по комнате для двух детей). Хочется увеличить кухню(в спальне 1 снять оконный блок с дверью, он цельный, сделать кирпичную стену шир. 20-30см, чтоб можно было разделить кухню и спальню. балконная дверь уйдёт на кухню, а в спальне останется окно). 1. Возможно ли в спальне за изголовьем кровати сделать простенок для гардеробной небольшой за изголовьем, без двери? 2. Может быть сделать детскую№2 проходной через №3 и за счёт этого увеличить взрослую? Дети однополые, но я не сталкивалась с проходными комнатами, насколько это удобно в подростковом возрасте( сейчас уже каждый хочет личного пространства) 3.Возможно гардероб разделить на две части и со стороны кухни сделать дверь( для стиральной машины и сверху бойлер, пылесос), или же ставить стиралку в ванную? Подскажите пожалуйста, может быть я смотрю однобоко и нужно все стены по другому менять, очень буду рада советам Посилання на коментар Поділитися на інших сайтах More sharing options...
Анжелика.К. Опубліковано: 17 березня 2021 Поділитись Опубліковано: 17 березня 2021 Извиняюсь заранее за свои безобразные миниатюры Посилання на коментар Поділитися на інших сайтах More sharing options...
dan1992 Опубліковано: 5 квітня 2021 Поділитись Опубліковано: 5 квітня 2021 Всем привет. Очень нуждаюсь во мнении специалистов в дизайнерском деле, да и любые мнение выслушаю с удовольствием. Имеется две стены которые хотел бы выделить декором, в моем случае это обычный декоративный кирпич, гипсовый. Но с одной стеной проблемка, не знаю чем скрыть край стены, просто оставить кирпич будет не очень. Изначально задумал просто уложить кирпич и на этом бы и закончил (оранжевым выделил стены), синим цветом выделил новый план укладки кирпича, таким образом избавлюсь от проблем с краями. Как по вашему будет смотреться такой расклад? Заранее спасибки!!! пс . взял на пробу метр кирпича и жена как могла приклеила временно на будущую стенку для наглядности. Посилання на коментар Поділитися на інших сайтах More sharing options...
alacran Опубліковано: 5 квітня 2021 Поділитись Опубліковано: 5 квітня 2021 Всем привет. Очень нуждаюсь во мнении специалистов в дизайнерском деле, да и любые мнение выслушаю с удовольствием. Имеется две стены которые хотел бы выделить декором, в моем случае это обычный декоративный кирпич, гипсовый. как вариант 1 Посилання на коментар Поділитися на інших сайтах More sharing options...
dan1992 Опубліковано: 6 квітня 2021 Поділитись Опубліковано: 6 квітня 2021 @alacran, Спасибо! Но в нашем случае не подходит вариант Посилання на коментар Поділитися на інших сайтах More sharing options...
dan1992 Опубліковано: 6 квітня 2021 Поділитись Опубліковано: 6 квітня 2021 Подскажите какие ещё варианты видите, никак не определимся. Спасибо! Посилання на коментар Поділитися на інших сайтах More sharing options...
hirus Опубліковано: 11 квітня 2021 Поділитись Опубліковано: 11 квітня 2021 Надо ж было брать кирпич с угловыми элементами, чтобы обложить все по периметру. Сэмулировать колонну. А так запилы будут видны на углах, да. Может, в этой коллекции есть угловые элементы? 2 Посилання на коментар Поділитися на інших сайтах More sharing options...
ARKUSH Опубліковано: 12 квітня 2021 Поділитись Опубліковано: 12 квітня 2021 Стены, выделенные на схеме синим - приклейте ламинат, цвет - оттенком между цветом пола и цветом гипсового кирпича. Кирпичики выпустить за край углов на толщину приклеиваемого ламината, края обрезанных кирпичей ложить внутрь "кладки". Клеить ламинат горизонтально. Можно вместо ламината отделать стену панелями МДФ. Если клеить кирпичи, то с угловыми элементами и по всему периметру стены. 1 Посилання на коментар Поділитися на інших сайтах More sharing options...
defff Опубліковано: 16 квітня 2021 Поділитись Опубліковано: 16 квітня 2021 Купили хатынку, а вместе с ней и дизайн проект на 47 листах... Наверное и стоил этот проект не дешево, но не могу понять смысл расположения выключателей по отношению к открыванию/закрыванию дверей. Неужели так действительно будет удобно или это-то из-за ограниченного пространства для расположения их в другом месте? Подскажите, пожалуйста, как бы Вы разместили выключатели? Спасибо! Посилання на коментар Поділитися на інших сайтах More sharing options...
ARKUSH Опубліковано: 16 квітня 2021 Поділитись Опубліковано: 16 квітня 2021 Вы разместили выключатели Как Вам удобно, так и размещайте. К советам теоретиков уже давно не прислушиваюсь. Посилання на коментар Поділитися на інших сайтах More sharing options...
k.alena Опубліковано: 16 квітня 2021 Поділитись Опубліковано: 16 квітня 2021 У меня вопросы только к санузлу. Обычно свет в нем включается снаружи, а подсветка над зеркалом уже внутри. Ну и в прихожей логичнее включать свет сразу при входе, хотя там маловато места для выключателя. В остальном, можно перенести под удобную для Вас руку, хотя обычно быстро привыкаешь и не обращаешь внимания. Разве что уж совсем не удобно будет размещен, тогда будет все время раздражать. 1 Посилання на коментар Поділитися на інших сайтах More sharing options...
dan1992 Опубліковано: 18 квітня 2021 Поділитись Опубліковано: 18 квітня 2021 Надо ж было брать кирпич с угловыми элементами, чтобы обложить все по периметру. Сэмулировать колонну. А так запилы будут видны на углах, да. Может, в этой коллекции есть угловые элементы? Угловых нету, но есть возможность сделать углы подрезкой. Решили ложить кирпич немного выпустив за стену для последующей обрезки. С торцовой стороны протянуть шпаклёвкой чтобы спрятать швы и клей. Посмотрим как получится . Посилання на коментар Поділитися на інших сайтах More sharing options...
Андрій Миколайович Опубліковано: 28 липня 2023 Поділитись Опубліковано: 28 липня 2023 Привіт! Планую зводити міжкімнатну стіну. Вона буде проходити через стояк комина. Хочу запитати чи варто робити западаючу ніжу, чи робити стіну в площині краю комина? Фото можливих варіантів: Якщо робити як на першому фото (тоді у нижній кімнаті з'являється ніша сантиметрів 25) як на наступному фото Питання: якщо робити таку нішу в дитячій кімнаті, то яка рекомендуться мінімальна глибина її, щоб там вмістились наприклад якісь полички чи щось інше? Посилання на коментар Поділитися на інших сайтах More sharing options...
yxys Опубліковано: 18 грудня 2023 Поділитись Опубліковано: 18 грудня 2023 Доброго тільки починаємо з будинком, тож є низка питань Зараз дизайнери займаються досить технічною частиною , як-то розташування вимикачів, освітлення і тд...виникло питання в розмежування зон відповідальності -як зараз узгодити малюнки дизайнера і схеми-проекти контори яка буде панувати теплі підлоги, вентиляцію, обігрів, я правильно розумію що першими треба запускати роботу техніків, а потім вже дизайнера? -Виводи розеток і води з будинку на фасад( полив, тераса і тд) хто має планувати? -гардеробна кімната то до мебляра чи до дизайнера? - чи можна десь глянути готові сучасні дизайн проекти, щоб розуміти за що дизайнери беруть гроші) Заздалегідь дякую Посилання на коментар Поділитися на інших сайтах More sharing options...
DimaF Опубліковано: 19 грудня 2023 Поділитись Опубліковано: 19 грудня 2023 13 часов назад, yxys сказал: Доброго тільки починаємо з будинком, тож є низка питань Зараз дизайнери займаються досить технічною частиною , як-то розташування вимикачів, освітлення і тд...виникло питання в розмежування зон відповідальності -як зараз узгодити малюнки дизайнера і схеми-проекти контори яка буде панувати теплі підлоги, вентиляцію, обігрів, я правильно розумію що першими треба запускати роботу техніків, а потім вже дизайнера? -Виводи розеток і води з будинку на фасад( полив, тераса і тд) хто має планувати? -гардеробна кімната то до мебляра чи до дизайнера? - чи можна десь глянути готові сучасні дизайн проекти, щоб розуміти за що дизайнери беруть гроші) Заздалегідь дякую Тяжело вам придется и затратно. Сами вы мало что понимаете, а среди т.н. дизайнеров 90% бестолочей, которые не знают элементарного, и умеют только в красивые картинки далекие от реальной жизни. 1 Посилання на коментар Поділитися на інших сайтах More sharing options...
i.may Опубліковано: 19 грудня 2023 Поділитись Опубліковано: 19 грудня 2023 (змінено) 16 годин тому, yxys сказав: я правильно розумію що першими треба запускати роботу техніків, а потім вже дизайнера? Першим треба досконало розуміти ЩО ви хочете від майбутнього будинку. План приміщень є? Може хтось і бачив досконалий, чи хоча б хороший, бріф від виконавця, я - ні! Ну і питання - що розуміти під "дизайнером"? Дівочку по інтер'єрам, чи технічнограмоного спеца... Змінено 19 грудня 2023 користувачем i.may Посилання на коментар Поділитися на інших сайтах More sharing options...
i.may Опубліковано: 19 грудня 2023 Поділитись Опубліковано: 19 грудня 2023 3 години тому, DimaF сказав: не знают элементарного, и умеют только в красивые картинки далекие от реальной жизни. +1 Посилання на коментар Поділитися на інших сайтах More sharing options...
Andrey1901 Опубліковано: 19 грудня 2023 Поділитись Опубліковано: 19 грудня 2023 15 часов назад, yxys сказал: -як зараз узгодити малюнки дизайнера і схеми-проекти контори яка буде панувати теплі підлоги, вентиляцію, обігрів, я правильно розумію що першими треба запускати роботу техніків, а потім вже дизайнера? Найімовірніше так, оскільки проектувальники наприклад намалюють вам вентиляційні траси, які потрібно буде "облаштовувати" дизайнеру. Розміщати панелі управління повинен також дизайнер, а тут уже монтажники врахують або попросіть врахувати в проекті. Цитата -Виводи розеток і води з будинку на фасад( полив, тераса і тд) хто має планувати? Якщо дизайнер проектує зону навколо будинку, генплан, то і виводи для води він повинен розмістити та обґрунтувати, чому потрібно/зручно саме тут, а вам це має бути зрозуміло. Знову ж таки, сантехніки-монтажники просто зроблять як ви покажете. Цитата -гардеробна кімната то до мебляра чи до дизайнера? Меблярі без жодних проблем зроблять гардеробну за чужим дизайн-проектом, мені так робили. Тут вартість проекту порівняно з вартістю меблів на замовлення настільки невелика, що проект з візуалізацією роблять безкоштовно і меблярі. Також вам потрібно визначитися з підходом. Хтось любить детально пропрацювати в проекті кожен цвях і потім не відступати ні на крок. Інший готовий творчо додумувати і змінювати плани на ходу. Різним людям комфортніше по-різному. Але другий варіант дорожчий і триваліший. 1 Посилання на коментар Поділитися на інших сайтах More sharing options...
i.may Опубліковано: 19 грудня 2023 Поділитись Опубліковано: 19 грудня 2023 8 хвилин тому, Andrey1901 сказав: Меблярі без жодних проблем зроблять гардеробну за чужим дизайн-проектом Рояль в кущах 😀 Посилання на коментар Поділитися на інших сайтах More sharing options...
Andrey1901 Опубліковано: 19 грудня 2023 Поділитись Опубліковано: 19 грудня 2023 3 часа назад, DimaF сказал: Тяжело вам придется и затратно. Сами вы мало что понимаете, а среди т.н. дизайнеров 90% бестолочей, которые не знают элементарного, и умеют только в красивые картинки далекие от реальной жизни. Как будто только дизайнеры такие. Тяжело и затратно придется тому, кто НЕ задается такими вопросами в начале строительства. А если задался, дальше уже зависит от собственного упорства и желания вовлекаться, ну и бюджета. Посилання на коментар Поділитися на інших сайтах More sharing options...
irina1969 Опубліковано: 19 грудня 2023 Поділитись Опубліковано: 19 грудня 2023 Десь в цьому розділі тіліпалось питання щодо " курсів дизайна" 🤣 оце як раз про тих умовних "девочек з картинками" стать значення не має Посилання на коментар Поділитися на інших сайтах More sharing options...
i.may Опубліковано: 19 грудня 2023 Поділитись Опубліковано: 19 грудня 2023 34 хвилини тому, irina1969 сказав: оце як раз про тих умовних "девочек з картинками" стать значення не має Є декоратор/візуалізатор, але це зовсім не дизайнер, тим більше технічний. Посилання на коментар Поділитися на інших сайтах More sharing options...
Рекомендовані повідомлення
Створіть акаунт або увійдіть у нього для коментування
Ви маєте бути користувачем, щоб залишити коментар
Створити акаунт
Зареєструйтеся для отримання акаунта. Це просто!
Зареєструвати акаунтУвійти
Вже зареєстровані? Увійдіть тут.
Увійти зараз